자연과 동화되는 농가주택

인천광역시 강화군

by 공간제작소
썸네일.jpg

안녕하세요 : ) 반값주택 공간제작소입니다.

오늘 소개해드릴 주택은 기존에 농사를 지으시고 계시는 분들과 귀농의 꿈을 이루고자 하시는 분들이 주목하면 좋은 공간제작소의 전원주택,농가주택 완공사례를 소개하겠습니다!


건축정보

대지위치 인천광역시 강화군

건축공법 경량목구조 / 모듈러

건축규모 지상 2층

총 77.34㎡(23py)

1층 52.86㎡(16py)

2층 24.48㎡(7.4py)


23.jpg
23_2.jpg
ⓒ 공간제작소

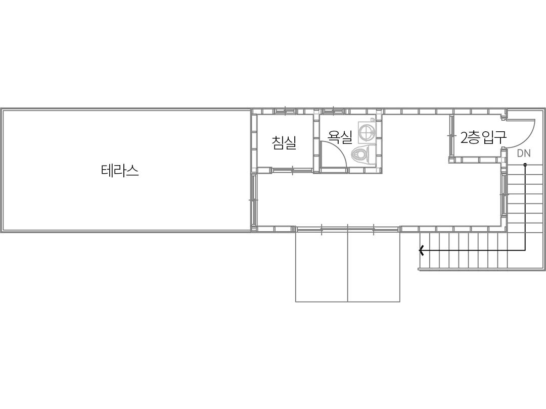
주택 외관은 화이트 컬러가 주를 이루고 있어 주변 자연과도 자연스럽게 동화될 수 있도록 시공하였습니다. 단조로운 느낌의 2층 농가주택 앞 쪽에는 마당이 들어서 있으며, 마당을 지나면 농사를 짓는 터가 있기 때문에 농가주택이라는 이름에 충실하다고 할 수 있습니다. 더불어 농가주택 내부로 들어오는 채광을 최대한 누릴 수 있도록 다양한 크기의 창문을 많이 설치했으며, 2층에는 넓은 테라스가 자리하고 있어 주변 자연경관을 즐기며 가족들과의 오붓한 시간을 보낼 수 있도록 했습니다.

23_3.jpg

외부와 실내를 연결해주는 통로가 1층 현관을 포함하여 총 3개가 있으며, 2층에서도 외부로 이동할 수 있는 통로가 있습니다. 이는 농가주택이라는 특성과 건축주님 가족분들의 동선을 파악하여 외부와 내부의 연결성을 고려하여 설계했습니다.

1층 도면.png
2층 도면.png

환경과 동화되는 주택 외관, 친환경적인 목조주택, 농사를 짓는 공간과 집의 연결성을 고려한 공간제작소의 농가주택, 잘 보셨나요? 노후를 위한 농가주택, 귀농의 꿈을 위한 농가주택 오랜 세월을 함께 할 수 있는 주택으로 짓는 것이 중요합니다. 건축주님들의 생활 패턴, 동선을 고려한 설계로 우리 가족과 딱 맞는 농가주택, 전원주택을 찾으시는 분들은 공간제작소를 주목해주세요!


7초 건축상담 하러가기 ▶ http://naver.me/xkBEmDVf

공간제작소 홈페이지 바로가기 ▶ https://c11.kr/ggarch23

공간제작소 완공영상 보러가기 ▶ https://c11.kr/ggyoutube

keyword
매거진의 이전글목조의 모던함이 살아있는 목조주택