메뉴
brunch
매거진
공간제작소 설계사례
파주 전원주택
나만의 공간에 모던함을 계획하다.
by
공간제작소
Sep 3. 2021
- 파주 전원주택 스케치 도면 -
대지 위치 경기도 파주시
총면적 156.78㎡ (47.42py)
지상 1층 94.32㎡(28.53py)
지상 2층 62.46㎡(18.89py)
파주 전원주택의 스펙은 약 50평을 육박합니다. 건축주님의 다채로운 일상을 수용하기 위해선 공간에 맞는 설계가 이루어져야만 했습니다.
* 해당 주택은 모듈러 건축 공법으로 시공이 되었습니다.
모듈러 공법을 다시 한번 설명해드리자면 이는 외부에서 제작하여 현장 부지로 이동하여 조립하는 건축법입니다.
공장에서 약 90% 집을 지어 건축주님의 부지 앞에서 10% 시공이 이루어지는 공법이라고 생각하시면 되겠습니다.
무채색으로 이루어진 해당 주택은 현대적이면서 단아한 멋이 느껴집니다.
파주 전원주택
은
클래식한 분위기로 외관을 구성한 만큼 전체적인 균형미와 그리고 직선미가 강조됩니다.
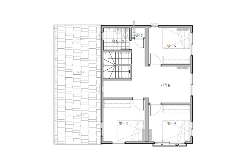
도면을 보실까요?
해당 주택의 설계도면입니다. 간결한 구조와 확실히 구분된 내부의 모습이 가장 먼저 눈에 보입니다.
오른쪽은 공용, 왼쪽은 개인 공간으로 나눠져 구분감 있는 배치도가 완성되었습니다.
행복함이 묻어나는 에서는
파주 전원주택에서
는
새로운 일상의 행복을 누릴 수 있습니다.
공간제작소는 거주자의 편안함을 최우선으로 한 목조주택을 짓습니다.
평생의 보금자리를 책임질 공간제작소
7초 건축상담 하러가기 ▶
https://c11.kr/ggbrunch
공간제작소 완공영상 보러가기 ▶
https://c11.kr/ggyoutube
keyword
전원주택
파주
목조주택
9
댓글
댓글
0
작성된 댓글이 없습니다.
작가에게 첫 번째 댓글을 남겨주세요!
브런치에 로그인하고 댓글을 입력해보세요!
공간제작소
직업
건축가
국내 최대 규모의 슈퍼팩토리에서 자동화 로봇을 활용하여 모듈러 목조주택을 시공합니다. 건축문의 : 031-351-0910
팔로워
344
제안하기
팔로우
매거진의 이전글
문경 전원주택, 벚꽃이 피는 나만의 집
남해 전원주택 모듈러의 정석 -공간제작소
매거진의 다음글