충청남도 부여에 위치한 예쁜전원주택 설계사례

충청남도 부여군

by 공간제작소
20190926_예쁜전원주택_공간제작소_썸.jpg

안녕하세요-!

미래기술 프리패브 목조주택 공간제작소입니다.


오늘 소개할 예쁜전원주택 설계사례는 충청남도 부여에 위치한 일찍이 귀농한 젊은 부부의 주택입니다. 그럼 바로 시작해볼까요?


20190926_예쁜전원주택_공간제작소_01.jpg ⓒ 공간제작소
설계정보

대지위치 충청남도 부여군

건축공법 경량목구조

용도 농가주택

총 80.33㎡(24.29py)

1층 40.16㎡(12.14py)

2층 40.16㎡(12.14py)

20190926_예쁜전원주택_공간제작소_.gif ⓒ 공간제작소
20190926_예쁜전원주택_공간제작소_02.jpg ⓒ 공간제작소

위 예쁜전원주택은 도시에서 귀농해 전원에 집을 짓고 인생의 제2 막을 시작하는 젊은 부부의 소박한 전원주택입니다. 넓은 대지 위에 1층 12평 2층 12평 총 24평으로 지어졌으며 1층은 가장 큰 특징은 방이 없습니다. 온전히 가족들이 함께 하는 공용 공간으로 평 수가 큰 주택이 아니기 때문에 데드페이스를 최소화하고 공용 공간과 개인 공간을 확실히 분리하여 각 공간 별 동선도 최소화한 것이 이 예쁜전원주택의 특징입니다.

20190926_예쁜전원주택_공간제작소_03.jpg ⓒ 공간제작소

외관은 간결한 직선의 디자인과 적삼목을 포인트로 하였으며 에코월판넬을 사용하여 깔끔한 화이트톤의 외장재로 마무리하였습니다. 현재 공간제작소의 기본 스펙은 '시멘트사이딩' 이며 그 외에 '써모사이딩', '메탈사이딩', '세라믹사이딩' 으로도 스펙 업그레이드가 가능합니다.

12.jpg ⓒ 공간제작소
ⓒ 공간제작소


■ 거실

■ 현관

■ 복도

■ 주방/거실






ⓒ 공간제작소


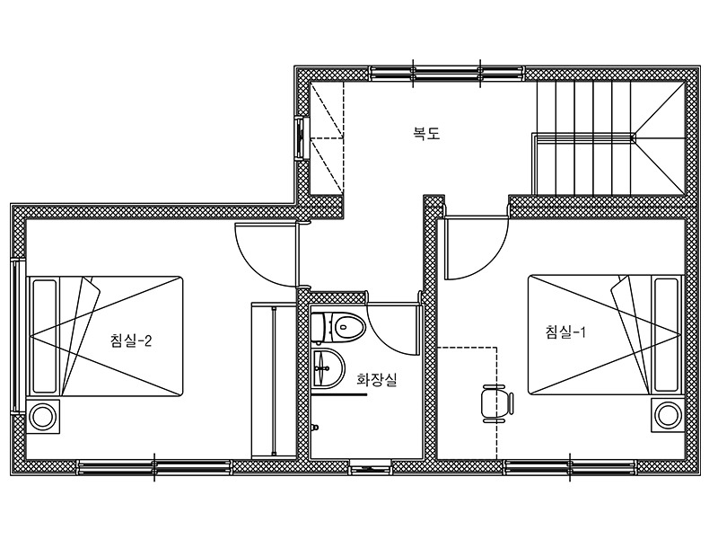
■ 복도

■ 침실-2

■ 침실-1

■ 화장실







오늘 소개해드린 예쁜전원주택, 일찍이 귀농을 생각하시는 분이라면 공간제작소 예쁜전원주택과 함께 행복한 전원생활 하세요!


7초 건축상담 하러가기 ▶ https://c11.kr/brunch

공간제작소 완공영상 보러가기 ▶ https://c11.kr/ggyoutube

공간제작소_배너_하단.jpg


keyword
매거진의 이전글산과 물을 품은 전원주택시공, Pool House