클래식의 정석, 컨트리 하우스 단독주택시공

경기도 남양주시

by 공간제작소
20191002_단독주택시공_공간제작소_썸.jpg

안녕하세요-!

미래기술 프리패브 목조주택 공간제작소입니다.


오늘 소개해드릴 주택은 경기도 남양주시에 위치한 단독주택시공 사례입니다. 클래식은 영원하다는 말이 있듯이 클래식의 정석으로 꾸며진 컨트리 하우스를 소개합니다.

20191002_단독주택시공_공간제작소_01.jpg
Concept.
ⓒ 공간제작소

쌍둥이 자녀와 함께 하는 화목한 전원생활


아파트에 거주하시던 건축주님이 쌍둥이 자녀에게 더 넓은 세상을 보여주기 위함과 집에서 누리는 가치를 온전히 느끼기 위하여 선택하신 경기도 남양주시의 위치한 단독주택시공 사례입니다. 다방면으로 있는 크고 작은 창 덕에 들어오는 따스한 햇빛과 채광은 그동안 갑갑했던 아파트에서의 생활을 위로라도 해주듯 주택을 감싸 안아줍니다.




Planning and design :: 기획설계
20191002_단독주택시공_공간제작소_02.gif ⓒ 공간제작소
Exterior :: 외관
DJI_0013.jpg
DJI_0014.jpg
ⓒ 공간제작소

외관은 화이트톤으로 통일 시켜 주위 환경에 잘 스며들어 동화될 수 있도록 단독주택시공 하였습니다. 각 층마다 놓인 창은 방향을 고려하여 설계하여 다방면으로 햇빛이 들어와 주택을 따스하게 감싸주어 아이들에게도 항상 좋은 기운을 가져다주도록 시공하였습니다. 더불어 주택 옆에 작은 주차장 공간도 따로 마련하여 공간의 활용도를 높였습니다. 건축주님은 주택이 빨리 지어지시기를 원하여 옆에 같이 공사를 진행했던 주택은 아직도 시공 중이지만 저희 공간제작소에서는 프리패브 공법으로 절대공기가 짧아 굉장히 만족하셨습니다.

LO8A5140-HDR.jpg
LO8A5147-HDR.jpg
ⓒ 공간제작소
Interior :: 내부
LO8A5075-HDR.jpg
LO8A5080.jpg
ⓒ 공간제작소

거실에 놓인 큰 창을 통하여 밖 공간과 연계되게끔 시공하여 아이들이 언제든 잔디밭에서 뛰어놀 수 있도록 환경을 조성하였고, 거실과 오픈형으로 계획된 주방은 거실과 같은 동선으로 계획되어 동선을 최대한 줄여 콤팩트 있는 구성으로 짜임새 있게 시공하였습니다. 주방에는 식탁을 두어 가족과의 식사 및 소통 공간으로 활용이 가능합니다. 화이트톤의 벽지 마감은 모던한 색깔까지 입혀 주택의 생기를 불어넣었습니다.

LO8A5022-HDR.jpg
LO8A5029.jpg
호평동_룸2.jpg
ⓒ 공간제작소

1층에는 쌍둥이 자녀들의 놀이방을 두어 아이들이 아이답게 클 수 있는 공간을 계획하였고, 2층에 부부의 침실 공간과 더불어 아이들의 침실 공간을 같이 두어 부모와의 연결고리 역할도 톡톡히 하는 설계를 하였습니다. 침실은 수면을 고려하여 군더더기 없이 깔끔한 구성으로 단독주택시공을 마무리하였습니다.

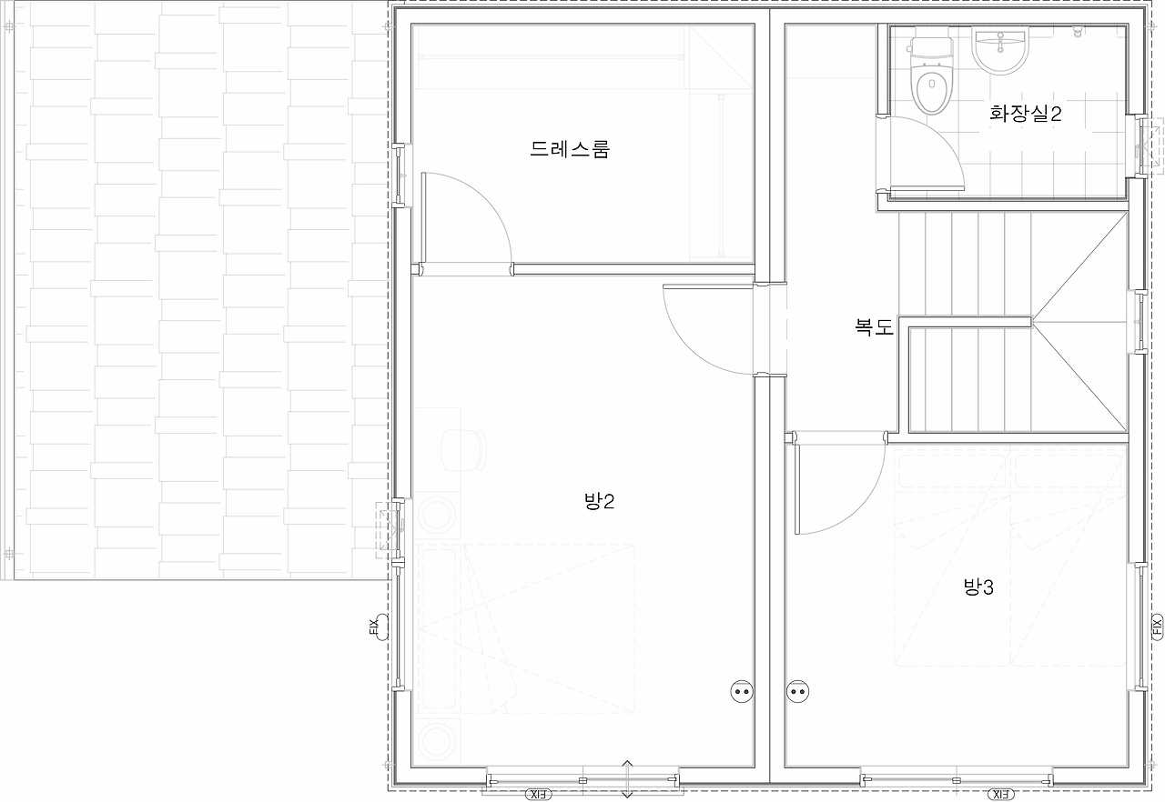
floor plan :: 도면
ⓒ 공간제작소



■ 다용도실

■ 보일러실/창고

■ 현관

■ 포치

■ 주방

■ 거실

■ 화장실 1

■ 방 1



ⓒ 공간제작소


■ 드레스룸

■ 방 2

■ 화장실 2

■ 방 3









오늘 소개해드린 단독주택시공 사례는 잘 보셨나요? 하나부터 열까지 내 손이 간 공간은 애정도의 차이가 그만큼 크겠죠? 삶의 질을 더 높이고 싶다면 지금 당장 주저말고 전원주택을 선택하세요!


7초 건축상담 하러가기 ▶ https://c11.kr/brunch

공간제작소 완공영상 보러가기 ▶ https://c11.kr/ggyoutube

공간제작소_배너_하단.jpg


keyword
매거진의 이전글경기도에 지어진 모던함을 살린 모던전원주택