그래서, 공유주방이 뭔데? - 09

꽃 길은 없고요, 우리 회사가 걸어왔던 길도 걷지 마세요. (2편)

by gimeejong

영업 (이제 안)비밀 다섯 번째.

상권을 고려해서 입지를 선정하고, 사용하는 사람의 동선을 기반으로 설계를 시작해라.

사실 위 문장은 이전 글에서 언급한 공유주방의 형태에 따라 맞는 말이 될 수도 틀린 말이 될 수도 있는 부분이다. 아무리 후미진 골목에 있다 하더라도 맛집은 모바일로 검색해가며 찾아가는 사람들, 고객이 어디에 있더라도 찾아가 주는 배달음식, 주요 거점을 중심으로 정기 배송/회수 서비스를 하는 스타트업. 이렇게 음식을 만들고 사 먹는 '상황'이 갈수록 다양해지는 요즈음에는 상권이라는 개념이 불과 몇 년 전과는 다르고 예측할 수 없을 만큼 빠르게 변화하고 있기 때문이다. 그러나 식품위생법과 같은 관계 법령, 음식점 창업이라는 멤버들의 수요, 그리고 더 나은 '분위기와 공간'을 찾아가는 소비자들 등 여러 가지를 고려했을 때 상권과 입지는 공유주방 운영 전반에 매우 큰 영향을 미친다. 한 예로 현재 우리 회사가 운영하고 있는 서울창업허브 지점을 보자. 먼저 이 지점에는 '음식점 창업'을 하고자 하는 멤버들이 상당히 많다. 초기 투자비용을 줄이고 경험을 해보기 위해 이 곳에 있는 6,7평 규모의 푸드코트 형태의 주방에서 영업을 하고 있다. 이들은 캐쥬얼 다이닝 펍, 스테이크 전문점, 비건 레스토랑 등 각자의 그림을 다양하게 그리고 있다. 그러면 실제로 이 공간에서 이들의 음식을 사 먹는 소비자들을 바라보자. 대부분 스타트업 종사자로서 개개인의 구매여력이 타 업종에 비해 낮은, 법인카드로 식사를 해결하는 비중이 대단히 적은 고객들이다. 이들의 욕구는 무엇일까? 아마 싼 가격의 가성비 높은 음식을 빠르게 해결하고 남은 점심시간에 잠깐의 휴식을 취하고자 하는 것일 것이다. 실제로 6,000원대의 한식 위주 백반을 하는 멤버가 매출이 가장 높다. 졸업 후 창업을 하여 일 250~300만 원 정도의 매출을 유지 중인 멤버는 이 공간에서 최저 매출을 기록했다. 우리 회사가 왜 이런 조건에 있는 공간에서 공유주방을 시작했냐고? 옵션이 없었기 때문이다. 급한 것은 알겠지만 조금 더 고민하고 시간을 두며 입지를 선정하기를 바란다.


스크린샷 2018-10-20 오후 3.57.31.png
스크린샷 2018-10-20 오후 3.56.39.png
일 한정수량으로 판매를 하긴 했지만, 서울창업허브에서 돈카츠와 마제소바를 팔면서 '이익'을 창출하기란 어려웠다.


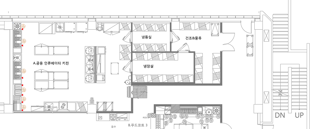
주방 동선과 관련된 부분은 외식업을 하는 사람들이라면 기본적으로 알고 있는 부분이기 때문에 그것이 얼마나 중요한지에 대해서는 이해도가 높을 것이라 생각한다. 다만 여기서 언급하고자 하는 부분은 많은 사람들이 함께 사용하기에 적합한 공유주방의 동선이다. 빼먹으면 안 되는 공간이 몇 가지 있다. 탈의실, 캐비닛, 기물 창고, 건조창고, 냉동창고, 냉장창고, 조리 구역, 세척 구역, 포장 구역, 출하실, 사무업무공간 등. 이 공간들의 기능을 잘 고려해서 자신의 공유주방이 위치할 건물에 동선을 고려한 그림을 그려야 한다. 지금 우리 회사가 운영하고 있는 서울창업허브 지점은 위에 언급한 공간이 모두 구비되어 있지 않다. 굉장히 많이 부족한 상황이다. 아마 이 비즈니스를 하고자 하는 사업자 역시 모든 컨디션을 충족할 만한 상황에 있지는 않을 것이라 생각한다. 그렇지만 적어도 '기능'정도는 꼭 체크를 해서 대안을 만들어 두어야 하고, '룰'을 만들어서 사용자에게 혼선을 주지 말아야 한다. 알겠지만 시공은 중간에 하나 삐끗하면 돈이 추가로 드는 것이 아니라 리셋 수준의 돈과 시간이 소요된다. 설계를 꼼꼼히 하자.

서울창업허브지점의 가스설비도면. 가스 뿐만아니라 급배수, 배기후드, 전기설비, 트랜치 등 많은 것이 고려되어야 한다.


영업 (이제 안)비밀 여섯 번째.

재무계획을 세운다. 비용은 디테일하게, 매출은 보수적으로.


어떤 사업을 하던 마찬가지겠지만 재무계획을 세워보자. 솔직히 이게 맞을까? 하면서도 하면할 수록 디테일을 파는 게 맞다는 게 내 생각이다. 특히 비용부문에 있어서는 거의 틀림없이 더 들면 더 들었지 덜 들지는 않는 것 같다.(안타깝게도 매출은 반대다.) 비용을 말해보자면 식자재, 급여, 복리후생비, 교육훈련비, 교통비, 전기, 가스, 수도, 철거, 구조진단, 설계, 시공, 감리, 인테리어, 설비, 기물, 건물 임차료, 정수기 임차료, 프린터 임차료, 포스 임차료, 화재보험, PL보험, 재난배상보험, 차량유지비, 배송비, 인쇄비, 회의비, 식대, 포장비, 통신공사, 단말기 대여, CCTV, 인터넷, 보안카드, 종량제 봉투, 종이컵, 티슈, 세제, 수세미, 위생장갑, 위생모, 고무장갑, 쓰레기 수거, 세탁비, 문자서비스, 청소비, 세스코, 광고선전비... 돈 들어가는 데는 왜 이렇게 많은지... 가능하다면 예상되는 모든 것을 뽑아보고, 운영을 하면서도 반드시 계속 리스트업을 해야 한다. 그리고 품목별로 싸게 할 수 있는 것들은 반드시 싸게 하자. 매출 부분에 있어서는 역시나 제일 중요한 것이 '가동률'인 것 같다. 오픈하자마자 예상되는 고객이 모두 '빵'하고 올 수 없다. 음식점처럼 오픈빨이 있는 것도 아니고... 다시 한 번 말하지만 이전 글에서 언급했듯이 임대 수익은 단일한 수익모델이 될 수 없다. 인프라 투자비용이 굉장히 크기 때문에 감가상각을 고려하면 임대차 계약기간 내 회수가 쉽지 않을 가능성이 크다.(그리고 주방설비라는 게 잘 고장 난다.) 팀의 역량을 고려해서 운영 가능한 부가 서비스를 기획하고 마찬가지로 보수적인 매출 가정을 덧붙여 보자.


들어갈 비용이 정말 한두푼이 아니다.


영업 (이제 안)비밀 일곱 번째.

공유주방 인재 채용의 최고 주안점은 바로 커뮤니케이션 능력이다.


우리 회사가 가끔 멤버들을 대상으로 설문조사를 할 때가 있다. 여러 가지 이유가 있는데, 현재의 문제점을 파악한다거나, 중요한 의사결정을 하는데 참고하거나, 새로운 프로그램을 도입할 때 수요를 파악하기 위함 등의 이유이다. 그때마다 나오는 여러 의견들 중에 내가 생각하기에 가장 중요한 부분이 하나 있다. '이러이러한 것은 조금 불편한데 매니저님들이 정말 잘 도와주십니다'라는 것이다. 스타트업이라는 회사의 단계(급여 수준, 노동시간), 공유주방이라는 매뉴얼도 없는 생소한 비즈니스 모델, 소비자와 직접 얼굴을 보고 일하는 면대면 서비스업이라는 특성 등 여러 가지 악(?)조건을 고려할 때, 멤버들의 이런 매니저 칭찬은 어떻게 보면 굉장히 감동적이기까지 한 일이다.(오글거려도 할 수 없다. 실제로 그러하니...) 외식업 경험, 셰프 경력, 온오프라인 유통 경험, 브랜드 디자인, 콘텐츠 제작 능력 등. 여러 가지 스펙이 매니저의 조건이 될 수 있겠지만, 1년 넘게 경험을 해보니 이런 모든 것들이 조금은 부족해도 멤버들과 함께 잘~ 살아가는 능력이 굉장히 중요하다. 멤버들과 같이 고민하고, 같이 청소하고, 같이 만들고, 같이 연구하고, 같이 도전하는, 이러한 것들은 원활한 커뮤니케이션 능력이 없으면 절대 불가능한 일이다. 그러면 좀 더 나아가서 어떻게 그런 사람을 알아보냐고 묻는다면, 사실 정확한 답변은 줄 수가 없다. 대신 반대로 이런 사람은 좀 피해야 한다는 것은 말해줄 수 있다. 자신의 조리 실력이나 F&B 비즈니스의 경험에 자부심이 강한 직원은 조금 피할 필요가 있다. 이런 직원들은 멤버들에게 자신의 방식을 가르치려들지 멤버들이 하고 싶어 하는 것을 존중해주고 발전시켜주지는 못했다. 새로운 것을 하려고 하는 사람에게 자신이 해왔던 것을 강요하는 꼴인데, 당연히 내부 커뮤니케이션도 되지 않는다. 자기가 짱이라는데 무슨 말을 해야 할까. 오히려 내가 해왔던 게 정말 맞을까? 와 같은 의문, 이제는 다른 것을 해보고 싶어!라는 호기심을 갖고 있는 있는 사람이 공유주방의 인재로는 더 맞는 것 같다.


서울창업허브 지점의 크루. 일하는 방식, 근무형태, 내부 프로그램, 커뮤니케이션 방법 등 하나하나 다 만들어가며 일하고 있다. 매뉴얼 없으면 없다고 탓하는 그런 사람이라면 곤란.


영업 (이제 안)비밀 여덟 번째.

정책을 만들고, 그리고 그보다 더 멋진 문화를 조성하자.

하고자 하는 공유주방에 맞는 운영정책을 수립해야 한다. 아무리 멋들어지게 공간을 만들어놨어도 모두에게 기준이 될 정책이 없다면, 아마 그곳은 동물의 왕국이 될 것이다. 상황에 따라 다르겠지만 고려해야 할 운영정책의 요소들은 다음과 같다. 멤버십 자격, 멤버십 신청/연장/탈퇴, 멤버십 혜택, 식자재 반입/관리/폐기, 물품 반입, 쓰레기 처리, 청소, 복장, 라벨링, 차량 주차, 오리엔테이션, 투어 프로그램, 소모품 제공, 기물 제공/반납, 설비 사용절차, 주방의 예약/변경/취소, 창고의 예약/변경/취소, 손해배상 등. 아마 훨씬 더 많을 것이다. 주방을 혼란의 도가니로 몰아넣고 싶지 않다면 사전에 많이 고민하고 예상 소비자들을 대상으로 인터뷰를 많이 해봐야 한다. 개인적으로 생각하기에 이러한 정책보다 더 중요한 게 있는데 바로 그 공유주방만이 갖고 있는 '문화'다. 왜 문화가 정책보다 중요하냐면, 정책의 부족한 부분, 인프라의 부족한 부분, IT 시스템의 부족한 부분을 모두가 공유하고 있는 문화가 채워줄 수 있으며, 나아가 발전시킬 수 있는 동력이 될 수 있기 때문이다. 예를 들면 이런 것이다. 공유주방 예약을 함에 있어 이 시간대에 내가 오븐을 쓸 수 있을까라는 의문이 생길 수 있다. 모든 설비에 예약시스템을 구축한다면 가능하겠지만, 그것을 구축한다고 해서 주방이라는 공간이 시스템으로 운영되지 않는다는 것을 우리는 경험상 알고 있다. 이런 문제에 직면했을 때 사실 더 쉬운 게 있다. 커뮤니티가 있다면 그곳의 멤버들에게 물어보고 혹 겹치는 사람이 있다면 시간을 조율하는 것이다. 이런 부분은 서로 편하게 물어보고 소통하는 문화가 조성되지 않으면 불가능한 부분이다. 각자의 공유주방이 지향하는 바가 다를 것이기 때문에 어떤 문화가 공유주방에 필요한 것인지 답을 줄 수는 없다. 이것은 정말 스스로 만들어 가야 한다.


스크린샷 2018-10-20 오후 4.40.30.png
스크린샷 2018-10-20 오후 4.39.45.png
스크린샷 2018-10-20 오후 4.40.09.png
멤버들과 크루가 함께 있는 카톡방. 공지사항 등은 편하게 채팅을 활용한다. 가끔 소소한 파티(?)도 진행하며 친목을 도모.


할 말은 더 많지만 최대한 짧게 정리를 해보았다. 뒤돌아보면 우리 회사는 시행착오를 정말 너무 많이 겪었다. 그렇게 겪었으면서 지금도 매일매일 새로운 어려움에 부딪히고 있다. 그리고 아마도 향후 몇 년간 계속 더 많이 상상하지도 못한 상황을 맞이하지 않을까 싶다. 나와 우리 팀원 모두가 이제는 좀 어려운 길을 가지 않았으면 하지만, 숲 속의 새로운 길을 만들어 가는데 나뭇가지에 찔리고 늪에 빠지고 왔던 길을 되돌아가는 수고로움은 어찌 보면 당연한 것 같다. 역시 두려움 없이, 단합해서, 때로는 무모하게, 일단 해보는 게 중요한 것 같다.


사진을 올리고 보니 더 막막하다. 길이 안 보인다.


한국에서 공유주방이라는 새로운 비즈니스를 우리 회사가 먼저 시작을 했지만, 사실 이게 답이 아닐지도 모른다. 9편에 걸친 나와 공유주방의 이야기가 정말 다 틀린 얘기 일 수도 있다. 그럼에도 우리는 가고 있다. 지금 나와 우리 회사가 하고 있는 일은 새로운 공유주방을 런칭하는 것이다. 사업 초기에 우리가 그렸던 이상적인 모델. 다음 글부터는 우리의 다음 공유주방인 위쿡 사직 지점에 대한 이야기를 풀어보고자 한다.

keyword
작가의 이전글그래서, 공유주방이 뭔데? - 08