brunch

집, 더 이상 갈 곳이 없어지는 곳

세상에서 하나밖에 없는 다가구주택 짓는 이야기 2

by 김정관

우리는 누구나 집에 산다.

바깥에서 지내다가 집으로 가는 게 아니다.

집에서 지내다가 잠깐 밖으로 나간다.

바깥에서 잠시 볼 일을 보고 다시 집으로 돌아간다.

그래서 더 이상 갈 곳이 없어지는 곳, 그곳이 집이다.

-이갑수 산문집 '오십의 발견'


다우와의 첫 만남은 집을 지으려고 하는 한다는 인사만 나누고 헤어졌었다. 그리고 다음 주, 다우는 설계 중인 도면을 가지고 찾아와 다시 자리를 했다. 두 번째 자리였지만 다우와의 만남이라 차를 마시면서 얘기를 나누다 보니 오랜 지기처럼 편안한 분위기로 얘기를 나눌 수 있었다. 먼저 집 짓기를 시작하게 된 연유부터 얘기를 들었다.


다우가 살고 있던 오래된 집을 허물고 새 집을 지으려는 연유는 무엇이었을까? 다우의 절친한 친구가 부동산 중개사인데 근래에 집을 지었다고 했다. 그 친구가 적극적으로 새 집을 지어 살기를 권유해서 마음을 먹게 되었다고 한다. 헌 집을 허물어 새집으로 바꾸어 짓는 단독주택이었다면 단순한 프로그램이 될 수 있었을 것이다. 하지만 땅값이 만만찮은 요즈음 평범한 사람이 시내에서 단독주택을 지어산다는 건 사치일 것이다.


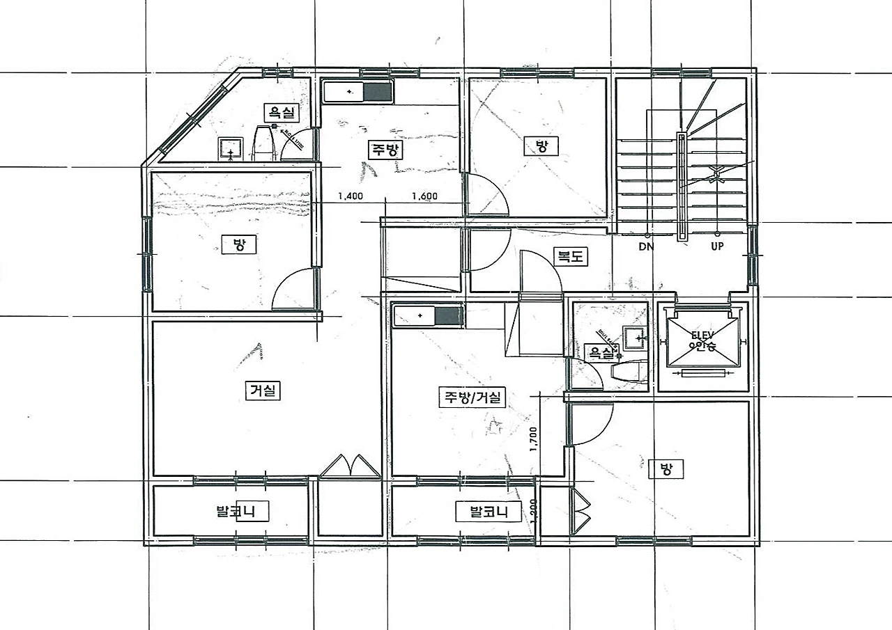
부동산 전문가인 친구의 도움을 받은 집짓기 프로그램은 다가구주택을 짓는 것이었다. 4층 규모로 일층에서 삼층까지는 수익형 다가구주택을, 사 층에는 건축주가 살 세대를 넣는 안이었다. 진행된 설계안을 보니 땅의 크기와 건축법에서 규정한 내용에 따라 일층은 차량 다섯 대를 댈 수 있는 주차장과 원룸 1세대가 들어가고, 이층에는 투룸 1세대와 스리룸 1세대, 3, 4층은 같은 평면구조로 방이 세 개가 있는 아파트 평면으로 짜졌다.


배치 및 일층 평면도


이층 평면도
3,4층 평면도


이미 설계가 진행되고 있어서 전체적인 틀을 흔드는 얘기를 해서는 안 되겠기에 꼭 고쳐야 할 내용만 몇 가지 조언을 했다. 다우가 살 집의 평면도를 살펴보니 안방의 크기는 넓은데 욕실에 변기와 세면대만 들어있었다. 요즘 신축 아파트에는 드레스룸도 갖추어져 있지만 그럴 수 없어도 샤워는 할 수 있도록 조정을 당부했다.


주방을 보니 식탁을 놓을 자리가 없었고 김치냉장고도 놓을 수가 없었다. 거실 앞에 전면발코니도 없어 빨래도 햇볕에 말리고 여름 햇볕도 피하면서 비 오는 날 발코니 문을 열어두고 빗소리를 들을 수 있으면 좋을 것이라 조언을 했다. 이 정도로 얘기를 줄였지만 설계안이 정말 내 마음에는 들지 않았다.


아래층의 임대 세대도 경쟁력이 떨어져 보였지만 얘기를 더하게 되면 설계안을 새로 검토하라는 것이 된다. 그러면 설계를 진행하고 있는 건축사사무소가 곤란해질 수도 있기 때문이다. 수익형 세대의 경쟁력은 집이 지어지고 난 뒤 다우의 미래수입원인데 임대경쟁력이 떨어지면 부동산의 가치도 그만큼 나빠지기 된다. 분양을 하는 다세대주택은 팔고 나면 그만이지만 다가구주택은 월세 가치가 떨어지지 않아야만 자산가치가 유지될 수 있다.


설계자와 친구인 부동산전문가가 검토해서 진행 중인 설계안을 존중해야 했기에 세 가지의 수정 부분만 언급하고 차 이야기로 화제를 돌렸다. 보이차를 마신 지 오래되지 않은 다우는 내가 우리는 차도 맛있게 마시고 차 이야기도 재미있어했었다. 부디 집 짓기에 대한 내 조언이 좋은 집으로 지어지는데 도움이 되기를 바라면서 두 번째 자리를 마무리했다.


그런데 그다음 주에 다우로부터 연락이 와서 다시 만날 시간을 내어달라고 했다. 이미 진행되고 있는 설계에 대해 내가 얘기를 많이 하면 안 되는데 참 곤란한 만남이 이어지고 있다. 왜 다우는 또 시간을 내어달라고 하는 것일까?




집을 어떻게 지어야 할까? 어떤 집을 지어야 좋은 집이 될까? 수익형으로 짓든, 우리 가족과 행복하게 살기 위해 단독주택을 짓든 그 집에 사는 사람이 행복해야 할 것이다. 저녁이 되면 서둘러 돌아가고 싶은 집, 휴일이 되면 집에 있는 것이 제일이라는 사람, 그 사람이 그 집이 바로 행복의 모습이 아닐까 한다. 우리는 더 이상 갈 곳이 없어지는 그런 집에 살고 있을까?

keyword
매거진의 이전글헌 집 다오 새집 줄게