brunch

도심에 짓는 단독주택, 우리집 지을 땅 찾기

도심에 땅값이 비싸도 자투리 땅은 예외일 수 있으니

by 김정관

아파트에 살면서 우리집이라는 생각이 들지 않은 사람, 이미 밤이 깊었는데 집에 들어가고 싶지 않은 사람들이 꿈꾸는 집은 단독주택일 수 있다. 집에서 통학해도 되는데도 굳이 학교 앞 원룸에서 살고 싶다며 독립하려고 떼를 쓰는 아이들, 그러는 건 아파트가 우리집이 아니어서 그러는 게 아닐까? 부모님은 좀 더 같이 살고 싶은데 아이들은 탈출을 꿈꾼다.


집이란, 우리집이라고 하면 밖으로 나가기 싫고 퇴근 시간이 되면 귀가를 서둘러야 한다. 집은 더 이상 갈 곳이 없는 곳이어야 하는데 더 갈 데도 없는 데 서성이며 쉬 돌아가려고 하지 않는다. 아파트가 사람들을 밖으로 내쫓는지 밖으로 나가려고만 하니 집은 잠만 자는 숙소에 그치고 있다. 그렇더라도 도시에서 단독주택에 산다는 건 언감생심 꿈도 꾸지 못하는 게 우리네 집의 현실이다.


도심에 우리집 지을 적당한 땅이 있을까?


출근하고 통학해야 하는 연령대의 가족은 도시 외곽으로 나가서 사는 건 불가능하다. 도시에서 단독주택을 지어 살아보려는 건 땅값 때문에 엄두를 내지 못한다. 그래서 별 수 없다며 포기하고 아파트에 살아야 하나? 뜻이 있으면 길이 있다고 하니 어디에 있을지 모르지만 우리집 지을 땅을 한번 찾아보자.


멀쩡하게 생긴 땅이라면 지가를 물어볼 필요 없이 우리집 지을 땅이 아니니 곁눈질도 할 필요가 없다. 누가 봐도 집 지을 땅이 아니게 생긴 땅이라면 혹시 우리 몫이 될 수 있지 않을까? 한 개 층을 스무 평 정도 앉힐 수 있는 땅, 모양이 제멋대로 생겨서 아무도 돌아보지 않는 땅이라면 파는 사람이 던지듯 내놓지 않을까? 다만 집터 주변은 아이들이 통학하는데 지장이 없어야 한다.


아파트 평면처럼 반듯한 평면을 놓기 어려운 땅은 대부분 눈길을 주지 않는다. 그런 땅에 누구라도 부러워할 집을 지을 수 있으면 그야말로 대박일 것이다. 땅값의 평가는 집을 어떻게 짓느냐에 따라 달라지므로 우리집을 남들이 부러워하도록 지을 수 있다고 믿어보자. 물론 대지 조건이 나쁜 땅에 누구라도 부러워할 집을 짓는 건 쉽지 않은 일이다.


열악한 대지 조건에 남들이 부러워할 집을 지으려면 말할 것도 없이 그만한 설계가 뒷받침이 되어야 할 것이다. 결국 능력 있는 건축사를 만나야만 가능한 일이다. 모양만 특이한 게 아니라 우리 식구가 모두 만족하게 살 수 있는 집이라는 필요조건이 충족되어야 한다. 그런 설계를 할 수 있는 능력을 가진 건축사를 찾을 수 있으면 자투리 땅을 찾아 도심에서 단독주택을 우리집으로 지을 수 있겠다.



아파트와 다르게 살 수 있어야 단독주택



단독주택에서 살면 아파트와 다른 일상을 보낼 수 있을까? 그건 당연한 명제라고 할 수 있다. 단독주택을 지어 살면서 차라리 아파트에서 그냥 사는 게 나았을 것이라며 후회하고 있는 집이 적지 않다. 아파트는 언제 팔아도 제 값을 받을 수 있지만 단독주택은 원가를 보전하는 것도 장담하기 어렵다. 그렇지만 우리집을 방문해 본 지인들이 이런 집에 살았으면 좋겠다고 부러워한다면 집의 가치는 비교할 대상이 없다고 볼 수 있다.


아파트는 살기에는 편하지만 우리집이라는 애착을 가지는 건 어렵다. 단독주택은 잘못 지으면 애물덩어리가 되고 말지만 제대로 설계해서 지은 집이라면 아파트에는 다시 들어갈 수 없다고 한다. 자화자찬인 얘기지만 필자가 설계해서 지은 집에서 20년 가까이 살고 있는 건축주에게 “아직 이 집에 살고 있네요.”라고 얘기하니 "이제 아파트는 물론 다른 집에서는 살 수 없어요"라고 했다.


팔자가 설계해서 지은 에코델타시티 상가주택 이안정 3층에 있는 단독주택 마당, 공중에 떠 있는 집이지만 마당을 들여 우리집으로 사는 즐거움을 누리고 있다.


단독주택에서 살고 싶은 사람들이 꿈꾸는 일상은 어떤 삶일까? 우리집이 천국이라서 집 밖에 나가기 싫다고 하는 말로 함축해 보면 되겠다. 일찍 독립해 나간 아이들도 잘 오지 않는 집, 밤이 늦었는데도 식구들이 돌아오지 않는 집, 모처럼 함께 밥을 먹는 휴일에도 외식하느라 집을 나서는 집이 아파트가 아닌가? 그 반대로 살 수 있는 집을 지을 수 있으면 천국 같은 집이라 하겠다.


상가주택을 여러 채 설계하면서 도심 단독주택을 여러 유형으로 작업해서 좋은 반응을 얻었다. 상가주택의 최상층에 있는 단독주택은 땅에 접하지 못하고 공중에 뜬 집이지만 아파트보다 살기 좋은 집이 되도록 설계한 결과는 성공적이었다. 발코니도 없는 아파트와 다르게 작지만 마당을 두고 거실을 침실과 독립된 영역으로 나누니 세상에 하나밖에 없는 우리집이 되었다.



아무도 돌아보지 않은 땅이 우리집 지을 대지



'이런 땅에 집을 짓는다고?' 할 만큼 막막한 조건을 가진 땅을 들고 건축주가 찾아왔었다. 땅의 생김새도 제멋대로인 데다 도로에 접한 긴 변이 정서향에 대지에 접한 도로도 경사진 조건이었다. 대지 폭 마저 좁아서 평면 구성도 자유롭지 못할 테니 과연 ‘행복이 가득한 집’을 지을 수 있을까 싶었다. 젊은 건축주는 건축사에게 절대적인 신뢰와 설계에 대해 전권을 주었지만 부담되는 과제를 만났었다.


내가 단독주택을 설계하면서 포기하지 않고 적용하는 세 가지 원칙이 있다. 첫째는 절대 남향집으로 살기, 둘째는 거실채와 침실채 나누기, 셋째는 실내와 이어지는 마당 가지기이다. 아무리 대지 조건이 열악해도 이 세 가지가 적용되도록 애쓴다. 과연 서향으로 길면서 폭이 좁은 데다 모양마저 별난 대지에 이 세 가지 조건이 적용된 단독주택을 설계할 수 있을까?


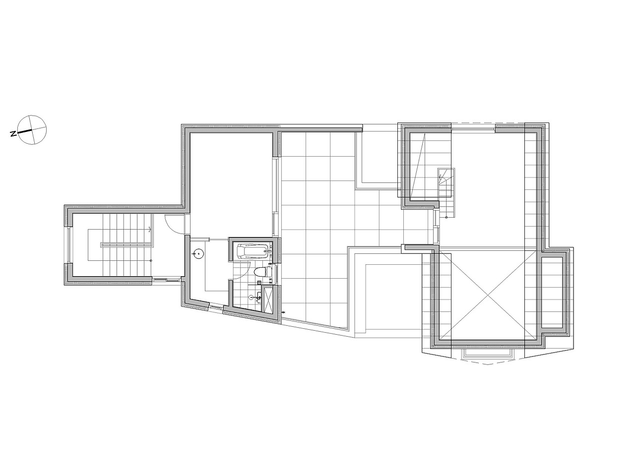
필자가 설계한 문현동 상가주택 양명재, 땅 모양도 그렇지만 대지는 서향으로 면해 단독주택을 지을 수 있는 여건은 생각하기 어렵다
양명재 2층 평면도, 단독주택 아래층으로 마당을 두면서 정남향 집으로 변신했다. 거실은 침실 영역과 채 나눔으로 구분되어 손님이 와도 오래 머물 수 있다.
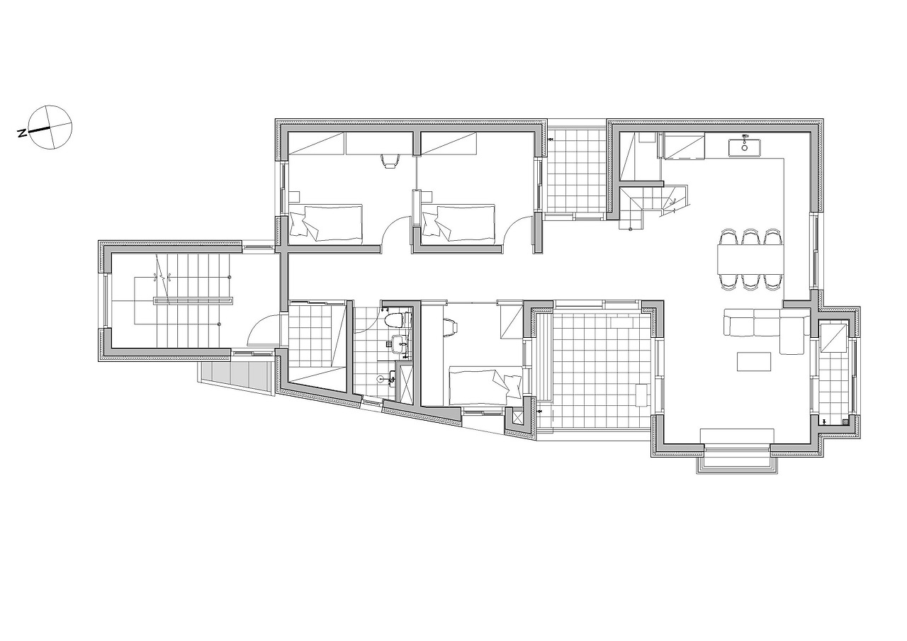
양명재 3층 평면도, 부부 침실은 3층에 두어 정 남향으로 옥상 마당을 앞에 두었다. 거실에서 다락을 통해 부부 침실로 연결된다.
양명재 전경-정남향 햇살이 집 안을 가득 채우고, 밤에는 마당에 불빛이 가득하니 온 식구들이 행복한 일상을 누리고 있음을 엿보는 듯하다.
대형 평수 아파트에서도 얻을 수 없는 거실의 높은 공간감과 마당에서 보내는 일상은 양명재가 단독주택이라서 얻는 행복이라 하겠다.


대지의 폭이 가장 넓은 쪽에 거실을 두면서 마당을 넣으니 남향집이 만들어졌다. 작은 마당은 거실 영역과 침실 영역을 분리하는 역할을 하면서 남향의 양명한 햇살을 집안에 들일 수 있게 한다. 아직 초등학생인 아이들은 여름이면 마당에서 물놀이도 할 수 있겠고 휴일이면 고기를 구워 파티도 열 수 있을 것이다. 거실채는 경사지붕으로 실내는 적당한 높이로 공간감을 가지면서 넉넉한 다락을 쓸 수 있게 했다.


부부 침실은 이층에 둘 수 없는 건축면적이라 삼층에 두었다. 이 방은 옥상 마당으로 완전한 남향으로 별채나 다름없다. 거실채에서 다락을 통해 부부침실로 이어지는 경로도 이 집에서 사는 매력이라 하겠다. 옥상 마당은 장독대도 두고 루프탑가든으로 꾸며 우리 집만의 특별한 외부공간으로 쓸 수도 있다. 양명재陽明齋라는 당호처럼 이 집은 밝은 남향햇살이 온종일 집안을 채운다.




누가 이 땅을 집 지을 조건이 아니라고 했나? 아니 이런 건축적 해법이 아니었으면 집을 지어도 서향 햇볕에 시달리며 살아야 했을 것이다. 땅을 사고 집 짓는 돈으로 아파트에 사는 게 나았을 것이라 후회할 집을 지었으면 어쩔 뻔했을까? 그렇지만 양명재에서 보내는 일상은 이보다 더 좋은 단독주택이 없을 것 같다는 '집부심'으로 집 자랑을 해도 좋을 것이다.


이제 도심에서 우리집 지을 땅을 찾아보자. 남향 대지가 아니라도 좋고, 땅 모양이 제멋대로 생겨도 좋다. 대지 주변이 오래 살아도 좋을 여건이라면 그만이다. 아파트에서 벗어나서 우리 가족이 집에서 행복하게 살고 싶다면 누구도 눈여겨보지 않는 집터를 찾아보자. 그런 땅을 찾았다면 당연히 해결사는 건축사가 되어야 하는데 어디에 있을까?




설계 -도반건축사사무소 건축사 김정관 (T 051-626-6261)

시공 -단단한종합건설 대표 이재남

keyword
매거진의 이전글우리 가족 나무