brunch

Joyful 혹은 잡초-풀 하우스를 결정하는 마당 설계

여성경제신문 '더봄' 연재 - '김정관의 단독주택 인문학' 24

by 김정관

전원주택을 일러 ‘풀하우스’라고 부르기도 하는데 POOL HOUSE가 아니라 잡초-풀과 함께 살아야 하는 집이라는 말이다. 잘 깎아진 잔디 마당이 있는 단독주택을 사진으로 보고 환상을 현실로 옮겨서 집을 지은 결과를 빗댄 말인 것이다. 넓은 잔디 마당을 꿈꾸며 집을 지었다면 집은 곧 주체하기 어려운 짐이 되고 만다.


단독주택을 설계할 때 건물과 마당의 관계를 제대로 살피지 못하면 집에서 보내는 시간이 즐거울 수 없게 된다. 내가 살고 싶은 집을 지으려고 한다면 건물 설계만큼 마당 설계에 관심을 가져야 한다. 집이 아니라 짐이 되고, Joyful이 아니라 잡초-풀과 전쟁을 벌이고 사는 게 마당 때문이라는 걸 단독주택에 살아본 사람이라면 다 아는 사실이다.


한옥에서 배우는 마당의 쓰임새


한옥에서 마당은 집 밖의 외부 공간이 아니라 지붕 없는 집 안이다. 한옥은 대문을 열고 들어서면 다른 나라의 주택에는 없는 공간인 마루가 먼저 보인다. 안채에는 대청마루, 사랑채에는 사랑마루가 있다. 마루는 벽 없이 지붕만 있는 외부적 내부 공간인데 마당과 방을 잇는 중간 영역이다.


사랑채의 방은 마루와 이어지는 문은 여름에는 들어 올려 확장해 하나의 공간으로 쓴다. 이렇게 방문을 개방해서 쓸 수 있는 건 마당이라는 외부 공간이 있기 때문이다. 방과 마루, 마루와 마당이 각각 내부 공간과 외부 공간으로 중첩되어 쓰임새를 가진다. 마당은 다시 담장 밖에 대해 외부적 내부공간이 되면서 집의 쓰임새가 확대된다.


경주 양동마을 관가정 배치도. 집터 한가운데에 건물이 놓여있고 마당과 실내가 이어지는 집 안팎의 공간 얼개를 주목해 보면서 이 시대의 단독주택과 비교해 보자.
경주 양동마을 관가정 대문칸에서 본 안채.jpg 관가정 안채, 대청마루와 안마당이 집의 안팎 영역을 중중무진으로 이어지는 걸 볼 수 있다. 마당은 집 밖에서는 안, 대청은 마당에서는 안이지만 방에서는 밖의 영역이다. 사진:서경원


옛날에는 마당에서 이루어지는 집안일이 많았다. 길흉사 등 대소사는 물론이고 가내 제례는 대청마루와 안마당, 부엌일도 정지마당과 이어진다. 사랑 마당이 없으면 사랑채를 개방적으로 쓰는 건 어려웠을 것이다. 그래서 한옥의 마당은 쓰임새가 부여되어 있으니 비워져 있는 게 당연했다.


한옥은 마당에서 바로 방으로 드나들었다. 그래서 건물은 집터의 가운데 배치되었고 실내 영역과 연관되어 기능이 부여된 마당이 있었다. 한옥의 조영에서 건물은 마당을 염두에 두고 배치해야 했을 것이다. 한옥의 규모가 중국이나 일본의 옛집에 비해 적은 건 마당을 집의 일부로 썼기 때문이라고 본다.


이 시대의 한옥으로 짓는 단독주택의 마당


전국 곳곳에 한옥 마을을 조성해서 짓고 있다고 한다. 심지어 수십 층으로 한옥빌딩을 지으면 어떻겠느냐고 하는 제안을 SNS로 접하기도 한다. 외관을 목조 기와로 짓는 게 우리 전통을 잇는 집이라고 할 수 있을까? 목조를 외관에 노출해서 단독주택을 지으면서 처마를 충분하게 내지 않으면 유지 관리에 문제를 안게 된다.


한옥은 조상들이 살았던 옛집인데 외관만 비슷하게 짓는다면 이 시대의 주택으로 어떤 점에서 좋을까 싶다. 모양새를 따라 짓는 걸 탓할 수는 없지만 한옥의 전통을 잇는 건 쓰임새를 잘 살펴야 할 것이다. 한옥에서 배울 수 있는 게 한두 가지가 아니지만 그중에 마당은 우리 주거에서 꼭 받아들여야 할 부분이다.


20190904_231346.jpg 필자 설계 경남 양산 소재 단독주택 심한재 배치도, 한옥에서 가져온 배치의 지혜를 담았다. 건물은 집터의 가운데 앉히고 내부 공간과 외부 공간이 연관되어 기능이 부여된다.


1496130468428.jpg 단독주택 심한재 조감도, 사랑채는 거실채로 대체되었고 안채는 침실채로 구분되어 한옥의 채 나눔을 채용해서 설계하였다. 내부 공간과 외부 공간도 각 영역으로 나뉘어 관계를 맺는다
심한재2전경거실부분.jpg 단독주택 심한재 정면, 거실채는 목재 덱을 통해 마당과 이어지고, 침실채의 서재는 툇마루를 통해 달빛 정원으로 드나든다. 일층의 실내 공간은 어디서나 마당으로 영역이 이어진다.


집터 가장자리를 따라 담장을 둘러서 마당을 만들어 쓰는 건 우리나라 주택의 특징이라고 할 수 있다. 한옥에서 건물을 집터의 가운데 배치해서 실내 공간과 마당의 관계 맺기를 하고 있음에 주목할 필요가 있다. 마당과 실내 공간을 붙여서 기능을 부여하게 되면 집의 쓰임새가 아주 다양해진다. 한옥은 내부와 외부의 중간 영역으로 마루가 있어서 집의 안팎을 자연스레 이어주고 있음도 주목할 필요가 있다.


단독주택을 설계하면서 한옥을 잘 살펴서 집의 쓰임새를 연관시켜 보면 어떨까? 거실을 사랑채, 부부 영역을 안채, 주방을 정지로 개념을 부여하면 마당의 역할도 나오게 된다. 거실과는 큰 마당, 부부 영역의 서재는 작은 뜰, 주방과 다용도실에는 뒤뜰을 두면 여러 가지 용도의 마당이 만들어진다. 사랑채와 사랑마당, 안채와 안마당, 정지와 정지마당이 이 시대의 단독주택에 살아 숨 쉰다.


쓰임새가 주어진 마당은 집에 생기를 불어넣는데


넓은 마당에 초록 잔디가 펼쳐진 단독주택에서 살고 싶었던 사람이 그 꿈을 실현하고 나면 행복하게 살 수 있을까? 마당이 넓은 집일수록 잡초와의 싸움에 골병이 들고 있을 게 틀림없다. 오죽하면 풀과의 전쟁이라고 표현할까? 한 여름에는 집 밖에서 움직이는 일이 어렵다고 방치하다가는 잔디 마당은 풀밭이 되기 일쑤이다.

마당을 넓게 쓰려고 건물을 한쪽으로 붙여 배치를 하게 되면 내부 공간과 외부 공간은 역할을 주고받을 수 없게 된다. 마당에 쓰임새가 주어지지 못하게 되니 잔디 관리라는 일만 만들어지는 셈이다. 넓은 잔디 마당에서 무엇을 할 수 있을까? 초록색으로 잘 깎인 잔디 마당이 단독주택에서 생활하는 데 특별한 역할을 할 게 없지 싶다.


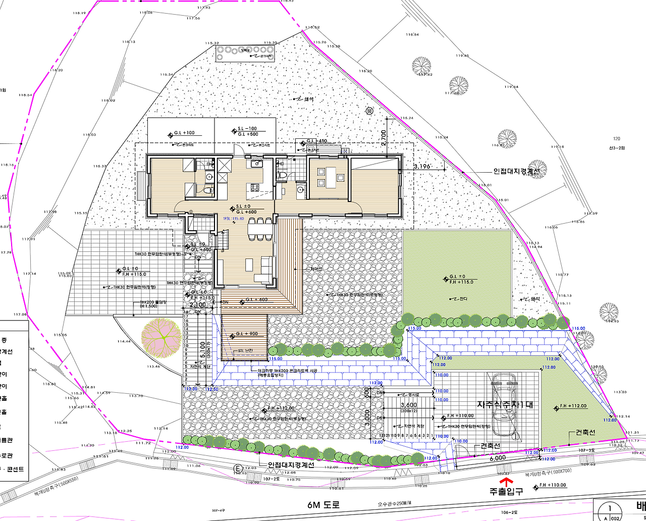
석경수헌 배치 평면도.png 필자 설계 경남 양산 단독주택 석경수헌 배치도, 300평 넓은 대지에 30평 집을 지으면서 한옥의 배치 기법을 적용했다. 안마당만 잔디를 깔고 나머지 외부 공간은 포장되어있다
20220830_113301.jpg 석경수헌의 잔디가 깔린 안마당, 일흔이 넘은 건축주는 전원주택에서 풀과 다투며 살 수 없을 것이다. 잔디는 안마당에만 깔고 나머지 외부 공간은 모두 포장해서 Joyful House


우리나라 단독주택의 근원은 한옥에서 비롯된다고 보고 마당의 쓰임새를 찾아내면 정답이 나오게 된다. 일층의 내부 공간과 연계해서 마당의 기능을 부여해 보면 집의 쓰임새가 풍성해진다. 한옥의 배치가 집터의 가운데 건물이 있고 사랑채, 안채, 정지 등이 크고 작은 마당과 연계되어 쓰는 걸 보면 되겠다. 잔디가 깔리는 마당을 적당하게 두고 다른 마당은 포장해서 관리에 대한 부담을 줄이면 좋겠다.


거실과 테이블이 놓이는 곳은 데크를 깔고, 서재 앞에는 작은 뜰을 만들자. 주방과 다용도실에는 뒤뜰을 넓게 두어 장독대, 텃밭을 두면 집에서 지내는 시간이 즐거워진다. 단독주택에서 지내게 되는 나이는 은퇴에 가까우니 집에서 할 일이 많아야 한다. 마당에 다양한 기능이 주어지면 그만큼 할 일이 많아지니 단독주택 생활에 생기가 넘치게 될 것이다.




우리나라의 단독주택이 다른 나라의 그것과 확연하게 다른 점은 마당이라는 외부 공간이다. 전통 주거라는 측면에서 중국, 일본과 우리나라의 옛집을 비교해 보면 큰 차이를 볼 수 있다. 집의 외부 공간을 일본에서는 정원으로 쓰고, 중국은 중정으로 채광 공간과 통로로 쓴다. 우리나라의 한옥에서 마당은 내부 공간과 이어져 집의 쓰임새가 완성된다.


일본이나 중국의 옛집은 내부 공간과 외부 공간의 쓰임새는 별개이다. 그래서 건물의 규모가 중국이나 일본에 비해 한옥이 작지만 마당의 기능이 더해져서 쓰임새는 훨씬 풍성하다. 안채의 대청이나 사랑채 마루는 마당과 방을 잇는 외부적 내부 공간으로 그 쓰임새가 독특하다. 한옥을 조상들이 살았던 옛집으로 치부할 게 아니라 우리나라 단독주택의 근원이니 마당을 잘 살펴서 이 시대의 집에 적용하면 잡초-풀하우스가 아니라 Joyful House가 될 것이다.


여성경제신문 '더봄' 연재 - '김정관의 단독주택 인문학' 24

원문 읽기 : https://www.womaneconomy.co.kr/news/articleView.html?idxno=237124



keyword
매거진의 이전글마당이 있어 편히 숨 쉴 수 있는 도심 단독주택