brunch

'넓은 포치의 매력' 53평 속초 노학동 전원주택 완공

#22 홈트리오 시공사례 - 건축비 : 28,100만 원

by 이동혁 건축가

*구독 버튼은 필수인 것 다들 아시죠^^

HC023-3871r.jpg

제목 : '넓은 포치의 매력을 느끼다' 53평 속초 노학동 전원주택 완공

소제목 : #22 홈트리오 시공사례 - 건축비 : 281,000,000원


STORY

: 바람 냄새가 기분 좋게 불어오는 곳. 속초의 노학동에 홈트리오의 전원주택이 자리를 잡았습니다.

타 어느 지역보다도 공기 하나는 최고로 좋다고 느끼는 곳. 바로 속초.

"그거 아시나요?"

속초, 양양, 강릉 쪽은 서울 미세먼지가 최고조에 달해 있을 때도 이곳들은 깨끗하다는 것을요. 미세먼지가 산맥을 넘어오지 못해 깨끗한 공기를 계속 유지하고 있다네요. 혹 미세먼지를 피해 여행 오고 싶으신 분들은 이곳들을 선택하시기 바랍니다.

건축가라는 직업 덕분인지 정말 전국 곳곳을 돌아다닙니다. 특히 전원주택을 짓고자 하는 곳들은 양지바르고 정말 명당이라고 할 수 있는 곳들이 많다 보니 혼자서 좋다고 하는 땅들은 다 보고 다니는 것 같네요.

저도 어서 양지바른 땅을 하나 구입해서 제 집을 지었으면 좋겠는데. 중이 제 머리 못 깎는다고 건축업을 하면서도 정작 제 집을 못 짓고 있네요.

이번 속초 주택을 설계하면서 일반적이지 않은 디자인으로 설계하되, 가성비는 높이고, 하자율은 최대한 줄일 수 있는 방안은 없을까(?)를 많이 고민했습니다.

말은 쉽지만 매번 프로젝트를 진행할 때마다 스트레스받는 부분입니다. 이번 속초 주택은 모던 스타일을 기반으로 가져가되, 전면부의 볼륨감을 최대한 줄 수 있는 디자인으로 탄생될 수 있도록 설계 방향을 잡았습니다.

1층의 넓은 포치와, 2층의 지붕형 발코니 적용으로 깨끗하게 정리된 전면부에 볼륨감이라는 생명력을 불어넣어주었으며, 기본 외장톤을 화이트로 가져가지만 창문을 블랙 랩핑 하여 저희 말로 아이라인을 그려주어 또렷한 인상을 남겨줄 수 있도록 했습니다.

이번 주택의 전면부에 사용된 포인트는 딱 2가지입니다. 리얼징크와 세라믹 사이딩. 디자인적 요소로 적용될 수 있는 부분으로 설계하였으며, 과하지 않은 포인트 비용 선 안에서 설계를 마무리하였습니다.

이러한 포인트들은 기능적인 부분보다는 단순히 디자인적으로 적용했다고 보는 것이 맞습니다. 많은 사람들이 비싼 외장재를 사용하면 무조건 기능적으로 더 좋을 거야(?)라고 생각하시는데 절대 그렇지 않습니다. 외장재는 말 그대로 외장재일 뿐. 방수와 단열 부분은 내부에 따로 층이 존재합니다.

매번 외장재에 대한 비용을 줄이라고 이야기드리는데요. 이 부분에 대해서 반대의견을 내시는 분들도 많더라고요. 물론 그분들이 하는 이야기도 맞습니다. 서로 틀린 것이 아닌 다름을 이야기하고 있음을 이해하시면 좋을 것 같습니다.

예산이 좀 남는 분들은 얼마든지 외장재에 투자하셔도 좋습니다. 벽돌이나, 사이딩 종류처럼 그 자재만을 사용해야만 그 느낌이 나는 디자인들이 있습니다. 항상 이야기하듯 디자인은 개인의 취향입니다. 정답이라고 부를 수 있는 부분이 아니니 여러분들은 개인의 취향과 예산에 맞추어 집을 디자인하시면 되십니다.

간혹 제 글의 댓글에서 서로 막 싸우시는 분들이 계신데. 두 분 다 정답 맞습니다. 서로의 취향 차이라고 생각해주시고 싸우지들 마세요.

글이 길어졌죠. 직접 평면도와 사진을 보면서 좀 더 공감될 수 있는 시간을 가지시길 바라겠습니다.


SPEC

공법 : 경량 목구조

지붕마감재 : 아스팔트 슁글 / 외벽 마감재 : 스타코플렉스 / 포인트 자재 : 파벽돌, 세라믹 사이딩, 리얼징크

실내 벽 마감재 : 실크벽지/ 실내 바닥마감재 : 강마루

창호재 : 미국식+독일식 3중 시스템창호

건축면적 : 176.55㎡(지상 1층 : 118.53㎡, 지상 2층 : 58.02㎡)

예상 총 건축비 : 281,000,000원(부가세 포함, 산재보험료 포함 / 설계비, 인허가비, 구조계산 설계비 별도)

설계비 : 7,950,000원(부가세 포함) / 인허가비 : 5,300,000원(부가세 포함)

구조계산 설계비 : 5,300,000원(부가세 포함) / 인테리어 설계비 : 5,300,000원(부가세 포함)

*건축비 외 부대비용 : 대지구입비, 가구(싱크대, 신발장, 붙박이장), 기반시설 인입(수도, 전기, 가스 등), 토목공사, 조경비 등


HC023-3777r.jpg (좌측부터) 이동혁 건축가, 임성재 건축가, 정다운 건축가


이동혁 건축가 : 포치라는 공간은 매우 매력적인 부분이라 할 수 있습니다. 한옥의 경우 처마가 길게 뻗어나가면서 포치의 역할을 자연스럽게 했었는데 최근 짓는 집들은 면과 면이 딱 맞아떨어지다 보니 처마라는 공간도 별도로 만들어 주어야만 생성이 되는 상황이 되었습니다. 이번 주택의 경우 모던 스타일의 전원주택으로서 전면부의 면을 깔끔하게 디자인하되 포치와 발코니라는 디자인적 설계요소를 넣어주어 입체감을 살린 모델이라 할 수 있습니다. 비가 올 때 포치 처마 아래에 앉아 커피 한잔 마시는 시간. 어찌 보면 가장 전원생활에 있어 매력적인 시간이지 않을까 생각됩니다.

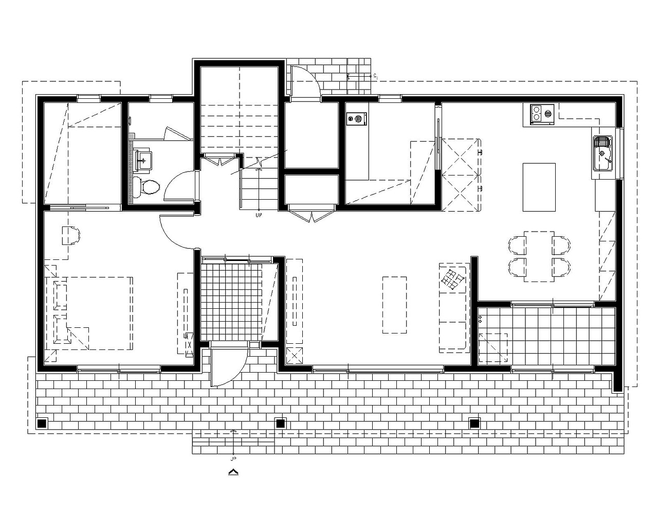
정다운 건축가 : 이 집 평면은 주방이 핵심입니다. 옛날에는 거실이 집의 중심 역할을 했다면 지금은 주방을 집의 핵심 공간으로 설계를 합니다. 책을 읽고, 요리를 하고, 수다를 하며 가장 많은 시간을 보내는 공간 중의 하나이기 때문입니다. 거실과 주방을 현관에서 바라보았을 때 시각적인 오픈 감을 주되, 다용도실 안쪽으로 공간을 구성해주어 문이 없더라도 공간 분리는 자연스럽게 이루어질 수 있게 했습니다. 외부로 이어지는 동선도 있어야겠지요. 데크와 포치까지 이어지는 동선을 만들어 가든파티를 언제든지 열 수 있도록 설계하였답니다.

임성재 건축가 : 2층 공간에 발코니를 넓게 구성해 주었어요. 자녀들을 위한 2층 공간이기 때문에 1층에 내려오지 않더라도 외부 공기를 만끽할 수 있는 공간을 만들어 준거예요. 이 정도 공간이면 티테이블을 놓고 차 한잔 마실 수도 있고요. 자그마한 화초도 키울 수 있는 공간이랍니다.


Floor Plan

1층.jpg 1층 평면도
2층.jpg 2층 평면도


HC023-3748r.jpg
HC023-3750r.jpg
HC023-3754r.jpg
HC023-3755r.jpg
HC023-3764r.jpg
HC023-3795r.jpg
HC023-3796r.jpg
HC023-3798r.jpg
HC023-3799r.jpg
HC023-3800r.jpg
HC023-3802r.jpg
HC023-3803r.jpg
HC023-3804r.jpg
HC023-3805r.jpg
HC023-3807r.jpg
HC023-3811r.jpg
HC023-3813r.jpg
HC023-3815r.jpg
HC023-3816r.jpg
HC023-3819r.jpg
HC023-3821r.jpg
HC023-3822r.jpg
HC023-3823r.jpg
HC023-3825r.jpg
HC023-3826r.jpg
HC023-3827r.jpg
HC023-3828r.jpg
HC023-3829r.jpg
HC023-3831r.jpg
HC023-3832r.jpg
HC023-3833r.jpg
HC023-3834r.jpg
HC023-3835r.jpg
HC023-3836r.jpg
HC023-3837r.jpg
HC023-3839r.jpg
HC023-3840r.jpg
HC023-3842r.jpg
HC023-3844r.jpg
HC023-3845r.jpg
HC023-3846r.jpg
HC023-3847r.jpg
HC023-3848r.jpg
HC023-3850r.jpg
HC023-3855r.jpg
HC023-3857r.jpg
HC023-3858r.jpg
HC023-3861r.jpg
HC023-3864r.jpg
HC023-3865r.jpg
HC023-3866r.jpg
HC023-3871r.jpg
HC023-3876r.jpg
HC023-3879r.jpg
HC023-3880r.jpg
HC023-3777r.jpg (좌측부터) 이동혁 건축가, 임성재 건축가, 정다운 건축가

집이라는 본질적인 가치를 추구합니다." Design by 홈트리오(주)

KakaoTalk_20191210_164551850.jpg

상담문의 : 1522-4279

강연문의 : sunsutu@hanmail.net

홈페이지 : http://hometrio.kr/


'젊은 전원주택 트렌드 2'

http://www.kyobobook.co.kr/product/detailViewKor.laf?ejkGb=KOR&mallGb=KOR&barcode=9791164359431&orderClick=LET&Kc=


keyword