'푸른 하늘빛을 머금다' 40평 강화 전원주택 완공

#22 홈트리오 시공사례 - 건축비 : 22,200만 원

by 이동혁 건축가

*구독 버튼은 필수인 것 다들 아시죠^^

HC024-4026r.jpg

제목 : '푸른 하늘빛을 머금다' 40평 강화군 대산리 전원주택 완공

소제목 : #22 홈트리오 시공사례 - 건축비 : 222,000,000원


STORY

: 강화도. 섬이라는 특수성.

그 아름다운 공간에서 전원생활을 이어나간다는 것.

새로움의 시작이자 활력을 얻는 시발점. 어떠한 집으로 이 토지를 채울까 많은 고민을 했습니다. 자연경관을 해치지 않으면서 원래부터 그 자리에 있었던 듯한 느낌의 집.

무던하면서 본인의 색깔을 스스로 빛낼 수 있는 집.

하얀 무명옷에 단 하나의 포인트만을 준 듯한 그러한 느낌의 집. 이번 주택은 그러한 느낌을 내포한 주택으로 설계 시작하였습니다.

잡지나 유명인 분들의 집을 가끔 보면 정말 휘양 찬란하고 온갖 고급 자재들로 마감되어있고... 솔직히 부럽습니다. 좋은 것을 보고 "저거 안 좋아요"라고 하는 것은 거짓말이겠죠. 이게 솔직한 답변일 거예요. 헤헤

문제는 우리들의 현실은 좋은 것, 그리고 비싼 것들만을 사용해 집을 지을 수 없다는 것이겠죠. 적정선에서 가성비 높은 자재들을 이용해 우리 집을 완성시키는 것. 어찌 보면 실용주의 건축가의 한 사람으로서 이 문제들을 풀기 위해 건축을 하고 있는지 모르겠습니다.

어떤 분이 저에게 그러더라고요.

"우리 집을 너무 좋게는 말고 중급으로 지어주세요."

하...

어려워요. 건축주님의 원하는 중급의 기준이 무엇인지 모르겠어요. 죄송합니다.

그래서 보통 첫 번째 상담의 경우 계약 미팅이 아닌 공부의 시간으로 진행됩니다.

건축주님의 머릿속에 혼재되어 떠돌아다니는 정보들을 한 곳으로 모으고 현재 가진 예산으로는 택도 없다는 살벌한 현실을 깨닫게 하는 시간을 2시간 정도 가지게 됩니다.

"죄송합니다. 나중에 당황하시는 것보다는 지금 알고 가시는 게 속 편하세요."

집을 공짜로 지어주는 사람은 이 세상에 존재하지 않습니다. 아무런 마진을 남기지 않고 건축주님의 집을 지어주는 천사 같은 사람도 정말 죄송하지만 존재하지 않습니다. 적정 마진은 어떠한 사람들이든 보게 되어있고 정확한 가격에 계약된 대로 시공만 해줘도 이 사람은 잘하고 착한 사람이라고 생각합니다.

맞아요. 우리는 현실을 깨닫고 현실에 맞게 집을 지어야 합니다.

"저 집은 왜 저렇게 지었나 몰라? 나 같으면 절대로 저렇게 안 지어!"

"나는 해외 풀빌라처럼 창 크게 내고 디자이너블 하게 기하학적 디자인으로 집 지을 거야"

올라가고 있습니다. 쭉쭉쭉~

여러분도 들리시죠? 건축비 올라가는 소리.

보통 집을 짓는다라고 하면 부자가 아닌 이상 '시장가'라는 집짓기 비용 안에서 집을 완성시킵니다. '시장가'라는 평균치는요 나뿐만 아니라 정말 많은 사람들이 이 정도는 괜찮은 집이야라고 생각하고 지은 후 만들어진 평균값입니다. 다시 말해 어느 정도 가성비도 있고 검증된 형태의 집 영역이라고 표현할 수 있겠네요.

저는 조언합니다.

"욕심내지 않고 비워내도 충분히 좋은 집이 될 수 있습니다."

"외관에 너무 치중하지 않아도 됩니다. 남에게 잘 보일 이유는 없으니까요."

"차라리 돈을 아끼세요. 그리고 여유자금으로 가지고 계세요."

"저 돈 많이 벌게 안 해주셔도 돼요. 외벽에 무언갈 덜 붙여서 건축비 다운시키세요."

"내장재에 돈 많이 안 쓰셔도 돼요. 벽지 해도 충분하고 강마루 해도 충분해요. 차라리 좋은 가구를 사서 사용하세요."


SPEC

공법 : 경량 목구조

설계, 시공 : 홈트리오(주) / 상담문의 : 1522-4279

지붕마감재 : 아스팔트슁글 / 외벽 마감재 : 스타코플렉스 / 포인트 자재 : 파벽돌

실내 벽 마감재 : 실크벽지/ 실내 바닥마감재 : 강마루

창호재 : 미국식 3중 시스템창호

건축면적 : 133.37㎡(지상 1층 : 72.76㎡, 지상 2층 : 60.61㎡)

예상 총 건축비 : 222,000,000원(부가세 포함, 산재보험료 포함 / 설계비, 인허가비, 구조계산 설계비 별도)

설계비 : 6,000,000원(부가세 포함) / 인허가비 : 4,000,000원(부가세 포함)

구조계산 설계비 : 4,000,000원(부가세 포함) / 인테리어 설계비 : 4,000,000원(부가세 포함)

*건축비 외 부대비용 : 대지구입비, 가구(싱크대, 신발장, 붙박이장), 기반시설 인입(수도, 전기, 가스 등), 토목공사, 조경비 등

HC024-3995r.jpg (좌측부터) 이동혁 건축가, 임성재 건축가, 정다운 건축가

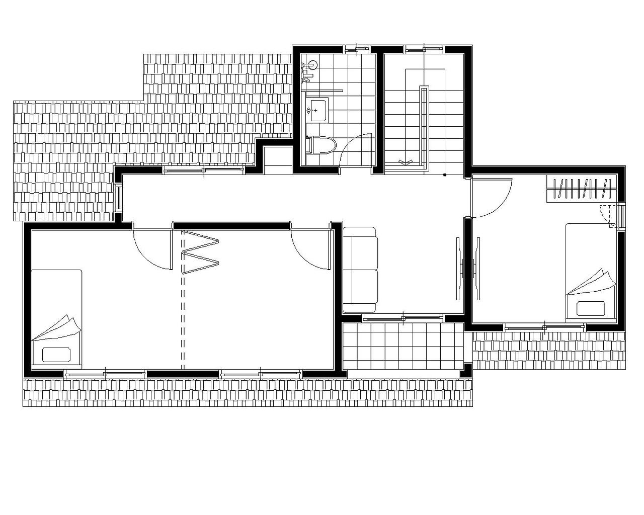
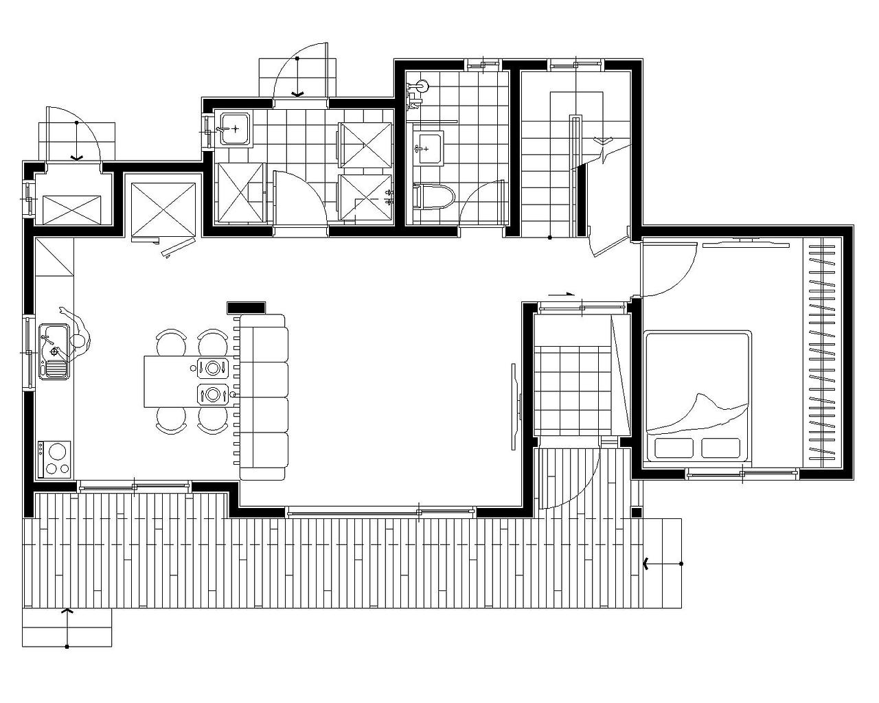
Floor Plan

1층 평면도.jpg 1층 평면도
2층 평면도.jpg 2층 평면도

이동혁 건축가 : 두 자녀를 둔 4인 가족 집. 자녀가 커서 조금 있으면 분가해야 하는 집은 이번 주택 평면을 잘 보시면 좋습니다. 2층 방 부분을 폴딩도어 형식으로 가벽을 구성해 놓았으며, 자녀가 거주할 동안에는 폴딩도어를 닫아 구분해 공간을 사용하고 추후 분가했을 경우에는 폴딩도어를 접어 넓은 다목적 공간으로 사용할 수 있습니다. 소음 때문에 걱정하시는 분들도 계신데 그럴 경우 무리하게 벽을 치기보다는 커튼 등의 액세서리로 커버할 수 있습니다. 공간의 확장성. 그리고 다양한 용도로서의 활용. 이번 주택은 그러한 요구조건을 만족시킨 주택 사례라고 이야기드리고 싶습니다.

정다운 건축가 : 1층 하단부는 벽돌을 포인트로 넣어 무게감을 잡아주고, 2층은 화이트톤의 스타코플렉스를 적용하여 답답하지 않고 깨끗한 느낌의 집 디자인을 완성시켰습니다. 집 외벽 오염에 대해 걱정하시는 분들이 많습니다. 하지만 저희들이 시공한 집을 1년 뒤에 다시 갔을 때 걱정하시는 것만큼 심한 오염은 거의 없었습니다. 왜 그럴까요? 저는 딱 1가지 이유를 알고 있습니다. 바로 '처마'입니다. 처마가 없는 집은 어떠한 외장재를 가져다 붙이던 오염은 피할 수 없습니다. 하지만 디자인적으로 조금만 양보하고 처마를 15cm 이상만 만들어 준다면 오염 없이 외벽을 항상 깨끗하게 유지할 수 있습니다. 디자인은 솔직히 취향적인 부분이 큽니다. 하지만 취향을 조금만 양보하면 깨끗하게 외벽을 가질 수 있는데 계속 취향만 고집하실 건가요?

임성재 건축가 : 30평~40평 초반대의 주택. 거기에 2층 주택이라고 하면 솔직히 엄청 크다고만은 할 수 없습니다. 중형 평수는 60평 이상이 되어야 이야기할 수 있고 그 이하의 경우 소형평수의 주택으로 구분됩니다. 이 평형대의 주택을 설계할 때 가장 중요점으로 생각하는 부분이 현관에 들어왔을 때 가시적으로 느껴지는 개방감입니다. 넓고 시원하게 살려고 전원주택을 지었는데 집에 들어오자마자 답답한 기운이 느껴진다면 집 지은 것을 후회하겠죠. 그래서 현관을 들어왔을 때 거실과 주방을 최대한 하나의 공간으로 구성해 10평 정도의 탁 트인 공간을 제공하고자 노력합니다. 주방을 안 보이게 하고 싶으신 분들도 계신데 개방감과, 영역성 이 두 가지 중에 하나를 선택해야 한다면 저는 개방감을 많이 추천하는 편입니다. 기억하세요. 전원주택 설계를 할 때는 개방감을 주는 공간 구성이 제일 첫 번째라는 것을요.


HC024-4026r.jpg
HC024-3951r.jpg
HC024-3961r.jpg
HC024-3962r.jpg
HC024-3971r.jpg
HC024-3978r.jpg
HC024-3982r.jpg
HC024-3983r.jpg
HC024-3984r.jpg
HC024-3979r.jpg
HC024-3919r.jpg
HC024-3921r.jpg
HC024-3923r.jpg
HC024-3925r.jpg
HC024-3927r.jpg
HC024-3928r.jpg
HC024-3930r.jpg
HC024-3933r.jpg
HC024-3934r.jpg


HC024-3987r.jpg
HC024-3988r.jpg


HC024-3935r.jpg
HC024-3936r.jpg
HC024-3937r.jpg
HC024-3938r.jpg
HC024-3939r.jpg
HC024-3940r.jpg
HC024-3948r.jpg
HC024-3949r.jpg


HC024-3883r.jpg
HC024-3886r.jpg
HC024-3887r.jpg
HC024-3918r.jpg
HC024-3888r.jpg
HC024-3889r.jpg
HC024-3890r.jpg
HC024-3891r.jpg
HC024-3892r.jpg
HC024-3895r.jpg
HC024-3897r.jpg
HC024-3898r.jpg
HC024-3902r.jpg
HC024-3903r.jpg
HC024-3904r.jpg
HC024-3905r.jpg
HC024-3906r.jpg
HC024-3908r.jpg
HC024-3911r.jpg
HC024-3912r.jpg
HC024-3914r.jpg
HC024-3916r.jpg


HC024-4026r.jpg
HC024-3995r.jpg (좌측부터) 이동혁 건축가, 임성재 건축가, 정다운 건축가


집이라는 본질적인 가치를 추구합니다." Design by 홈트리오(주)

KakaoTalk_20191210_164551850.jpg

상담문의 : 1522-4279

강연문의 : sunsutu@hanmail.net

홈페이지 : http://hometrio.kr/


'젊은 전원주택 트렌드'

http://www.yes24.com/Cooperate/Naver/welcomeNaver.aspx?pageNo=1&goodsNo=73072083


keyword