brunch

50평 포근한 북유럽주택 :NE50(전원주택 트렌드Ⅲ)

2020 월간 홈트리오 10월호 ②

by 이동혁 건축가


KakaoTalk_20200521_090546896.jpg


2020 월간 홈트리오 10월호 ② - 50평 포근한 북유럽주택 : NE50(젊은 전원주택 트렌드Ⅲ)


※모든 저작권은 홈트리오(주)에게 있습니다. 최근 무단으로 디자인과 설계 평면도를 복제해 마치 본인들이 한 것인 듯 홍보하는 업체들이 있는데 법적 책임을 물을 수 있다는 점 고지드립니다.


STORY

: 젊은 건축가여서 그런가요? 집을 의뢰하시는 건축주님의 나이 때도 엄청 젊습니다.

강연을 할 때 오신 분들에게 이런 질문을 했어요.

"저희들에게 전원주택을 의뢰하시는 주 연령층이 몇 살인지 아세요?"

생각보다 많은 분들이 50대 중반에서 60대 이상을 이야기하셨어요. 30대는 열심히 일할 나이니 한적한 전원생활하고는 어울리지 않는다고 생각하신 거죠.

하지만 신기하게도 저희 회사의 1년 치 통계를 보면 80% 이상의 고객분들의 나이 때가 30대 중반에서 40대 초반에 형성이 되어 있습니다.

나이가 들어 은퇴한 후 조용하게 힐링하면서 사시는 분들이 집을 짓는 것이 아니라 완전히 다른 개념으로 젊은 신혼부부들이 아이들과 함께 살 마당 있는 집을 의뢰하셨던 것이죠.


전원주택의 인식이 5년 전과는 완전히 다른 양상을 보이고 있습니다. 몇 년 전만 해도 집을 짓는다는 것은 10년 늙는 고생길이니 절대로 지어서도 안되고 무조건 아파트를 사야 된다는 생각이 팽배했었는데요. 2020년 현재에 와서는 이러한 인식이 점차 희석되면서 이제는 내가 원하는 집을 지어 아이들이 마음껏 뛰놀 수 있는 공간을 선물해 주어야겠다는 쪽으로 변화되고 있습니다. 이러한 인식의 변화 속에 집을 짓는 건축주님의 나이 때도 계속 젊어지고 있는 추세입니다.


월간 홈트리오를 기획하고 방향성을 정하면서 저희 스스로도 많은 공부가 됩니다. 아마 한국에서 주택분야만 놓고 보았을 때 저희보다 많은 고민과 아이디어를 내는 사람은 없지 않을까 생각합니다. 그만큼 많은 시간을 투자하고 있고, 단순히 설계 기획에서 끝나는 것이 아닌 종합건설회사를 보유하고 있다 보니 기획설계안을 현실로 만들어 내는 부분까지 완수를 하고 있거든요. 좀 뜬금없는 이야기 일수도 있지만 건설회사를 차리게 된 계기가 특별한 것은 아니었고요. 저희들이 한 설계가 좀 독특하다 보니 시공을 의뢰할 때마다 다들 안된다고 하는 거예요. 분명히 가능할 것 같은데 시도조차 하려고 하는 시공사가 없다 보니 결국에는 직접 시공을 해서 결과론적인 부분으로 보여주는 수밖에 없었어요. 지금이야 인식이 많이 바뀌어서 디자인된 주택을 짓는다는 것이 큰 어려움은 아니지만 정말 10년 전만 해도 전원주택은 말 그대로 전원주택이지 도심형에 맞는 모던하거나 유니크한 디자인은 시공 생각조차 못했었습니다. 저희들도 다른 곳에서 안 해주니 직접 차린 거지만 지금에 와서 보니 전원주택 분야에서 선두에 있는 브랜드가 되어버린 웃지 못한 비하인드 스토리가 존재한답니다.


프로방스 풍. 그리고 북유럽 스타일 주택이라고 불리는 집의 특징은 크게 세 가지로 뽑아낼 수 있습니다. 일단 주황빛의 스페니쉬 기와. 국내에서는 생산이 안되고 전량 수입입니다. 저렴하지는 않지만 이 느낌을 내기 위해서는 이 기와를 사용해야지만 합니다. 저희들은 테릴사의 기와를 사용하고 있으며, 색상은 다양하게 존재하니 여러분들의 취향에 맞게 결정하시면 되십니다.


두 번째는 화이트 및 아이보리 톤의 스타코플렉스입니다. 모든 벽을 돌로 붙여버리면 오히려 어색해 보입니다. 일부는 깔끔한 느낌으로 비워주고 일부분에 포인트 벽돌을 붙여야 비로소 조화가 이루어집니다. 무조건 빈틈없이 벽돌을 붙이시려고 하는 분들이 계신데. 조화를 항상 생각하세요.


마지막 세 번째는 파벽돌이에요. 조적으로 쌓는 벽돌보다 파벽은 디자인과 색상이 엄청 다양합니다. 원하는 질감도 거의 선정 가능하세요. 가격도 저렴하기 때문에 내가 꼭 쌓아서 마감을 해야 하는 상황이 아니라면 저는 파벽돌을 추천합니다. 결국 무언가를 하기 위해서는 다 돈이기 때문에 같은 느낌을 낼 수 있는 상황이라면 저렴한 것으로 결정하세요. 그것이 이득입니다.


전통 북유럽식 주택이냐?

그렇진 않고요. 전통 방식의 형태를 다 가지고 오면 추워서 못 살아요. 한국에 맞게 창호 및 단열을 보강해 주어야 합니다. 또한 목조주택이기 때문에 숨을 쉴 수 있는 벤트 공간도 확실히 만들어 놓아야 합니다.


마지막으로 평면 부분만 이야기하고 마무리하겠습니다. 거실, 주방 등의 공용공간에 대해서는 이미 많은 이야기를 했기 때문에 건너뛰고, 1층 데크 위 지붕을 덮은 포치라는 공간에 대해서 간략이 이야기드려볼게요. 포치라는 공간은 건폐율에는 다 들어갑니다. 외부이니 안 들어갈 거라고 생각하시는 분들이 계신데 다 들어가니 참고해서 법규를 맞추시기 바랍니다.

이 포치라는 공간은 디자인적으로도 볼륨감을 많이 줄 수 있는 매력적인 공간이며, 특히 비가 올 때 그 매력포인트를 더욱 빛나게 합니다. 모던 스타일을 원하시는 분들은 처마를 거의 없애고 이러한 볼륨감이 있는 포치 공간을 최소화해서 박스형의 디자인을 잡는데요. 그것이 틀렸다기보다는 실내뿐만 아니라 실외에서의 전원생활도 충분히 가치가 있는데 많은 분들이 이 부분을 놓치고 가는 것이 안타까울 뿐입니다. 비가 올 때 포치 아래 앉아 조용히 빗소리를 들어며 커피 한잔하는 여유를 가진다는 것. 저는 솔직히 비를 보며 멍 때리는 게 너무 좋아요. 그래서 가능하다면 포치 넉넉하게 만들라고 조언합니다. 건폐율이 꽉 차서 못하는 상황이라면 어쩔 수 없지만 법규적으로 문제가 없다면 비용을 들이더라도 꼭 하시길 권해드립니다. 생활해보시면 알 거예요. 포치라는 공간이 얼마나 매력적인 공간인지를.


#프로방스 #북유럽스타일 #스페니쉬기와 #북유럽전원주택 #감성장인

51-양평-박안리야경.JPG


공법 : 경량목구조

설계, 시공 : 홈트리오(주) / 상담문의 : 1522-4279

지붕마감재 : 스피니쉬기와(테릴기와) / 외벽 마감재 : 스타코플렉스 / 포인트자재 : 파벽돌

실내벽마감재 : 실크벽지 / 실내바닥마감재 : 이건 강마루

창호재 : 이건 알루미늄 3중 시스템창호

건축면적 : 165.94㎡(1층 : 109.87㎡, 2층 : 56.07㎡)

예상 총 건축비 : 331,000,000원(부가세 포함, 산재보험료 포함 / 설계비, 인허가비, 구조계산 설계비 별도)

설계비 : 7,500,000원(부가세 포함) / 인허가비 : 5,000,000원(부가세 포함)

구조계산 설계비 : 5,000,000원(부가세 포함) / 인테리어 설계비 : 5,000,000원(부가세 포함)

*건축비 외 부대비용 : 대지구입비, 가구(싱크대, 신발장, 붙박이장), 기반시설 인입(수도, 전기, 가스 등), 토목공사, 조경비 등


1층 평면도.jpg 1층 평면도
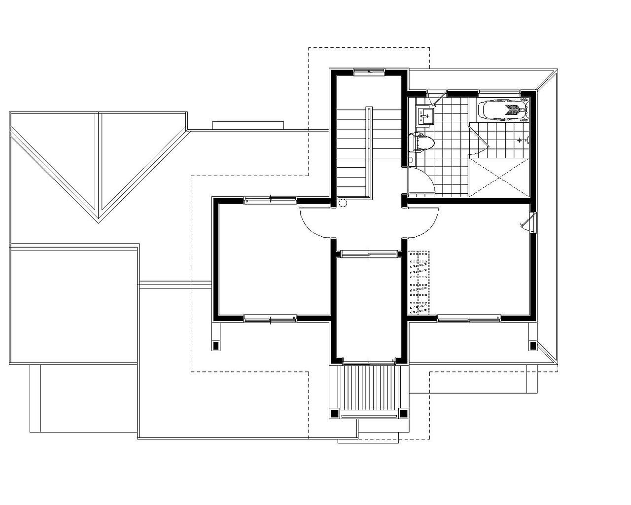
2층 평면도.jpg 2층 평면도


이동혁 건축가 : 1층 포치가 주는 주택생활의 매리트는 생각보다 크게 작용합니다. 건폐율과 예산만 충족된다면 가급적 전면부에 포치라는 지붕형 데크 공간을 만들어 놓는 것이 좋습니다. 비가 오더라도 창문을 열어 놓을 수 있으며, 빗소리를 들어며 차 한잔의 여유를 즐길 수 있는 공간이기 때문이지요. 이것 말고도 디자인적 볼륨감과 운치를 더해준다는 장점은 제가 따로 말하지 않더라도 여러분들은 이미 알고 계실 거예요.

정다운 건축가 : 북유럽 스타일의 특징을 살펴보면 3가지로 압축할 수 있는데 첫 번째는 주황빛의 스페니쉬 기와, 두 번째는 포근한 느낌의 화이트 베이스 스타코플렉스, 그리고 마지막 세 번째는 안정감과 무게감을 잡아주는 파벽돌. 이국적인 느낌을 풍기는 전원주택. 솔직히 이 세 가지가 조합되는 순간 감성적인 부분에서는 게임 끝입니다.

임성재 건축가 : 아파트와 전원주택의 평면적 가장 큰 차이점은 '향'에 있습니다. 많은 분들이 평면이 비슷하지 않냐라고 하시는데 절대 그렇지 않습니다. 30평대 소형 평수만 비교해보아도 완전히 다름을 알 수 있습니다. 전원주택은 내 땅에 내가 원하는 배치로 앉힐 수 있기 때문에 모든 실들이 특별한 이유가 아니면 남향의 향을 받고 있습니다. 또한 2층으로 올릴 경우에도 남향과 동향에 햇볕을 받을 수 있게 계획하며, 북향으로 보는 경우는 조망권을 제외하고는 거의 없다고 할 수 있습니다. 전원주택의 매력은 항상 말하듯 개방감 있고 답답하지 않은 시각적 개방감. 그리고 항시 포근한 햇볕을 받을 수 있는 남향의 큰 창. 아파트에서는 누릴 수 없는 전원생활만의 장점이라 할 수 있습니다.


51-양평-박안리.JPG
51-양평-박안리야경.JPG



HC029-4969r.jpg (좌측부터)정다운 건축가, 이동혁 건축가, 임성재 건축가

[집이라는 본질적인 가치에 집중하다.]

Architecture Team : 홈트리오(주)

대표번호 : 1522-4279

홈페이지 : http://hometrio.kr/

KakaoTalk_20191210_164551850.jpg


KakaoTalk_20200521_090546896.jpg


keyword