1월호①-36평 국민 전원주택 프로젝트 Vol.1

젊은 전원주택 트렌드 3 - 1월호 ①

by 이동혁 건축가
KakaoTalk_20200521_090546896.jpg

스타 건축가 3인방의 집짓기 제안

제목 : 젊은 전원주택 트렌드

-전원주택 3D 투시도, 평면도 34개 사례 수록-


저자 : 이동혁, 임성재, 정다운


1월호① - 36평 국민 전원주택 프로젝트 Vol.1


※모든 저작권은 홈트리오(주)에게 있습니다. 최근 무단으로 디자인과 설계 평면도를 복제해 마치 본인들이 한 것인 듯 홍보하는 업체들이 있는데 법적 책임을 물을 수 있다는 점 고지드립니다.


STORY

: '국민 전원주택 프로젝트 Vol.1 - 4인 가족 주택'

2020년도의 첫 번째 주자. 그 첫 번째 스타트를 정말 많이 고민했습니다. 어찌 보면 2020년도의 트렌드를 알리는 그 시작점의 모델이다 보니 "어떠한 느낌으로 디자인해야 될까?", "올해의 트렌드는 어떤 것일까?"에 대한 물음부터 출발하였습니다.


2020년도의 전원주택 트렌드는 좀 더 간결하고 더 젊은 느낌의 가성비 높은 주택들이 선도해 나갈 것으로 파악되고 있습니다. 큰 규모의 '헉'소리 나는 회장님 별장 스타일의 주택은 점점 수요가 줄어들 것으로 예측되며, 좁은 땅에도 쉽고 빠르게, 그리고 적은 건축비용으로 지을 수 있는 주택이 늘어날 것으로 생각됩니다.


단열에 대한 부분은 점점 강화되고 있습니다. 준 패시브급으로 적용되고 있으며, 특히 목조주택의 경우 기존 철근콘크리트 공법 대비 높은 단열성을 기본으로 보유하고 있어 추위가 걱정되는 분들의 선택을 받고 있습니다.


이번 2020 월간 홈트리오의 시작은 위의 이야기를 종합하여 기획했으며, 단열성, 가성비, 디자인 등을 종합하여 탄생시켰습니다.


박스형의 입면에 대한 호불호가 존재한다는 것을 알고 있습니다.

"완전 창고 같은데"

"내 스타일은 아니야"

"집은 박공지붕이지"

여러 가지의 의견은 존재하지만 한정된 좁은 대지에 건폐율을 최대한으로 활용할 수 있는 집에 초점을 맞추어 설계했다고 생각해주시면 감사하겠습니다.


창호에 대한 부분에 정말 많은 의견과 이견이 있습니다. 각 브랜드별 장단점이 있고 금액차이가 존재하다 보니 "무엇이 정답이다!!"라고 말할 수 없는 형편이었습니다. 그동안에는 '가성비'라는 단어에 초점을 맞추어 중소기업 제품을 주로 추천해 드렸는데요. 품질 및 AS 등 다양한 평가를 거친 후 홈트리오에서는 최종 이건창호를 기본 적용하기로 했습니다. '정답'이다 '아니다'를 떠나서 현존 가장 높은 품질과 검증된 브랜드를 사용하는 것이 '맞다'라고 저희들은 결론을 내렸습니다.


월간 홈트리오 2020년도의 시작. 그리고 첫 번째 모델. 어떠셨나요?

특히 도심형 단독주택 모델을 머릿속으로 생각하고 계셨던 분들은 이번 모델이 마음에 와 닿을 거라 생각합니다.


#국민전원주택 #36평평수 #모던스타일 #젊은느낌 #가성비최고

기획모델투시도.JPG

공법 : 경량 목구조

설계, 시공 : 홈트리오(주) / 상담문의 : 1522-4279

지붕마감재 : 리얼징크 / 외벽 마감재 : 스타코플렉스 / 포인트자재 : 파벽돌(청고벽돌)

실내벽마감재 : 실크벽지/ 실내바닥마감재 : 강마루

창호재 : 이건 알루미늄 3중 시스템창호

건축면적 : 117.80㎡(1층 : 63.70㎡, 2층 : 54.10㎡)

예상 총 건축비 : 239,000,000원(부가세 포함, 산재보험료 포함 / 설계비, 인허가비, 구조계산 설계비 별도)

설계비 : 5,400,000원(부가세 포함) / 인허가비 : 3,600,000원(부가세 포함)

구조계산 설계비 : 3,600,000원(부가세 포함) / 인테리어 설계비 : 3,600,000원(부가세 포함)

*건축비 외 부대비용 : 대지구입비, 가구(싱크대, 신발장, 붙박이장), 기반시설 인입(수도, 전기, 가스 등), 토목공사, 조경비 등

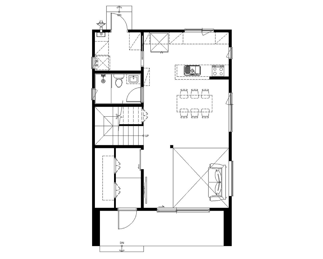
1층 평면도.jpg 1층 평면도
2층 평면도.jpg 2층 평면도

이동혁 건축가 : 완벽한 4인 가족 주택. 호불호 없는 디자인을 위해서 많은 고민 끝에 완성한 기획안입니다. 좁은 땅에도 지을 수 있도록 박스형의 평면을 선택했으며, 모던한 느낌으로 외관을 디자인 해 젊은 건축주들에게 충분한 호감을 얻을 수 있도록 했습니다.

정다운 건축가 : 입면을 단조롭게 만들어 건축비를 줄일 수 있는 부분을 찾아갔습니다. 입체감은 전면부의 파사드에서 주고 나머지 세 면을 포인트 없이 단조롭게 만들어 외부 디자인적으로 소요되는 건축비용을 최소화하였다고 보시면 됩니다.

임성재 건축가 : 창은 모두 이건 알루미늄 3중 시스템 창호로 적용하였습니다. 현존 가장 좋은 프레임과 유리로 사용하였다고 보시면 됩니다. PVC 창호, 2중 발코니 창호, 중소기업 창호 등 정말 다양한 의견이 있었는데요. 2020년도부터는 이러한 물음에 이견이 없도록 이건창호의 알루미늄 프레임, 3중 유리의 시스템 창호를 기본 적용하기로 하였습니다. 더욱 튼튼하고 따뜻한 집에서 보낼 수 있도록 노력했다는 점 알아주셨으면 좋겠습니다.

KakaoTalk_20191101_151616210.jpg
KakaoTalk_20191101_151618315.jpg
메스3.jpg
기획모델투시도.JPG

eFD--Ti5M7DvyVXHXruNd0cvet4.jpg (좌측부터)정다운 건축가, 이동혁 건축가, 임성재 건축가

[집이라는 본질적인 가치에 집중하다.]

Architecture Team : 홈트리오(주)

대표번호 : 1522-4279

홈페이지 : http://hometrio.kr/

KakaoTalk_20191210_164551850.jpg


KakaoTalk_20200521_090546896.jpg