4월호③-54평 햇살 품은 집

젊은 전원주택 트렌드 3 - 4월호 ③

by 이동혁 건축가
KakaoTalk_20200521_090546896.jpg

스타 건축가 3인방의 집짓기 제안

제목 : 젊은 전원주택 트렌드

-전원주택 3D 투시도, 평면도 34개 사례 수록-


저자 : 이동혁, 임성재, 정다운


4월호 ③ - 54평 햇살 품은 집


※모든 저작권은 홈트리오(주)에게 있습니다. 최근 무단으로 디자인과 설계 평면도를 복제해 마치 본인들이 한 것인 듯 홍보하는 업체들이 있는데 법적 책임을 물을 수 있다는 점 고지드립니다.


STORY

: 봄 햇살을 맞으며 주방 앞 데크에서 달콤한 커피 한잔을 하는 여유.

마당이라는 공간이 주는 심리적 안정감과 생활적 윤택함은 아파트에서는 느낄 수 없는 전원주택만의 매력일 것입니다. 특히 비가 올 때 마당의 잔디에 내려앉는 빗소리를 듣고 있노라면 정말인지 멍 때림의 무아지경에 빠질 때도 있답니다.


무언가를 해야 하고 쉬면 안 될 것 같고, 끊임없이 달려야 할 것 같은 느낌.

전원주택을 꿈꾸고 마당 있는 집을 원하시는 분들의 꿈은 생각보다 소박하답니다. 많은 것을 원하는 것이 아닌 마음의 여유와 복잡하지 않은 삶을 만들어 나가는 것.


그 마음을 알기에 집을 설계하고 지을 때 정말로 많은 고민을 같이 해드리고, 원하는 집의 모습을 최대한 구현하고자 노력합니다.


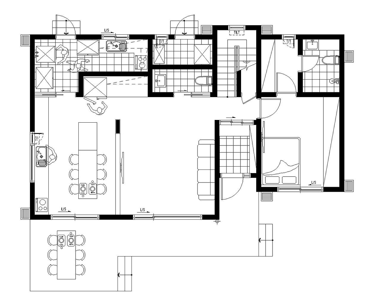
이번 평면은 좌우로 펼쳐진 형태의 공간 구성이라 할 수 있습니다. 저희들이 가장 많이 사용하는 공간 구성인 현관을 중심으로 좌우를 나누어주고, 거실과 주방을 하나의 가시적 공간에 둠으로서 최대한 넓게 보이는 효과를 가져갈 수 있도록 하였습니다.


목조주택의 경우 기둥과 기둥의 최대 간격은 5미터를 넘을 수 없습니다. 그래서 거실의 사이즈는 큰 평수던 작은 평수던간에 관계없이 4.8m 정도의 폭을 가집니다. 여기서 더 넓은 공간이 필요하다면 이번 주택처럼 중간에 기둥을 박은 뒤 주방 공간을 연달아 배치해 가시적으로 넓게 구성하는 방법밖에는 없습니다.


입면 디자인을 잡으면서 최대한 간결한 느낌의 모던 스타일을 만들어 주고자 노력했습니다. 복잡한 것이 아닌 정말로 있어야 할 것들만 존재하고 무게감 있는 포인트 부분과 안정감 있는 밸런스가 느껴지는 지붕 디자인을 조화롭게 적용하여 집을 완성시켰습니다.


목조주택의 경우 외벽의 갈라짐을 방지하기 위하여 탄성이 있는 스타코플렉스를 주로 사용합니다. 벽돌로 다 감싸도 되지만 외장재 비용이 만만치 않은 만큼 벽돌을 어느 정도 붙일 것이냐(?)에 따라 건축비가 크게 달라진다는 점을 인지하셔야 합니다.


마지막으로 집에 있어서 당연한 것. 그것은 단열과 누수라고 생각합니다. 하지만 이 당연한 것이 설계 디자인에 따라 당연하지 않은 것이 될 수 있습니다. 손 덜 가고 관리가 편한 집. 그리고 하자가 없는 집. 이 방법은 생각보다 쉽습니다. 모든 공간에 지붕을 덮어주고, 창도 달아 줄 것.


#54평전원주택 #밝은느낌 #손주들을위한집 #마당넓은 #균형감최고

양평-투시도.jpg

공법 : 경량 목구조

설계, 시공 : 홈트리오(주) / 상담문의 : 1522-4279

지붕마감재 : 아스팔트슁글 / 외벽 마감재 : 스타코플렉스 / 포인트자재 : 파벽돌

실내벽마감재 : 실크벽지/ 실내바닥마감재 : 강마루

창호재 : 이건 알루미늄 3중 시스템창호

건축면적 : 177.45㎡(1층 : 98.80㎡, 2층 : 78.65㎡)

예상 총 건축비 : 342,200,000원(부가세 포함, 산재보험료 포함 / 설계비, 인허가비, 구조계산 설계비 별도)

설계비 : 8,100,000원(부가세 포함) / 인허가비 : 5,400,000원(부가세 포함)

구조계산 설계비 : 5,400,000원(부가세 포함) / 인테리어 설계비 : 5,400,000원(부가세 포함)

*건축비 외 부대비용 : 대지구입비, 가구(싱크대, 신발장, 붙박이장), 기반시설 인입(수도, 전기, 가스 등), 토목공사, 조경비 등

1층 평면도.jpg 1층 평면도
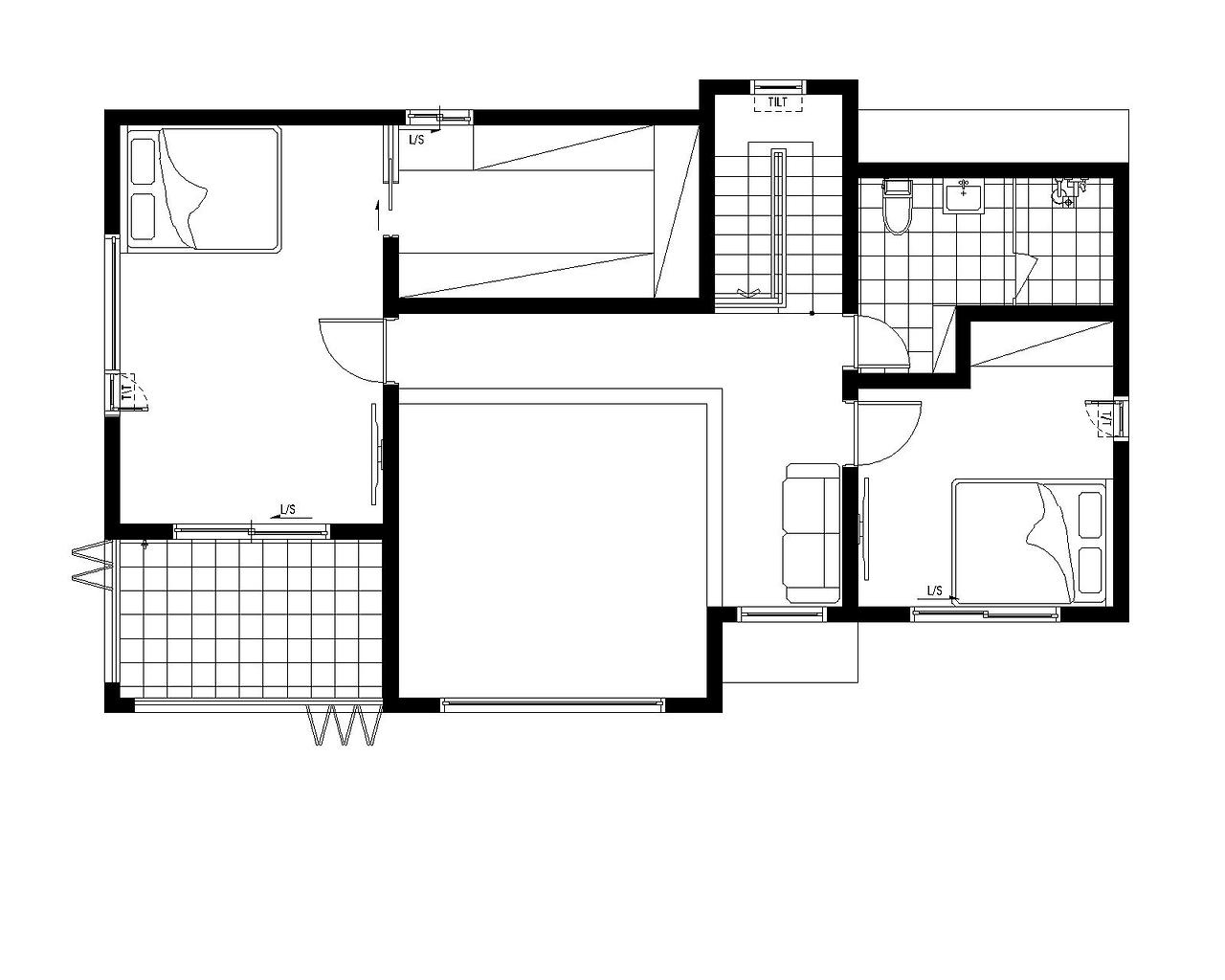
2층 평면도.jpg 2층 평면도

이동혁 건축가 : 지붕 디자인은 간결하면 간결할수록 누수에 대한 하자율은 적어집니다. 한때는 지붕 디자인을 많이 쪼개고 다양하게 구성하는 것이 유행인 때도 있었지만 그것은 정말 잠깐의 유행이었을 뿐 결국에는 다시 간결하면서도 하자가 적은 디자인으로 방향성이 돌아오게 되었습니다. 모던한 느낌이라고 하죠. 간결한 선과 복잡하지 않은 박스형 디자인. 너무 공장 같지 않으면서도 멋스러움을 표현할 수 있는 그러한 디자인. 너무 복잡하게 짓지 않으셔도 돼요. 간결하면서 심플하게. 그리고 밸런스 있게!!

정다운 건축가 : 2층의 외부 발코니를 구성할 때 잠시 바람만 쐬고 오는 공간인지, 아니면 겨울에도 사용할 공간인지 등이 정해지는 것이 좋습니다. 만약 겨울에도 온실 개념으로 사용하실꺼라면 처음 설계부터 이번 주택처럼 폴딩도어 등의 창을 달아 여름에는 열어놓고 생활하고 겨울에는 닫아서 실내 온실 공간처럼 쓰시는 것이 좋습니다.

임성재 건축가 : 이 집은 오픈 천장 옵션이 적용된 주택입니다. 현관을 진입했을 때 아파트와는 다른 압도적 개방감을 느끼고 싶으신 분들이라면 이 옵션을 꼭 추천드립니다. 층고 자체가 6미터 이상 올라가기 때문에 아파트에서도 팬트하우스에서나 느낄 수 있는 매력을 가져갈 수 있답니다. 다만 아무래도 우리나라는 온돌난방 방식이다 보니 이 공간을 데우는데 많은 시간이 걸린답니다. 오픈 천장을 적용하시는 분들은 필히 별도의 보조난방기기를 설치하시기 바랍니다. 예를 들면 벽난로 같은 거요.

메스1.jpg
메스2.jpg
메스3.jpg
메스4.jpg
양평-투시도.jpg

eFD--Ti5M7DvyVXHXruNd0cvet4.jpg (좌측부터)정다운 건축가, 이동혁 건축가, 임성재 건축가

[집이라는 본질적인 가치에 집중하다.]

Architecture Team : 홈트리오(주)

대표번호 : 1522-4279

홈페이지 : http://hometrio.kr/

KakaoTalk_20191210_164551850.jpg


KakaoTalk_20200521_090546896.jpg