6월호①-47평 모던 카페를 지었습니다Ⅱ

젊은 전원주택 트렌드 3 - 6월호 ①

by 이동혁 건축가
KakaoTalk_20200521_090546896.jpg

스타 건축가 3인방의 집짓기 제안

제목 : 젊은 전원주택 트렌드

-전원주택 3D 투시도, 평면도 34개 사례 수록-


저자 : 이동혁, 임성재, 정다운


6월호 ① - 47평 모던 카페를 지었습니다Ⅱ


※모든 저작권은 홈트리오(주)에게 있습니다. 최근 무단으로 디자인과 설계 평면도를 복제해 마치 본인들이 한 것인 듯 홍보하는 업체들이 있는데 법적 책임을 물을 수 있다는 점 고지드립니다.


STORY

: 월간홈트리오 5월호 세 번째 모델과 동일한 평면과 매스 디자인으로 최종 노출 콘크리트 마감 부분만 달리하여 제안된 카페 설계안입니다.


월간 홈트리오 6월호 첫 번째 모델을 외장재만 바꾸어 선보이는 이유는 최종 마감자재에 따라서도 건물의 분위기가 완전히 다를 수 있다는 것을 보여드리기 위함입니다.


고벽돌의 경우 오래된 느낌의 세월적 감성을 느낄 수 있었다면 이번에 제안된 노출 콘크리트의 경우 콘크리트라는 자재가 가진 본연의 물질적 감성을 느낄 수 있는 마감입니다.

주택 위주의 설계만 하다가 좀 더 색다른 파트의 설계를 하니 무언가 초심으로 돌아간 느낌이 드네요.

주택에서 중요시되었던 부분들이 카페로 넘어오니 반대로 중요하지 않게 되는 부분들도 있고, 반대로 새롭게 중요하게 생각해 주어야 하는 부분들도 생겨났네요.


소형 카페에 대한 문의가 갈수록 늘어나고 있습니다. 특히 '세'를 주기 위해 짓는 분들이 아닌 직접 카페를 운영하시고자 하시는 분들의 문의가 많은 것 같아요. 그러다 보니 대형 카페보다는 소형 카페 위주의 문의가 많고, 인테리어까지 모두 맡기는 것이 아닌 외장재와 골조 마감까지만 진행하고 직접 인테리어를 꾸미고자 하시는 분들이 많은 것 같습니다.


원래 저희들은 설계와 시공, 그리고 인테리어까지 통합으로만 계약을 의뢰받았었어요. 주택은 당연히 그렇게 진행하여야만 준공이 날 수 있고 AS 부분을 책임질 수 있었는데 카페의 경우 이 시스템을 조금 다르게 적용하기로 했습니다.


카페의 경우 설계와 시공, 인테리어까지 모두 맡길 수도 있지만 원하실 경우 인테리어 전 단계까지만도 진행 가능하도록 시스템을 별도로 구성했습니다. 직접 꾸미면서 하나하나 만들어가는 재미도 있는 만큼 주택처럼 현 시스템을 고수하지 않기로 했습니다. 그래서 이번 사례 개요를 보시면 인테리어가 빠져 있어요.

카페 건축이라는 특수성에 맞게 저희 홈트리오 시스템도 변화를 시켰다고 봐주셨으면 좋겠습니다.

이번 사례에서는 평면과 디자인에 대한 부분은 크게 언급을 안 하도록 하겠습니다. 이미 전 월간홈트리오에서 이야기를 드려서 겹칠 것 같거든요.


마지막으로 공사 기간에 대해서 이야기드릴게요. 보통 골조 공사의 경우 1개 층마다 2주일 정도 시간이 소요됩니다. 기초, 골조, 마감, 최종 양생까지 진행하게 되면 인테리어가 들어가지 않은 현 경우에도 최소 3~4개월 정도의 공사 기간이 소요됩니다. 날씨의 영향까지 모두 고려한 시간이며, 비 내리는 날이 단 하루도 없었다면 더 당겨질 수도 있습니다.


나만의 카페를 만들다는 것. 그리고 그 공간 안에서 향긋한 커피 향을 느낀다는 것. 생각만으로도 행복해지는 것 같습니다. 카페를 짓고자 하시는 분들 모두 파이팅이며, 정말로 꼭 원하는 카페 건축 하실길 바랍니다.


#노출콘크리트카페 #모던카페 #단층카페 #소형카페 #강화도카페

덕화리-수정.JPG

공법 : 철근콘크리트(RC)

설계, 시공 : 홈트리오(주) / 상담문의 : 1522-4279

지붕마감재 : 평지붕 마감, 리얼징크 / 외벽 마감재 : 노출콘크리트 / 포인트 자재 : 리얼징크(0.7T)

실내 벽 마감재 , 실내 바닥마감재 : 미포함 / *인테리어 비용의 경우 미포함되어있습니다.

창호재 : 이건 알루미늄 3중 시스템창호

건축면적 : 154.53㎡(1층 : 154.53㎡)

예상 총 건축비 : 266,000,000원(부가세 포함, 산재보험료 포함 / 설계비, 인허가비, 구조계산 설계비 별도)

*인테리어 비용이 빠진 순수 건축비용입니다.

설계비 : 9,400,000원(부가세 포함) / 인허가비 : 4,700,000원(부가세 포함)

구조계산 설계비 : 4,700,000원(부가세 포함) / 인테리어 설계비 : 0

*건축비 외 부대비용 : 대지구입비, 가구(싱크대, 신발장, 붙박이장), 기반시설 인입(수도, 전기, 가스 등), 토목공사, 조경비 등

*카페 건축의 경우 인테리어 부분이 차지하는 디자인적 영향이 크므로 설계 진행 시 순수 건축만 우선 진행하며, 인테리어는 별도의 미팅을 통해 디자인 설계를 진행하여 비용을 산정합니다.

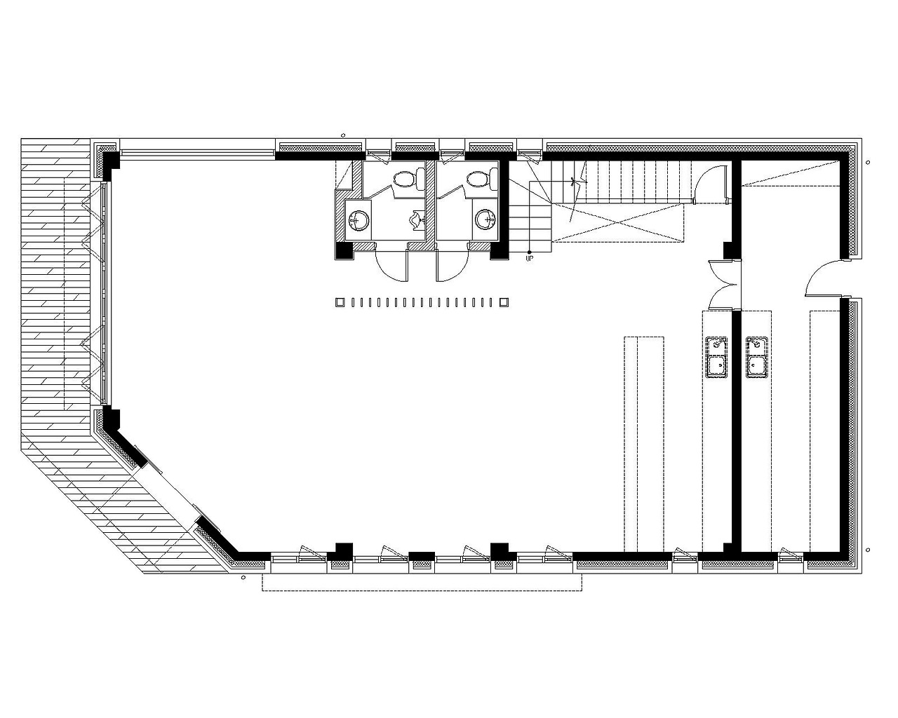
1층 평면도.jpg 1층 평면도
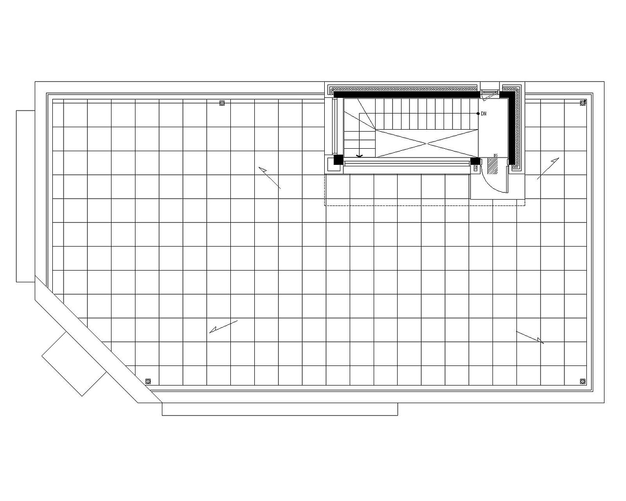
옥상 평면도.jpg 옥상 평면도

이동혁 건축가 : 노출 콘크리트에 대한 호불호는 여전히 존재하죠. 하지만 콘크리트가 가진 자재 자체의 느낌은 어떠한 외장재로도 표현이 불가능할 것입니다. 무언가 차가우면서도 도시적인 느낌의 마감. 그런데 촌스럽지 않고 특별한 아이덴티티를 느낄 수 있는 그 무언가. 글로서 표현할려니 어렵네요. 좀 더 색다른 느낌의 디자인을 원하시나요? 외장재를 바꿔보세요.

정다운 건축가 : 창에 대한 이야기가 많아요. 카페라고 해서 창에 대한 시험성적서가 없어도 되는 것은 아니랍니다. 건축법에서 명시된 단열 값 맞추셔야 합니다. 아무거나 껴도 된다고 생각하시는데 그러면 인허가는 날 수 있어도 준공이 안 난답니다. 꼭 명심하세요. 정확한 창 사용하셔야 합니다.

임성재 건축가 : 주택설계를 할 때 옥상 사용을 끔찍이 싫어하는 저인데 카페에서만큼은 이상하리만치 오픈마인드죠. 이는 카페 건축이 수익성 사업이기 때문입니다. 최대한 많은 사람을 받아야 하고, 실내뿐만 아니라 외부에서 느껴지는 감성도 모두 담아내야 하기 때문입니다. 다만 콘크리트 공법이라고 해서 무조건 방수가 영구적인 것은 아닙니다. 꾸준한 유지관리, 그리고 방수층 위에 별도의 마감. 그래야만 오랫동안 누수 없이 사용 가능하실 것입니다.


eFD--Ti5M7DvyVXHXruNd0cvet4.jpg (좌측부터)정다운 건축가, 이동혁 건축가, 임성재 건축가

[집이라는 본질적인 가치에 집중하다.]

Architecture Team : 홈트리오(주)

대표번호 : 1522-4279

홈페이지 : http://hometrio.kr/

KakaoTalk_20191210_164551850.jpg


KakaoTalk_20200521_090546896.jpg