7월호②-70평 젊은 감성 트렌드를 입다

젊은 전원주택 트렌드 3 - 7월호 ②

by 이동혁 건축가
KakaoTalk_20200521_090546896.jpg

스타 건축가 3인방의 집짓기 제안

제목 : 젊은 전원주택 트렌드

-전원주택 3D 투시도, 평면도 34개 사례 수록-


저자 : 이동혁, 임성재, 정다운


7월호 ② - 70평 젊은 감성 트렌드를 입다


※모든 저작권은 홈트리오(주)에게 있습니다. 최근 무단으로 디자인과 설계 평면도를 복제해 마치 본인들이 한 것인 듯 홍보하는 업체들이 있는데 법적 책임을 물을 수 있다는 점 고지드립니다.


STORY

: 개인 주차장을 안고 태어난 집. 집을 짓는 사람들의 로망을 담고 태어난 이번 주택은 대전 유성구에 지어질 집이기도 합니다. 모노롱 조적 벽돌을 마감재로 선택해 무게감과 젊은 느낌의 트렌디함을 장점으로 설계가 완료되었습니다.


경량 목구조 공법으로 단열을 기본적으로 잡아주고, 이건 알루미늄 3중 시스템창호를 전 창에 적용하여 준패시브급에 달하는 단열 조건을 맞춰주었습니다.


‘ㄱ’ 자형의 배치를 적용해 자연스럽게 공용공간과 개인 공간을 동선 분리시켰습니다. 2층에 자녀들이 머무르는 공간을 단순히 방만으로 구성한 것이 아닌, 별도의 가족실과 서재 공간을 만들어주어 2층에서 다목적으로 활동이 가능할 수 있도록 설계하였습니다.


집을 설계함에 있어 '절재 미'를 항상 가져가고자 노력합니다. 사람의 욕심에 끝이 없듯이 어느 순간 하나씩 더하다 보면 과하다 싶을 정도의 디자인이 나오기도 하는데요. 그것이 공짜로 얻어지는 것이 아님을 너무 잘 알기에 항상 적당선이라는 밸런스를 유지하며 설계를 하고자 합니다.


이번 월간홈트리오 7월호 두 번째 모델은 모던 스타일이라는 콘셉트에 맞게 군더더기 없는 선과 면이 만나 깔끔하다는 느낌이 드는 주택으로 완성이 되었습니다.


무조건 모던 스타일이라고 해서 박스형의 창고처럼 짓는 것이 아닌 창문의 형태와 크기, 그리고 배치에 대한 고려 등을 다각도로 고려하여 어색하지 않고 조화로운 모던 스타일 주택을 만들어 내고자 노력하였습니다.

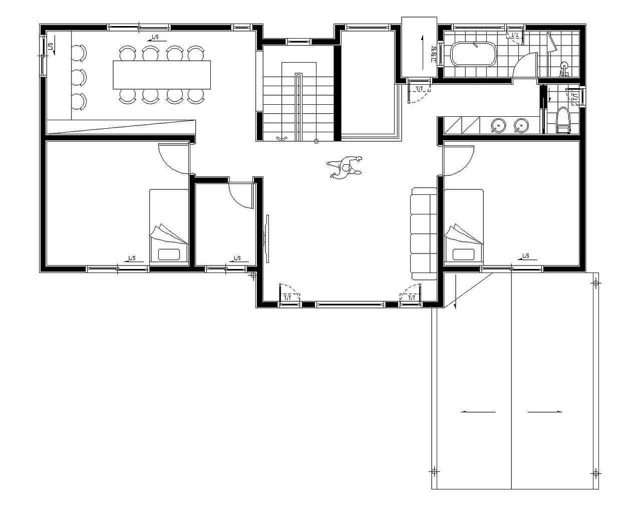
이번 주택의 평면은 조금 특별한 점이 존재합니다. 크게 두 가지의 특징이 있는데 첫 번째는 현관의 위치입니다. 항상 중앙이나 뒤편에 주로 배치되었던 현관이 주차장과 동선적으로 연결되면서 좌측으로 배치가 되었습니다. 또한 현관에서 진입했을 때 바로 계단실을 하나의 코어로 묶어주어 형태적으로 본다면 '외코어' 형태를 이번 주택에 적용했다고 해도 무방합니다.


두 번째는 1층에 거실을 없애주었다는 것입니다. 도심형 단독주택인 만큼 1층에 앉힐 수 있는 면적이 생각보다 크지 않습니다. 일반적으로 방을 없애주는 방식을 택한 것이 아닌 거실을 2층으로 올리는 설계 방법을 택해 그동안 계획해왔던 주택들과는 궤를 달리하는 방향으로 설계를 진행했습니다.


집 외관에 있어 창문이 주는 영향력이 생각보다 큽니다. 일반적인 기성 사이즈의 창문만을 사용한 것이 아닌 크고 기성 사이즈를 벗어나는 창호들을 곳곳에 배치하여 창 자체가 이색적이고 포인트가 될 수 있도록 하였습니다.


목조주택이기 때문에 옥상은 불가입니다. 가끔 댓글에 '내가 10년 차 목수인데 왜 안된다고 하느냐? 건축가 맞느냐?'라고 밑도 끝도 없이 반박하시는 분들이 계신데 저희 홈트리오는 원칙상 누수에 위험성 때문에 절대로 목조주택에는 옥상 만들지 않습니다. 우기셔도 소용없습니다.


집을 지을 때는 첫 번째도 방수, 두 번째도 방수, 세 번째도 방수입니다. 비 새면 끝입니다.

집을 짓는 일이 사람이 하는 일이다 보니 어느 부분에서는 미흡함이 생길 수 있는 여지가 존재합니다. 아예 설계 때부터 원천적으로 그러한 부분을 방지할 수 있게 만든다면 건축주님이던 회사던 모두 안전하게 윈윈 할 수 있습니다. 말 안 듣고 옥상 만드시는 분들이 계신데 해가 지나갈수록 분명 누수 때문에 많이 고생하실 것입니다.

아직 집을 짓지 않고 이 글을 읽고 있는 분들이 계시다면 옥상 포기하세요. 그냥 마당에서 그 꿈을 이루시길 권해드립니다.


마지막으로 보일러실에 대한 문의가 많은데 보일러실은 필수입니다. 어설프게 다용도실에 벽걸이로 달 생각 마세요. 그냥 안전하게 1평 정도 보일러실 만드는 것이 좋으며, 추후 AS가 가능하도록 배관 공간을 만들어 놓는 것이 좋습니다.


#모던스타일 #젊은감성 #프리미엄주택 #고단열 #세련됨

대전-투시도-야경.jpg

공법 : 경량 목구조

설계, 시공 : 홈트리오(주) / 상담문의 : 1522-4279

지붕마감재 : 리얼징크 / 외벽 마감재 : 모노롱벽돌 / 포인트자재 : 모노롱벽돌

실내벽마감재 : 실크벽지, 파벽돌, 포세린타일 / 실내바닥마감재 : 이건 강마루

창호재 : 이건 알루미늄 3중 시스템창호

건축면적 : 230.71㎡(1층 : 130.20㎡, 2층 : 100.51㎡)

예상 총 건축비 : 538,000,000원(부가세 포함, 산재보험료 포함 / 설계비, 인허가비, 구조계산 설계비 별도)

설계비 : 10,500,000원(부가세 포함) / 인허가비 : 7,000,000원(부가세 포함)

구조계산 설계비 : 7,000,000원(부가세 포함) / 인테리어 설계비 : 7,000,000원(부가세 포함)

*건축비 외 부대비용 : 대지구입비, 가구(싱크대, 신발장, 붙박이장), 기반시설 인입(수도, 전기, 가스 등), 토목공사, 조경비 등


1층.jpg 1층 평면도
2층.jpg 2층 평면도

이동혁 건축가 : 'ㄱ'자형 배치의 가장 큰 단점은 이동 동선이 길어짐에 따라 복도라는 공간이 생기고 그 공간이 데드 스페이스로 인지된다는 것에 있었습니다. 하지만 그 문제를 해결하는 방법은 오늘 설계 평면도에 답이 있습니다. 꼭 거실과 주방이 1층에 모두 존재해야 하는 것은 아닙니다. 1층에는 주방만을 배치한 후 복도를 없애고 바로 방으로 들어갈 수 있는 동선을 구성한 뒤 거실을 2층으로 별도 배치하여 데드 스페이스가 애초에 생길 수 없는 환경을 만들어주면 됩니다.

정다운 건축가 : 주택설계를 할 때 가장 주의해야 할 점은 고정관념에 사로잡히는 것입니다. 항상 그려왔듯이 안전하게... 솔직히 이건 너무 쉬운 방법이에요. 저희가 설계한 집들을 보면 단 하나도 동일한 집이 없습니다. 그 이유는 모든 집들을 설계할 때 건축주님께 100% 맞춘 설계를 진행했기 때문입니다. 포트폴리오를 참고하는 것은 말 그대로 도움을 얻는 정도이지 건축주님의 집을 그곳에서 찾으려고 하면 안 됩니다. 어차피 땅과 건축주님의 라이프스타일이 모두 다르게 때문에 남에 집을 그대로 가져와 짓는다는 것은 애초에 말도 안 되는 내용입니다. 건축주님만의 집을 지으세요. 일생에 단 한번 짓는 집. 건축주님만을 위한 집으로 지으셔야 합니다.

임성재 건축가 : 기존에 가장 많이 사용되었던 벽돌을 기성 사이즈의 벽돌이었습니다. 특히 고벽돌과 청고 벽돌에 많이 치중되어 있었습니다. 최근에는 좀 더 다양한 느낌을 집에 넣어주기 위해 긴 벽돌 형태인 모노롱벽돌을 사용하기 시작했습니다. 솔직히 최근이라기보다는 사용된지는 조금 오래되었는데 최근 몇 년간 젊은 층에서 많이 사용되고 있다고 생각하시면 될 것 같습니다. 모던 스타일의 가장 큰 장점은 군더더기가 없는 깔끔한 면에 있습니다. 이번 주택처럼 그레이톤의 모노롱벽돌과 깔끔한 선 정리. 그리고 리얼징크와의 조합으로 집을 짓는다면 지나다니는 사람들 모두가 한 번쯤 고개 돌려 쳐다볼만한 집으로 탄생될 것입니다.


메스1.jpg
메스2.jpg
메스3.jpg
메스4.jpg
대전-투시도.jpg
대전-투시도-야경.jpg

eFD--Ti5M7DvyVXHXruNd0cvet4.jpg (좌측부터)정다운 건축가, 이동혁 건축가, 임성재 건축가

[집이라는 본질적인 가치에 집중하다.]

Architecture Team : 홈트리오(주)

대표번호 : 1522-4279

홈페이지 : http://hometrio.kr/

KakaoTalk_20191210_164551850.jpg


KakaoTalk_20200521_090546896.jpg