8월호②-65평 바람길을 수놓다

젊은 전원주택 트렌드 3 - 8월호 ②

by 이동혁 건축가
KakaoTalk_20200521_090546896.jpg

스타 건축가 3인방의 집짓기 제안

제목 : 젊은 전원주택 트렌드

-전원주택 3D 투시도, 평면도 34개 사례 수록-


저자 : 이동혁, 임성재, 정다운


8월호 ② - 65평 바람길을 수놓다


※모든 저작권은 홈트리오(주)에게 있습니다. 최근 무단으로 디자인과 설계 평면도를 복제해 마치 본인들이 한 것인 듯 홍보하는 업체들이 있는데 법적 책임을 물을 수 있다는 점 고지드립니다.


STORY

: 모던한 주택의 묘미를 잘 살린 주택. 보고만 있어도 흐뭇한 미소는 가시질 않습니다. 성남에 지어질 이번 주택은 건축주님의 라이프스타일을 고스란히 반영하여 설계한 집으로 거실과 주방의 공간이 타 주택과는 다른 느낌으로 설계가 되었습니다.


65평의 넉넉한 공간에 여자들이 꿈꾸는 주방과 남자들의 로망이 담긴 거실 등 전원주택의 매력을 듬뿍 느낄 수 있도록 설계를 진행하였습니다.

매력적인 공간들을 만들어 내고 싶나요? 그렇다면 이번 주택을 눈여겨보시기 바랍니다.


철근콘크리트 주택처럼 느끼실 수 있지만 이번 주택은 경량 목구조의 전원주택입니다. 최근 기술이 많이 발전되고 안정화되면서 입면 디자인만 보았을 때는 이 집이 철콘 주택인지 아니면 목조주택인지 구분하기 어려운 상태까지 되었습니다. 10년 전 처음 주택일을 했을 때는 정말 확 티 나게 목조주택의 퀄리티가 엄청 떨어졌었는데 정말 기술이 발전하긴 했다 봅니다.


목조주택이 발전을 거듭하는 이유는 건설회사들의 브랜드화가 일부 일조했다고 생각합니다. 대부분 전원주택 시장은 건축을 전공하고 규모가 있는 회사들이 짓는 것이 아니라 동네에서 알음알음 목수에게 짓던 게 대부분이었거든요. 물론 아직도 지방에서는 샌드위치 패널과 벽돌로 집을 마무리하는 곳도 존재합니다. 간혹 지역 건축단가를 생각하셨다가 왜 이렇게 많이 금액이 차이나냐고 질문하시는 분들이 계신데 사용하는 공법과 자재가 완전히 다릅니다. 창문만 해도 전 창 3중 시스템창호가 기본 적용되니까요. 다들 아시겠지만 평당 단가는 의미 없습니다. 설계도부터 그리시고 정확한 산출내역서와 스펙으로 금액을 산출하시길 바라겠습니다.


이번 주택은 65평의 중대형 평수로 설계되었습니다. 포치와 발코니가 넓게 구성되면서 입면적으로는 더욱 크게 보이는 효과를 얻게 되었네요.

스타코플렉스 외장재 기반으로 합성목재와 노출 콘크리트 패널, 그리고 리얼징크를 혼합 적용해 유니크한 주택의 디자인을 탄생시켰습니다. 현재 저희 홈트리오는 루나 우드는 사용하지 않고 있습니다. 목재로 된 부분은 모두 합성목재라고 생각해주시면 되십니다.


매번 이야기하는 것이지만 2층 외부 발코니에는 지붕을 무조건 덮어야 합니다. 간혹 댓글로 몇 년 차 목수인데 절대로 비 안 샌다고 우기시는 분들이 계신데 비 샙니다. 1~2년은 신축이니 안 샐 수도 있지만 30년을 살아야 하는 입장에서는 언젠가는 누수가 발생한다는 불안감을 안고 살아가야 합니다. 제집도 아니고 여러분들의 집입니다. 고집부리시지 마시고 무조건 덮으세요. 그리고 더욱 철저한 방수를 원한다면 발코니에도 창을 달아 추위와 비를 막아주세요. 그러면 제가 장담하는데 절대로 비 샐일 없습니다.


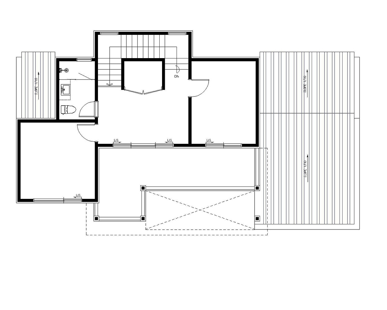
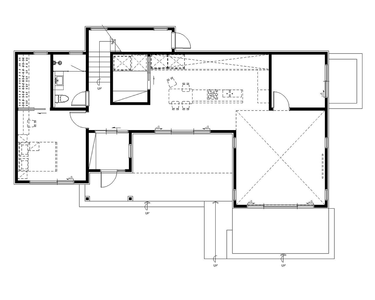
평면구성은 작은 평형대를 설계하는 것과는 완전히 다릅니다. 오밀조밀하게 구성하는 것이 아니라 크게 크게 그리고 시원하게 공간을 설계합니다. 방을 총 4개 구성하고 그 방 중에 게스트룸까지 구성해 놓아 손님이 오더라도 불편함 없이 지내다 갈 수 있도록 했으며, 넓은 거실과 주방을 독립적인 공간으로 설계해 각 공간마다 지닌 매력을 극대화할 수 있도록 하였습니다.


모던 주택의 묘미는 박스형 입면에 있습니다. 하지만 목조주택이니 공기가 순환될 수 있는 벤트 부분과 물이 고이지 않게 하는 지붕 경사도는 필수입니다. 전면에서는 박스 형태로 모양을 잡아주고, 뒤쪽으로는 경사지붕을 내려주어 디자인과 실용성을 모두 잡아준 주택이라 이야기드리고 싶습니다.


마지막으로 창문 디자인이 집에 끼치는 영향은 생각보다 큽니다. 특별히 주문제작 창호를 사용하지 않더라도 이번 주택처럼 창문 블랙 도장을 통해 모던함을 더욱 강조할 수 있습니다. 아무래도 화이트톤의 창호 프레임은 잘되어있는 디자인에 언발란스한 느낌을 줄 때가 있거든요. 많이들 놓치고 가지만 창문 색상 생각보다 중요하다는 것 인지하시고 가시길 바라겠습니다.


#모던스타일 #65평전원주택 #갤러리타입 #방이4개 #넓은발코니와포치

성남-투시도.JPG

공법 : 경량 목구조

설계, 시공 : 홈트리오(주) / 상담문의 : 1522-4279

지붕마감재 : 리얼징크 / 외벽 마감재 : 스타코플렉스 / 포인트자재 : 리얼징크, 노출콘크리트패널, 합성목재

실내벽마감재 : 실크벽지 / 실내바닥마감재 : 이건 강마루

창호재 : 이건 알루미늄 3중 시스템창호

건축면적 : 215.96㎡(1층 : 136.24㎡, 2층 : 79.72㎡)

예상 총 건축비 : 442,500,000원(부가세 포함, 산재보험료 포함 / 설계비, 인허가비, 구조계산 설계비 별도)

설계비 : 9,750,000원(부가세 포함) / 인허가비 : 6,500,000원(부가세 포함)

구조계산 설계비 : 6,500,000원(부가세 포함) / 인테리어 설계비 : 6,500,000원(부가세 포함)

*건축비 외 부대비용 : 대지구입비, 가구(싱크대, 신발장, 붙박이장), 기반시설 인입(수도, 전기, 가스 등), 토목공사, 조경비 등

1층.jpg 1층 평면도
2층.jpg 2층 평면도

이동혁 건축가 : 65평의 면적은 중대형 평수로 분류됩니다. 결코 작은 면적이 아니기에 공간을 구성할 때도 오밀조밀 구성하는 것이 아니라 시원시원하게 공간들을 빼줍니다. 30평형대의 주택에서는 1평의 공간이라도 실 사용할 수 있게 구성하는 게 주요하다면, 60평 이상의 주택에서는 각 공간에 들어갔을 때 어떠한 느낌으로 공간을 느끼게 할까(?)를 우선 고민합니다. 쉽게 말해 주방이라는 공간을 예로 들면 30평형에서는 공간을 벽으로 구분하기보다는 하나의 오픈공간으로서 개방감을 넓게 가져가게 합니다. 그래야 좁아 보이지 않거든요. 반대로 60평 이상의 주택은 공간 자체가 넉넉하기 때문에 꼭 하나의 오픈공간으로서 개방감을 줄 이유는 크게 없습니다. 각 공간별로도 넓은 공간을 배정할 수 있기 때문에 개방감보다는 그 공간에 들어갔을 때 어떠한 느낌을 받게 해 줄 건지를 우선 고려한답니다.

정다운 건축가 : 발코니를 전면부에 넓게 구성했을 경우 입면 디자인 부분에서 매스적으로 더 커 보이는 효과를 누릴 수 있습니다. 집의 이미지를 처음 보았을 때 볼륨감이라고 해서 들어가고 나오는 입체적인 부분이 많아야 집이 더 커 보이고 독특한 느낌으로 이미지를 받아들입니다. 과하면 오히려 촌스러운 느낌이 들지만 적절하게 발코니 및 포치를 구성해준다면 투자된 금액 대비 높은 디자인적 효과를 얻을 수 있습니다.

임성재 건축가 : 건축비의 차이를 발생시키는 가장 큰 두 가지 요인은 외장재와 창호에 있습니다. 많이들 물어보시는 평당 단가가 크게 의미가 없는 이유는 외장재를 어떤 것으로 할 건지에 따라 수천만 원이 차이 나기 때문입니다. 또한 창문도 브랜드 및 재질에 따라 60평 기준 최소 3천만 원 이상 차이가 발생합니다. 가끔 전화 문의로 "고급도 아니고 하급도 아니고 중급으로 대충 평당 단가가 얼마예요?"라고 질문하시는 분들이 있는데 이 질문의 얼마나 무지한 질문인지를 아셔야 합니다. 이해는 하지만 이 질문은 본인에게 사기 쳐 달라는 말과 동일하다는 것을 알고 계셔야 합니다. 내 머릿속에 있는 집을 그리는 작업이 설계단계입니다. 죽었다 깨나도 설계도면 없이 최종 견적은 나올 수 없습니다. 설계비 아깝다고 생각하시는 분들이 계신데 돌고 돌아 결국에 원하는 답을 얻으려면 설계를 해야 한다는 것을 깨닫게 되실 것입니다. 너무 돌아가지 마세요. 답은 이미 설계도에 있습니다.

메스1.jpg
메스2.jpg
메스3.jpg
메스4.jpg
성남-투시도.JPG

eFD--Ti5M7DvyVXHXruNd0cvet4.jpg (좌측부터)정다운 건축가, 이동혁 건축가, 임성재 건축가

[집이라는 본질적인 가치에 집중하다.]

Architecture Team : 홈트리오(주)

대표번호 : 1522-4279

홈페이지 : http://hometrio.kr/

KakaoTalk_20191210_164551850.jpg


KakaoTalk_20200521_090546896.jpg