10월호①-93평 프리미엄 단독주택:HT93

젊은 전원주택 트렌드 3 - 10월호 ①

by 이동혁 건축가
KakaoTalk_20200521_090546896.jpg

스타 건축가 3인방의 집짓기 제안

제목 : 젊은 전원주택 트렌드

-전원주택 3D 투시도, 평면도 34개 사례 수록-


저자 : 이동혁, 임성재, 정다운


10월호 ① - 93평 프리미엄 단독주택 : HT93


※모든 저작권은 홈트리오(주)에게 있습니다. 최근 무단으로 디자인과 설계 평면도를 복제해 마치 본인들이 한 것인 듯 홍보하는 업체들이 있는데 법적 책임을 물을 수 있다는 점 고지드립니다.


STORY

: 보고만 있어도 기분이 좋아지는 집.


나만의 주차장을 가지고, 우리 가족만의 마당을 가진다는 꿈.


도심형 단독주택의 프리미엄 라인을 알리는 그 시작점의 모델 HT93.


넓은 공간. 아름다운 외관.

93평의 넓은 공간이 가지는 각각의 매력적인 영역성과 재미있는 평면 설계를 통해 탄생한 이번 주택은 단순히 집으로서의 가치로 끝나는 것이 아닌 그 이상의 프리미엄 생활을 누릴 수 있는 그러한 건축물로서 탄생하였습니다.


프리미엄 단독주택으로 방향을 잡고 설계를 진행하게 되면 일반적인 주택의 시작점과는 조금 다른 시작을 합니다. 가장 큰 방향성은 공간 구성인데요. 무조건 작게만 쪼개서 가는 것이 아닌 각 공간별로 정확한 영역성을 주고자 노력하며, 시각적으로 옹졸해 보이지 않고 확실한 개방감과 웅장함이 실내에서 느껴질 수 있도록 설계합니다.


도심형 단독주택의 경우 마당을 확보한다는 것이 생각보다 어렵습니다. 서울 및 수도권의 도심지 내 택지의 경우 커봐야 100평에서 움직이게 됩니다. 더 크다면 두 개의 필지를 합쳐 짓는 경우도 있지만 땅값이 워낙 높다 보니 거의 대부분은 100평 내외에서 움직인다고 보시는 것이 맞습니다.


내 땅이라고 해서 모든 공간에 집을 지을 수 있는 것은 아닙니다. 법적 이격거리라고 해서 4면을 최소 50cm 이상 이격 해야 하며, 옆집 또는 도로사선에 따라 더 이격 하는 경우도 발생합니다. 이러한 공간들이 생각보다 많이 잡아먹기 때문에 설계 진행 시 꼼꼼한 검토를 통해 내가 원하는 면적을 이 땅에 앉힐 수 있을 것인지에 대해서 알아보아야 합니다.


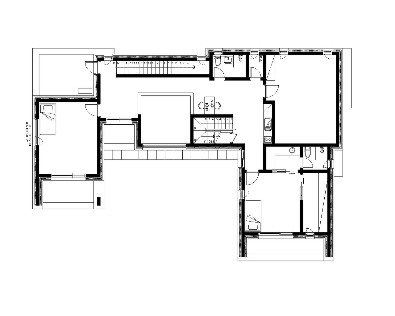
1층의 순 면적이 평수로 환산하면 48평 정도의 큰 면적으로 계획되었습니다. 일반적인 주택에서 48평이라고 하면 방도 많이 생기고, 오밀조밀한 공간들이 많이 생겨 충분하다고 생각할 수도 있지만 이 집을 생활하는 건축주의 라이프스타일에 따라 이 공간이 생각보다 좁은 공간으로 느껴질 수도 있습니다.

평면을 구성함에 있어 일단 각 공간의 사이즈를 계산하였습니다. 최소 사이즈가 아닌 평균치 이상의 사이즈로 각 공간들을 잡아 그 공간 안에 들어갔을 때 좁다는 느낌보다는 넓고 쾌적하다는 느낌이 드는 면적으로 각 공간을 구성하였습니다.


현관을 진입했을 때 가장 먼저 마주하는 거실은 5m 이상의 폭으로 공간을 구성하고 계단실 공간까지 오픈하여 시각적으로 압도적인 개방감을 줄 수 있게 하였으며, 주방 공간은 단차를 통해 자연스럽게 각 공간이 구분될 수 있도록 하였습니다. 넓은 평수의 주택이므로 각 공간을 하나로 묶는 것보다는 각 공간의 영역성을 확실히 구분해주는 것이 좋으며, 동선의 얽힘을 방지해 주는 것이 좋습니다.


2층은 자녀들을 위한 공간과 취미를 할 수 있는 취미공간을 마련해 놓았습니다. 간단한 다과를 할 수 있도록 싱크대를 별도로 마련해 두었으며, 1층 오픈 천장 옵션을 적용하여 2층에서 1층이 내려다 보일 수 있는 주택만의 매리트를 적용했습니다.

2층의 각 방에는 발코니를 설치하여 바람을 쐴 수 있는 공간을 계획하였으며, 발코니 지붕의 깊이를 더해 비가 오더라도 창문을 열고 빗소리를 들을 수 있는 힐링 공간으로서 설계적 배려를 하였습니다.


모던함의 상징으로서 박스형의 입면을 웅장한 매스로 표현될 수 있도록 디자인하였으며, 아이보리 톤의 포세린 타일 외장재를 적용해 깔끔하면서도 고급스러운 느낌을 낼 수 있도록 하였습니다.

여러 가지 외장재를 혼합 사용할 경우 오히려 조잡해 보일 수 있기 때문에 기본 외장과 가벽 부분의 마감을 모두 통일하여 하나의 통일성을 주고자 노력하였습니다.


도심형 단독주택에서는 옥상 활용은 필수입니다. 보통 땅이 넓고 한적한 전원마을에 짓는 집의 경우 저희들이 누수의 위험성 때문에 지붕을 무조건 덮으라고 하는데요. 도심형의 경우 이 이론이 조금 다르게 적용됩니다. 일단 목조주택은 옥상 활용 불가합니다. 이 부분은 정확히 인지하고 계셔야 합니다. 옥상을 사용할 수 있는 공법은 철근콘크리트 공법입니다. 이번 주택처럼 RC 공법으로 진행하셔야 그나마 누수에 대한 위험성을 줄이면서 옥상을 활용할 수 있습니다.


옥상의 경우 단순히 방수액만 바르고 끝나는 것이 아닌 타일 및 데크, 그리고 조경들을 통해 또 하나의 외부 공간으로 활용이 가능하며, 1층에서 누릴 수 없는 마당이라는 공간을 옥상이라는 대체 공간을 통해 주택만이 가진 특색을 누릴 수 있습니다.


마지막으로 주차장이 필요할 경우 무조건 지하를 파는 것이 답이 아님을 알려드립니다. 지하 토목공사의 경우 지상보다 더 많은 비용이 발생하게 됩니다. 흙막이 비용만 해도 만만치 않거든요. 가급적이면 이번 주택 사례처럼 필로티를 통해 주차 부분을 해결하시는 것이 비용적인 면에서 유리하며, 프라이버시가 중요하신 분들의 경우 담장이 아니더라도 가벽 디자인을 통해 프라이버시를 확보할 수 있는 방법이 존재하니 좀 더 열린 마음으로 설계를 진행하시길 바랍니다.


#프리미엄단독주택 #프리미엄전원주택 #고급단독주택 #도심형단독주택 #김포단독주택

김포-투시도.JPG

공법 : 철근콘크리트(RC)

설계, 시공 : 홈트리오(주) / 상담문의 : 1522-4279

지붕마감재 : 평지붕마감 / 외벽 마감재 : 포세린타일 / 포인트자재 : 리얼징크

실내벽마감재 : 도장마감, 타일, 실크벽지, 파벽돌 / 실내바닥마감재 : 강마루, 포세린타일

창호재 : 이건 알루미늄 3중 시스템창호

건축면적 : 308.18㎡(1층 : 160.02㎡, 2층 : 140.36㎡, 옥상층 : 7.80㎡)

예상 총 건축비 : 817,500,000원(부가세 포함, 산재보험료 포함 / 설계비, 인허가비, 구조계산 설계비 별도)

설계비 : 18,600,000원(부가세 포함) / 인허가비 : 9,300,000원(부가세 포함)

구조계산 설계비 : 9,300,000원(부가세 포함) / 인테리어 설계비 : 9,300,000원(부가세 포함)

*건축비 외 부대비용 : 대지구입비, 가구(싱크대, 신발장, 붙박이장), 기반시설 인입(수도, 전기, 가스 등), 토목공사, 조경비 등

1층.jpg 1층 평면도
2층.jpg 2층 평면도
옥상.jpg 옥상 평면도

이동혁 건축가 : 철근콘크리트 공법의 가장 큰 장점은 목조 공법 대비 넓은 공간을 확보할 수 있다는 것에 있습니다. 목조 공법의 경우 나무 부재의 길이적 한계에 따라 5미터를 넘어설 수 없습니다. 하지만 철근콘크리트의 경우 10미터 이상까지 기둥 없이 뻗어 나갈 수 있기 때문에 좀 더 자유롭게 공간 구성을 할 수 있습니다. 다만 주의해야 할 점은 공사비가 저렴하지 않습니다. 60평 미만의 소형 평수에서는 어차피 구성될 수 있는 공간의 폭이 정해져 있습니다. 한정된 면적에서 공간이 구성되기 때문에 공간을 넓게 구성하기 위해 철근콘크리트 공법을 선택할 이유는 없습니다. 이러한 각 공법의 장단점을 잘 파악하신 후 공법을 결정하시길 권해드리며, 나에게 맞는 그리고 우리 가족에게 맞는 공법을 선택하여 예쁜 집 짓길 바라겠습니다.

정다운 건축가 : 벽돌의 투박함을 싫어하시는 분들의 경우 포세린 외장타일을 선택하는 경우가 많습니다. 특히 고급 주택단지에 가게 되면 가장 많이 보이는 외장재가 포세란 외장타일입니다. 무게감과 깔끔함, 그리고 고급스러움까지 함께 가져갈 수 있기 때문입니다. 이 외장재의 경우 소형평수에서는 비추입니다. 타일의 판 자체가 크기 때문에 소형주택에서 사용하게 되면 창고처럼 보이는 말도 안 되는 상황이 벌어지거든요. 60평 이상의 중대형 평수 이상부터 사용하길 권해드리며, 디자인이 모던 스타일로 박스로 구성되어야 더 빛나 보인다는 팁을 드립니다.

임성재 건축가 : 도심형 단독주택의 경우 옥상 활용은 거의 필수라 할 수 있습니다. 앞마당이 거의 주차장 용도로 사용되기 때문에 마당의 활용도를 옥상으로 가져와야 하는 경우가 대부분입니다. 단순히 방수액을 바르고 옥상을 마감 짓는 것이 아니라 데크 및 식생 등의 나무를 심어 또 하나의 유니크한 공간을 만들어 내는 것이 좋습니다. 아마 아파트와는 다른 느낌을 얻어낼 수 있는 공간이 옥상에서 탄생할 것입니다.

메스1.jpg
메스2.jpg
메스3.jpg
메스4.jpg
김포-투시도.JPG

eFD--Ti5M7DvyVXHXruNd0cvet4.jpg (좌측부터)정다운 건축가, 이동혁 건축가, 임성재 건축가

[집이라는 본질적인 가치에 집중하다.]

Architecture Team : 홈트리오(주)

대표번호 : 1522-4279

홈페이지 : http://hometrio.kr/

KakaoTalk_20191210_164551850.jpg


KakaoTalk_20200521_090546896.jpg