11월호①-62평 5인 가족 행복하우스

젊은 전원주택 트렌드 3 - 11월호 ①

by 이동혁 건축가
KakaoTalk_20200521_090546896.jpg

스타 건축가 3인방의 집짓기 제안

제목 : 젊은 전원주택 트렌드

-전원주택 3D 투시도, 평면도 34개 사례 수록-


저자 : 이동혁, 임성재, 정다운


11월호 ① - 62평 5인 가족 행복하우스


※모든 저작권은 홈트리오(주)에게 있습니다. 최근 무단으로 디자인과 설계 평면도를 복제해 마치 본인들이 한 것인 듯 홍보하는 업체들이 있는데 법적 책임을 물을 수 있다는 점 고지드립니다.


STORY

: 5인 가족이 행복하게 사는 집. 보고만 있어도 마음이 뿌듯해지는 그러한 집을 지었습니다.


화이트톤 외장 베이스 마감으로 4면 어딜 보더라도 환한 느낌을 가져갈 수 있도록 설계하였으며, 경량 목구조 공법을 적용하여 단열과 친환경성을 가져갈 수 있도록 하였습니다. 아이들과 함께 거주할 집인 만큼 벽지 및 마루 등도 친환경 자재 등을 사용하여 마감될 수 있게 하였습니다.


이 집에서 가장 중요하게 생각한 부분이 단열 부분입니다. 가등급 단열재를 사용하여 추위에 끄떡없도록 계획하였으며, 모든 창을 이건창호 브랜드의 3중 알루미늄 시스템창호로 설계하여 벽과 창호에서 열이 손실되는 것을 최대한으로 막았습니다. 온 가족이 따뜻하고 포근하게 살 집. 보고만 있어도 흐뭇해지는 집. 이 집은 그러한 집이라고 소개해드리고 싶습니다.


전체적인 디자인을 잡을 때 '균형감'이라는 단어가 생각날 수 있도록 방향을 잡아 디자인했습니다. 특별한 것은 아니지만 너무 요란하거나 화려한 것이 아닌 안정감 있고 깔끔하고 무던하면서 수수한 멋이 느껴지는 그러한 집을 디자인하고 싶었습니다.


목조주택이기 때문에 옥상 사용은 불가능합니다. 이번 주택처럼 모두 경사도가 있는 박공 형태의 지붕 디자인을 계획하셔야 누수에 대한 위험성을 줄일 수 있습니다.

지붕 디자인의 경우 여러 개 쪼개는 방식도 괜찮지만 규모가 있고 안정감 있는 디자인을 선호하시는 분들은 이번 주택처럼 지붕의 각도 정도 틀고, 양쪽의 밸런스를 잡아주는 정도의 지붕 디자인을 계획하시는 것이 좋습니다.


박공지붕을 디자인한다고 생각하면 클래식한 옛날 집을 생각하시는 분들이 많은데 절대 그렇지 않습니다. 매스의 면만 잘 계획해도 충분히 멋스럽고 세련된 주택을 디자인할 수 있다는 것을 알아주셨으면 좋겠습니다.


마지막으로 옥상을 꼭 하셔야겠다는 분들이 계신데, 저는 확실히 말씀드릴 수 있습니다. 옥상을 사용하기 위해서는 철근콘크리트 공법으로 지어셔야 합니다. 목조도 된다고 말씀하시는 분들이 계신데 분명 누수에 대한 문제가 발생합니다. 애초에 설계에서 누수에 대한 위험성을 방지하고 설계하는 것이 제일 좋은 방법입니다. 어설프게 무언가를 덮는다던가 비가 안 새겠지 하는 맹목적 믿음만으로 어리석은 선택을 안 하셨으면 하는 바람입니다.


목조주택은 무조건 지붕을 덮어서 누수에 대한 위험성을 최소로 해야 한다는 것. 지금은 크게 공간되지 않는 말일 수도 있지만 비 한번 새면 돌이키기 힘들다는 점 꼭 명심하시고 집을 설계하고 디자인하시길 바라겠습니다.

아마 이렇게 여러 번 이야기해도 꼭 목조주택에 옥상 만드시는 분들이 계세요. 그리고 건설업체 탓하는데, 이것은 누수 생길게 뻔하기 때문에 혹 목조주택인데 옥상 만든다는 분들이 주변에 계시다면 꼭 말려주시길 바라겠습니다.


#5인가족 #2층목조주택 #모던스타일 #깔끔 #깨끗한느낌

대구-투시도.JPG

공법 : 경량목구조

설계, 시공 : 홈트리오(주) / 상담문의 : 1522-4279

지붕마감재 : 아스팔트슁글 / 외벽 마감재 : 스타코플렉스 / 포인트자재 : 세라믹사이딩, 파벽돌

실내벽마감재 : 실크벽지 / 실내바닥마감재 : 이건 강마루

창호재 : 이건 알루미늄 3중 시스템창호

건축면적 : 204.67㎡(1층 : 117.82㎡, 2층 : 86.85㎡)

예상 총 건축비 : 396,600,000원(부가세 포함, 산재보험료 포함 / 설계비, 인허가비, 구조계산 설계비 별도)

설계비 : 9,300,000원(부가세 포함) / 인허가비 : 6,200,000원(부가세 포함)

구조계산 설계비 : 6,200,000원(부가세 포함) / 인테리어 설계비 : 6,200,000원(부가세 포함)

*건축비 외 부대비용 : 대지구입비, 가구(싱크대, 신발장, 붙박이장), 기반시설 인입(수도, 전기, 가스 등), 토목공사, 조경비 등

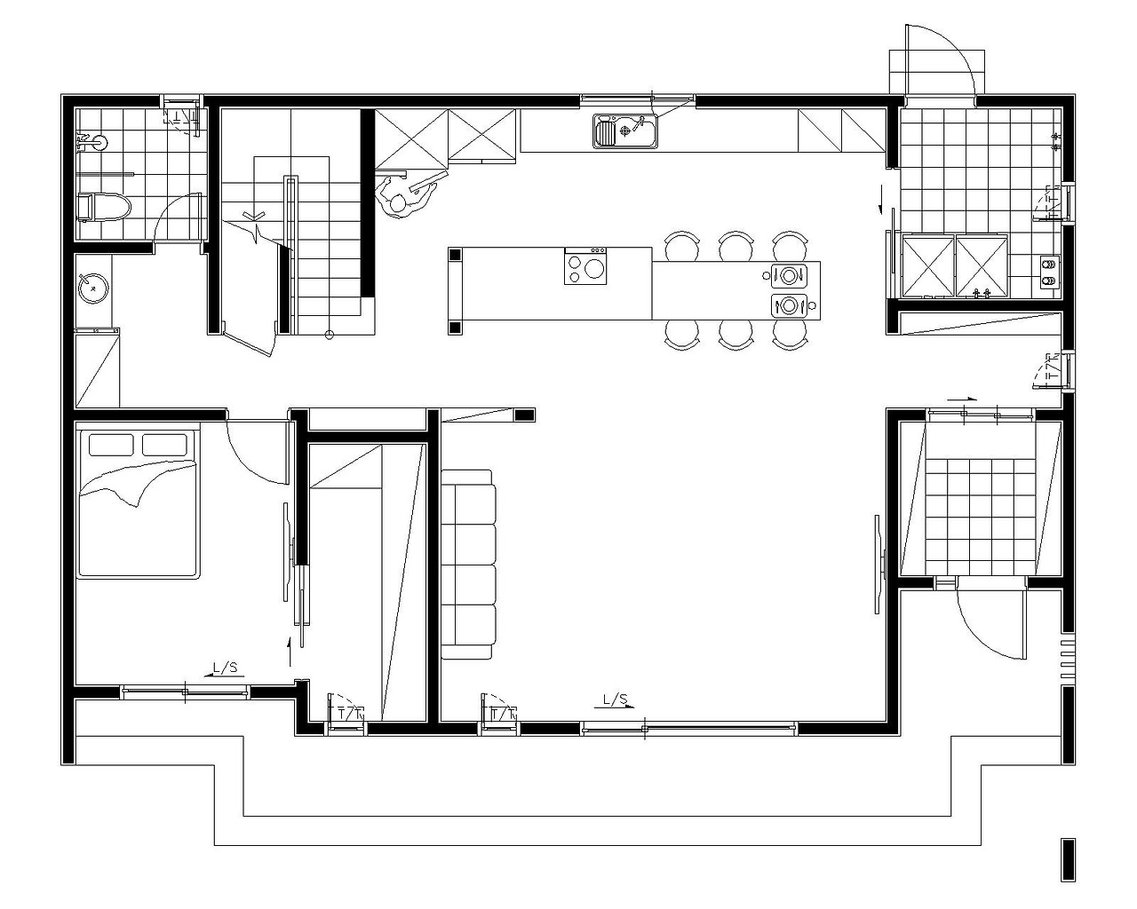
1층.jpg 1층 평면도
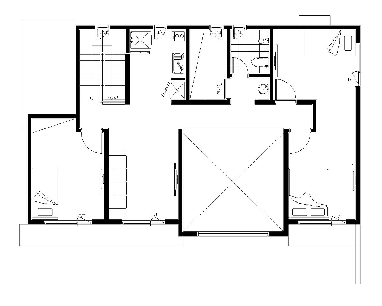
2층.jpg 2층 평면도

이동혁 건축가 : 전체 외관 디자인을 계획할 때 중요하게 생각한 부분이 2가지 있었습니다. 첫 번째는 외장재의 추가 비용을 최소화시킬 것. 그리고 깨끗한 느낌의 밝은 기운으로 마감해 줄 것. 이 두 조건으로 인해 화이트톤 스타코플렉스가 베이스가 되었으며, 약간의 포인트만 넣어주는 계획을 진행하였습니다. 두 번째는 웅장한 매스 감을 느낄 수 있을 것. 남향의 전면부를 모두 채우는 설계 방식을 사용했습니다. 자연스럽게 집이 커 보이는 효과를 얻을 수 있었으며, 남쪽으로 창을 모두 내어 햇빛 가림 없이 모든 실이 균등한 채광을 받을 수 있게 하였습니다. 스타코플렉스의 오염이 많이 걱정되실 텐데 이번 주택처럼 처마 부분만 확실하게 계획해 줄 수 있다면 생각보다 적은 오염을 보실 수 있을 것입니다.

정다운 건축가 : 1층에서 넓은 주방과 거실을 하나의 원 스페이스로 구성하는 것이 이 집 1층 평면의 핵심입니다. 어설프게 공간을 쪼개는 것이 아닌 우측의 현관을 들어왔을 때 탁 트이고 정해진 평수 대비 넓은 공간적 개방감을 사용자로 하여금 느끼게 하고 싶었습니다. 아이를 키우는 집인 만큼 마음껏 뛰놀 수 있는 공간을 확보해 주고자 노력하였으며, 계단실과 안방 프라이빗 존을 좌측으로 모두 몰아 거실과 주방에서 만큼은 확실하게 뛰어놀 수 있는 공간을 만들어 주고자 한 설계안입니다.

임성재 건축가 : 2층의 평면이 타 주택과는 많이 다릅니다. 별도의 가족실과 탕비실이 존재하며, 1층에 굳이 내려오지 않더라도 2층에서 독립적인 생활이 가능하도록 설계하였습니다. 방은 총 3개로 1개는 독립적으로 2개 방은 가변성을 가질 수 있도록 설계하였습니다. 가구로 방을 구분할 수도 있으며, 가벽을 세워 각각 사용하다가 자녀들이 출가한 후에는 가벽을 철거해 하나의 넓은 공간으로 사용할 수 있도록 설계하였습니다.

메스1.jpg
메스2.jpg
메스3.jpg
메스4.jpg
대구-투시도.JPG

eFD--Ti5M7DvyVXHXruNd0cvet4.jpg (좌측부터)정다운 건축가, 이동혁 건축가, 임성재 건축가

[집이라는 본질적인 가치에 집중하다.]

Architecture Team : 홈트리오(주)

대표번호 : 1522-4279

홈페이지 : http://hometrio.kr/

KakaoTalk_20191210_164551850.jpg


KakaoTalk_20200521_090546896.jpg