brunch

'3대가 같이 사는 집' 86평 청라 단독주택 완공

#30 홈트리오 시공사례 - 건축비 : 55,880만 원

by 이동혁 건축가
KakaoTalk_20200521_090546896.jpg


*구독 버튼은 필수인 것 다들 아시죠^^

HC033-6517r.jpg

제목 : '3대가 같이 사는 집' 86평 청라 단독주택 완공

소제목 : #30 홈트리오 시공사례 - 건축비 : 55,880만원


STORY

: 단독주택. 하나의 집이지만 두 가구가 살 수 있는 집.


현관 입구에서부터 동선을 분리하여 각 세대별로 완벽한 프라이버시를 확보할 수 있는 독자적인 주택으로 설계를 했습니다. 다가구 주택이라고 하면 제일 먼저 떠오르는 이미지가 '빌라'일 것입니다. 획일적인 디자인과 저렴해 보이는 느낌.


이번 ‘3대가 같이 사는 집’은 도심형 단독주택 프로젝트로 모던한 느낌의 세련된 입면 디자인에 하나의 집처럼 보이도록 설계기법을 사용하여 모든 사람들의 눈길을 사로잡을 수 있는 집으로 탄생되었으며, 각 세대가 불편함 없이 독립적으로 활동할 수 있다는 점에서 캥거루 주택의 새로운 방향성을 제시했다고 볼 수 있습니다.


애초에 현관을 각각 두지 않고 하나의 홀을 통해 다시 각 집으로 들어가게 한 이유는 단독주택 필지의 법규에 있습니다. LH가 분양하는 단독주택 필지의 경우 다가구가 안 되는 경우가 많습니다. 다시 말해 현관을 두 개로 구분하게 되면 다가구나 다세대로 분류되니 인허가 상에서 애초에 허가가 나지 않는다는 뜻입니다. 이러한 경우에는 한 가구인 단독주택만이 허가가 나며, 이번 사례처럼 부모세대와 자녀세대가 독자적으로 한 건물에서 살기 위해서는 부득이하게 일단 현관을 들어와서 다시 각 문을 통해 현관으로 들어가는 방식으로 설계가 진행되어야 합니다. 편의성 때문이 아닌 법적인 부분 때문에 이번 사례처럼 공간을 구성했다는 점 인지해 주시기 바랍니다. 내 땅이니 내 마음대로 하고자 하시지만 건축법규는 최우선 순위이기 때문에 법을 어기면서 건축을 진행할 수는 없습니다. 만약 필지 자체의 법규가 위와 같지 않다면 얼마든지 자유롭게 다가구로 구성 가능합니다.


단독주택의 디자인과 빌라의 디자인은 그 시작점에서 많은 차이점을 가집니다. 빌라는 수익성 모델입니다. 디자인이 우선되는 것이 아닌 내부 공간을 최대한 넓게 구성하고 법적 허용범위의 끝선까지 공간을 채워먹습니다. 팔아야 하는 주택이니 아까운 공간을 남길 필요가 없기 때문입니다.

단독주택은 어떨까요? 수익성처럼 무조건 공간을 찾아먹는 것이 우선일까요? 당연히 그렇지 않겠죠. 정확한 프라이버시와 우리 가족만을 위한 공간 구성, 그리고 넓은 마당과 내 차를 안전하게 주차할 수 있는 주차장 설계까지. 또한 디자인도 모든 공간을 찾아먹는 형식이 아니기 때문에 독창적인 디자인이 가능하며, 창문도 각 공간에 맞게 배치가 가능합니다.


단독주택을 설계할 때 가장 많이 빠지는 고정관념은 1층에 무조건 방이 있어야 한다는 것입니다. 물론 부모님 세대의 경우 무릎이 아프니 당연히 1층에 방을 구성해야 되지만 젊은 자녀세대의 경우 좀 더 오픈된 공용공간을 가져가는 것이 더 유리하므로 고집해서 1층에 방을 만들 이유는 없습니다.

좀 더 열린 생각으로 공간 구성을 진행하시는 것이 좋으며, 남의 집이 아닌 우리 가족이 정말로 필요한 공간들을 각 층별로 구성하는 것이 좋습니다.


마지막으로 발코니에 대한 조언을 드리면, 발코니에 지붕은 덮여있지만 외기에 접하는 부분이다 보니 세월이 지남에 따라 하자율이 가장 높게 발생하는 한 부위 중 하나입니다. 그래서 최근에는 초창기 비용이 들더라도 폴딩도어처럼 비가 오거나 추위가 왔을 때 1차적으로 외부환경을 차단할 수 있는 방법을 추천드립니다. 예산이 없으시면 어쩔 수 없지만 되도록이면 발코니 부분에도 폴딩도어를 설치해야 유지관리 측면에서 유리하다는 것을 인지해 놓고 계시길 바랍니다.


SPEC

공법 : 경량 목구조

설계, 시공 : 홈트리오(주) / 상담문의 : 1522-4279

지붕마감재 : 아스팔트슁글 / 외벽 마감재 : 스타코플렉스 / 포인트자재 : 리얼징크, 파벽돌, 세라믹사이딩

실내벽마감재 : 실크벽지/ 실내바닥마감재 : 이건 강마루

창호재 : 이건 알루미늄 3중 시스템창호

건축면적 : 285.16㎡(1층 : 150.85㎡, 2층 : 126.71㎡, 다락 : 7.6㎡)

예상 총 건축비 : 558,800,000원(부가세 포함, 산재보험료 포함 / 설계비, 인허가비, 구조계산 설계비 별도)

설계비 : 12,900,000원(부가세 포함) / 인허가비 : 8,600,000원(부가세 포함)

구조계산 설계비 : 8,600,000원(부가세 포함) / 인테리어 설계비 : 8,600,000원(부가세 포함)

*건축비 외 부대비용 : 대지구입비, 가구(싱크대, 신발장, 붙박이장), 기반시설 인입(수도, 전기, 가스 등), 토목공사, 조경비 등


HC033-6292r.jpg (좌측부터) 이동혁 건축가, 임성재 건축가, 정다운 건축가

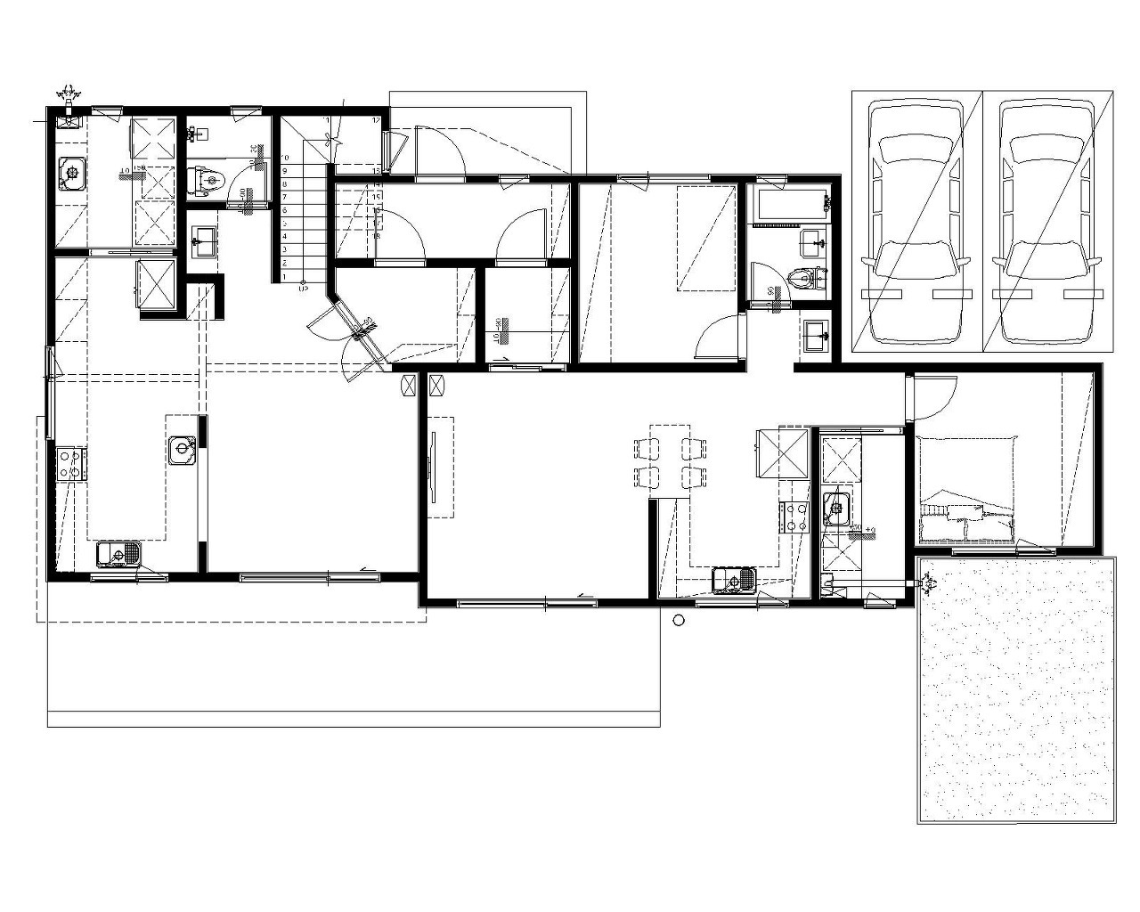
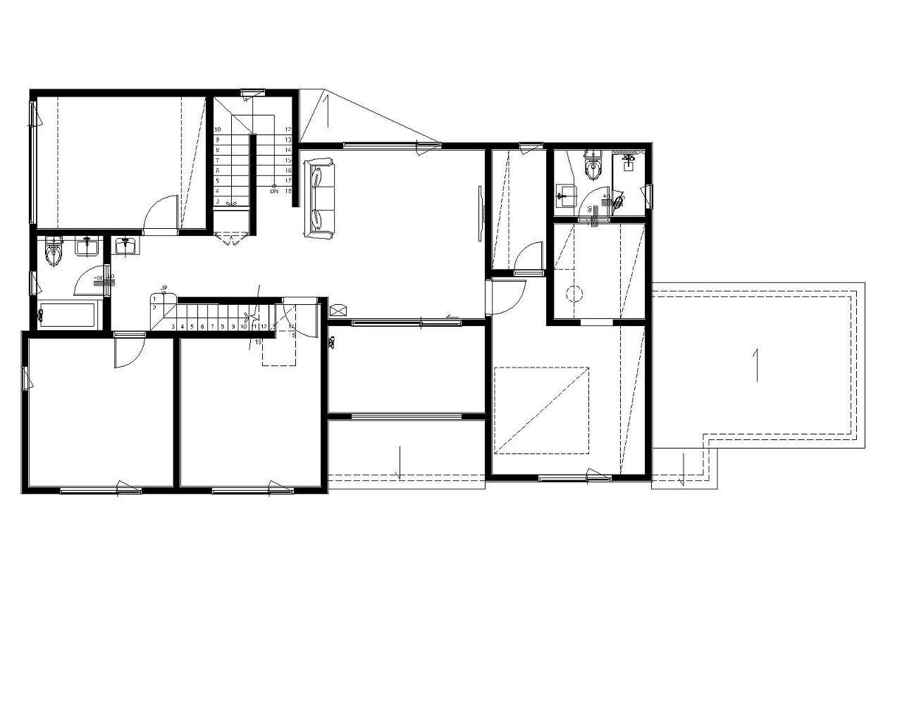
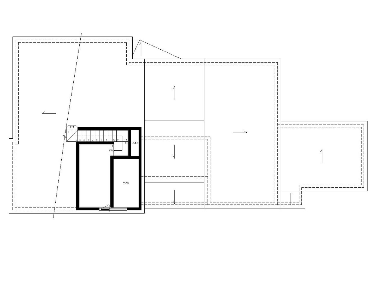
Floor Plan

1.jpg 1층 평면도
2.jpg 2층 평면도
3.jpg 다락 평면도

이동혁 건축가 : 디자인을 먼저 잡고 평면을 잡는 것이 아닌 내부 공간을 먼저 구성 후 그다음 디자인을 잡는 것이 순서입니다. 원하는 디자인은 공간 설계가 끝난 후 옷을 입히는 단계이며, 디자인에 맞추어 설계가 이루어지지는 않습니다. 그 이유는 간단합니다. 삶은 중심이 되는 공간은 내부 공간 구성과 동선이지 디자인이 아니거든요. 빌딩이나 작품성을 원하시는 건축물의 경우에는 디자인부터 잡기도 하지만 주거에서는 절대로 그렇게 하지 않습니다. 꼭 기억하세요. 내가 살아갈 실내공간 구성이 우선이라는 것을요.

정다운 건축가 : 창문을 전 창 알루미늄 3중 시스템으로 구성한 이후 단열적인 부분과 내구성에 대한 불만은 거의 안 나오고 있어요. 이보다 더 좋은 창은 없다시피 하거든요. 벽체 단열과 창문 단열. 여기서 돈 줄일 생각 마시고 제일 좋은 것으로 하세요. 그래야 10년이 지나도 후회가 없습니다.

임성재 건축가 : 캥거루 주택의 이미지도 많이 변화되고 있습니다. 단순히 다가구로 짓는 느낌이 아닌 하나의 집이지만 내부에서 공간이 구분되는 형태. 그리고 꼭 두 집이 같은 형태로 지어져야 하는 것도 아닙니다. 내 땅에 내 건물을 짓는 만큼 원하시는 공간만큼만 설계하고 지으시면 됩니다. 각 가족의 구성원에 따라 얼마든지 내부 공간 설계가 가능하답니다. 마지막으로 팔 생각하고 집 짓지 마세요. 그냥 건축주님이 처음부터 원하셨던 이상적인 공간으로 설계하세요. 간혹 집 팔 생각으로 가족 구성원과 상관없이 설계하시는 분들이 계신데 분명 후회하십니다. 아셨죠! 단독주택은 아파트가 아님을 기억하셔야 합니다.


HC033-6519r.jpg
HC033-6524r.jpg
HC033-6525r.jpg
HC033-6530r.jpg
HC033-6329r.jpg
HC033-6331r.jpg
HC033-6332r.jpg
HC033-6333r.jpg
HC033-6335r.jpg
HC033-6337r.jpg
HC033-6338r.jpg
HC033-6342r.jpg
HC033-6343r.jpg
HC033-6345r.jpg
HC033-6346r.jpg
HC033-6348r.jpg
HC033-6351r.jpg
HC033-6353r.jpg
HC033-6354r.jpg
HC033-6356r.jpg
HC033-6358r.jpg
HC033-6360r.jpg
HC033-6361r.jpg
HC033-6363r.jpg
HC033-6366r.jpg
HC033-6368r.jpg
HC033-6372r.jpg
HC033-6373r.jpg
HC033-6374r.jpg
HC033-6375r.jpg
HC033-6376r.jpg
HC033-6378r.jpg
HC033-6379r.jpg
HC033-6380r.jpg
HC033-6382r.jpg
HC033-6383r.jpg
HC033-6385r.jpg
HC033-6387r.jpg
HC033-6389r.jpg
HC033-6390r.jpg
HC033-6391r.jpg
HC033-6393r.jpg
HC033-6394r.jpg
HC033-6398r.jpg
HC033-6399r.jpg
HC033-6400r.jpg
HC033-6401r.jpg
HC033-6403r.jpg
HC033-6404r.jpg
HC033-6408r.jpg
HC033-6410r.jpg
HC033-6412r.jpg
HC033-6414r.jpg
HC033-6416r.jpg
HC033-6419r.jpg
HC033-6420r.jpg
HC033-6422r.jpg
HC033-6424r.jpg
HC033-6426r.jpg
HC033-6427r.jpg
HC033-6428r.jpg
HC033-6430r.jpg
HC033-6431r.jpg
HC033-6433r.jpg
HC033-6434r.jpg
HC033-6436r.jpg
HC033-6438r.jpg
HC033-6441r.jpg
HC033-6442r.jpg
HC033-6444r.jpg
HC033-6445r.jpg
HC033-6447r.jpg
HC033-6448r.jpg
HC033-6454r.jpg
HC033-6455r.jpg
HC033-6457r.jpg
HC033-6458r.jpg
HC033-6459r.jpg
HC033-6460r.jpg
HC033-6462r.jpg
HC033-6463r.jpg
HC033-6464r.jpg
HC033-6466r.jpg
HC033-6467r.jpg
HC033-6470r.jpg
HC033-6471r.jpg
HC033-6473r.jpg
HC033-6474r.jpg
HC033-6475r.jpg
HC033-6477r.jpg
HC033-6478r.jpg
HC033-6479r.jpg
HC033-6480r.jpg
HC033-6481r.jpg
HC033-6483r.jpg
HC033-6484r.jpg
HC033-6485r.jpg
HC033-6486r.jpg
HC033-6487r.jpg
HC033-6488r.jpg
HC033-6489r.jpg
HC033-6490r.jpg
HC033-6492r.jpg
HC033-6496r.jpg
HC033-6498r.jpg
HC033-6499r.jpg
HC033-6502r.jpg
HC033-6517r.jpg
HC033-6292r.jpg (좌측부터) 이동혁 건축가, 임성재 건축가, 정다운 건축가

HC017-2574r.jpg (좌측부터) 정다운 건축가, 임성재 건축가, 이동혁 건축가

[집이라는 본질적인 가치에 집중하다.]

Architecture Team : 홈트리오(주)

대표번호 : 1522-4279

홈페이지 : http://hometrio.kr/

KakaoTalk_20191210_164551850.jpg
KakaoTalk_20200521_090546896.jpg


keyword