brunch

'겨울에 핀 꽃' 67평 일산애니아트힐즈 단독주택 완공

#32 홈트리오 시공사례 - 건축비 : 56,000만 원

by 이동혁 건축가
KakaoTalk_20200521_090546896.jpg


*구독 버튼은 필수인 것 다들 아시죠^^


HC035-7076r.jpg


제목 : '겨울에 핀 꽃' 67평 일산 풍동 애니아트힐즈 단독주택 완공

소제목 : #32 홈트리오 시공사례 - 건축비 : 56,000만원


STORY

: 일산 풍동 애니아트힐즈 도심형 전원주택 단지에 설계된 화사한 느낌의 도심형 단독주택.

시내 중심가에 지어지는 이번 주택을 설계하기 위해 다양한 아이디어들을 고민했었습니다. 도심형 단독주택 단지의 특성상 단지별 디자인 조례가 존재하기 때문에 그 법규를 만족하되, 이 집만이 간직한 유니크함을 디자인적으로 표현하고자 많은 노력을 진행하였습니다.


3층 규모의 매스를 잡고 4인 가족이 생활하기에 부족함이 없도록 공간 구성을 진행했으며, 아파트가 아닌 단독주택만이 가진 매력을 듬뿍 느낄 수 있도록 다양한 공간 아이디어들을 접목시켰습니다.

이번 주택에 사용된 외장재는 모노롱벽돌로 와이드로 긴 벽돌을 조적으로 쌓아 올린 형태입니다. 묵직한 와이드 벽돌이 주는 무게감과 밝은 그레이톤에 가까운 색감 적용으로 유니크함을 이 집에 입혀주었습니다.

입면 매스 디자인을 할 때 전체적인 느낌 또는 방향성 정도만 정해놓은 뒤 평면부터 구성하는 것이 좋습니다. 너무 외관에 치중하다 보면 정작 중요한 내부 공간 설계를 엉망으로 하는 경우가 있거든요.


이번 설계를 진행하면서 특징적인 부분이라고 하면, 각 층별로 구분된 공간 구성일 것입니다.

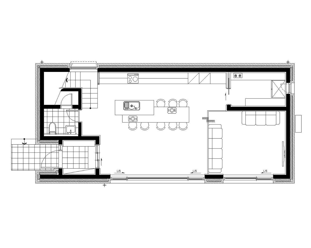
1층에 방을 없애는 대신 넓은 거실과, 주방, 식당 공간을 확보할 수 있었으며, 벽 자체가 거의 존재하지 않기 때문에 현관을 들어왔을 때 탁 트인 넓은 대 공간을 마주할 수 있을 것입니다. 1층의 정확한 면적은 23.3평입니다. 23평 자체만을 놓고 보면 결코 큰 공간이 아님을 여러분도 아실 수 있을 것입니다. 하지만 어설프게 이 공간을 벽으로 구분 짓게 되면 안 그래도 작아 보이는 공간이 더 작아 보이는 현상을 얻게 됩니다.


다리가 불편한 부모님 집을 짓는 경우에는 당연히 1층에 방이 존재해야 되겠지만 만약 젊은 건축주님들이 집을 짓는다면 1층에 안방을 고집할 이유가 없다는 것을 이번 사례를 통해 말씀드리고 싶었습니다.

공간을 층간 분리하는 것은 그동안 일반적인 단독주택이 아닌 스킵플로어 형태로 구성하는 협소 주택이나 땅콩주택에서 많이 사용되었던 설계기법이었습니다. 벽을 통해 공간을 구성하는 것이 아닌 층을 통해 동선과 구획을 나누어주어 가시적으로 막혀있던 공간을 최대한 오픈시켜주자가 그 목적이었습니다.


스킵플로어 형식은 아니지만 이번 주택처럼 3층 이상의 공간을 만드는 단독주택이라면 층간 동선분리로 공용공간, 안방 공간, 자녀 공간을 확실히 구분 지어줄 수 있다는 점을 아이디어로 얻어가셨으면 합니다.

이번 주택에서는 단열을 준패시브급으로 꽉 채워 놓았습니다. 물론 금액적 부분에서는 많은 상승 요인으로 작용하였지만 난방비를 생각하신다면 압도적인 효율성을 얻으실 수 있을 것입니다.


일단 창문은 전체 이건 알루미늄 3중 시스템 창호를 적용하였습니다. 양면 로이코팅을 진행하여 단열을 강화하였으며, 프레인 반강화와 진공유리까지 적용하여 창호에서 넣을 수 있는 최고의 단열을 확보했습니다.

중부지방 기준인 외단열을 기본으로 적용하였으며, 거기에 더해 내부 8mm 열반사 단열재를 추가 보강하여 내부의 단열성을 한층 더 확보하였습니다. 내부 열반사 단열재의 경우 단열효과도 좋지만 내부의 결로를 1차적으로 방지할 수 있다는 점이 가장 큰 장점이라 할 수 있습니다.


심플함 속에 숨겨진 멋스러운 단독주택. 일산 풍동 애니아트힐즈의 랜드마크적인 주택이 될 것이라 확신하며, 도심형 단독주택을 고민 중이신 분들이라면 많은 참고를 할 수 있는 표본적인 주택이라 평하고 싶습니다.


SPEC

공법 : 철근콘크리트조(RC)

설계, 시공 : 홈트리오(주) / 상담문의 : 1522-4279

지붕마감재 : 리얼징크(0.7T) / 외벽 마감재 :모노롱블럭(조적) / 포인트자재 : 모노롱블럭(조적), 리얼징크(0.7T)

실내벽마감재 : 실크벽지+도장마감 / 실내바닥마감재 : 강마루, 포세린타일

창호재 : 이건 알루미늄 3중 시스템창호(로이양면)

건축면적 : 221.86㎡(1층 : 77.14㎡, 2층 : 77.14㎡, 3층 : 67.58㎡)

예상 총 건축비 : 560,000,000원(부가세 포함, 산재보험료 포함 / 설계비, 인허가비, 구조계산 설계비 별도)

설계비 : 13,400,000원(부가세 포함) / 인허가비 : 6,700,000원(부가세 포함)

구조계산 설계비 : 6,700,000원(부가세 포함) / 인테리어 설계비 : 6,700,000원(부가세 포함)

*건축비 외 부대비용 : 대지구입비, 가구(싱크대, 신발장, 붙박이장), 기반시설 인입(수도, 전기, 가스 등), 토목공사, 조경비 등


HC035-6914r.jpg (좌측부터) 정다운 건축가, 임성재 건축가, 이동혁 건축가

Floor Plan

1.jpg 1층 평면도
2.jpg 2층 평면도
3.jpg 3층 평면도

이동혁 건축가 : 일반적인 벽돌이 식상하다 생각하시는 분들은 가로로 긴 모노롱벽돌을 고려해보시면 좋을 듯합니다. 긴 벽돌을 조적식으로 쌓아 올린다고 생각하시면 될 듯하며, 일반 벽돌 비율보다 가로가 길기 때문에 집이 더 커 보이는 디자인적 효과를 얻을 수 있습니다. 다만 문제가 있다면 저렴하지는 않습니다.

정다운 건축가 : 평면구성을 하실 때 공용공간과 개인 공간을 명확하게 구분 짓는 것이 좋습니다. 2층 주택의 경우 일반적으로 코어 부분이라고 하는 계단실과 화장실을 중심으로 기 구역을 구분하는데 층수가 3층 이상 된다면 이번 주택처럼 층간 분리를 고려하시는 것도 좋습니다. 1층은 완벽한 공용공간으로 구성하고, 2층은 부모님이 거주하는 안방 존, 3층은 자녀존으로 구성하여 특별히 벽을 구성하지 않더라도 동선과 프라이빗 공간이 자연스럽게 층간 분리되는 효과를 누리실 수 있습니다.

임성재 건축가 : 모던한 느낌의 건물을 디자인할 때에는 최대한 면을 깔끔하게 잡는 것이 좋습니다. 박스형의 이미지가 너무 공장 같다고 싫어하시는 분들도 계신데 이는 입면 디자인 안을 설계할 때 볼륨감을 고려하지 않아서 그렇습니다. 깔끔하고 모던한 느낌을 주되 일반적인 박스 이미지로 보이지 않게 하기 위해서는 일정 부분 들어가고 나오는 부분이 존재해야 하며, 층별로 창문의 크기 등을 조절해 주어야 합니다.


<외관>

HC035-6927r.jpg
HC035-6929r.jpg
HC035-6932r.jpg
HC035-6936r.jpg
HC035-6942r.jpg
HC035-6947r.jpg
HC035-6952r.jpg
HC035-6956r.jpg
HC035-6962r.jpg
HC035-6964r.jpg
HC035-6966r.jpg
HC035-6971r.jpg
HC035-6973r.jpg
HC035-6975r.jpg


<1층>

HC035-7067r.jpg
HC035-7064r.jpg
HC035-7041r.jpg
HC035-7042r.jpg
HC035-7043r.jpg
HC035-7044r.jpg
HC035-7045r.jpg
HC035-7047r.jpg
HC035-7048r.jpg
HC035-7049r.jpg
HC035-7050r.jpg
HC035-7051r.jpg
HC035-7053r.jpg
HC035-7054r.jpg
HC035-7055r.jpg
HC035-7056r.jpg
HC035-7058r.jpg
HC035-7060r.jpg
HC035-7062r.jpg
HC035-7063r.jpg


<2층>

HC035-1r.jpg
HC035-2r.jpg
HC035-3r.jpg
HC035-4r.jpg
HC035-5r.jpg
HC035-6r.jpg
HC035-7r.jpg
HC035-9r.jpg
HC035-39r.jpg
HC035-10r.jpg
HC035-11r.jpg
HC035-12r.jpg
HC035-13r.jpg
HC035-14r.jpg
HC035-15r.jpg
HC035-16r.jpg
HC035-17r.jpg
HC035-18r.jpg
HC035-19r.jpg
HC035-20r.jpg
HC035-21r.jpg
HC035-6976r.jpg
HC035-6978r.jpg
HC035-6979r.jpg
HC035-6980r.jpg
HC035-6981r.jpg
HC035-6982r.jpg
HC035-6983r.jpg
HC035-6984r.jpg
HC035-6994r.jpg


<3층>

HC035-22r.jpg
HC035-23r.jpg
HC035-24r.jpg
HC035-25r.jpg
HC035-26r.jpg
HC035-27r.jpg
HC035-28r.jpg
HC035-29r.jpg
HC035-30r.jpg
HC035-31r.jpg
HC035-32r.jpg
HC035-33r.jpg
HC035-34r.jpg
HC035-35r.jpg
HC035-36r.jpg
HC035-37r.jpg
HC035-38r.jpg


<야경>

HC035-7074r.jpg
HC035-7076r.jpg
HC035-7078r.jpg
HC035-7079r.jpg
HC035-7080r.jpg
HC035-6914r.jpg (좌측부터) 정다운 건축가, 임성재 건축가, 이동혁 건축가

HC017-2574r.jpg (좌측부터) 정다운 건축가, 임성재 건축가, 이동혁 건축가

[집이라는 본질적인 가치에 집중하다.]

Architecture Team : 홈트리오(주)

대표번호 : 1522-4279

홈페이지 : http://hometrio.kr/

KakaoTalk_20191210_164551850.jpg
KakaoTalk_20200521_090546896.jpg


keyword