02-05화. 심플함에 젊음을 더하다

PART 02-05화. 안동 39평 2층 전원주택

by 이동혁 건축가
KakaoTalk_20200521_090546896.jpg

제목 : 나의 첫 번째 전원주택 짓기

-전원주택 20개의 이야기를 담아내다-


저자 : 이동혁, 임성재, 정다운


PART 02. 나의 첫 번째 전원주택 짓기 20개의 스토리


05화. 심플함에 젊음을 더하다 : 안동 39평 2층 전원주택

HC030-5800r.jpg

SPEC

공법 : 경량 목구조

설계, 시공 : 홈트리오(주) / 상담문의 : 1522-4279

지붕마감재 : 아스팔트슁글 / 외벽 마감재 : 스타코플렉스 / 포인트자재 : 합성목재

실내벽마감재 : 실크벽지/ 실내바닥마감재 : 이건 강마루

창호재 : 이건 PVC 3중 시스템창호

건축면적 : 128.09㎡(1층 : 95.70㎡, 2층 : 32.39㎡)

예상 총 건축비 : 249,700,000원(부가세 포함, 산재보험료 포함 / 설계비, 인허가비, 구조계산 설계비 별도)

설계비 : 5,850,000원(부가세 포함) / 인허가비 : 3,900,000원(부가세 포함)

구조계산 설계비 : 3,900,000원(부가세 포함) / 인테리어 설계비 : 3,900,000원(부가세 포함)

*건축비 외 부대비용 : 대지구입비, 가구(싱크대, 신발장, 붙박이장), 기반시설 인입(수도, 전기, 가스 등), 토목공사, 조경비 등


KEYWORD#

: 젊은감성, 모던스타일, 박공지붕의매력, 높은천장, 넓은거실과주방


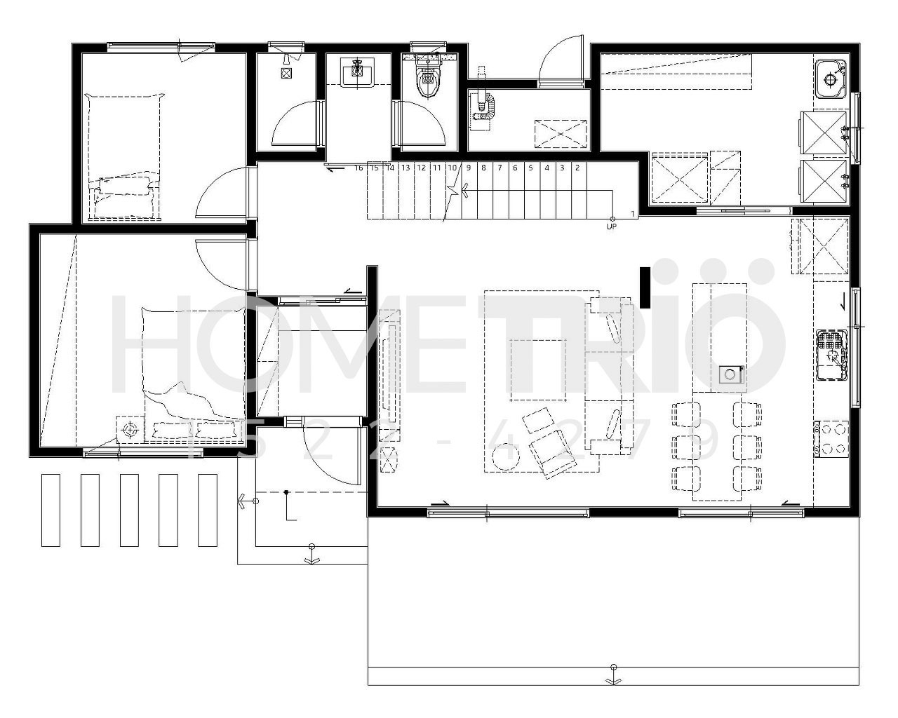
FLOOR PLAN

1층-워터마크.jpg 1층 평면도
2층-워터마크.jpg 2층 평면도

ARCHITECTURE STORY

: 깨끗한 느낌이라는 것이 바로 이런 느낌일까요. 군더더기 없는 디자인에 화이트톤 스타코플렉스 마감으로 정말 예쁘다는 말이 절로 나오는 집으로 완성이 된 주택입니다.


모든 사람들이 로망이죠. 화이트 한 느낌의 짓는다는 것. 하지만 우리의 현실은 자꾸만 오염에 대한 걱정 때문에 어두운 계열을 선택하는 쪽으로 결정이 이동합니다.

밝은 계열의 마감재를 사용한 집과 어두운 계열의 마감재를 사용한 집이 나란히 있을 때 취향적인 부분이 조금 존재하겠지만 전문가인 제가 보았을 때에는 화이트 한 집이 훨씬 커 보이고 예뻐 보입니다. 아무래도 밝은 느낌이 주는 분위기가 어두운 것보다는 우위에 있기 때문일 거예요.


외부 디자인을 할 때 가장 많이 고민하시는 것이 눈물자국이라고 부르는 오염입니다. 어떠한 외장재를 사용하던 오염을 완전히 없앨 수는 없답니다. 다만 돌이나 어두운 계열의 마감재로 외장재를 사용할 경우 눈에 덜 띄는 효과를 얻을 수는 있겠지요.

우리들은 왜 눈물자국 및 오염이 생기는지 원인을 파악해 보아야 합니다. 많이들 그냥 화이트 계열로 밝게 마감했으니 오염이 더 잘 발생한다 생각하지만 절대 그렇지 않습니다. 충분히 오염에 대한 부분을 막을 수 있고, 그 기간을 늦출 수 있답니다.


답은 생각보다 쉽답니다. 저희 집들을 보면 처마라는 부분이 대부분 존재합니다. 눈물자국이 발생하는 이유는 처마가 없이 지붕면과 벽면이 맞닿았을 경우 지붕에 있는 먼지들이 빗물을 타고 벽면으로 흘러내리기 때문입니다. 이 부분만 방지할 수 있다면 눈물자국에 생기는 것을 막을 수 있겠지요.


다만 모던한 느낌을 내야 하는 집에서는 처마라는 부분이 생기는 순간 클래식한 느낌으로 변모하는 상황이 발생할 거예요. 이러한 상황에서는 내가 디자인을 조금 더 중요하게 생각하는지, 아니면 유지관리적인 측면을 더 중요하게 생각하는지를 판단한 후 최종 결정을 내리시면 되세요. 여러분들이 기억할 것은 처마가 없는 집의 경우에는 눈물자국은 무조건 생긴다는 것이에요. 설계 디자인 단계에서 이러한 부분을 잡아주지 않는다면 오염에 대한 부분은 외장재에 대한 책임이 아닌 건축주님 본인의 책임이라는 것. 이제는 왜 생기는지 아셨으니 방지할 것인지 아니면 디자인을 더 챙길 것인지 생각해보시면 된답니다.


이번 주택을 설계하면서 건축주님과 가장 많이 고민한 부분이 1층 평면 부분이었습니다. 도심에서 전원생활로 가족이 모두 이사를 오는 상황이었기 때문에 불편함 없이 현 라이프스타일을 그대로 즐기면서 전원이라는 테마를 부가적으로 얹혀주어야 하는 상황이었습니다.


아파트와 전원생활의 가장 큰 차이점은 개방감에 있습니다. 현관을 들어왔을 때 아파트 구조처럼 복도 및 답답함을 먼저 마주하는 것이 아니라 일단 탁 트인 개방감과 펜트하우스처럼 느껴지는 공간에 대한 시각적 인지는 이 공간에 생활하는 그 자체만으로도 또 다른 행복감을 전해줄 수 있거든요.


첫 설계 방향보다 1층 평면의 공간이 조금 늘어났습니다. 가장 큰 이유는 방 개수에 있습니다. 일반적으로 안방 하나만 1층에 구성하는 방향에서 무리하더라도 방을 2개 넣어주는 안으로 설계를 진행하였으며, 2층이라는 공간은 오롯이 자녀가 혼자만의 독자적인 공간감을 가져갈 수 있도록 하였습니다.


거실 층고를 올리는 오픈 천장에 대한 부분에서 많은 취향적 갈림이 존재하는 것을 알고 있습니다. 한국은 온돌문화가 기본입니다. 아무리 바닥난방을 해도 층고가 높을 경우 위로 따뜻한 공기가 올라가버리기 때문에 1층은 항상 냉한 기운이 돌 수밖에 없습니다. 이를 해결하기 위해서는 무조건 공기를 데울 수 있는 보조난방기기를 가지고 가야 합니다. 우리나라에서는 벽난로가 대표적이며, 장작을 땔 것인지 아니면 펠릿 벽난로처럼 연료를 넣어 사용할 것이지 결정하셔야 합니다.


최근에 1층 공용화장실을 설계할 때 분리형 배치를 많이 사용하고 있습니다. 아파트처럼 통합으로 변기, 세면기, 샤워기가 같은 공간에 있는 것이 아닌 이 3가지를 모두 분리하여 배치하는 것인데요. 면적이 조금 더 들어간다는 단점이 있지만 호텔느낌의 분위기를 자아낼 수 있다는 점과 각 공간을 한 사람이 아닌 2명 이상의 사람이 동시에 사용할 수 있다는 장점이 있습니다.


마지막으로 목조주택은 단열에 있어서는 가장 뛰어난 성능을 보이지만 반대로 누수에 대해 가장 취약한 면모를 보입니다. 그렇기 때문에 누수에 대한 부분을 애초에 방지할 수 있는 설계를 제안해야 합니다. 간혹 목조주택을 철근콘크리트 주택처럼 설계하시는 분들이 계신데 1년은 버틸지 몰라도 그 이후에는 누수에 대한 위험성을 계속해서 안고 가야 합니다. 옥상은 사용불가, 2층 발코니도 가급적이면 창문을 달아주는 것이 좋고 지붕은 필수. 마지막으로 화장실 부분은 시트 방수로 완벽 방수 진행할 것.


집은 비안 새고 따뜻하면 잘 지어진 것이라 판단합니다. 기본을 지키는 것. 디자인에 너무 빠져 기본을 어기는 설계는 절대 하시면 안 된답니다.


ARCHITECT

HC030-5737r.jpg (좌측부터) 이동혁 건축가, 임성재 건축가, 정다운 건축가

HC030-5793r.jpg
HC030-5798r.jpg
HC030-0154r.jpg


HC030-5527r.jpg
HC030-5532r.jpg
HC030-5537r.jpg
HC030-5540r.jpg
HC030-5543r.jpg
HC030-5545r.jpg
HC030-5547r.jpg
HC030-5548r.jpg
HC030-5554r.jpg
HC030-5555r.jpg
HC030-5558r.jpg
HC030-5559r.jpg
HC030-5560r.jpg
HC030-5563r.jpg
HC030-5568r.jpg
HC030-5571r.jpg
HC030-5573r.jpg
HC030-5576r.jpg
HC030-5579r.jpg
HC030-5581r.jpg
HC030-5583r.jpg
HC030-5585r.jpg
HC030-5588r.jpg
HC030-5591r.jpg
HC030-5593r.jpg
HC030-5594r.jpg
HC030-5598r.jpg
HC030-5600r.jpg
HC030-5602r.jpg
HC030-5605r.jpg
HC030-5608r.jpg
HC030-5613r.jpg
HC030-5616r.jpg
HC030-5617r.jpg
HC030-5618r.jpg
HC030-5621r.jpg
HC030-5625r.jpg
HC030-5626r.jpg
HC030-5627r.jpg
HC030-5628r.jpg
HC030-5630r.jpg
HC030-5631r.jpg
HC030-5633r.jpg
HC030-5638r.jpg
HC030-5643r.jpg
HC030-5648r.jpg
HC030-5652r.jpg
HC030-5655r.jpg
HC030-5656r.jpg
HC030-5663r.jpg
HC030-5664r.jpg
HC030-5668r.jpg
HC030-5701r.jpg (좌측부터) 이동혁 건축가, 임성재 건축가, 정다운 건축가

HC017-2574r.jpg (좌측부터) 정다운 건축가, 임성재 건축가, 이동혁 건축가

[집이라는 본질적인 가치에 집중하다.]

Architecture Team : 홈트리오(주)

대표번호 : 1522-4279

홈페이지 : http://hometrio.kr/

KakaoTalk_20191210_164551850.jpg
KakaoTalk_20200521_090546896.jpg