02-11화. 넓은 포치의 매력

PART 02-11화. 속초 53평 2층 전원주택

by 이동혁 건축가
KakaoTalk_20200521_090546896.jpg

제목 : 나의 첫 번째 전원주택 짓기

-전원주택 20개의 이야기를 담아내다-


저자 : 이동혁, 임성재, 정다운


PART 02. 나의 첫 번째 전원주택 짓기 20개의 스토리


11화. 넓은 포치의 매력 : 속초 53평 2층 전원주택


HC023-3871r.jpg


SPEC

공법 : 경량 목구조

설계, 시공 : 홈트리오(주) / 상담문의 : 1522-4279

지붕마감재 : 아스팔트슁글 / 외벽 마감재 : 스타코플렉스 / 포인트자재 : 리얼징크, 파벽돌

실내벽마감재 : 실크벽지 / 실내바닥마감재 : 강마루

창호재 : PVC 3중 시스템창호

건축면적 : 176.55㎡(1층 : 118.53㎡, 2층 : 58.02㎡)

예상 총 건축비 : 336,900,000원(부가세 포함, 산재보험료 포함 / 설계비, 인허가비, 구조계산 설계비 별도)

설계비 : 7,950,000원(부가세 포함) / 인허가비 : 5,300,000원(부가세 포함)

구조계산 설계비 : 5,300,000원(부가세 포함) / 인테리어 설계비 : 5,300,000원(부가세 포함)

*건축비 외 부대비용 : 대지구입비, 가구(싱크대, 신발장, 붙박이장), 기반시설 인입(수도, 전기, 가스 등), 토목공사, 조경비 등


KEYWORD#

: 속초랜드마크, 바닷가집, 모던스타일, 처마의매력, 젊은감각


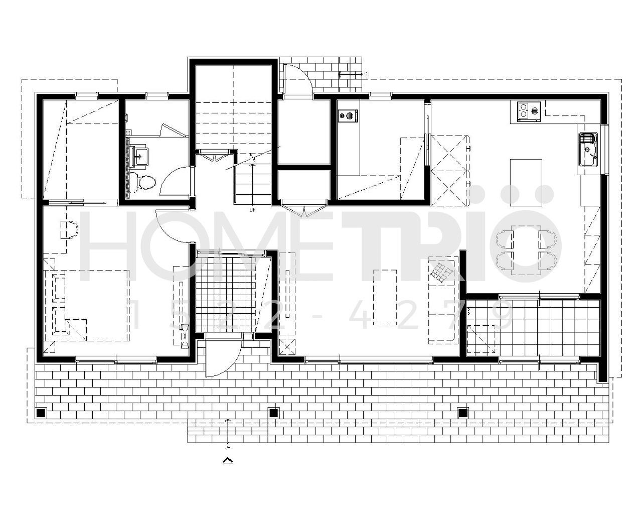
FLOOR PLAN

1층-워터마크.jpg 1층 평면도
2층-워터마크.jpg 2층 평면도


ARCHITECTURE STORY

: 4인 가족이 생활하기에 최적화된 느낌의 전원주택 면적을 굳이 꼽는다면 저희들은 40평대 후반에서 50평대 초반을 꼽습니다. 세컨드 하우스가 아닌 주생활 공간 기준이며 생활했을 때 답답함 없이 쾌적한 느낌으로 전원생활을 충분히 만끽할 수 있는 면적이라 판단합니다.


두 명이 사는 공간과 네 명이 사는 공간의 스케일은 완전히 다릅니다. 단순히 방을 만들었다고 해서 공간에 대한 영역성이 끝나는 것이 아니라 겹치는 동선과 별도의 차단 공간 등이 필요한데 4인 가족 기준으로 이러한 여러 가지 요소들을 고려해서 배치하면 위에서 말한 면적인 40평 후반에서 50평 초반이 나오게 됩니다.


사람들마다 삶에 대한 적정 공간 인식 기준이 모두 다릅니다. 어떤 분들은 6평짜리 농막에 있어도 편하다고 생각하시는 분들이 계신가 반면에 100평이 넘는 대 저택에 있어도 항상 공간이 부족하다 말씀하시는 분들도 계십니다. 집 면적에 대한 정답은 없습니다. 내가 원하는 필요 공간이 존재하고 넉넉한, 여유로운 마음이 드는 집이라면 그것이 바로 나와 내 가족에 최적화된 공간의 집이라고 생각합니다.


이번 주택은 경량 목구조로 지어진 준패시브 단열급이 적용된 속초의 전원주택입니다. 모던 스타일로 디자인되었으며, 외쪽지붕의 조합으로 유니크하면서 개성 있는 입면으로 탄생한 주택입니다.

이 집에서 가장 큰 특징은 1층 부분의 포치와 2층의 지붕형 발코니 부분일 것입니다. 모던한 주택들은 깔끔한 면이 디자인적 생명이기 때문에 정면부의 디자인을 최대한 심플하게 만들어 줍니다. 하지만 그렇게 해야지만 꼭 모던한 느낌이 드는 것은 아닙니다. 이번 주택처럼 전체적인 모던 느낌을 잡아주면서 오히려 포치와 발코니로 볼륨감을 살려준다면 단조로운 느낌이 들 수 있는 모던 스타일의 단점을 커버해 주는 디자인으로 완성될 수 있습니다.


모던 스타일의 최대 특징은 차가운 도시적인 느낌을 분위기적인 면에서 풍겨줄 수 있다는 것에 있습니다. 특히 리얼징크와의 조합이 가장 좋은데요. 차가운 느낌의 강철이 모던함을 배가시켜 줄 수 있기 때문입니다.

일반적으로 지붕에 가장 많이 리얼징크를 적용하는데 이번 주택처럼 지붕면이 보이지 않는 주택의 경우 굳이 비싼 리얼징크 마감을 고집할 필요는 없습니다. 오히려 정면부의 보이는 부분에 일부 포인트로 그 비용을 사용하는 것이 좋으며, 포인트만으로 조금 사용하더라도 그 느낌을 이번 주택처럼 충분히 느낄 수 있습니다.


1층 공간이 매우 넓습니다. 포치를 포함하여 36평이라는 넓은 공간으로 1층이 구성되었으며, 타 주택에 비해 넉넉하고 내부에 진입 시 넓다라는 느낌이 충분히 느껴질 수 있는 그러한 공간으로 설계를 했습니다.


현관을 중심으로 안방 공간이 프라이빗 존과 거실과 주방 공간인 공용 존으로 구획을 나누어 주었으며, 공간 자체가 넓기 때문에 거실과 주방을 다시 시각적 차단을 해 주어 각 공간에서의 영역성이 타 영역에 침범하지 않도록 하였습니다.

거실의 공간보다 주방의 공간을 더 크게 구성하였습니다. 넓은 주방 공간 플러스 다용도실과 정면부의 베란다는 이 공간이 단순 요리의 공간이 아니라 다목적 공간으로 활용될 수 있음을 설계 공간적으로 의미합니다.


2층은 방 2개와 화장실 그리고 작은 가족실을 중앙에 배치해 주었습니다. 복도와 방만 존재해도 되지만 그렇다면 계속 방에서만 생활이 이루어지기 때문에 이번 주택처럼 작은 가족실과 발코니 등을 배치해주어 가족들이 모일 수 있는 여지의 공간을 만들어 놓는 것이 좋습니다.


이 집을 옆에서 보면 4개 정도의 지붕 경사면이 엇갈려 배치되어 있는 것을 볼 수 있습니다. 하나의 지붕면이 아니라 엇갈린 지붕면을 만들어 주어 자연적으로 입체감을 살릴 수 있도록 하였으며, 하늘로 날아오르는 듯한 지붕면을 만들어주어 하늘로 비상하는 느낌의 집을 탄생시켜주고자 노력하였습니다.


ARCHITECT

HC023-3785r.jpg (좌측부터) 이동혁 건축가, 임성재 건축가, 정다운 건축가

HC023-3750r.jpg
HC023-3754r.jpg
HC023-3765r.jpg
HC023-3795r.jpg
HC023-3796r.jpg
HC023-3798r.jpg
HC023-3799r.jpg
HC023-3800r.jpg
HC023-3802r.jpg
HC023-3803r.jpg
HC023-3804r.jpg
HC023-3805r.jpg
HC023-3807r.jpg
HC023-3811r.jpg
HC023-3813r.jpg
HC023-3815r.jpg
HC023-3816r.jpg
HC023-3819r.jpg
HC023-3821r.jpg
HC023-3822r.jpg
HC023-3823r.jpg
HC023-3825r.jpg
HC023-3826r.jpg
HC023-3827r.jpg
HC023-3828r.jpg
HC023-3829r.jpg
HC023-3831r.jpg
HC023-3832r.jpg
HC023-3833r.jpg
HC023-3834r.jpg
HC023-3835r.jpg
HC023-3836r.jpg
HC023-3837r.jpg
HC023-3838r.jpg
HC023-3839r.jpg
HC023-3840r.jpg
HC023-3841r.jpg
HC023-3842r.jpg
HC023-3843r.jpg
HC023-3844r.jpg
HC023-3845r.jpg
HC023-3846r.jpg
HC023-3847r.jpg
HC023-3848r.jpg
HC023-3850r.jpg
HC023-3852r.jpg
HC023-3855r.jpg
HC023-3857r.jpg
HC023-3858r.jpg
HC023-3861r.jpg
HC023-3864r.jpg
HC023-3865r.jpg
HC023-3866r.jpg
HC023-3867r.jpg
HC023-3868r.jpg
HC023-3871r.jpg
HC023-3877r.jpg
HC023-3878r.jpg
HC023-3879r.jpg
HC023-3880r.jpg

HC017-2574r.jpg (좌측부터) 정다운 건축가, 임성재 건축가, 이동혁 건축가

[집이라는 본질적인 가치에 집중하다.]

Architecture Team : 홈트리오(주)

대표번호 : 1522-4279

홈페이지 : http://hometrio.kr/

KakaoTalk_20191210_164551850.jpg
KakaoTalk_20200521_090546896.jpg