02-13화. 랜드마크로 마을에 활력을 불어넣다

PART 02-13화. 고령 55평 2층 전원주택

by 이동혁 건축가
KakaoTalk_20200521_090546896.jpg

제목 : 나의 첫 번째 전원주택 짓기

-전원주택 20개의 이야기를 담아내다-


저자 : 이동혁, 임성재, 정다운


PART 02. 나의 첫 번째 전원주택 짓기 20개의 스토리


13화. 랜드마크로 마을에 활력을 불어넣다 : 고령 55평 2층 전원주택


hc002_0025.jpg


SPEC

공법 : 경량 목구조

설계, 시공 : 홈트리오(주) / 상담문의 : 1522-4279

지붕마감재 : 아스팔트슁글 / 외벽 마감재 : 스타코플렉스 / 포인트자재 : 루나우드, 세라믹사이딩, 파벽돌

실내벽마감재 : 실크벽지 / 실내바닥마감재 : 강마루

창호재 : PVC 3중 시스템창호

건축면적 : 182.27㎡(1층 : 122.17㎡, 2층 : 60.10㎡)

예상 총 건축비 : 361,000,000원(부가세 포함, 산재보험료 포함 / 설계비, 인허가비, 구조계산 설계비 별도)

설계비 : 8,250,000원(부가세 포함) / 인허가비 : 5,500,000원(부가세 포함)

구조계산 설계비 : 5,500,000원(부가세 포함) / 인테리어 설계비 : 5,500,000원(부가세 포함)

*건축비 외 부대비용 : 대지구입비, 가구(싱크대, 신발장, 붙박이장), 기반시설 인입(수도, 전기, 가스 등), 토목공사, 조경비 등


KEYWORD#

: 고령랜드마크, 모던하우스, 트렌디함, 개성있는디자인, 2층집의매력


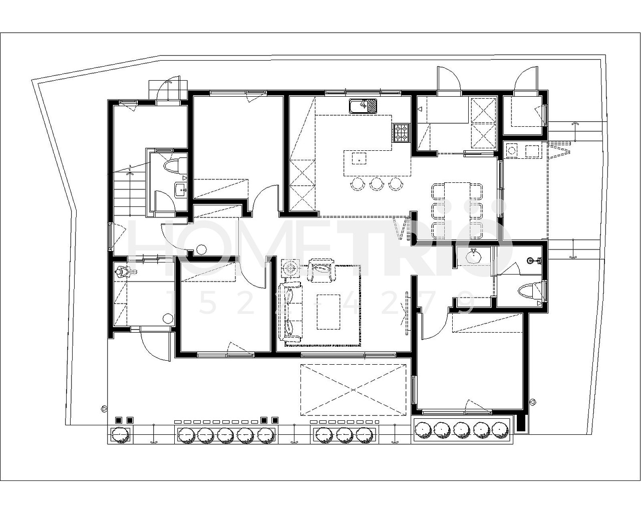
FLOOR PLAN

1층-워터마크.jpg 1층 평면도
2층-워터마크.jpg 2층 평면도


ARCHITECTURE STORY

: 세월이 지남에 따라 노후화되는 건물. 그리고 그 건물들이 모여있는 도시. 자연스럽게 낙후되어가는 도시를 랜드마크적인 건물로 활력을 재생시키는 프로젝트. 서울이나 수도권이야 시간이 지남에 따라 땅값도 올라가고 개발도 되다 보니 슬럼화 되는 곳이 거의 없지만 조금만 지방으로 시선을 돌리면 이미 빈집이 많아지는 도시들과 마을들이 많아지기 시작했습니다.


경북 고령에서 건축주님의 주택 의뢰를 받고 첫 현장 답사를 진행했을 때의 느낌은 너무 클래식한 느낌의 집이 아니라 조금은 독특하고 젊은 느낌의 집을 디자인해서 "이 골목 자체가 다시 활성화될 수 있는 느낌을 주었으면 좋겠다"라는 생각이 들었습니다.


새로운 집 하나로 이 동네와 골목이 새로운 느낌으로 탈바꿈된다는 저희 생각이 모두 틀렸다고만 말했습니다. 유명 건축가도 아니고 젊은 건축가 세 명이 모여 무언가를 바꾸어보겠다니... 지금 생각해보면 저희들이 제안한 부분이 조금은 젊은이들의 치기 정도로 보였을 것 같다는 생각이 듭니다.


하지만 애초부터 큰 목표점을 잡고 시작한 것이 아니었습니다. 아주 작은 변화의 시작점만이라도 발생할 수 있다면 그 자체만으로도 의미가 있는 프로젝트라고 생각했었습니다.


본격적으로 집에 대한 이야기를 해 볼게요. 집이 주는 첫 이미지. 그 이미지는 외부 디자인의 형태에 따라 느낌이 완전히 달라집니다. 항상 보아왔던 시골집의 느낌이 아니라 이 마을에서 한 번도 보지 못했던 이미지의 주택을 이 땅에 앉히고자 했습니다.

도심형 단독주택의 느낌으로 모던 스타일을 기본 방향으로 정했으며, 경량 목구조이지만 외부에서 보았을 때는 철근콘크리트 건물처럼 보일 수 있도록 하였습니다.


지붕의 면이 거의 안 보이실 거예요. 의도적으로 설계 디자인을 진행할 때 최대한 감추고자 노력했거든요. 다만 확실할 물매 경사도를 잡아주어 누수에 대한 위험성을 원천 차단한 뒤, 다양한 경사도 방향의 외쪽지붕으로 집을 디자인해 주었습니다.


집 형태를 보았을 때 다들 첫 이야기가 "건축비가 많이 들었을 것 같다."였습니다. 하지만 하나씩 뜯어보면 형태적인 부분에서는 도시적인 느낌이지만 건축비 상승이 발생되는 외장재 부분에 대해서는 큰 부분이 없는 것을 확인할 수 있을 것입니다.

이 집에서 사용한 외장재는 루나 우드, 세라믹 사이딩, 파벽돌 포인트가 전부이며, 기본 베이스를 스타코플렉스 마감으로 가져가면서 디자인과 가성비 모두를 잡은 그러한 집으로 탄생을 시켰습니다.


평면에서 현관이 한쪽으로 치우쳐져 있는 것을 볼 수 있습니다. 대부분 일반적인 상식에서는 현관을 중앙으로 와야 한다는 고정관념들을 가지고 있는데요. 내 땅에, 그리고 내부 구성에 따라 현관 위치는 얼마든지 바뀔 수 있습니다. 꼭 가운데를 고집할 이유는 없다는 점. 기억하세요.


현관과 계단실을 하나의 라인으로 잡아준 뒤, 복도와 거실을 통해 각 공간으로 이동하는 동선을 계획해 주었습니다. 아파트와는 다른 느낌의 주택 공간을 느끼실 수 있으며, 각 공간마다 숨겨진 새로운 공간을 맞이할 때의 특별한 기분을 만끽할 수 있을 것입니다.


이 집은 방이 많습니다. 1층에 3개, 2층에 1개를 배치했으며, 안방은 2층에 존재합니다. 2층은 오롯이 부부를 위한 공간으로 설계되었으며, 방, 드레스룸, 거실, 화장실, 미니 주방에 이르기까지 완전히 독립적인 원룸 형태의 레이아웃으로 공간을 만들어 주었습니다. 층별로 문을 달아 프라이빗한 공간을 만들어주었다 이렇게 생각해주시면 되십니다.


마지막으로 이 집은 포치와 발코니가 타 주택보다 크게 구성되어 있습니다. 실내를 구성하는 건축비보다 저렴한 금액으로 시공이 가능한 부위이며, 특히 비가 내릴 때 그 장점을 발휘하는 공간이라 할 수 있습니다. 또 하나의 장점은 자연스럽게 전면부 디자인에 볼륨감을 넣어준다는 것입니다.

모던한 스타일이라고 해서 반듯반듯하게만 짓는 것이 아닙니다. 들어가고 나오고 하는 볼륨감이 존재해야 집이 아름답게 보이지 단순하게 박스로만 짓는다면 창고, 그 이상도 이하도 아닌 건물이 탄생합니다.


여러분들은 기억하셔야 합니다. 디자인은 조화를 이루어야 하며, 그 조화는 집의 기능에 문제가 없는 선에서 결정되어야 한다는 것을요. 경량 목구조를 선택하시고 옥상 만드시는 분들 계신데, 제발 만들지 마세요. 누수 생겨요. 철근콘크리트는 그나마 괜찮은데 경량 목구조는 무조건 지붕을 씌워야 한다는 것. 잊지 마세요.


ARCHITECT

HC010-8738r.jpg (좌측부터) 이동혁 건축가, 임성재 건축가, 정다운 건축가

hc002_0019.jpg
hc002_0019_bw.jpg
hc002_0025.jpg
hc002_01643.jpg
hc002_01648.jpg
hc002_01843.jpg
hc002_01845.jpg
hc002_01846.jpg
hc002_01848.jpg
hc002_01849.jpg
hc002_01860.jpg
hc002_01861.jpg

hc002_01666.jpg
hc002_01668.jpg
hc002_01672.jpg
hc002_01674.jpg
hc002_01676.jpg
hc002_01677.jpg
hc002_01679.jpg
hc002_01680.jpg
hc002_01689.jpg
hc002_01691.jpg
hc002_01692.jpg
hc002_01693.jpg
hc002_01694.jpg
hc002_01695.jpg
hc002_01698.jpg
hc002_01699.jpg
hc002_01702.jpg
hc002_01703.jpg
hc002_01705.jpg
hc002_01706.jpg
hc002_01708.jpg
hc002_01709.jpg
hc002_01710.jpg
hc002_01711.jpg
hc002_01712.jpg
hc002_01713.jpg
hc002_01715.jpg
hc002_01717.jpg
hc002_01718.jpg
hc002_01720.jpg
hc002_01722.jpg
hc002_01724.jpg
hc002_01725.jpg
hc002_01726.jpg
hc002_01728.jpg
hc002_1728.jpg
hc002_01729.jpg
hc002_1729.jpg
hc002_01730.jpg
hc002_01734.jpg
hc002_01737.jpg
hc002_01738.jpg
hc002_01739.jpg
hc002_01740.jpg
hc002_01742.jpg
hc002_01744.jpg
hc002_01745.jpg
hc002_01747.jpg
hc002_01750.jpg
hc002_01752.jpg
hc002_01753.jpg
hc002_01756.jpg
hc002_01759.jpg
hc002_01760.jpg
hc002_01762.jpg
hc002_01764.jpg
hc002_01766.jpg
hc002_01767.jpg
hc002_01768.jpg
hc002_01769.jpg
hc002_01770.jpg
hc002_01772.jpg
hc002_01773.jpg
hc002_01774.jpg
hc002_01776.jpg
hc002_01777.jpg
hc002_01778.jpg
hc002_01779.jpg
hc002_01781.jpg
hc002_01782.jpg
hc002_01783.jpg
hc002_01785.jpg
hc002_01787.jpg
hc002_01788.jpg
hc002_01790.jpg
hc002_01791.jpg
hc002_01792.jpg
hc002_01793.jpg
hc002_01794.jpg
hc002_01795.jpg
hc002_01796.jpg
hc002_01798.jpg
hc002_01801.jpg
hc002_01802.jpg
hc002_01805.jpg
hc002_01806.jpg
hc002_01808.jpg
hc002_01810.jpg
hc002_01812.jpg
hc002_01813.jpg
hc002_01814.jpg
hc002_01817.jpg
hc002_01818.jpg
hc002_01820.jpg
hc002_01821.jpg
hc002_01823.jpg
hc002_01824.jpg
hc002_01826.jpg
hc002_01828.jpg
hc002_01829.jpg
hc002_01830.jpg
hc002_01831.jpg
hc002_01833.jpg
hc002_01834.jpg
hc002_01835.jpg
hc002_01836.jpg
hc002_01840.jpg
hc002_01841.jpg
hc002_01862.jpg
hc002_1923.jpg
hc002_1924.jpg
hc002_1925.jpg
hc002_1927.jpg
hc002_1928.jpg
hc002_1929.jpg
hc002_1932.jpg
hc002_1937.jpg
hc002_1941.jpg
hc002_1942.jpg
hc002_1947.jpg
hc002_1949.jpg
hc002_1953.jpg
hc002_1955.jpg
hc002_1959.jpg
hc002_1963.jpg
hc002_1965.jpg
hc002_1968.jpg
hc002_1971.jpg
hc002_1972.jpg
hc002_1975.jpg
hc002_living.jpg
hc002_v01803.jpg
hc002_5144.jpg
hc002_5148.jpg
hc002_5152.jpg
hc002_5155.jpg
hc002_5158.jpg
hc002Panorama2.jpg

HC017-2574r.jpg (좌측부터) 정다운 건축가, 임성재 건축가, 이동혁 건축가

[집이라는 본질적인 가치에 집중하다.]

Architecture Team : 홈트리오(주)

대표번호 : 1522-4279

홈페이지 : http://hometrio.kr/

KakaoTalk_20191210_164551850.jpg
KakaoTalk_20200521_090546896.jpg