134평 모던 트렌디함을 불어넣다(전원주택 트렌드Ⅳ)

2021 월간 홈트리오 3월호 ①

by 이동혁 건축가

2021 월간 홈트리오 3월호 ① - 134평 모던 트렌디함을 불어넣다(젊은 전원주택 트렌드Ⅳ)


※모든 저작권은 홈트리오(주)에게 있습니다. 최근 무단으로 디자인과 설계 평면도를 복제해 마치 본인들이 한 것인 듯 홍보하는 업체들이 있는데 법적 책임을 물을 수 있다는 점 고지드립니다.


STORY

: 철근콘크리트 공법의 묵직함을 기반으로 태어난 집. 깔끔한 박공지붕에 세라믹 사이딩과 균형감 있는 창문 디자인으로 도심형 단독주택의 정석과도 같은 랜드마크 주택을 탄생시켰습니다.


134평이라는 넓은 공간으로 설계된 이번 주택은 64평의 지하공간과 70평의 지상공간으로 설계가 완성되었으며, 넓게 조닝 하는 공간 구성 설계기법으로 그동안 보아왔던 주택과는 그 시작점을 달리하는 주택으로 완성시켰는데요. 소형주택 개념으로 평면과 입면을 디자인한 것이 아닌 정말 고급 주택 라인으로 마감재와 디테일을 하나하나씩 선정하여 프로젝트를 진행하였습니다.


소형 전원주택 모델을 발표할 때 저희들이 '가성비'라는 단어를 많이 사용하는데요. 우리들의 건축예산은 무한정이 아니다 보니 적정 수준에서 마감재 등을 선정해 너무 과한 건축비가 발생되지 않게 설계하는 것이 저희들의 건축 모토였습니다.

이번 주택은 그러한 저희들의 방향성과는 조금 다른 형식으로 프로젝트가 진행되었는데요. 대형 평수에 고급주택 라인업으로 전반적인 구성을 진행하였기 때문에 외장재부터 내부 마감까지 조금은 돈 걱정 없이 설계를 진행했던 것 같습니다.


설계만 하고 땡이 아닌 완성된 설계도를 가지고 시공까지 해야 하는 입장이어서 항상 '건축예산'을 설계 때부터 신경 씁니다.

어떤 건축가분이 "'미'적인 부분을 위해서는 하자를 감수하고서라도 건축주를 설득시켜야 하는 것이 건축가다?"라고 이야기하셨던 분이 계신데요. 저희들이 이 이야기를 듣고 얼마나 어이없어했는지 모릅니다.


대부분 설계사무소는 설계만 하고 시공은 하지 않습니다. 다시 말하면 시공 후 발생되는 하자는 설계가 책임질 이유가 없다는 것이죠. 그렇기 때문에 간혹 어떤 설계도를 보면 "와 이거는 100% 누수 생길 텐데(?) 건축가가 제대로 이해하고 설계한 것이 맞나?"라는 생각이 들 때가 있습니다. 건축주가 요청했고 그대로 그려줬으니 아무런 문제가 없다고 이야기할 수도 있지만 이는 너무 무책임한 가치관이라 생각합니다.


저희들은 저희들이 설계안 안으로 시공까지 직접 하는 시스템을 갖추었습니다. 간혹 설계단계에서 건축주님이 요구하시는 것들을 초반에 커트하는 경우들이 있는데요. 아무런 이유 없이 반대한 것이 아닌 설계단계에서부터 하자가 발생될 수 있는 요소들을 0%로 그려내는 것입니다. 설계 때부터 하자 요소들을 잡아내지 못하고 시공에서 알아서 하라는 것은 건축가로서 실격입니다.

이러한 환경을 만들어 낸 것은 건축 주님들에게도 있습니다. 그냥 싸게 싸게만... 기술이 발전되었으니 대충 해도 괜찮겠지... 그 결과는 제가 따로 말씀드리지 않아도 몸소 느끼시고 계실 거라 생각합니다.


말이 길어졌네요. 다시 돌아와서 이번 주택은 그동안 발표해 왔던 목조주택이 아닌 철근콘크리트 공법으로 설계가 되었습니다. 누수에 그나마 안전하니 옥상을 만들자(?). 아니죠. 가급적 옥상은 피하고 지붕을 덮는 게 안전합니다.


입면을 디자인할 때 최대한 간결하면서 심플하게 구성하고자 방향성을 정했습니다. 대형 평수로 갈수록 복잡하게 공간을 구성하기보다는 간결한 매스로 구성해야 더 웅장하고 고급스럽게 보입니다. 너무 볼륨감을 생각하다 보면 집이 난잡해 보일 수 있는 부분이 존재하기 때문에 항상 디자인적 절제가 꼭 필요합니다.


세라믹 사이딩 베이스에 색감만 조정되는 포인트로 전체 마감을 진행했습니다. 창호 부분에 합성목재를 조금 혼합 사용하였으며, 창 자체가 포인트가 될 수 있는 그러한 매스를 디자인했다 생각해 주셨으면 좋겠습니다.

여러 가지 디자인적 포인트를 넣어놓긴 했지만 "모던한 느낌을 살리기 위해 깔끔한 느낌을 전반적으로 가지고 가고자 하였다."가 이번 주택의 디자인 방향이라고 할 수 있겠네요.


개인 실내주차장을 가진다는 것은 정말 꿈같은 일일 것입니다. 단순히 한대만 대는 것이 아니라 총 3대의 차량을 주차할 수 있는 지하 공간을 만들었으며, 현관과 계단실, 그리고 보일러실까지 구성되는 넓은 크기의 지하공간을 설계했습니다. 말해 뭐하겠습니까. 정말 부러운 공간이 아닐 수 없습니다.


평면을 시원시원하게 구성하였습니다. 현관을 진입 후 나오는 복도를 기준으로 앞마당에 들어가야 할 실과 그렇지 않은 실을 구분하여 확실하게 채광을 받고 조망을 가져갈 수 있는 공간배치를 진행하였습니다.


넓은 거실과 주방, 그리고 다목적으로 활용 가능한 서재 공간. 1층의 메인 공간은 앞마당과의 연계가 가능한 배치를 진행하였으며, 특히 주방 앞 실내 포치 공간은 작은 온실 개념의 공간으로 활용 가능하도록 폴딩도어를 설치해 주었습니다.


1층 데크와 포치 공간이 매우 넓습니다. 비가 오더라도 창문을 열고 생활 가능하도록 설계하였으며, 비올 때 가벼운 티타임을 포치 처마 아래 앉아 즐기는 행복을 느낄 수 있는 공간으로 구성해 놓았습니다.


아! 이 집의 또 하나의 특장점이 있는데요. 개인 엘리베이터가 존재합니다. 아무래도 지하부터 올라오는 동선이다 보니 계단실을 이용해 2층까지 올라 다니시기 어렵다는 건축주님의 요청사항에 따라 지하주차장부터 엘리베이터를 설치해 놓았습니다.


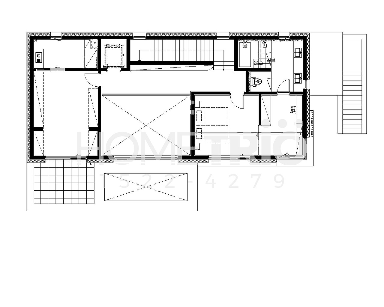
2층은 면적에 비해서 방을 많이 놓은 형태는 아닙니다. 각 공간별로 넓은 면적을 할애해 주었으며, 정말 고급주택에서나 느껴볼 수 있는 듯한 공간감으로 설계를 진행했습니다.


이번 주택에서 적용된 공간 스케일은 일반적인 30~40평형대의 주택 스케일과는 조금 다릅니다. 한두 치수 큰 스케일로 공간을 구성했으며, 이는 그 누구의 기준도 아닌 이 집에서 머무실 건축주님의 라이프스타일 치수를 고려하여 설계한 것입니다.


집에 대한 크기와 동선, 그리고 공간 스케일은 개인마다 편차가 분명 존재합니다. 월간 홈트리오는 여러분들의 집을 짓는데 참고 정도이지 정답을 제시하는 공간이 아닙니다. 너무 빠지기보다는 "아! 이렇게도 할 수 있구나."정도로서 받아들여주셨으면 좋겠습니다.


#모던스타일 #젊은감각 #감성저격 #철근콘크리트주택 #대형평수의공간구성

남양주-투시도.jpg


공법 : 철근콘크리트(RC)

설계, 시공 : 홈트리오(주) / 상담문의 : 1522-4279

지붕마감재 : 평기와 / 외벽 마감재 : 세라믹사이딩 / 포인트자재 : 세라믹사이딩, 합성목재

실내벽마감재 : 실크벽지, 도장마감 / 실내바닥마감재 : 이건 강마루, 포세린타일

창호재 : 이건 알루미늄 3중 시스템창호

건축면적 : 441.78㎡(지하주차장 : 211.54㎡, 1층 : 136.91㎡, 2층 : 93.33㎡)

예상 총 건축비 : 1,344,000,000원(부가세 포함, 산재보험료 포함 / 설계비, 인허가비, 구조계산 설계비 별도)

설계비 : 26,800,000원(부가세 포함) / 인허가비 : 13,400,000원(부가세 포함)

구조계산 설계비 : 13,400,000원(부가세 포함) / 인테리어 설계비 : 13,400,000원(부가세 포함)

*건축비 외 부대비용 : 대지구입비, 가구(싱크대, 신발장, 붙박이장), 기반시설 인입(수도, 전기, 가스 등), 토목공사, 조경비 등


지하1층.jpg 지하주차장 평면도
1층.jpg 1층 평면도
2층.jpg 2층 평면도

이동혁 건축가 : 박스형의 모던함이 가장 잘 디자인되어 표현된 것 같아요. 박시하면서 단조로운 선이 디테일을 잡아줘 군더더기 없는 모던 스타일 주택을 완성시킬 수 있었습니다. 입면 디자인의 경우 개인적인 취향을 많이 타는 것 같아요. 매스 분절이 되는 형태를 좋아하시는 분들이 계신 반면, 완전히 창고처럼 박스형의 건물을 좋아하시는 분들이 있어요. 정답은 없어요. 내 마음에 드는 집이 최고의 집이라고 설명드리고 싶어요. 내 땅에 내 마음대로 지을 수 있는데 왜 눈치를 보나요(?) 하고 싶은 거 다 적용해서 집 지어보세요.

정다운 건축가 : 세라믹 사이딩과 어울리는 지붕재를 꼽는다면 징크와 평기와를 꼽을 거예요. 특히 평기와는 세라믹 사이딩의 가벼운 분위기를 조금 무게감 있게 잡아줄 수 있는 지붕재예요. 다만 가격이 저렴하지 않다는 단점도 있지만 기와인데도 불구하고 깔끔하고 모던한 느낌을 자아낼 수 있다니... 건축예산이 허용한다면 세라믹 사이딩과 평기와의 콜라보를 은근슬쩍 추천해보고자 합니다.

임성재 건축가 : "데드 스페이스가 이렇게 없을 수가 있구나!!"를 느끼게 해 주는 평면 설계안입니다. 직사각형의 완벽한 형태로 레이아웃을 진행해 지하부터 2층까지 낭비되는 공간 없이 모든 공간이 실 활용 공간으로 설계되었습니다. 전원주택에서 느낄 수 있는 로망은 다 담은 거 같아요. 보고만 있어도 흐뭇해지는 이 느낌. 여러분들에게도 이 마음을 전해드리고 싶네요.


메스1.jpg
메스2.jpg
메스3.jpg
메스4.jpg
남양주-투시도(야경).jpg
남양주-투시도.jpg

eFD--Ti5M7DvyVXHXruNd0cvet4.jpg (좌측부터)정다운 건축가, 이동혁 건축가, 임성재 건축가

[집이라는 본질적인 가치에 집중하다.]

Architecture Team : 홈트리오(주)

대표번호 : 1522-4279

홈페이지 : http://hometrio.kr/

KakaoTalk_20191210_164551850.jpg


KakaoTalk_20200521_090546896.jpg