57평 모던 깨끗한 감성을 넣다(젊은 전원주택트렌드4)

삼월 세 번째. 57평 모던에 깨끗한 감성을 넣다

by 이동혁 건축가
KakaoTalk_20200521_090546896.jpg

스타 건축가 3인방의 집짓기 제안

제목 : 젊은 전원주택 트렌드 4

-꿈꾸던 집짓기를 이루다-


저자 : 이동혁, 임성재, 정다운


삼월 세 번째. 57평 모던에 깨끗한 감성을 넣다


STORY

: 모던한 느낌에 청초한 느낌의 깨끗한 감성 한 스푼.

도심형 전원주택의 매력을 듬뿍 안고 태어난 이번 주택은 57평의 넉넉한 공간과 지하주차장까지 완비된 집으로 설계되어 우리 가족이 모두 만족할 집으로 설계가 되었습니다.


건축주님의 라이프스타일을 고려하여 내부를 구성하였으며, 군더더기 없는 트렌디 한 디자인의 옷을 입혀 지나다니는 모든 사람들이 한 번쯤 쳐다볼만한 그러한 멋진 집으로 탄생되었습니다.


최근 티브이의 방송 프로그램을 보다 보니 자문을 해 주는 건축 전문가가 이런 이야기를 하더라고요. "전원주택에서는 최대한 많은 동선이 겹치게 해 주는 것이 중요하다." 건축가의 한 사람으로서 어느 정도 공감이 되는 말이에요. 완전히 차단도 좋지만 가족 간의 화목과 대화를 위해서는 만날 수 있는 접점을 건축적으로 만들어주면 좋거든요.


오늘 선보일 월간홈트리오 주택은 현 주택 평면 트렌드를 집약한 형태라고 볼 수 있습니다. 전원주택 택지들이 많이 개발되면서 반듯하게 잘린 택지에 집을 짓는 경우들이 많아졌는데요. 그러다 보니 좁은 택지에 작은 건폐율로 최대한의 효과를 내야 하는 평면들로 방향이 발전하게 된 것 같습니다.


정해진 건폐율에서 내가 원하는 공간들을 모두 집어넣어주면 너무나도 좋겠지만 현실은 만만치 않죠. 저것도 크게 해야 하고, 이 공간도 확보해야 하고... 결국 다 집어넣다 보면 이도 저도 아닌 난잡한 평면이 나오게 되는데요. 그래서 선택과 집중이 이제는 중요하게 되었습니다.


과감히 포기할 건 포기하고 1층에서 이루고자 하는 목적성과 2층에서 이루고자 하는 목적성을 명확히 구분한 뒤 불편함이라는 것을 핑계로 안된다고 생각했던 것들을 정리해야 합니다.


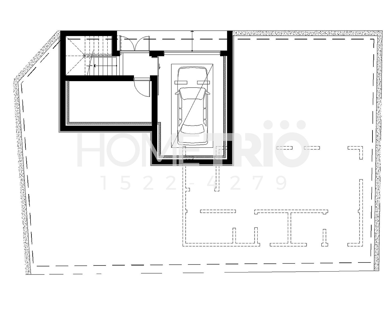
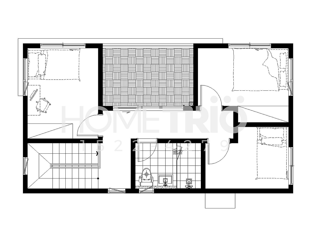
1층에 주로 구성되었던 안방이 이번 주택에서는 없습니다. 2층에 안방과 자녀방을 구분한 뒤, 1층에는 온전히 공용공간으로만 설계를 진행했습니다. 현관을 진입했을 때 탁 트인 개방감을 느낄 수 있도록 공간감을 잡았으며, 주방과 거실 모두 메인 공간으로서 남향의 햇볕을 받을 수 있게 하였습니다. 북쪽으로는 계단실, 화장실, 보일러실, 다용도실을 배치해 오히려 서늘한 북쪽이 더 좋은 배치라고 생각할 수 있는 실들을 구성해 주었습니다.


이렇게 중요시되는 공간들을 1층에 주로 구성한 뒤, 2층에서는 방과 테라스만을 구성해 낭비되는 공간 없이 콤팩트 한 주택설계를 완성시켰습니다.


전원주택의 트렌드는 매년 새로운 방향으로 바뀌고 있습니다. 꼭 트렌드라는 것이 정답은 아니지만 "요즘에는 어떠한 이유 때문에 이렇게 설계를 하는구나."라고 알고 설계를 하신다면 지금 짓고자 하시는 집의 설계가 더 좋은 방향으로 완성이 될 수 있지 않을까 생각합니다.


#매력덩어리 #랜드마크 #좁은대지에최적 #완벽한1층 #매력적인거실과주방

다운로드 (3).jpg

공법 : 경량목구조

설계, 시공 : 홈트리오(주) / 상담문의 : 1522-4279

지붕마감재 : 아스팔트슁글 / 외벽 마감재 : 스타코플렉스 / 포인트자재 : 파벽돌, 세라믹사이딩

실내벽마감재 : 실크벽지 / 실내바닥마감재 : 이건 강마루

창호재 : 이건 알루미늄 3중 시스템창호

건축면적 : 188.96㎡(지하주차장 : 66.00㎡, 1층 : 61.48㎡, 2층 : 61.48㎡)

예상 총 건축비 : 357,500,000원(부가세 포함, 산재보험료 포함 / 설계비, 인허가비, 구조계산 설계비 별도)

설계비 : 8,550,000원(부가세 포함) / 인허가비 : 5,700,000원(부가세 포함)

구조계산 설계비 : 5,700,000원(부가세 포함) / 인테리어 설계비 : 5,700,000원(부가세 포함)

*건축비 외 부대비용 : 대지구입비, 가구(싱크대, 신발장, 붙박이장), 기반시설 인입(수도, 전기, 가스 등), 토목공사, 조경비 등


0. 지하주차장.jpg 지하주차장 평면도
1층 평면도.jpg 1층 평면도
2층 평면도.jpg 2층 평면도


이동혁 건축가 : 전원주택 택지 내 전원주택을 짓는 경우가 비율적으로 높아졌어요. 반듯하게 잘린 땅에 집을 설계하는 사례가 늘어나면서 다시금 박스형의 배치를 요구하시는 분들이 많아졌습니다. 박스형의 배치의 장점은 앞마당을 최대한 확보할 수 있다는 것에 있습니다. 이에 더해 자연스럽게 실내의 데드 스페이스가 없어진다는 장점도 있죠. 다만 구획된 필지의 건폐율이 낮은 경우가 많다 보니 1층 면적이 크지 않다는 문제점들이 새롭게 생겨나네요. 이 문제는 1층에 방을 없애면서 해결이 되고 있긴 한데, 2층을 불편하다고 생각하시는 분들이 많다 보니 이마저도 완벽한 해결책이라고 하기는 어렵겠네요.

정다운 건축가 : 한때 지붕을 화려하게 디자인하는 것이 유행인 때가 있었어요. 하지만 역시 가장 기본적인 깔끔한 형태가 가장 질리지 않는 디자인이죠. 하자에 대한 부분만 살펴봐도 지붕의 꺾이는 부분이 적을수록 누수에 대한 위험성이 적어집니다. 아무래도 사람이 하는 일이다 보니 많이 꺾일수록 틈이 생길 수밖에 없거든요.

임성재 건축가 : 각 공간의 영역성이라고 하죠. 거실 같은 공용공간과 침실 같은 개인 공간. 이 공간을 구분할 때 흔히들 '벽'이라는 것으로 구획을 짓는데요. 1차원적으로 벽으로 구분하는 것도 좋지만 더 좋은 것은 층으로 분리를 시켜주는 것입니다. 시각적 차단과 동선 자체를 분리시켜주는 방법이기 때문에 각 층별로 온전한 공간적 영역성을 가지면서 생활할 수 있는 방법이랍니다.


메스1.jpg
메스2.jpg
메스3.jpg
메스4.jpg
김포-석모리-투시도.jpg
김포-석모리-투시도-야경.jpg

UFClyr6uoF3cSIMtvnKU9ZfGEv4.jpg (좌측부터) 이동혁 건축가, 정다운 건축가, 임성재 건축가

[집이라는 본질적인 가치에 집중하다.]

Architecture Team : 홈트리오(주)

대표번호 : 1522-4279

홈페이지 : http://hometrio.kr/

KakaoTalk_20191210_164551850.jpg
KakaoTalk_20200521_090546896.jpg