57평 세종시 랜드마크 하우스(젊은 전원주택 트렌드4)

사월 두 번째. 57평 세종시 랜드마크 하우스

by 이동혁 건축가
KakaoTalk_20200521_090546896.jpg

스타 건축가 3인방의 집짓기 제안

제목 : 젊은 전원주택 트렌드 4

-꿈꾸던 집짓기를 이루다-


저자 : 이동혁, 임성재, 정다운


사월 두 번째. 57평 세종시 랜드마크 하우스


STORY


: 세종시 랜드마크가 될 주택.

군더더기 없는 깔끔한 디자인에 정장을 입은 신사가 떠오르는 디테일 마감.

세종시 단독주택 필지에서 랜드마크적인 주택으로 자리 잡을 이번 주택은 57평의 넉넉한 공간과 매력적인 가성비로 무장한 완벽한 주택이라 평 하고 싶습니다.


저희들의 포트폴리오를 보시면 홈트리오만의 설계 스타일이 존재한다는 것을 알 수 있을 것입니다. 무언가 단정하면서 심플한 느낌의 주택 디자인. 어지럽지 않고 정돈된 느낌의 주택 디자인을 많이 진행하는데요. 솔직히 이것은 특별한 디자인적 취향보다는 시공까지 끌고 가야 하는 저희들의 특성상 "하자가 발생되지 않는 주택 디자인을 하고 있다.'라고 생각해주시면 좋을 것 같습니다.


아무리 예쁜 제품이라 하더라도 문제가 생겨 사용함에 있어 불편함을 느낀다면 완전 '꽝'인 제품이겠죠. 모든 제품의 기본은 품질 우선. 그리고 문제가 발생되지 않아야 한다는 것을 전제 조건으로 한답니다.


집도 마찬가지예요. 비가 새지 않고 따뜻한 집의 조건이 만족해야지만 그다음에 외부 디자인을 하는 것이 의미가 있고, 예쁨을 우선으로 하는 것이 아니라 실제 내부에서 생활하는 라이프 스타일이 우선시 된 후 그다음 디자인적으로 만족해야 빛이 날 수 있습니다.


목조주택은 가성비와 친환경성, 그리고 단열성이 타 공법보다 우위에 있죠. 이러한 장점 때문에 많은 분들께서 목조주택을 선택하시는 것이라 생각합니다.

하지만 장점만 존재하는 것은 아닙니다. 단점을 꼽자면 옥상 불가, 2층까지만 건축 가능, 5미터 이상의 장 스펜 불가, 시스템 에어컨 조건부 설치 등이 있을 것 같습니다. 주택에서는 큰 단점이라고 생각하지 않아도 되는 문제이기는 하지만 상가나 수익성 건물 등에서는 분명 심각한 단점이 될 수 있으므로 건축 목적을 잘 파악하여 공법을 선택하시길 바라겠습니다.


지붕 디자인을 진행할 때 벽과 만나는 부분에서 처마를 25cm 이상 일부로 돌출시킵니다. 어떤 분들은 벽과 지붕라인이 하나의 선으로 만나야 예뻐 보인다고 하시는데, 처마는 기능상 무조건 존재해야 하는 부분입니다. 목조주택에서 벤트라고 불리는 공기 순환 통로가 바로 이 처마 부분이며, 지붕의 빗물이 벽을 타고 흐르지 않게 1차적으로 끊어주는 역할을 합니다. 단순히 안 예쁘니 처마를 없애버린다는 분들이 계신데, 외벽 오염과 지붕 골조가 썩는 제1순위 요소이니 기본적으로 갖추어야 할 부분은 꼭 챙겨서 설계하시기 바랍니다.


요즘 범죄율이 높아지다 보니 주택을 처음 사시는 분들은 1층 방법에 대한 고민들이 많으신 것 같습니다. 요즘에는 철창처럼 무식한 느낌의 방범대책을 사용하지는 않습니다. 너무나도 고맙게도 방충망 자체에서 방범기능이 들어가 있는 제품들이 나오기 시작했습니다. 두꺼운 메쉬를 이용한 방충망 등이 개발되었기 때문에 1층의 방범이 걱정되는 분들은 너무 걱정 마시고 방충망 교체로 방범 부분을 챙겨가시면 될 것 같습니다.


마지막으로 자꾸 잘 지어놓은 집에다가 무언가를 달아매려고 하시는 분들이 계세요. 렉산 같은 자재들을 사용해 공간을 넓히시려고 하는데 외장재와 이질적인 재질이 맞닿는 부분이 딱 하자의 부위들입니다. 또한 법적으로 안 걸리신다고 하시는 분들 계신데, 무조건 걸립니다. 불법은 절대로 합법화될 수 없답니다. 불법을 당연한 듯이 이야기하시는 분들의 이야기는 듣지 마세요. 원상복구 명령 떨어지면 더 골치 아프답니다.


#지하주차장 #가성비주택 #넓은거실과주방 #모던스타일 #3중시스템창호

다운로드.jpg

공법 : 경량목구조

설계, 시공 : 홈트리오(주) / 상담문의 : 1522-4279

ARTIST : 건축가 정다운, 임성재, 이동혁

홈페이지 : http://hometrio.kr/

지붕마감재 : 아스팔트슁글 / 외벽 마감재 : 스타코플렉스 / 포인트자재 : 파벽돌

실내벽마감재 : 실크벽지 / 실내바닥마감재 : 이건 강마루

창호재 : 이건 알루미늄 3중 시스템창호

건축면적 : 186.75㎡(지하주차장 : 54.17㎡, 1층 : 64.99㎡, 2층 : 67.59㎡)

예상 총 건축비 : 353,500,000원(부가세 포함, 산재보험료 포함 / 설계비, 인허가비, 구조계산 설계비 별도)

설계비 : 8,550,000원(부가세 포함) / 인허가비 : 5,700,000원(부가세 포함)

구조계산 설계비 : 5,700,000원(부가세 포함) / 인테리어 설계비 : 5,700,000원(부가세 포함)

*건축비 외 부대비용 : 대지구입비, 가구(싱크대, 신발장, 붙박이장), 기반시설 인입(수도, 전기, 가스 등), 토목공사, 조경비 등


지하주차장.jpg 지하주차장 평면도
1층 평면도.jpg 1층 평면도
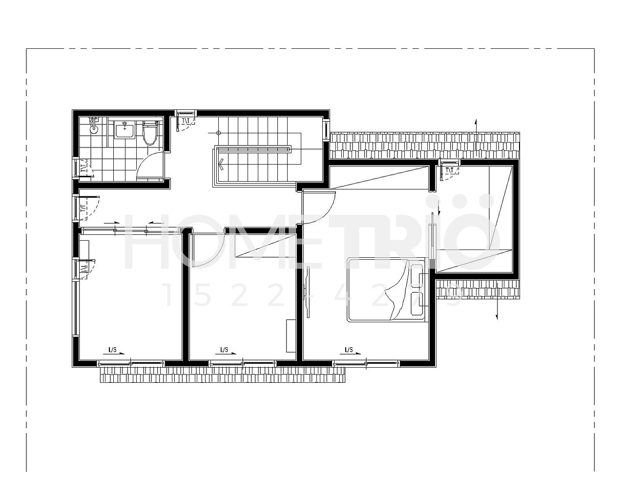
2층 평면도.jpg 2층 평면도

이동혁 건축가 : 지하주차장의 경우 차 한 대의 주차 면적이 5평 정도 필요합니다. 두대를 세운다 가정하면 10평의 면적이 필요하며, 약간의 여유공간 및 현관, 계단실을 포함한다면 최소 필요면적은 16.5평 정도가 필요합니다. 그리고 높이는 실측 기준 최소 3미터는 나와야 합니다. 간혹 너무 작은 면적으로 구성하여 주차 라인은 2대가 되어 있는데 실제로는 1대밖에 못 대는 상황이 발생하는데요. 문이 열리고 내리는 부분까지도 고려하여 지금 생각하시는 면적보다 살짝 크게 스케일을 가져가시는 것이 좋습니다. 차가 점점 커지고 있어서 단순 주차 기준만으로 계획을 하시면 문을 열고 못 내리는 경우가 발생하니 꼭 이 부분 기억하고 계셨다가 지하주차장 공간 설계하시길 바라겠습니다.

정다운 건축가 : 전원주택 단지 내 필지를 구매한 경우 대부분 땅이 그렇게 크지 않습니다. 100평 미만에 건폐율 20% 정도의 땅이라면 1층에 여러 가지 요소를 구성해서 넣기 매우 어렵습니다. 그러다 보니 최근 주택 설계도면들이 1층에 안방을 없애고 주방과, 거실만 구성하는 비율이 높아지기 시작했습니다. 라이프스타일 때문에 구성하는 비율도 있지만 실질적으로 토지 크기와 건폐율에 따른 부분 때문에 바뀌어 나가고 있는 현상이라 생각해주시면 좋을 것 같습니다. 이는 무조건적으로 설계 계획적 정답이라 부를 수는 없기 때문에 전문가와 협의하여 건축주님께 꼭 맞는 평면을 계획하시길 바랍니다.

임성재 건축가 : 침실 공간을 설계할 때 많이들 어느 정도의 평수로 공간을 만들어야 할지 고민하십니다. 쉽게 해결할 수 있는 방법은 가구로 스케일 기준을 잡는 것인데요. 계속 빈 공간으로만 생각하니 어려운 것이에요. 내가 쓸 가구를 먼저 선택하고, 가구 크기에 맞춰 이동 공간을 맞추고, 그다음에 책상이나 수납장 등을 계획하면 정말 필요로 하는 면적을 산출할 수 있어요. 물론 약간의 오차는 있을 수 있지만 "내가 어느 정도의 면적의 방을 만들어야 원하는 가구 배치가 될 수 있구나." 하는 것을 가시적으로 파악할 수 있답니다.


메스1.jpg
메스2.jpg
메스3.jpg
메스4.jpg
세종-장군면투시도.jpg

UFClyr6uoF3cSIMtvnKU9ZfGEv4.jpg (좌측부터) 이동혁 건축가, 정다운 건축가, 임성재 건축가

[집이라는 본질적인 가치에 집중하다.]

Architecture Team : 홈트리오(주)

대표번호 : 1522-4279

홈페이지 : http://hometrio.kr/

KakaoTalk_20191210_164551850.jpg
KakaoTalk_20200521_090546896.jpg