73평 애니아트힐즈 두 번째(젊은 전원주택 트렌드4)

팔월 첫 번째. 73평 애니아트힐즈 두 번째 스토리

by 이동혁 건축가
홈트리오 황소로고.jpg
KakaoTalk_20200521_090546896.jpg

스타 건축가 3인방의 집짓기 제안

제목 : 젊은 전원주택 트렌드 4

-꿈꾸던 집짓기를 이루다-


저자 : 이동혁, 임성재, 정다운


팔월 첫 번째. 73평 애니아트힐즈 두 번째 스토리


STORY

: 일산 풍동의 애니힐즈 두 번째 스토리입니다.

모던 스타일의 3층 건물로 설계된 이번 주택은 화이트톤 모노롱 타일과 안정감 있는 박공지붕 디자인의 조합으로 무게감 있는 주택 외형을 완성시켜 주었습니다.


대지에서 허용하는 건축면적 안에서 최대한 꽉 채워 낭비되는 공간이 발생하지 않게 설계하였으며, 단조로울 수 있는 모던 스타일에 비대칭 창문 디자인을 디자인 요소로 넣어주어 그 자체로 포인트가 되고, 이 집만이 가진 아이덴티티로 표현될 수 있도록 계획하였습니다.


73평이라는 넉넉한 면적과 7억대의 건축비는 철근콘크리트 주택으로서 새로운 기준을 제시한 모델이라 평 하고 싶습니다.


옥상에 대한 논란이 많은 것 같습니다. 옥상을 만드는 것이 좋네, 아니면 지붕을 무조건 씌우는 것이 맞네 등의 이야기들이 인터넷에서 혼재되어 돌아다니는데요. 제가 딱 정리해 드립니다.


일단 목조 공법에서는 옥상에 대한 생각조차 마세요. 목조로 내가 집을 지었다. 그러면 옥상은 안 만드는 것입니다. 우기지 마세요. 안 되는 것은 안 되는 것이에요. 전문가가 비 샌다고 지붕 덮으라는데 왜 자꾸 절대 비 안 샌다고 우기시나요. 인터넷에서 이렇게 이야기하시는 분들의 정보를 보면 대부분 익명이거나 본인의 이름을 비 노출하고 댓글 다시는 분들이 대부분이에요. 명확한 근거 없이 떠도는 이야기는 듣지 않는 것이 맞습니다.


특히 인터넷 정보에서 가장 위험한 사람 부류는 '딱 한채 집을 지어본 건축주예요.' 건축이라는 분야는 집을 한채 지어본다고 다 통달할 수 있는 분야가 아닙니다. 정말 수백 채의 집을 지은 저희들도 현장에서 문제가 발생되고 생각지도 못한 하자들이 발생하는데 어떻게 한 채 지어보고 모든 것을 알 수 있다고 자부할 수 있나요? 말 그대로 이러한 사례도 있구나 정도로만 받아들이셔야지 거기에 너무 빠지시면 안 됩니다.


다시 돌아와 목조에는 옥상 만들지 말라고 했으니 이 부분은 정리된 것 같고, 철근콘크리트 공법에서는 일단 조례 부분에서 따져봐야 해요. 최근에는 도심형 단독주택들이 많이 개발되면서 디자인 조례라는 것이 분양조건에 같이 딸려옵니다. 지붕 각도는 어떻게 해야 하고, 외장재의 색상은 어떻게 해야 한다 등등.


다시 말해 조례에서 디자인 방향을 정해 놓았다면 그대로 따라야 합니다. 내 땅이라고 해서 마음대로 디자인할 수 없어요. 조례에서 지붕 만들라고 정해 놓았으면 옥상이 아니라 지붕 덮어야 합니다. 이 부분도 다들 이상하게 해석하시던데 건축법규는 무조건 최우선으로 따라야 합니다. 안 해도 된다고 생각하시는 분들이 계시던데 애초에 인허가 통과 못할 거예요.


다음은 조례도 상관없는 지역은 마당의 생성 여부를 따져보세요. 저도 젊은 건축가다 보니 가급적 어떠한 공법이던 옥상 만드는 것은 추천하지 않습니다. 그 이유는 옥상은 영구적인 방수 법이 아니기 때문입니다. 액체방수를 기본으로 하기 때문에 길게 보면 5년에 한 번씩은 방수층을 확인하여 유지보수해 줘야 됩니다. 진짜 진짜 길게 봐도 10년일 거예요. 이마저도 방수층 위에 보호 타일이나 데크 등을 깔았을 경우에 해야 돼요. 그냥 온전히 방수층 노출시켜 놓았다면 5년에 한 번씩 다시 유지보수하신다고 생각하시는 것이 편할 거예요.


마당이 넓게 구성된다면 가급적 지붕을 덮으시고, 정말로 서울 도심처럼 좁은 땅에 마당이 생성되지 않는 경우라면 이때에는 옥상을 만드세요. 하자가 발생할 위험보다 내 삶의 가치적인 공간을 만드는 게 더 낫거든요.


조언을 좀 길게 적어드렸는데 요즘에 카페다 블로그에 달리는 댓글과 홍보성 글들을 보고 있으면 도대체 정확한 이유는 알고 이 글을 적는 건가 하는 물음에 빠집니다. 정보를 인터넷에서 얻는 것도 좋지만 너무 혼재되어있는 정보들이 많아 정말로 객관적인 정보를 얻고 싶다면 인터넷이 아니라 서점에 있는 책을 보는 것을 추천드립니다.


위의 내용과 이어서 이번 주택 모델을 설명드리면, 일산 풍동의 애니아트힐즈는 일단 옥상이 안 되는 지역입니다. 경사도 지붕을 올려야 하는 조례가 정해져 있었거든요. 모던 스타일의 디자인이기 때문에 지붕을 어지럽게 여러 개 나누기보다는 하나의 깔끔한 박공지붕으로 디자인해 주었으며, 사면 어디에서 보던 박스형의 모던 스타일 디자인 방향성이 잘 느껴질 수 있게 하였습니다.


항상 말하지만 모던 스타일의 가장 큰 단점은 박스형의 창고처럼 보일 수 있다는 것이에요. 그 느낌을 가져가면서 유니크한 도시적인 느낌을 가미하기 위해서는 여러 가지 설계적 기법들이 적용되어야 합니다.


이번 주택에서는 창문을 유니크한 느낌으로 배치하여 단조로움을 피하는 설계 방법을 택했습니다. 창문 자체가 포인트로 인지 될 수 있도록 디자인을 잡았으며, 창문이 많으면 단열에 취약하다는 단점을 커버하기 위해 전 창문을 알루미늄 3중 시스템 창호로 적용해 주었습니다.


모노롱타일은 긴 벽돌을 뜻합니다. 일반 사이즈 벽돌과 다른 느낌을 원하시는 건축주님들이 많이 선택하고 있습니다. 장점은 유니크한 디자인, 단점은 저렴하지 않다는 것. 건축주님의 예산에 맞추어 외장재를 골라주세요.


#일산풍동 #애니아트힐즈 #3층단독주택 #철근콘크리트주택 #모던스타일끝판왕

다운로드.jpg

공법 : 철근콘크리트(RC)

설계, 시공 : 홈트리오(주) / 상담문의 : 1522-4279

ARTIST : 건축가 정다운, 임성재, 이동혁

홈페이지 : http://hometrio.kr/

지붕마감재 : 아스팔트슁글, 리얼징크 / 외벽 마감재 : 모노롱벽돌 / 포인트자재 : 모노롱타일, 리얼징크

실내벽마감재 : 도장마감, 실크벽지 / 실내바닥마감재 : 이건 강마루, 포세린 타일

창호재 : 이건 알루미늄 3중 시스템창호

건축면적 : 240.82㎡(1층 : 80.28㎡, 2층 : 80.27㎡, 3층 : 80.27㎡)

예상 총 건축비 : 712,000,000원(부가세 포함, 산재보험료 포함 / 설계비, 인허가비, 구조계산 설계비 별도)

설계비 : 18,250,000원(부가세 포함) / 인허가비 : 7,300,000원(부가세 포함)

구조계산 설계비 : 7,300,000원(부가세 포함) / 인테리어 설계비 : 7,300,000원(부가세 포함)

*건축비 외 부대비용 : 대지구입비, 가구(싱크대, 신발장, 붙박이장), 기반시설 인입(수도, 전기, 가스 등), 토목공사, 조경비 등


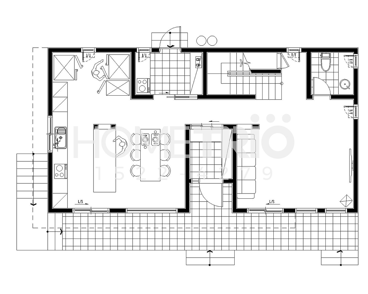
1층.jpg 1층 평면도
2층.jpg 2층 평면도
3층.jpg 3층 평면도


이동혁 건축가 : 도심형 단독주택 택지의 한계점을 뛰어넘은 주택으로 설계가 되었다 자부합니다. 도심형 택지의 한계성은 바로 좁은 대지면적에 있는데요. 건폐율이 그나마 높은 곳은 괜찮지만 20% 정도의 대지에서는 생각보다 원하는 공간을 설계하기가 여간 까다로운 것이 아닙니다. 이번 주택의 경우 지역 조례에 따라 5%가 더 늘어난 건폐율 25%의 대지였는데요. 이러한 대지에서는 넣고 빼고의 느낌으로 설계하는 것이 아니라 내가 찾아먹을 수 있는 최대의 면적을 모두 찾아먹으면서 설계해야 됩니다. 안 그래도 좁은 1층 면적인데 어설프게 모양낸다고 면적을 낭비해버리면 정말로 애매한 공간으로 집이 탄생할 수도 있거든요. 건축주님의 라이프스타일에 맞추어 요소들을 넣어주고, 각 층별로 활동에 대한 영역성을 명확하게 부여해주어 모든 공간이 알찬 공간 구성으로 설계가 완료될 수 있었습니다.

정다운 건축가 : 요즘 외장 트렌드는 색을 빼주고 하나의 마감으로 집을 디자인하는 것이 추세입니다. 옛날에는 각 공간과 분리되는 부위별로 다른 외장재를 사용해 볼륨감을 드러내 주고자 하는 것이 유행이었는데, 그 시점을 지나 오히려 단순하고 깨끗한 느낌을 집에 넣어주고자 하는 분위기가 형성되어 있습니다. 젊은 건축가의 한 사람으로서 개인적인 방향성을 정한다고 하면, 저도 깔끔하고 정돈된 느낌의 외장 디자인이 질리지도 않고 고급스러움을 느끼게 해 준다고 이야기드리고 싶습니다.

임성재 건축가 : 3층 이상의 건물은 목조 공법으로는 안됩니다. 무조건 철근콘크리트 공법으로 진행해야 하며, 간혹 목조로도 된다고 우기시는 분들이 계신데, 지금 당장은 문제가 없어 보일 뿐 장기적으로 보았을 때는 목조 부재가 처지거나 휘어질 수밖에 없습니다. 3층 이상을 원하시는 분들은 목조가 아닌 철근콘크리트 공법으로 해야 한다는 거 잊지 마세요. 아! 그리고 지하주차장을 목조로 한다고 말도 안 되는 이야기를 하시는 분들이 계세요. 지하는 습이 엄청 많은 공간입니다. 아무리 방수를 잘한다고 해도 목조는 썩을 수밖에 없습니다. 새로운 공법이 나왔다고, 그리고 새로운 특허가 나왔다고 목조로 지하에 골조를 만드시는 분들이 계신데 말도 안 되는 이야기니 제발 정상적인 방법으로 좀 진행해 주세요. 꼭 이런 분들이 나중에 자기는 아무것도 몰랐으니 공사업체 보고 사기라고 우기시는데 모르고 하신 것도 잘못입니다. 꼭 공부 많이 하시고 확신이 들었을 때 일을 진행하세요.

매스1.jpg
매스2.jpg
매스3.jpg
일산-풍동(투시도).jpg

UFClyr6uoF3cSIMtvnKU9ZfGEv4.jpg (좌측부터) 이동혁 건축가, 정다운 건축가, 임성재 건축가

[집이라는 본질적인 가치에 집중하다.]

Architecture Team : 홈트리오(주)

대표번호 : 1522-4279

홈페이지 : http://hometrio.kr/

KakaoTalk_20191210_164551850.jpg
KakaoTalk_20200521_090546896.jpg