127평 애니아트힐즈AA127(젊은 전원주택 트렌드4)

시월 첫 번째. 127평 애니아트힐즈 : AA127

by 이동혁 건축가
홈트리오 황소로고.jpg
KakaoTalk_20200521_090546896.jpg

스타 건축가 3인방의 집짓기 제안

제목 : 젊은 전원주택 트렌드 4

-꿈꾸던 집짓기를 이루다-


저자 : 이동혁, 임성재, 정다운


시월 첫 번째. 127평 애니아트힐즈 : AA127


STORY

: 일산 풍동 애니아트힐즈 그 세 번째 이야기입니다.


프리미엄 주택을 선도하는 홈트리오는 실용주의 고급 단독주택 디자인을 선보이고 있습니다. 유니크하면서 그 마을에서 랜드마크적인 주택으로 자리 잡을 수 있게 설계하고 있는데요. 튼튼하면서 고단열을 지향하는 만큼 압도적인 품질로서 주택을 선물드리고 있습니다.


젊은 감각, 재미있는 아이디어로 똘똘 뭉친 이번 단독주택.

일산 풍동 애니아트힐즈에서 선보일 홈트리오의 세 번째 이야기.


많은 사랑과 관심 부탁드려요.


전원주택과 단독주택 시장에서는 저희가 선두그룹으로 달려 나가고 있습니다. 젊은 감각과 개성 있는 주택 디자인. 거기에 품질 높은 시공까지. 자화자찬일 수도 있지만 정말로 엄격하게 현장을 관리하고 진행합니다.


일생에 한번 짓는 집. 얼마나 많은 고민을 안고 집 짓기에 도전하시는지 잘 알고 있기 때문에 저희들도 어설프게 조언드리는 것이 아닌 정말 확실한 주관적인 생각을 말씀드립니다.


설계는 내가 가진 생각을 가시적으로 그리는 단계입니다. 많은 분들이 설계는 하지 않고 건축비를 물어보시는데, 백날 물어보셔도 정확한 건축비를 산정할 수 있는 방법은 없습니다. 무슨 생각을 하는지 정리하는 단계가 설계도면 단계인데 그것을 그리지 않았으니 애초에 무슨 집을 짓고자 하는지 알 수 없는 것이죠.


아이러니한 상황인 거예요. 예를 들면 차를 사고 싶은데 본인이 어떤 색을 살지, 세단을 살지 SUV를 살지, 옵션은 무엇으로 할지, 브랜드는 무엇으로 할지 아무것도 정하지 않고 금액만 달랑 물어본 상황인 거예요.


이 상황을 본인들만의 합리화시키기 위해 평당 단가라는 걸로 얼버무려 물어보고, 나중에 그 금액이 틀렸으니 건축시장 자체를 부인해 버립니다. 우리는 스스로 인지하고 있어야 합니다. 모르니 그렇게 물어본다가 아니라 모르면 최소한 책 한 권이라도 읽고 그 분야에 도전해야 한다는 것을 말입니다.


너무 전문가적인 지식이 필요한 것은 아니에요. 딱 하나 내가 정말 원하는 집이 무엇인지 알고 그다음 시작하라는 것이에요.

"내가 원하는 것이 무엇인지 모르니 알아서 해주세요..." 죄송하지만 그 어떤 건축가도 건축주의 마음을 100% 알아서 판단할 수 없습니다. 말하지 않으면 모르고 설계를 해 보지 않으면 절대 모른답니다. 아셨죠. 스스로를 속이지 마세요. 정확한 설계도면 그려야 하고, 그 시간을 들여야 비로소 내가 원하는 집이 무엇인지 알 수 있답니다.


일산 풍동 애니아트힐즈는 저희들의 상징과도 같은 주택이 이미 완공되어 있죠. 퀄리티 높은 자재와 유니크한 주택 외관으로 정말 동네에서 모르는 사람이 없을 정도로 유명한 주택인데요. 그 인기에 힘입어 저희가 애니아트힐즈 단지에 세 번째 주택을 선보이게 되었습니다.


젊은 느낌, 모던한 감성, 그리고 세련된 외관 디자인. 군더더기 없는 디자인이 홈트리오가 추구하는 디자인적 철학을 잘 담아낸 것 같습니다.


애니아트힐즈는 건폐율이 25%입니다. "100평 땅이라면 1층에 25평까지 앉힐 수 있는 면적이다."라고 생각하시면 될 것 같아요. 앞마당을 확보하기 위해 가로로 긴 형태의 평면을 구성했으며, 좁은 면적에서 모든 실을 넣는 방식을 택한 것이 아닌 정말 필요한 공간들을 모아 층별 분리를 진행해 주었습니다.


1층에는 거실과 주방, 2층에는 안방, 3층에는 자녀방. 각 층별로 화장실과 드레스룸을 별도로 마련해 주었으며, 외부 발코니 등도 각각 구성하여 각 층에서 부족함 없이 모든 활동을 영위할 수 있는 집으로 설계하였습니다.


이건창호의 알루미늄 3중 시스템 창호를 기반으로 고단열을 집에 적용하여 추위에 대한 걱정을 덜었습니다. 단조로운 디자인을 피하고 이 집만이 가진 아이덴티티를 표현하려고 많이 노력을 하였는데요. 최종 설계안이 건축주님의 마음에 쏙 들어 고생한 보람을 정말 많이 느꼈습니다.


일산 풍동 애니아트힐즈 세 번째 이야기. 홈트리오의 디자인적 철학을 잘 담아낸 단독주택. 어떠셨나요? 추후 저의 홈페이지를 통해 완공된 모습도 선보일 예정이에요. 많은 기대와 관심 부탁드립니다.


#애니아트힐즈 #일산풍동 #프리미엄단독주택 #지하주차장 #3층단독주택

다운로드 (1).jpg

공법 : 철근콘크리트(RC)

설계, 시공 : 홈트리오(주) / 상담문의 : 1522-4279

ARTIST : 건축가 정다운, 임성재, 이동혁

홈페이지 : http://hometrio.kr/

지붕마감재 : 리얼징크 / 외벽 마감재 : 모노롱벽돌 / 포인트자재 : 모노롱벽돌, 리얼징크

실내벽마감재 : 도장마감, 실크벽지, 타일마감 / 실내바닥마감재 : 포세린타일, 원목마루, 이건 강마루

창호재 : 이건 알루미늄 3중 시스템창호

건축면적 : 418.64㎡(지하1층 : 173㎡, 1층 : 88.55㎡, 2층 : 78.99㎡, 3층 : 78.10㎡)

예상 총 건축비 : 1,150,000,000원(부가세 포함, 산재보험료 포함 / 설계비, 인허가비, 구조계산 설계비 별도)

설계비 : 31,750,000원(부가세 포함) / 인허가비 : 12,700,000원(부가세 포함)

구조계산 설계비 : 12,700,000원(부가세 포함) / 인테리어 설계비 : 12,700,000원(부가세 포함)

*건축비 외 부대비용 : 대지구입비, 가구(싱크대, 신발장, 붙박이장), 기반시설 인입(수도, 전기, 가스 등), 토목공사, 조경비 등


0.지하1층.jpg 지하 1층 평면도
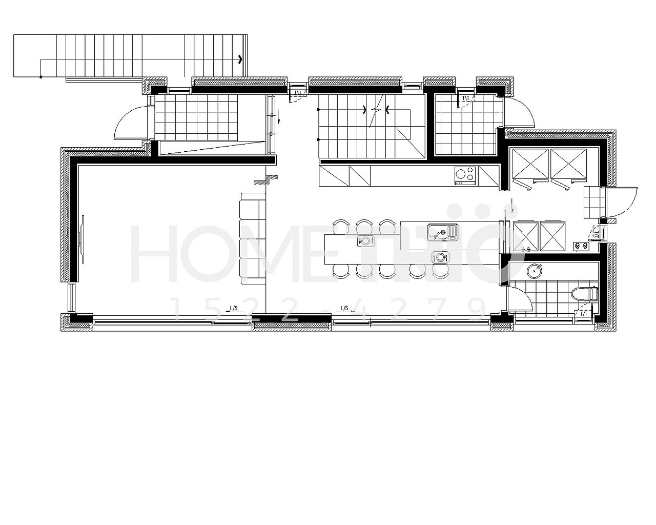
1.1층.jpg 1층 평면도
2.2층.jpg 2층 평면도
3.3층.jpg 3층 평면도


이동혁 건축가 : 정해진 건축법 및 조례 안에서 무언가를 다른 느낌으로 풀어낸다는 것은 매우 어려운 일 같습니다. 너무 진부해도 안되고, 너무 가벼워 보여도 안 되는 느낌. 설계 디자인적 방향을 정할 때 무게감은 느껴지되, 젊고 트렌디함이 다른 건물과는 다르게 보여야 한다는 것. 이번 주택은 볼륨감과 모던한 느낌의 유니크함을 같이 품고 태어난 주택입니다. 엇갈린 지붕이 독특함을 가중시키고, 각자의 다른 크기로 제작된 창문은 단조로운 주택의 느낌을 벗어나게 해 줍니다. 마지막으로 높은 층고의 3층 발코니 공간. 말해 뭐하겠습니까. 집의 화룡점정을 찍는 이 집의 포인트 공간이라 평 하고 싶네요.

정다운 건축가 : 지하주차 공간을 계획할 때 무작정 땅을 파는 것이 아닌 삼면에서 밀고 들어오는 토압을 견딜 수 있게 흙막이 보강 공사를 기본적으로 선행해야 합니다. 다시 말하면 지하에 공사하는 것은 건축 플러스 토목공사라고 생각하시면 될 것 같아요. 지상에 건물을 짓는 것보다는 지하에 건물을 짓는 게 더 많은 건축비용을 발생시킵니다. 많은 분들이 지하에 박스만 들어가니 더 저렴할 거라 생각하시더라고요. 아니에요. 마감을 제외한 골조 비용을 따지만 압도적으로 더 많은 비용이 들어갑니다. 지하면적이 작으면 작을수록 우리들이 흔히 말하는 평당 단가는 계속 올라간다고 생각하시면 되세요. 지하주차장이 좋은 것은 누구나 다 아는 사실. 다만 예산 범위를 잘 고려하신 다음에 실행에 옮기시길 추천드립니다.

임성재 건축가 : 창호에 대해서 많이들 궁금하신 것 같아요. 창호의 소재에는 알루미늄과 PVC 두 종류가 있습니다. 그리고 브랜드는 정말 셀 수 없이 많이 존재하죠. 저희들은 작년부터 이건창호 브랜드만 사용하고 있습니다. 모든 창을 3중 시스템창호로 적용하고 있으며, 품질에 대해서는 엄격하게 관리하고 있습니다. 많은 가성비 좋은 브랜드들도 있지만 10년이라는 시간을 설계와 시공해 오면서 이견이 없으려면 최고의 제품을 써야 한다는 사실을 인지했습니다. 좋고 나쁨을 떠나 홈트리오는 최고의 제품이 아니면 사용하지 않을 생각입니다. 최고만을 써야 최고 품질의 집을 짓을 수 있다는 고집과 생각. 이것이 저희들이 하자 없는 집을 짓는 노하우랍니다.

풍동투시도-2.jpg
메스1.jpg
메스2.jpg
메스3.jpg
메스4.jpg
메스5.jpg
풍동투시도.jpg

UFClyr6uoF3cSIMtvnKU9ZfGEv4.jpg (좌측부터) 이동혁 건축가, 정다운 건축가, 임성재 건축가

[집이라는 본질적인 가치에 집중하다.]

Architecture Team : 홈트리오(주)

대표번호 : 1522-4279

홈페이지 : http://hometrio.kr/

KakaoTalk_20191210_164551850.jpg
KakaoTalk_20200521_090546896.jpg