102평 베어즈베스트 프로젝트(전원주택 트렌드Ⅴ)

2022 월간 홈트리오 4월호 ③

by 이동혁 건축가
KakaoTalk_20200521_090546896.jpg

2022 월간 홈트리오 4월호 ③ - 102평 베어즈베스트 프로젝트 : BB102(젊은 전원주택 트렌드Ⅴ)


※모든 저작권은 홈트리오(주)에게 있습니다. 최근 무단으로 디자인과 설계 평면도를 복제해 마치 본인들이 한 것인 듯 홍보하는 업체들이 있는데 법적 책임을 물을 수 있다는 점 고지드립니다.


STORY

: 모던함의 정점.

도심형 고급 단독주택의 매력을 최대치로 끌어올린 베어즈베스트 랜드마크로 설계가 되었습니다.

간결한 선과 박시한 느낌으로 집을 설계하였으며, 공간들 자체도 낭비됨이 없는 직선의 공간들을 만들어 내고자 노력했습니다.

모던함의 정점을 찍은 집. 그리고 모든 공간이 펜트하우스의 느낌이 풍기는 집.

이 집을 그러한 집이라 평하고 싶습니다.


국내에서는 볼 수 없는 이국적인 이미지. 완전 박스형의 모던한 디자인. 군더더기 없이 완벽하게 1층부터 3층까지 동일한 매스로 설계했습니다. 젊은 건축주님들의 로망이라고 할 수 있을 것 같아요. 별장 느낌의 휴양지에서나 느껴볼 수 있는 집의 형태.

이 프로젝트는 바로 그러한 시작점에서 프로젝트가 진행되었습니다.


박스형 주택을 디자인할 때 가장 고민하는 부분이 어설프게 디자인해서 완성시키면 예쁜 집의 느낌이 아니라 창고를 그냥 지어놓은 느낌으로 탄생하게 되는데요. 비싼 돈 주고 설계하고 지었는데 이상하다 못해 괴상한 집이 탄생했다면? 진짜 화나겠죠. 그래서 설계할 때에도 무조건 박스형으로만 이끌고 가는 것이 아니라 이 단점을 보완할 수 있는 디자인 적 밸런스와 요소들을 적절히 배치해 준답니다.


일단 세컨드 하우스 및 별장의 개념으로 집을 설계한다면 창문 크기에 대한 두려움과 추위에 대한 두려움을 잊고 설계하세요. 그거 고려하다가는 창이 다 작고 그냥 답답한 느낌의 집으로 탄생할 확률이 99.9%입니다. 모든 것을 만족하는 집은 존재하지 않습니다. 꿈은 꿈일 뿐 현실적인 부분은 빨리 타협해서 내가 원하는 최종 이미지에 도달할 수 있게 해야 합니다.


설계단계를 내가 가진 집의 꿈을 현실로 이루는 단계라고 다들 알고 계신데요. 실상은 반대입니다. 꿈을 하나씩 깨 부수는 단계이며, 현실적으로 가능한 것과 불가능한 것들. 그리고 비용적인 부분들을 집어넣어 현 예산안에서 가능한 집을 만들더 내는 것이 설계 단계라고 할 수 있습니다.


그래서 된다라는 말보다는 안된다는 말과 빨리 포기하고 챙겨갈 수 있는 것들만 확실하게 챙겨가자는 말을 생각보다 많이 하게 됩니다. 예산이 남아돌아서 원하는 거 다 할 수 있으면 위의 조언을 무시해도 괜찮습니다. 하지만 우리들의 현실은 그렇지 않죠. 이상향보다는 현실을 확실하게 인지하면서 설계할 것. 기억해 놓으세요.


이번 주택은 철근콘크리트 공법으로 설계되었습니다. 그래서 기둥 없이 10미터 이상의 공간을 탄생시킬 수 있으며, 압도적인 개방감의 통창을 설치할 수 있었습니다. 목조 및 스틸에서는 이번 주택과 같은 이미지 만들어 낼 수 없습니다. 구조 공법상 재료가 가지는 한계성이 명확하거든요.


평면을 좀 살펴볼게요. 첫 느낌이 아마 엄청 심플하다는 생각일 것입니다. 어설프게 공간을 나누는 것이 아닌 확실하게 오픈스페이스를 만들어줘서 현관에 진입했을 때 첫 마주하는 이미지를 압도적인 개방감에 초점을 맞추어서 설계했습니다. 답답한 느낌이요? "아마 1도 없을 거예요."


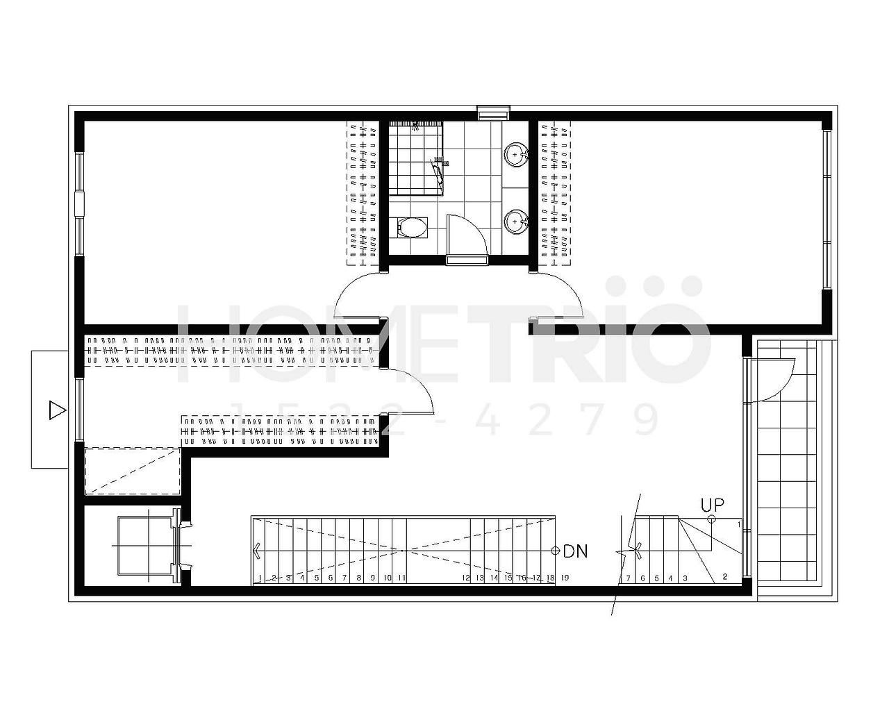
1층 거실에는 2층까지 오픈되는 오픈 천장을 계획해 주었습니다. 난방적인 부분에서는 취약점이 있지만 여기는 그런 거 일단 신경 안 쓰고 개방감에 집중해서 공간을 설계했습니다. 아! 그리고 이 집은 모든 공간을 시스템 공조기를 설치했습니다. 벽난로도 추후 계획 예정이기 때문에 아마 운치 플러스 난방적인 부분도 자연스럽게 해결될 것이라 생각합니다.


이 집은 엘리베이터가 설치됩니다. 엘리베이터가 적용되면 고급 단독주택으로 분류됩니다. 그래서 이 조건을 충족시키지 않기 위해 소형 엘리베이터로 설계를 진행했으며, 3층까지 무릎 아프지 않고 이동할 수 있는 기본 조건을 엘리베이터로 충족시켰습니다.


2층과 3층 공간은 개인 침실 공간으로 프라이빗한 공간으로 설계했습니다. 이 공간의 장점은 개인 화장실과 가족실, 그리고 별도의 드레스룸 공간이라 할 수 있습니다. 각 층별로 다 화장실과 드레스룸이 존재하기 때문에 불편함 없이 이용 가능하실 거예요.


일반적인 단독주택의 느낌은 한참 벗어난 주택설계라고 할 수 있을 것 같습니다. 정말 휴양지에 온 듯한 느낌을 많이 받으실 거예요. 그런 느낌으로 설계하고 짓고자 하는 주택이거든요.


나만의 별장. 그리고 조용한 휴식처를 고민하고 계신 분들이라면, 이번 주택 꼭 눈여겨보셨으면 좋겠어요.


아 그리고 이걸 이야기 안 드렸네요. 이 정도의 주택 규모면 일반 보일러로는 어림도 없어요. 최소 2대 이상, 용량 제일 큰 것으로 설치해야 한답니다. 보일러 비용만 각 600만 원 정도 들어갑니다. 가스보일러 기준으로요. 생각보다 싸지 않기 때문에 2대를 설치한다면 1,200만 원 정도의 비용이 들어가기 때문에 이런 부분들에 대한 추가 예산은 꼭 챙겨놓으시길 바랍니다.


#베어즈베스트 #청라단독주택 #고급단독주택 #통창의매력 #진정한프리미엄

KakaoTalk_20220126_151117333.jpg


공법 : 철근콘크리트(RC)

설계, 시공 : 홈트리오(주) / 상담문의 : 1522-4279

ARTIST : 건축가 정다운, 임성재, 이동혁

홈페이지 : http://hometrio.kr/

지붕마감재 : 평지붕마감(방수 후 타일마감) / 외벽 마감재 : 세라믹사이딩 / 포인트자재 : 세라믹사이딩, 리얼징크

실내벽마감재 : 도장마감, 실크벽지, 폴리싱타일 / 실내바닥마감재 : 이건 원목마루, 포세린타일

창호재 : 이건 알루미늄 3중 시스템창호

건축면적 : 335.80㎡(1층 : 119.35㎡, 2층 : 84.25㎡, 3층 : 118.60㎡, 옥탑 : 13.60㎡)

예상 총 건축비 : 1,222,000,000원(부가세 포함, 산재보험료 포함 / 설계비, 인허가비, 구조계산 설계비 별도)

설계비 : 30,600,000원(부가세 포함) / 인허가비 : 10,200,000원(부가세 포함)

구조계산 설계비 : 10,200,000원(부가세 포함) / 인테리어 설계비 : 15,300,000원(부가세 포함)

*건축비 외 부대비용 : 대지구입비, 가구(싱크대, 신발장, 붙박이장), 기반시설 인입(수도, 전기, 가스 등), 토목공사, 조경비 등


1.jpg 1층 평면도
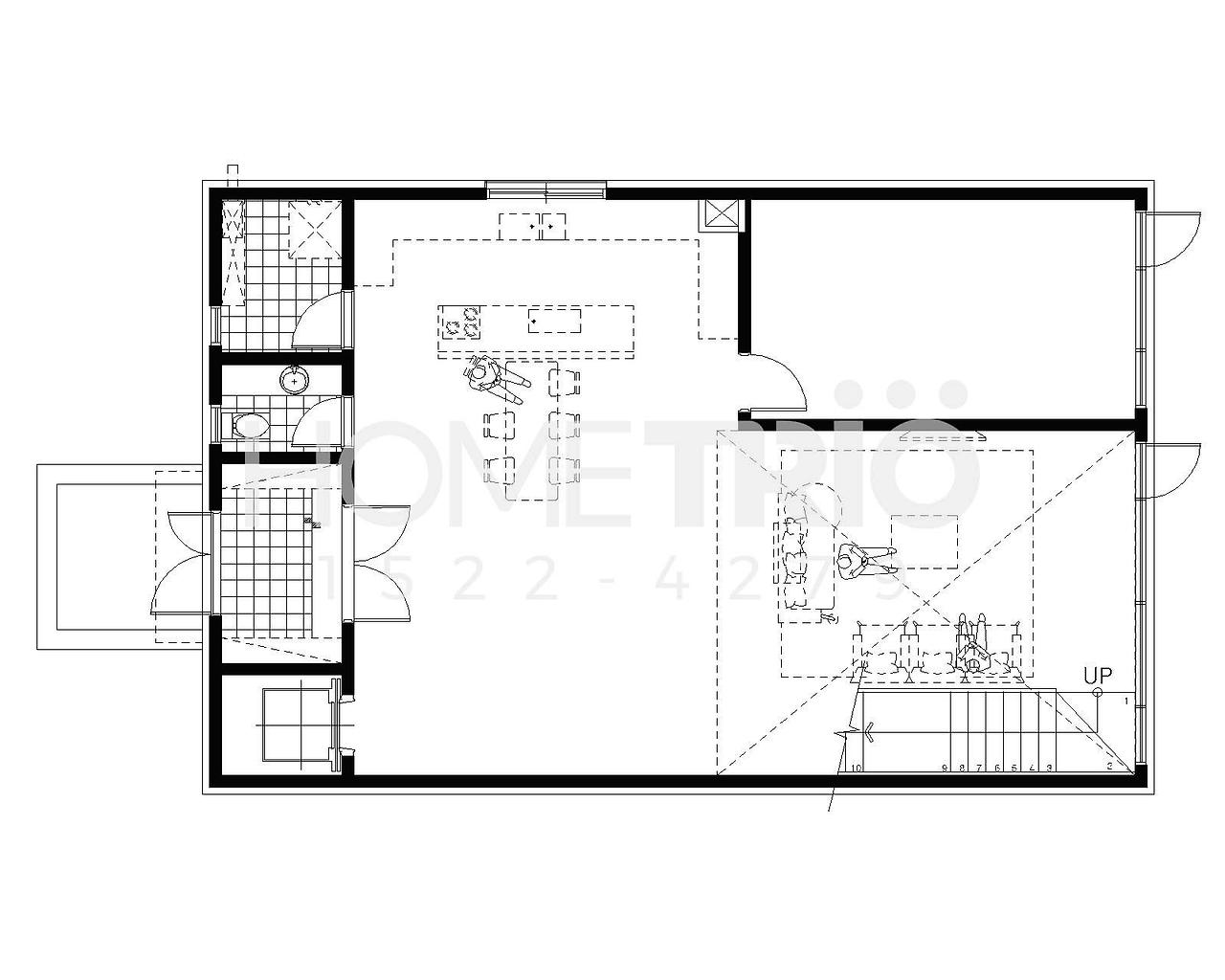
2.jpg 2층 평면도
3.jpg 3층 평면도
4.jpg 옥탑 평면도


이동혁 건축가 : 평범한 단독주택의 느낌을 지우고 나만의 별장 콘셉트로 설계한 주택 프로젝트였습니다. 인천 청라의 베어즈베스트 주택 필지 내에 지어질 주택으로, 초기 설계부터 개방감 플러스 유니크한 입면으로 기대를 모았던 프로젝트였습니다. 땅 값이 비싼 곳이기 때문에 건폐율과 용적률을 꽉 채우는 것이 1순위였습니다. 어설프게 남겨서는 안 되는 땅이었거든요. 그래서 땅의 끝 라인까지 밀어붙이는 방식으로 공간을 설계했으며, 박스형의 모던한 디자인에 통창의 개방감이 극대화된 형태로 설계를 완성시켰습니다. 창이 엄청 많습니다. 아마 현관을 진입해서 거실에서 첫 마주하는 시각적 개방감은 그 어떠한 주택보다도 우위에 있을 거라 자부합니다. 집이 3층으로 구성되어 있습니다. 2층 공간의 일부를 오픈 천장으로 개방시켜 1층에서의 시각적 개방감을 극대화시켜주었습니다. 오픈 천장을 적용할 경우 실링팬 설치는 필수입니다. 뜨거운 공기가 다 위로 올라가 버리기 때문에 1층에 아무리 난방을 해도 1층은 냉한 기운이 계속 감돕니다. 그래서 2층에서 실링팬으로 강제 공기 순환을 시켜주어야 합니다. 간혹 제 말 안 듣고 설치 안 하시는 분들 계신데요. 살다 보면 결국에 다시 돈 들여서 하신다는 사실. 여러분들은 그런 실수 하지 마세요.

정다운 건축가 : 이번 주택의 통창을 설계 및 시공하기 위해서는 선행되어야 할 것들이 있는데요. 일단 공법은 철근콘크리트 공법으로 해야지만 이번 주택과 같은 넓고 큰 통창이 시공 가능합니다. 타 공법에서는 창의 무게를 버틸 수 없기 때문에 목조 및 스틸에서는 위와 같은 이미지를 구현하기 어렵습니다. 또한 창호의 프레임이 중요한데요. 일반적으로 사용하는 PVC 창호 프레임으로는 이번 주택의 통창 구현이 어렵습니다. 기본적으로 알루미늄 프레임이 필수적으로 따라와야 합니다. 유리의 경우 단창이 아니죠. 일반적으로 시스템 창호 적용이며, 3중 로이유리가 기본 적용되어야 합니다. 안 그래도 단열에 약한 유리를 크게 만들었으니 추위에 약할 수밖에 없겠죠. 그래서 3중 시스템창호 적용은 기본이라는 것. 잊지 마세요. 아! 가급적 창호도 브랜드 쓰세요. 싸다고 좋은 것이 절대 아니므로 결로 발생되는 거 겪지 않으시려면 창호는 돈이 들어도 좋은 것으로 하는 것이 필수라는 거. 잊지 마세요.

임성재 건축가 : 규모가 큰 주택일수록 공간들의 스케일이 커집니다. 오밀조밀하게 하는 설계 방식은 소형평수대에서 많은 요소들을 집어넣을 때 하는 방식으로 주로 사용됩니다. 대형 평수로 갈수록 각 공간들의 영역성을 확실하게 부여하기 때문에 평면이 심플해지고 각 공간들의 스케일이 자연스럽게 커집니다. 답답하면 단독주택에 사는 장점이 많이 사라져 버리거든요. 이 글을 읽고 계신 구독자 여러분들도 너무 좁게 설계하려고 하지 마세요. 개인 공간을 줄여주되, 공용공간에서는 확실하게 공간을 할애하세요. 그래야 집이 넓어 보인답니다. 도심형 단독주택은 앞마당이 거의 없습니다. 주차공간을 빼고 사용한다면 모를까. 거의 조금 남아 있는 앞마당은 주차장 용도 이외에는 잘 사용을 못하는데요. 그래서 도심형 단독주택은 옥상 공간이 매우 중요합니다. 건물 규모만큼 활용할 수 있는 공간이며, 수영장 및 바비큐 등의 다양한 공간들로 활용이 가능합니다. 여기서 주의할 점은 옥상 방수는 영구적인 것이 아니기 때문에 방수 층 위에 가급적이면 타일 및 무근 콘크리트 마감 등의 방수층을 보호할 수 있는 추가 작업을 꼭 해 놓으셔야 합니다. 그러면 최소 5년 이상은 누수에 대한 걱정 없이 생활할 수 있을 것입니다.

메스1.jpg
메스2.jpg
메스3.jpg
메스4.jpg
메스5.jpg
KakaoTalk_20220126_151117333.jpg

UFClyr6uoF3cSIMtvnKU9ZfGEv4.jpg (좌측부터) 이동혁 건축가, 정다운 건축가, 임성재 건축가

[집이라는 본질적인 가치에 집중하다.]

Architecture Team : 홈트리오(주)

대표번호 : 1522-4279

홈페이지 : http://hometrio.kr/

KakaoTalk_20191210_164551850.jpg
KakaoTalk_20200521_090546896.jpg
[포맷변환]블랙배경_흰색로고.jpg