PART 10. October-젊은 전원주택 트렌드 5
스타 건축가 3인방의 집짓기 제안
-아이들과 함께하는 행복한 집짓기-
저자 : 이동혁, 임성재, 정다운
PART 10. October
※모든 저작권은 홈트리오(주)에게 있습니다. 최근 무단으로 디자인과 설계 평면도를 복제해 마치 본인들이 한 것인 듯 홍보하는 업체들이 있는데 법적 책임을 물을 수 있다는 점 고지 드립니다.
STORY
: 주황빛 기와가 고즈넉하게 올라간 북유럽 스타일의 주택입니다. 기와집을 정말 오랜만에 발표하는 것 같습니다. 모던스타일이 트렌드로 자리 잡다 보니 기와를 올린 집을 생각보다 많이 설계하지 못했던 것 같네요.
검은색 기와는 한옥에서 주로 사용하는데 같은 기와라 하더라도 구워낸 스페니쉬기와는 우리나라의 전통기와와는 완전히 다른 느낌을 받게 합니다.
간혹 플라스틱으로 된 기와를 올리시겠다고 우기시는 분들이 계신데요. 비싼 돈 들여서 집 짓는데 그거 한번 잘못 올리면 싸구려집 될 수도 있습니다. 가급적 집도 저희들의 의견을 들어주시고, 집에 들어가는 자재도 어느 정도 브랜드 이상급을 사용해야 같은 디자인이라 하더라도 레벨이 다른 느낌을 부여할 수 있습니다.
사진으로 찍으면 다 거기서 거기 같지만 같은 기와도 어떠한 브랜드와 어떠한 색상을 사용하느냐에 따라서 완전히 분위기가 달라지니 이 점 꼭 참고하시길 바랍니다.
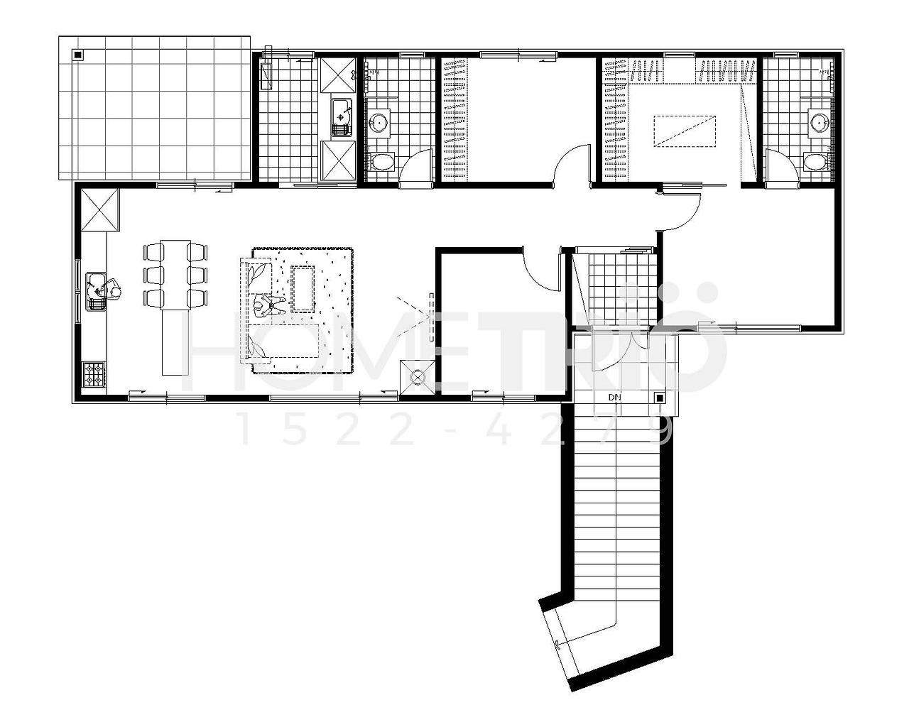
이번 주택은 필로티가 있어 커 보이는 형상을 가지고 있지만 실재 내부공간은 35평의 콤팩트한 전원주택으로 설계했습니다. 두 명이 살기에는 최적화된 공간과 평수라고 할 수 있을 것 같습니다.
두 명이 살고 단층으로 집을 지어 산다라면 저는 35평 단층 주택을 강력 추천합니다. 다만 자녀들이 있고 4인가족이 살아야 한다면 무조건 40평 이상으로 지어야 한다고 조언드립니다. 막 구겨 넣어서 강제로 방을 만들고 거실, 주방 합치고 해서 4인 가족이 살 수 있는 집을 지을 수도 있지만 저희들의 경험상 그렇게 지어드린다 한들 좋은 소리 못 듣는 것 이미 알고 있습니다.
사회 초년생 때에는 건축주가 원하는 방향대로 모두 설계를 했었습니다. 그것이 정답인 줄 알았거든요. 그리고 문제가 많은 부분을 잘 풀어내 주어야 하는 것이 건축가로서의 소명이라 생각하고 일했었는데, 생각보다 뒤에서 들리는 소리는 좋지 않았습니다.
그 당시에는 왜 그런지 잘 이해가 되지 않았었는데요. 시간이 지나 지금 되돌아보면 비전문가인 건축주의 의견만 듣고 말도 안 되는 집을 지었던 것이죠. 예를 들면 자동차를 하나 만드는데 안전과 관련된 부분들은 전문가적인 의견으로 만드는 것이 아니라 고객의 이야기를 듣고 브레이크를 엉뚱한데 달아놓는다던지, 와이퍼가 안 예쁘니까 짧게 만든다던지... 아무리 고객의 니즈가 존재한다 하더라도 건축가로서 해야 될 것과 안 해야 될 것을 구분해서 싸우더라도 정리해 주어야 한다는 것을 깨달았습니다.
어차피 건축주님은 모릅니다. 이게 처음 짓는 집이니까요. 아는 정보라도 해 봤자 인터넷에서 본 글들일 것이고, 아파트에서 살아본 경험 정도가 다일 것입니다.
건축주님도 너무 우기시면 안 됩니다. 이미 검토를 했는데 안 되는 부분이라고 하면 과감히 포기하는 것도 좋은 방법이라 생각합니다. 대부분 건축가가 반대한다면 안전이나, 하자와 관련된 부분들일 것이거든요.
아무리 예쁜 집도 곰팡이 생기고 비 새면 화 엄청납니다.^^;
평면은 정석과도 같은 형태로 공간을 구성했습니다. 좁은 면적의 평수이기 때문에 공용공간을 최대한 하나의 원스페이스로 구성하고 나머지 침실들을 한 복도 공간에 몰아넣어 이동을 위한 복도 공간을 최소화했습니다.
방은 3~4평 정도로 구성하고 넓은 드레스룸 공간을 하나 더 만들었습니다. 수납공간이 부족한 전원주택의 단점을 별도의 실로서 해결했다고 보시면 좋을 것 같습니다.
화장실은 양변기, 세면대, 샤워부스까지 모두 구성된 형태로 2개 만들어 놓았고, 실내에서 다 만족할 수 없는 부분을 위해 뒤쪽으로 지붕형 포치 공간을 넓게 만들어 주었습니다.
경사지 때문에 앞의 공간이 거의 없기 때문에 뒤쪽으로 공간을 만들어 준 것입니다. 이곳에서는 비가 오더라도 차를 마시고 다과를 즐길 수 있답니다. 지붕이 있는 포치 공간은 다목적으로 활용이 가능합니다. 추후 김장을 할 때에도 이 공간에서 넓게 활용하시게 될 거예요.
#스페니쉬기와 #북유럽스타일 #감성뿜뿜 #따뜻한집 #단층전원주택
공법 : 경량목구조
설계, 시공 : 홈트리오(주) / 상담문의 : 1522-4279
ARTIST : 건축가 정다운, 임성재, 이동혁
홈페이지 : http://hometrio.kr/
지붕마감재 : 스페니쉬기와 / 외벽 마감재 : 스타코플렉스 / 포인트자재 : 파벽돌
실내벽마감재 : 실크벽지 / 실내바닥마감재 : 이건 강마루
창호재 : 이건 알루미늄 3중 시스템창호
건축면적 : 192.29㎡(지하 1층 필로티 : 67.80㎡, 1층 : 124.49㎡)
예상 총 건축비 : 431,000,000원(부가세 포함, 산재보험료 포함 / 설계비, 인허가비, 구조계산 설계비 별도)
설계비 : 14,500,000원(부가세 포함) / 인허가비 : 5,800,000원(부가세 포함)
구조계산 설계비 : 5,800,000원(부가세 포함) / 인테리어 설계비 : 8,700,000원(부가세 포함)
*건축비 외 부대비용 : 대지구입비, 가구(싱크대, 신발장, 붙박이장), 기반시설 인입(수도, 전기, 가스 등), 토목공사, 조경비 등
이동혁 건축가 : 경사지에 지어지는 주택입니다. 뒷벽으로 흙막이 공사를 한 후 오픈공간으로서 필로티를 띄워 지하주차공간으로 활용될 수 있도록 했습니다. 흙막이공사가 공짜라고 생각하시는 분들이 많은데요. 생각보다 공사비용 많이 들어갑니다. 이번 주택도 거의 5천만 원 정도의 토목공사가 동반될 것으로 예상됩니다. 벽을 시공해 내부 공간으로서도 활용가능하지만 이번 주택처럼 사용 목적성에 따라 필로티로만 구성한 후 외부공간으로서 활용해도 괜찮습니다. 모든 공간에는 그에 따른 건축비용이 들어갑니다. 어떻게 활용할 것인지를 결정한 후 최소한의 마감으로 공사를 진행해야 여러분들의 예산범위 안에서 건축물이 완성될 것입니다.
정다운 건축가 : 단층으로 35평을 구성한 전원주택입니다. 부부 두 명이 생활하기에 최적화시킨 평면설계로 공간들을 구성했습니다. 공용공간은 넓고 밝게, 그리고 프라이빗 공간은 아늑하고 포근하게. 각각의 공간들이 제 역할을 충분히 수행할 수 있도록 동선과 배치를 진행했습니다. 경사지의 땅이었기 때문에 앞쪽에 계단이 형성되었으며, 자연스럽게 이 부분 자체가 이 집의 독특한 파사드 공간으로서 인지될 수 있는 효과를 얻게 되었습니다. 단층 주택이기 때문에 집이 작아 보일 수밖에 없는 상황이었지만 필로티와 같이 구성되면서 적은 평수의 주택이지만 커 보이는 효과를 얻을 수 있었습니다.
임성재 건축가 : 35평의 면적은 2명이 생활하기 최적화되어 있습니다. 4인 식구도 지낼 수는 있지만 무언가 모르게 좁다라는 생각을 가지실 거예요. 기본적으로 성인 4명이 거주하기에 딱 맞는 평수대는 40평이 넘어가야 합니다. 이번 주택은 건축주님 두 분이 거주하시는 주택으로 추후 명절에 손님들을 받을 수 있도록 침실과 거실 등을 구성해 놓았습니다. 실 생활에서는 방을 하나만 사용하지만 자녀들을 위해 손님방을 만들어 놓았다고 생각해 주시면 될 것 같아요.