219평 프리미엄호텔:YP219(전원주택 트렌드 Ⅵ)

2023 월간 홈트리오 1월호 ②

by 이동혁 건축가
KakaoTalk_20200521_090546896.jpg


2023 월간 홈트리오 1월호 ② - 219평 프리미엄 호텔 : YP219(젊은 전원주택 트렌드Ⅵ)


※모든 저작권은 홈트리오(주)에게 있습니다. 최근 무단으로 디자인과 설계 평면도를 복제해 마치 본인들이 한 것인 듯 홍보하는 업체들이 있는데 법적 책임을 물을 수 있다는 점 고지드립니다.


STORY

: 이번 모델은 홈트리오가 아닌 외부 설계회사에서 의뢰하고 홈트리오가 시공한 호텔 사례입니다. 홈트리오의 기술력으로 높은 퀄리티의 건물로서 탄생시키고자 합니다.


이번 호텔은 총 219평의 실내공간을 가지고 태어났으며, 유니크한 디자인과 랜드마크적인 아우라로 압도적인 고급 프리미엄 호텔의 시작을 알리는 건축물이라고 이야기드릴 수 있습니다.


양평에 지어지고 있는 호텔 건축물로서 홈트리오의 색깔과 시공의 노하우를 접목시켜 최고의 건축물로 선보이도록 하겠습니다.


이번 건축물은 홈트리오의 설계가 아닌 생활건축의 설계안을 받아서 시공하는 방식으로 운용되고 있기에 디자인에 대한 이야기는 생략하도록 하겠습니다.


현재 철근콘크리트 공법으로 건물을 지었을 때 평당 단가로 환산하면 평균 평당 1,200만 원 정도에서 견적이 진행되고 있는 것 같습니다. 만약 상업용의 건축물이라면 인테리어 부분이 빠져나가기 때문에 골조와 외장만 견적을 잡는다면 평당 800~900만 원 정도에서 견적이 나옵니다.


건축물의 난이도와 디자인 구현 등에 따라 편차는 당연히 존재하며, 건물의 면적이 어느 정도 되는지에 따라서도 금액이 달라질 수 있습니다.


건축비는 건물의 커질수록 평당 공사비는 내려가는 형태이며, 외장재와 마감 수준을 어느 정도 할 것인지에 따라 크게 건축비용이 출렁거린다고 할 수 있습니다.


저희들의 시공 품질이 일정한 이유는 설계도면이 나온 이후 물량을 뽑아 정확한 공사 금액이 산출되며, 공사 도중에 건축주 마음이 바뀌었다고 해서 공사 변경해 드리지 않습니다. 어찌 보면 완전 똥고집이라고 할 수 있습니다. ^^;; 이 똥고집이 저희들은 여기까지 성장할 수 있게 만든 밑거름이기 때문에 가치관을 바꿀 생각 없습니다.


설계 3개월이라는 기간 동안에도 결정 못한 부분들이 공사 도중에 갑자기 바뀐다는 것은 있을 수 없는 일입니다. 그냥 잘못 판단하신 거예요. 건축가의 판단을 믿고 끝까지 밀고 나가시길 바라겠습니다.


홈트리오에서 외부 설계사무소의 일을 받아 진행한 건은 10년 동안 일을 진행해 오면서 처음 있는 일인 것 같습니다. 무조건 외부의 일을 안 받는다기 보다는 설계도면의 퀄리티와 건축가의 자신감이 도면에 녹아들어 가 있어야 하는데, 그동안의 외주업체의 도면들을 보면 대충 가도면만 그리고 나머지 설비, 전기 도면은 일 따고 싶으면 너희가 알아서 그리라는 안하무인 한 태도로 일이 넘어왔었습니다.


저희도 아쉬운 입장이 아니었기 때문에 다 거절했었는데요. 이번 호텔 설계처럼 도면이 완벽하고 건축주님이 저희를 믿어주시는 프로젝트라면 자신 있게 공사를 진행할 수 있겠다는 판단을 했습니다.


현재 골조가 끝나고 내장 마감이 진행 중입니다. 설계도면으로 선보이는 것에서 그치는 것이 아닌 실물 사진으로도 선보일 예정이니 지속적인 관심과 사랑 부탁드립니다.


저희 홈트리오는 홈트리오의 철학대로 완벽한 퀄리티로서 건물을 완공시키도록 하겠습니다.


#양평호텔 #호텔설계 #프리미엄호텔 #꿈꾸던건축 #힐링호텔

양평호텔야경.jpg


공법 : 철근콘크리트

설계 : 생활건축

시공 : 홈트리오(주) / 상담문의 : 1522-4279

ARTIST : 건축가 정다운, 임성재, 이동혁

홈페이지 : http://hometrio.kr/

지붕마감재 : 평지붕, 리얼징크, 강화유리 / 외벽 마감재 : 석재, 스타코 / 포인트자재 : 석재, 부식철판

실내벽마감재 : 도장마감, 포세린타일, 실크벽지 / 실내바닥마감재 : 포세린타일

창호재 : 이건 알루미늄 3중 시스템창호

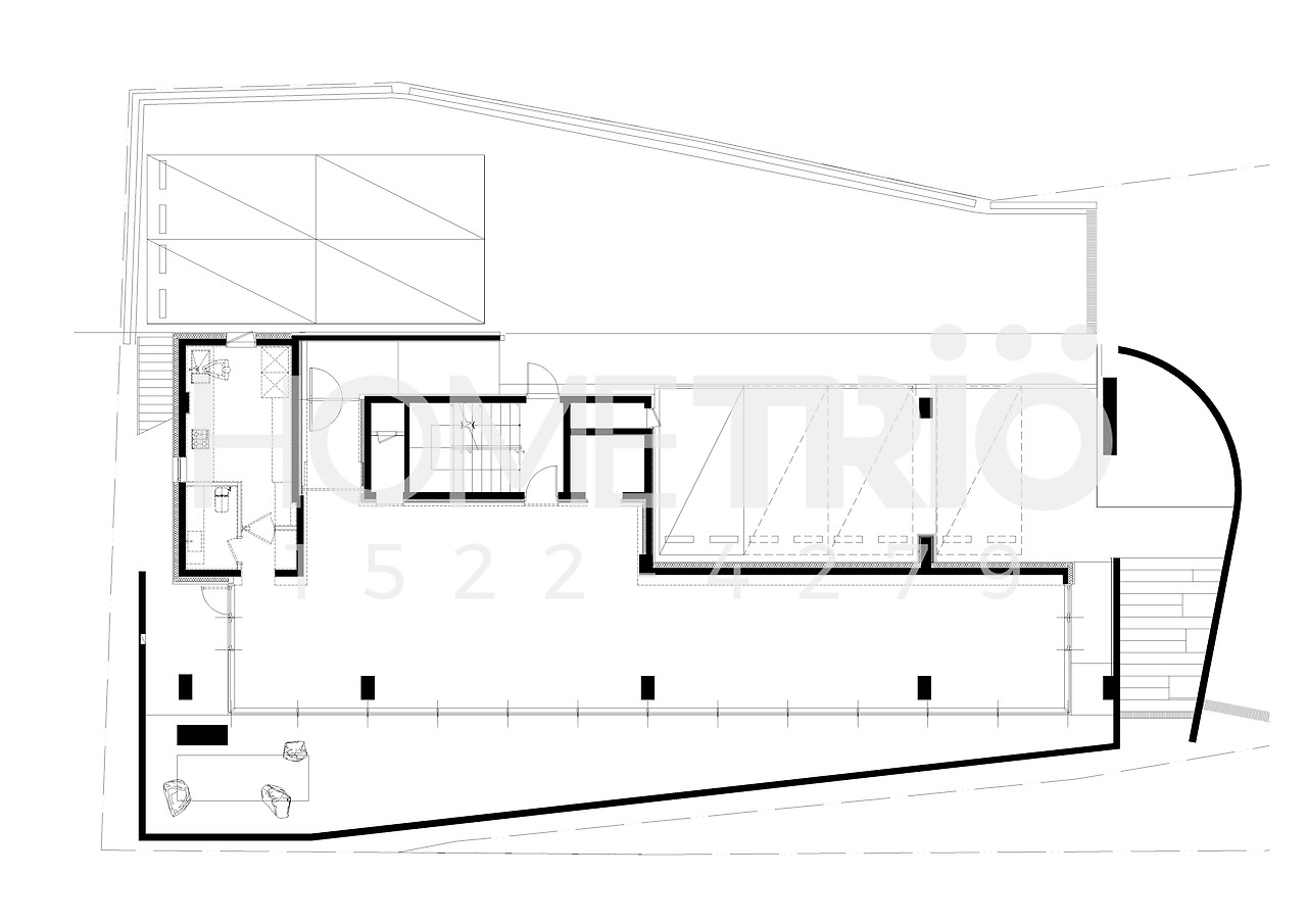
건축면적 : 724.13㎡(지하1층 : 65.49㎡, 1층 : 197.81㎡, 2층 : 263.93㎡, 지상3층 : 196.90㎡)

예상 총 건축비 : 2,628,000,000원(부가세 포함, 산재보험료 포함 / 설계비, 인허가비, 구조계산 설계비 별도)

설계비 : 65,700,000원(부가세 포함) / 인허가비 : 21,900,000원(부가세 포함)

구조계산 설계비 : 21,900,000원(부가세 포함) / 인테리어 설계비 : 32,850,000원(부가세 포함)

*건축비 외 부대비용 : 대지구입비, 가구(싱크대, 신발장, 붙박이장), 기반시설 인입(수도, 전기, 가스 등), 토목공사, 조경비 등


0.b1.jpg 지하1층 평면도
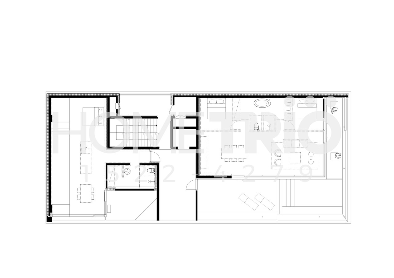
1f.jpg 1층 평면도
2f.jpg 2층 평면도
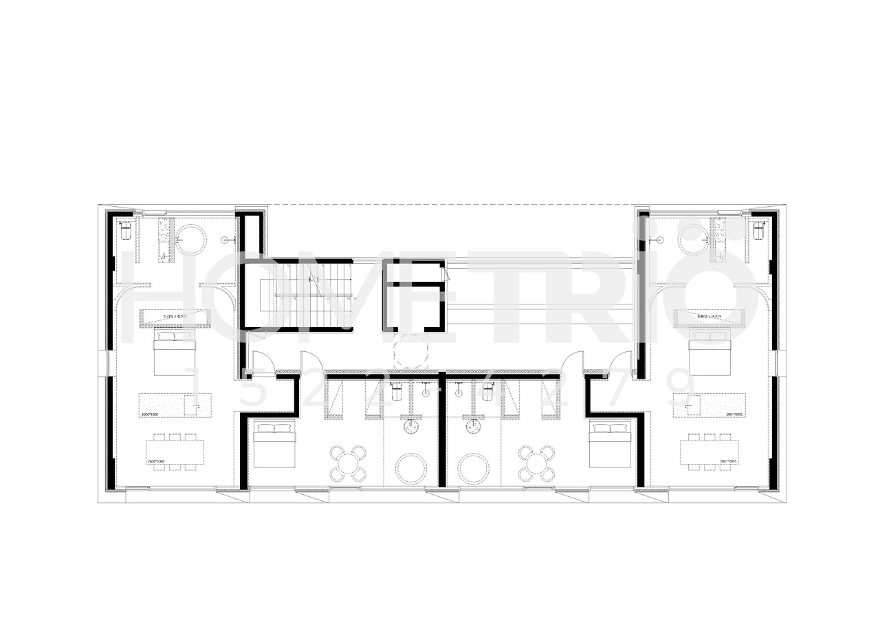
3f.jpg 3층 평면도


이동혁 건축가 : 주택이 아닌 규모가 있는 호텔 건축의 경우 외부에서 보이는 이미지가 중요해 시공 마감의 디테일에 엄청 신경을 씁니다. 면과 면이 만나는 부분과 다른 재질인 유리가 접하는 부분들에 신경을 많이 쓰고 있으며, 옥상의 방수 및 단열 등으로 발생되는 곰팡이 등의 하자등을 민감하게 검토하면서 시공을 진행합니다. 별도의 관리자가 있을 것처럼 생각하지만 내부에 대한 청소 직원이 있을 뿐 건물 전체를 관리하는 사람을 별도로 두기는 어렵습니다. 그러한 사정을 알기 때문에 애초에 손이 덜 갈 수 있는 방법으로 시공하고, 자동으로 유지될 수 있는 장치들을 활용하여 호텔을 운영하심에 최소한의 손만 가면서 진행할 수 있도록 배려하고 있습니다.

정다운 건축가 : 공사기간에 대해 물어보시는 분들이 많은데요. 이 정도 규모의 호텔 공사는 기본 1년 공사입니다. 날씨가 좋아 빠르게 끝내도 10개월이며, 이 기간도 의미가 없는 것이 준공 등의 행정 기간과 가구, 직원 등이 모두 세팅되어야 비로소 운영이 가능하기 때문에 단순 공사기간만 보시지 마시고 그 이후의 일정 등을 같이 체크하시는 것이 좋습니다. 우리 생각에는 각 공정이 빈틈없이 맞아떨어지면서 갈 것 같지만 그렇지 않습니다. 또한 올해처럼 전쟁 이슈 및 레미콘파업처럼 생각지도 못한 이슈가 있으면 공사가 지연되므로 충분한 여유기간을 잡고 건축을 진행하시길 바라겠습니다.

임성재 건축가 : 호텔 건축의 경우 바닥난방의 개념이 아니기 때문에 바닥엑셀 배관의 의미가 없습니다. 특히 근생건축물인 빌딩도 동일합니다. 난방과 단열에 예민하신 분들이 계신데요. 호텔 등의 건물은 조망이 1순위이지 남향의 해가 1순위가 아닙니다. 너무 단열이라는 키워드에 빠져서 잘못된 판단을 하시면 안 됩니다. 풍경을 즐기고 룸 내부에서 힐링을 즐기러 가는 곳이 호텔이기 때문에 디자인적 분위기, 그리고 감성과 조망을 최우선순위로 두시고 전체적인 계획과 조닝을 진행하시길 조언드립니다.

양평호텔.jpg
메스1.jpg
메스2.jpg
메스3.jpg
메스4.jpg
양평호텔야경.jpg

ezr1Y1RZ_itMdTg6llyXG-A5YMI.jpg
UFClyr6uoF3cSIMtvnKU9ZfGEv4.jpg (좌측부터) 이동혁 건축가, 정다운 건축가, 임성재 건축가

[집이라는 본질적인 가치에 집중하다.]

Architecture Team : 홈트리오(주)

대표번호 : 1522-4279

홈페이지 : http://hometrio.kr/

KakaoTalk_20191210_164551850.jpg
KakaoTalk_20200521_090546896.jpg
[포맷변환]블랙배경_흰색로고.jpg

<홈트리오 집짓기 영상>


1. 홈트리오 완공주택 - 전남 순천 50평 목조주택 완공 둘러보기(전원주택 집짓기)

https://www.youtube.com/watch?v=xONUa-8sUbA&list=PLIpsbWPaay95I-_T5JGIv4Mp3-HeatJnl

2. 홈트리오 완공주택 - 53평 충남 금산 전원주택 톺아보기(전원주택 집짓기)

https://www.youtube.com/watch?v=3I7pEJ5a4WA&list=PLIpsbWPaay95I-_T5JGIv4Mp3-HeatJnl&index=2

3. 56평 충남 논산 홈트리오 완공주택 톺아보기 - 전원주택 집짓기

https://www.youtube.com/watch?v=A-p9DW9xlac&list=PLIpsbWPaay95I-_T5JGIv4Mp3-HeatJnl&index=3

4. 44평 강원 양양 홈트리오 완공주택 톺아보기 - 전원주택 집짓기

https://www.youtube.com/watch?v=rsy2ld3DSFE&list=PLIpsbWPaay95I-_T5JGIv4Mp3-HeatJnl&index=45.

5. 일산 풍동 애니아트힐즈 73평 목조 단독주택 완공 톺아보기(전원주택 집짓기)

https://www.youtube.com/watch?v=fjQlAE2hloU&list=PLIpsbWPaay95I-_T5JGIv4Mp3-HeatJnl&index=5

6. 경북 상주 52평 목조 전원주택 완공 톺아보기(전원주택 집짓기)

https://www.youtube.com/watch?v=haAsuLN21pQ&list=PLIpsbWPaay95I-_T5JGIv4Mp3-HeatJnl&index=6

7. 완주 삼례읍 76평 목조 전원주택 완공 톺아보기(전원주택 집짓기)

https://www.youtube.com/watch?v=PH10Z8J_jgc&list=PLIpsbWPaay95I-_T5JGIv4Mp3-HeatJnl&index=7

8. 세종시 장군면 57평 목조 전원주택 완공 톺아보기(전원주택 집짓기)

https://www.youtube.com/watch?v=WleLIuA1ccA&list=PLIpsbWPaay95I-_T5JGIv4Mp3-HeatJnl&index=8

9. 세종시 도담동 56평 목조 단독주택 완공 톺아보기(전원주택 집짓기)

https://www.youtube.com/watch?v=fXDoVHCridA&list=PLIpsbWPaay95I-_T5JGIv4Mp3-HeatJnl&index=13

10. 일산 풍동 애니아트힐즈 67평 도심형 단독주택 완공 톺아보기(전원주택 집짓기)

https://www.youtube.com/watch?v=X8RMQBBaSYc&list=PLIpsbWPaay95I-_T5JGIv4Mp3-HeatJnl&index=25