[더농부 전원주택13]49평 뒷태의 아름다움을 증명하다

홈트리오(주)-임성재 건축가, 이동혁 건축가, 정다운 건축가

by 이동혁 건축가

제목 : [더농부 전원주택12] 49평 뒷태의 아름다움을 증명하다

1.jpg


STORY: 49평 마음에 '쉼'을 선물하다


집은 앞모습만 있는 것이 아니라 뒷모습도 존재하죠. 보통은 내 집의 정면부를 많이들 예쁘게 꾸미는데 뒷모습이 도로에서 주로 보이는 집이라면 집의 뒤태도 포기할 수 없을 것입니다.


젊은 부부가 사는 집으로 기획된 이번 주택은 전남 김제에 실제로 완공될 주택으로 정면부는 모던한 감각을 그리고 배면은 입체적인 볼륨감 있는 이미지를 줄 수 있도록 설계되었습니다. 도로가 집 배치에 생각보다 많은 영향을 끼칩니다. 어디에 위치하느냐에 따라 집의 현관이 달라지고 주차장과 집 내부의 동선도 영향을 받게 됩니다.


HC010-8868r.jpg

일반적으로 모두들 집의 현관이 집 중심에 있을 거라 생각하지만 이는 잘못된 생각입니다. 모든 현관의 위치는 대문과 주차장 그리고 진입하는 동선에 맞추어 배치가 되어야 합니다. 간혹 남의 설계안을 가지고 내 땅에 앉히려고 하시는 분들이 계신데 위에서만 보았을 때는 예뻐 보일 수 있어도 실제로 생활해보면 내 대지에 맞지 않는 배치로 동선이 꼬이는 경우가 많습니다.

HC010-8871r.jpg

항상 조언드립니다. 내 땅에 맞는 그리고 내 라이프스타일에 맞는 집을 설계하고 지어야 한다고요.


모던함의 상징은 간결한 선이라고 설명드리고 싶어요. 단순히 외관 이미지에서만 구도를 잡는 것이 아니라 설계의 평면 자체에서도 모던한 느낌을 최대한 살릴 수 있게 설계되어야 한답니다. 간혹 설계도면은 매스 분절을 많이 시켜 들쑥날쑥한데 강제로 모던한 이미지를 입히려고 하다가는 이도 저도 아닌 모습으로 완성되기도 한답니다. 1만~2만원이 아닌 억 단위가 들어가는 일인 만큼 꼼꼼히 체크하고 예쁘고 내 마음에 드는 집을 짓길 바라겠습니다.

HC010-8882r.jpg
HC010-0009r.jpg

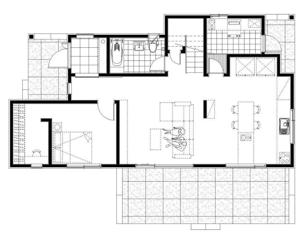
현관을 좌측으로 배치하면서 이 집의 동선은 자연스레 일자형 동선으로 구성되었습니다. 현관을 통해 복도를 들어오고 거실을 통해 각 실로 동선이 퍼지는 어찌 보면 전형적인 아파트형 구조의 묘미를 잘 흡수한 평면으로 할 수 있습니다. 이 집에서 가장 큰 장점은 전면부에 설계된 큰 창 들일꺼라 생각돼요. 휴식과 쉼을 위한 공간을 만든 만큼 밝은 햇살이 항상 집안 곳곳 들어오고 상쾌한 바람과 마당의 나무와 꽃의 냄새가 항상 집에 머물거라 생각합니다.


아파트의 인기가 점점 떨어지고 있는 것을 느낍니다. 획일적인 공간을 벗어나 나만을 위한 공간에 산다는 것. 어찌 보면 그 자체가 이미 나에게 주는 선물이자 힐링이지 않을까 생각해봅니다.

HC010-8887r.jpg
HC010-0006r.jpg


SPEC: 전원주택 정보



-공법 : 경량 목구조

-시공 : 홈트리오(주) / 상담문의 : 1522-4279

-ARTIST : 건축가 정다운, 임성재, 이동혁

-홈페이지 : http://hometrio.kr/

-지붕마감재 : 아스팔트슁글 / 외벽 마감재 : 스타코플렉스 / 포인트자재 : 세라믹사이딩

-실내벽마감재 : 실크벽지/ 실내바닥마감재 : 강마루

-창호재 : 미국식 3중 시스템창호

-건축면적 : 163.17㎡(1층 : 110.75㎡, 2층 : 52.42㎡)

-예상 총 건축비 : 367,500,000원(부가세 포함, 산재보험료 포함 / 설계비, 인허가비, 구조계산 설계비 별도)

-설계비 : 12,250,000원(부가세 포함) / 인허가비 : 4,900,000원(부가세 포함)

-구조계산 설계비 : 4,900,000원(부가세 포함) / 인테리어 설계비 : 7,350,000원(부가세 포함)

*건축비 외 부대비용 : 대지구입비, 가구(싱크대, 신발장, 붙박이장), 기반시설 인입(수도, 전기, 가스 등), 토목공사, 조경비 등




HC010-8846r.jpg
HC010-8861r.jpg
HC010-8834r.jpg
HC010-8844r.jpg
HC010-8852r.jpg
2.jpg 1층 평면도
3.jpg 2층 평면도


FLOOR PLAN: 이렇게 지었습니다



-이동혁 건축가 : 현관을 통해 집에 들어오면 복도, 거실, 주방에 이르는 넓은 대공간을 만날 수 있습니다. 현관 진입을 중심이 아닌 좌측으로 만들고 거실을 통해 각 공간으로 퍼져나갈 수 있는 동선을 구성해 그동안 보아왔던 타 주택과는 다른 공간 매력을 느끼실 수 있을 것입니다.


-임성재 건축가 : 현관이 꼭 앞으로 들어오리란 법은 없어요. 도로가 북쪽에 나 있는 경우에는 주차를 뒤로 하고 바로 현관으로 진입할 수 있게 동선을 만들어 주는 것이 좋거든요. 이번 주택도 그러한 대지 상황을 고려하여 현관을 배치했고 이에 따라 이어지는 동선들도 얽히지 않도록 배려해 설계하였습니다.


-정다운 건축가 : 전면부는 모던한 느낌을 극대화시키기 위해 군더더기 없는 박스형 이미지로 디자인하였고 배면은 정면부와 다른 느낌의 입체감을 주기 위해 매스 분절을 활용해 입체적이고 볼륨감 있는 외형을 탄생시켰습니다. 정면과 배면의 이미지는 마치 두 얼굴의 사람처럼 다른 매력이 공존한다는 느낌을 받을 수 있을 것입니다.


HC010-8706r.jpg
HC010-8690r.jpg
HC010-8698r.jpg
HC010-8713r.jpg

※위 글과 사진은 이동혁·임성재·정다운 홈트리오 공동대표가 쓴 <젊은 전원주택 트렌드 2>의 일부입니다. 세명의 공동대표들은 2019년 1월부터 최신 트렌드에 맞춘 전원주택 모델을 매달 발표해왔습니다. 건축비, 상세 평면도, 면적 개요, 실제 사진까지 담아 '나만의 전원주택'을 원하는 예비 건축주들에게 가이드라인을 제시해줍니다.


전원주택 트렌드 책 구매 링크 : https://search.shopping.naver.com/book/catalog/32476108627



글·사진=이동혁·임성재·정다운 홈트리오 공동대표

정리=더농부


%ED%94%84%EB%A1%9C%ED%95%84(%EA%B8%80_%EC%B2%A8%EB%B6%80).JPG?type=w966

홈트리오 조직 계열도.jpg
6.jpg (좌측부터) 홈트리오(주) 정다운 건축가, 임성재 건축가, 이동혁 건축가

[집이라는 본질적인 가치에 집중하다.]

Architecture Team : 홈트리오(주)

대표번호 : 1522-4279

홈페이지 : http://hometrio.kr/

네이버 프리미엄 구독 : https://contents.premium.naver.com/hometrio/home

KakaoTalk_20191210_164551850.jpg
KakaoTalk_20200521_090546896.jpg
img.jpg

<홈트리오 집짓기 영상>


1. 홈트리오 완공주택 - 전남 순천 50평 목조주택 완공 둘러보기(전원주택 집짓기)

https://www.youtube.com/watch?v=xONUa-8sUbA&list=PLIpsbWPaay95I-_T5JGIv4Mp3-HeatJnl

2. 홈트리오 완공주택 - 53평 충남 금산 전원주택 톺아보기(전원주택 집짓기)

https://www.youtube.com/watch?v=3I7pEJ5a4WA&list=PLIpsbWPaay95I-_T5JGIv4Mp3-HeatJnl&index=2

3. 56평 충남 논산 홈트리오 완공주택 톺아보기 - 전원주택 집짓기

https://www.youtube.com/watch?v=A-p9DW9xlac&list=PLIpsbWPaay95I-_T5JGIv4Mp3-HeatJnl&index=3

4. 44평 강원 양양 홈트리오 완공주택 톺아보기 - 전원주택 집짓기

https://www.youtube.com/watch?v=rsy2ld3DSFE&list=PLIpsbWPaay95I-_T5JGIv4Mp3-HeatJnl&index=45.

5. 일산 풍동 애니아트힐즈 73평 목조 단독주택 완공 톺아보기(전원주택 집짓기)

https://www.youtube.com/watch?v=fjQlAE2hloU&list=PLIpsbWPaay95I-_T5JGIv4Mp3-HeatJnl&index=5

6. 경북 상주 52평 목조 전원주택 완공 톺아보기(전원주택 집짓기)

https://www.youtube.com/watch?v=haAsuLN21pQ&list=PLIpsbWPaay95I-_T5JGIv4Mp3-HeatJnl&index=6

7. 완주 삼례읍 76평 목조 전원주택 완공 톺아보기(전원주택 집짓기)

https://www.youtube.com/watch?v=PH10Z8J_jgc&list=PLIpsbWPaay95I-_T5JGIv4Mp3-HeatJnl&index=7

8. 세종시 장군면 57평 목조 전원주택 완공 톺아보기(전원주택 집짓기)

https://www.youtube.com/watch?v=WleLIuA1ccA&list=PLIpsbWPaay95I-_T5JGIv4Mp3-HeatJnl&index=8

9. 세종시 도담동 56평 목조 단독주택 완공 톺아보기(전원주택 집짓기)

https://www.youtube.com/watch?v=fXDoVHCridA&list=PLIpsbWPaay95I-_T5JGIv4Mp3-HeatJnl&index=13

10. 일산 풍동 애니아트힐즈 67평 도심형 단독주택 완공 톺아보기(전원주택 집짓기)

https://www.youtube.com/watch?v=X8RMQBBaSYc&list=PLIpsbWPaay95I-_T5JGIv4Mp3-HeatJnl&index=25