[더농부 전원주택15]37평 건강을 위한 집을 짓다

홈트리오(주)-임성재 건축가, 이동혁 건축가, 정다운 건축가

by 이동혁 건축가
1.jpg


STORY: 37평 건강을 위한 집을 짓다


노후에 조용한 곳에 터를 잡고 마음의 안정과 몸의 건강을 챙길 수 있는 곳. 그런 곳에서의 제2의 삶을 시작을 한다는 것. 어찌 보면 그 자체만으로도 이미 건강이 회복된 듯한 느낌을 받을 것입니다. 전원주택을 짓고자 하시는 분들 중의 대부분은 위와 같이 건강과 마음의 안정. 함축하여 '힐링'이라는 단어를 가지고 가기 위해서 짓는 분들이 많습니다.


엄청 열심히. 그리고 바쁘게. 그렇게 달려간다고 꼭 성공과 직결되는 것은 아닌 것 같습니다. 적절한 휴식과 재충전할 시간이 존재해야지만 다시금 달려 나갈 힘이 생겨나겠죠. 오늘 모델도 그러한 부분에서 시작이 되었습니다.


HC011-8917r.jpg

작지도 크지도 않은 국민 사이즈인 30평형대. 특히 2층에 대한 로망을 실현시킬 수 있는 37평이라는 공간으로 설계된 이번 주택은 아담한 느낌의 외관과 단단해 보이는 벽돌을 디자인 조합하여 클래식과 모던함의 중간점으로 설계되었습니다. 2억 중반대의 건축비로서 '가성비'라는 단어를 사용할 수 있는 집으로 만들었으며, 3중 시스템 창호와 2중 단열을 기본 사용해 준패시브급의 품질을 완성시켰습니다.

HC011-9053r.jpg

올해 1월부터 진행해 왔던 월간 홈트리오가 12월호에까지 진행되니 참 많은 생각이 교차합니다. 매달 발표해 온 기획모델들은 주택마다의 콘셉트와 라이프스타일을 담고 있으며, 현 전원주택 시장의 트렌디함을 반영했다고 자부하면서 프로젝트를 진행해 왔습니다.


물론 무조건 저희가 정답이라는 것은 아니지만 설계안과 건축비 등을 투명하게 공개하면서 조금이나마 전원주택 시장에 투명화를 선도해 나갔을 거라 생각합니다. 아직도 불투명하게 가려진 부분들이 너무 많습니다. 저희들도 어려운 부분들이 많은데 집을 짓고자 하시는 여러분들은 얼마나 답답하실지... 집을 짓는 건축가로서 어떠한 부분들이 어렵고 문제 되는지 너무 잘 알기에 앞으로도 전원주택 시장의 투명화와 품질에 대한 만족도를 높일 수 있는 방안들을 계속해서 이어나갈 생각입니다.

HC011-9059r.jpg


#건강 #힐링하우스 #소박함 #군더더기없음 #은퇴후살고싶은곳


SPEC: 전원주택 정보



-공법 : 경량 목구조

-시공 : 홈트리오(주) / 상담문의 : 1522-4279

-ARTIST : 건축가 정다운, 임성재, 이동혁

-홈페이지 : http://hometrio.kr/

-지붕마감재 : 아스팔트슁글 / 외벽 마감재 : 스타코플렉스 / 포인트자재 : 파벽돌, 리얼징크

-실내벽마감재 : 실크벽지/ 실내바닥마감재 : 강마루

-창호재 : 미국식 3중 시스템창호

-건축면적 : 123.47㎡(1층 : 80.17㎡, 2층 : 43.30㎡)

-예상 총 건축비 : 259,000,000원(부가세 포함, 산재보험료 포함 / 설계비, 인허가비, 구조계산 설계비 별도)

-설계비 : 9,250,000원(부가세 포함) / 인허가비 : 3,700,000원(부가세 포함)

-구조계산 설계비 : 3,700,000원(부가세 포함) / 인테리어 설계비 : 5,550,000원(부가세 포함)

*건축비 외 부대비용 : 대지구입비, 가구(싱크대, 신발장, 붙박이장), 기반시설 인입(수도, 전기, 가스 등), 토목공사, 조경비 등


HC011-8962r.jpg
HC011-9046r.jpg
HC011-9047r.jpg
HC011-8990r.jpg
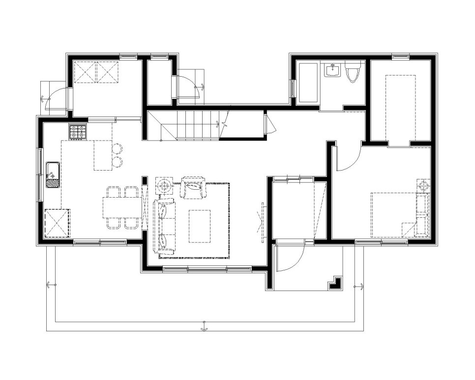
1층_평면도.jpg 1층 평면도


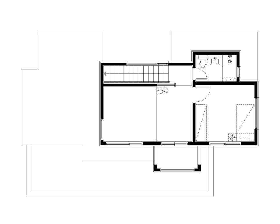
2층_평면도.jpg 2층 평면도


FLOOR PLAN: 이렇게 지었습니다




-이동혁 건축가 : 노후에 건강을 위한 집으로 설계된 주택입니다. 2억 중반대라는 금액을 정해 놓고 설계를 한 모델이며, 방은 2개만 구성하여 공용공간의 활용성을 높여준 주택입니다. 가장 매력적인 평면 부분은 2층의 다목적 가족실로서 폴딩도어를 설치해 평소에는 개방하여 넓게 사용하고, 자녀들이 놀러 왔을 때는 창을 닫아 방처럼 사용할 수 있게 공간 구성하였습니다.


-임성재 건축가 : 발코니와 포치 공간은 하나의 위치에 같이 존재하는 것이 좋습니다. 방수기술이 많이 발달했지만 그래도 누수에 대한 위험성이 완전히 사라진 것은 아니거든요. 실내로 물이 새기보다는 똑같은 외기에 접해 있는 것이 오히려 안전성에는 낳다고 판단합니다.


-정다운 건축가 : 요즘에는 지붕을 디자인하여 집의 분위기를 많이 잡아가려 합니다. 외장재도 물론 중요하지만 사람처럼 머리스타일에 따라 전체적인 분위기가 크게 좌지우지됩니다. 박공지붕과 외쪽지붕의 혼합 디자인만으로도 유니크한 주택을 탄생시킬 수 있었고, 오히려 모던 스타일에 가까운 집이 완성되었습니다.


HC011-9004r.jpg
HC011-8969r.jpg
HC011-9012r.jpg
HC011-9021r.jpg


※위 글과 사진은 이동혁·임성재·정다운 홈트리오 공동대표가 쓴 <젊은 전원주택 트렌드 2>의 일부입니다. 세명의 공동대표들은 2019년 1월부터 최신 트렌드에 맞춘 전원주택 모델을 매달 발표해왔습니다. 건축비, 상세 평면도, 면적 개요, 실제 사진까지 담아 '나만의 전원주택'을 원하는 예비 건축주들에게 가이드라인을 제시해줍니다.


전원주택 트렌드 책 구매 링크 : https://search.shopping.naver.com/book/catalog/32476108627



글·사진=이동혁·임성재·정다운 홈트리오 공동대표

정리=더농부


%ED%94%84%EB%A1%9C%ED%95%84(%EA%B8%80_%EC%B2%A8%EB%B6%80).JPG?type=w966

홈트리오 조직 계열도.jpg
6.jpg (좌측부터) 홈트리오(주) 정다운 건축가, 임성재 건축가, 이동혁 건축가

[집이라는 본질적인 가치에 집중하다.]

Architecture Team : 홈트리오(주)

대표번호 : 1522-4279

홈페이지 : http://hometrio.kr/

네이버 프리미엄 구독 : https://contents.premium.naver.com/hometrio/home

KakaoTalk_20191210_164551850.jpg
KakaoTalk_20200521_090546896.jpg
img.jpg

<홈트리오 집짓기 영상>


1. 홈트리오 완공주택 - 전남 순천 50평 목조주택 완공 둘러보기(전원주택 집짓기)

https://www.youtube.com/watch?v=xONUa-8sUbA&list=PLIpsbWPaay95I-_T5JGIv4Mp3-HeatJnl

2. 홈트리오 완공주택 - 53평 충남 금산 전원주택 톺아보기(전원주택 집짓기)

https://www.youtube.com/watch?v=3I7pEJ5a4WA&list=PLIpsbWPaay95I-_T5JGIv4Mp3-HeatJnl&index=2

3. 56평 충남 논산 홈트리오 완공주택 톺아보기 - 전원주택 집짓기

https://www.youtube.com/watch?v=A-p9DW9xlac&list=PLIpsbWPaay95I-_T5JGIv4Mp3-HeatJnl&index=3

4. 44평 강원 양양 홈트리오 완공주택 톺아보기 - 전원주택 집짓기

https://www.youtube.com/watch?v=rsy2ld3DSFE&list=PLIpsbWPaay95I-_T5JGIv4Mp3-HeatJnl&index=45.

5. 일산 풍동 애니아트힐즈 73평 목조 단독주택 완공 톺아보기(전원주택 집짓기)

https://www.youtube.com/watch?v=fjQlAE2hloU&list=PLIpsbWPaay95I-_T5JGIv4Mp3-HeatJnl&index=5

6. 경북 상주 52평 목조 전원주택 완공 톺아보기(전원주택 집짓기)

https://www.youtube.com/watch?v=haAsuLN21pQ&list=PLIpsbWPaay95I-_T5JGIv4Mp3-HeatJnl&index=6

7. 완주 삼례읍 76평 목조 전원주택 완공 톺아보기(전원주택 집짓기)

https://www.youtube.com/watch?v=PH10Z8J_jgc&list=PLIpsbWPaay95I-_T5JGIv4Mp3-HeatJnl&index=7

8. 세종시 장군면 57평 목조 전원주택 완공 톺아보기(전원주택 집짓기)

https://www.youtube.com/watch?v=WleLIuA1ccA&list=PLIpsbWPaay95I-_T5JGIv4Mp3-HeatJnl&index=8

9. 세종시 도담동 56평 목조 단독주택 완공 톺아보기(전원주택 집짓기)

https://www.youtube.com/watch?v=fXDoVHCridA&list=PLIpsbWPaay95I-_T5JGIv4Mp3-HeatJnl&index=13

10. 일산 풍동 애니아트힐즈 67평 도심형 단독주택 완공 톺아보기(전원주택 집짓기)

https://www.youtube.com/watch?v=X8RMQBBaSYc&list=PLIpsbWPaay95I-_T5JGIv4Mp3-HeatJnl&index=25