[더농부 전원주택19]54평 양평 청계리 전원주택 짓기

홈트리오(주)-임성재 건축가, 이동혁 건축가, 정다운 건축가

by 이동혁 건축가

제목 : [더농부 전원주택19]54평 양평 청계리 전원주택 짓기

양평-투시도.jpg
STORY: '햇살 품은 집' 54평 양평 청계리 전원주택
HC036-7087r.jpg

봄 햇살을 맞으며 주방 앞 데크에서 달콤한 커피 한잔을 하는 여유.


마당이라는 공간이 주는 심리적 안정감과 생활적 윤택함은 아파트에서는 느낄 수 없는 전원주택만의 매력일 것입니다. 특히 비가 올 때 마당의 잔디에 내려앉는 빗소리를 듣고 있노라면 정말인지 멍 때림의 무아지경에 빠질 때도 있답니다.


무언가를 해야 하고 쉬면 안 될 것 같고, 끊임없이 달려야 할 것 같은 느낌.


HC036-7089r.jpg

전원주택을 꿈꾸고 마당 있는 집을 원하시는 분들의 꿈은 생각보다 소박하답니다. 많은 것을 원하는 것이 아닌 마음의 여유와 복잡하지 않은 삶을 만들어 나가는 것.


그 마음을 알기에 집을 설계하고 지을 때 정말로 많은 고민을 같이 해드리고, 원하는 집의 모습을 최대한 구현하고자 노력합니다.


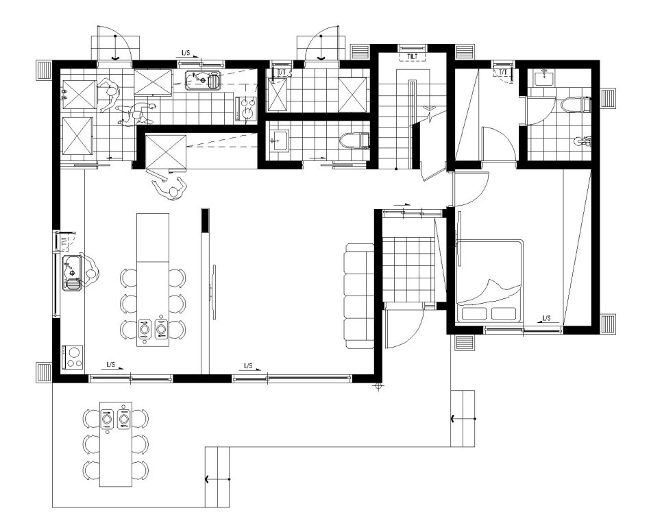
이번 평면은 좌우로 펼쳐진 형태의 공간 구성이라 할 수 있습니다. 저희들이 가장 많이 사용하는 공간 구성인 현관을 중심으로 좌우를 나누어주고, 거실과 주방을 하나의 가시적 공간에 둠으로서 최대한 넓게 보이는 효과를 가져갈 수 있도록 하였습니다.


목조주택의 경우 기둥과 기둥의 최대 간격은 5m를 넘을 수 없습니다. 그래서 거실의 사이즈는 큰 평수던 작은 평수던 간에 관계없이 4.8m 정도의 폭을 가집니다. 여기서 더 넓은 공간이 필요하다면 이번 주택처럼 중간에 기둥을 박은 뒤 주방 공간을 연달아 배치해 가시적으로 넓게 구성하는 방법밖에는 없습니다.


입면 디자인을 잡으면서 최대한 간결한 느낌의 모던 스타일을 만들어 주고자 노력했습니다. 복잡한 것이 아닌 정말로 있어야 할 것들만 존재하고 무게감 있는 포인트 부분과 안정감 있는 밸런스가 느껴지는 지붕 디자인을 조화롭게 적용하여 집을 완성시켰습니다.

HC036-7108r.jpg


목조주택의 경우 외벽의 갈라짐을 방지하기 위하여 탄성이 있는 스타코플렉스를 주로 사용합니다. 벽돌로 다 감싸도 되지만 외장재 비용이 만만치 않은 만큼 벽돌을 어느 정도 붙일 것이냐(?)에 따라 건축비가 크게 달라진다는 점을 인지하셔야 합니다.


마지막으로 집에 있어서 당연한 것. 그것은 단열과 누수라고 생각합니다. 하지만 이 당연한 것이 설계 디자인에 따라 당연하지 않은 것이 될 수 있습니다. 손 덜 가고 관리가 편한 집. 그리고 하자가 없는 집. 이 방법은 생각보다 쉽습니다. 모든 공간에 지붕을 덮어주고, 창도 달아 줄 것.


SPEC: 전원주택 정보


-공법 : 경량 목구조

-시공 : 홈트리오(주) / 상담문의 : 1522-4279

-ARTIST : 건축가 정다운, 임성재, 이동혁

-홈페이지 : http://hometrio.kr/

-지붕마감재 : 아스팔트슁글 / 외벽 마감재 : 스타코플렉스 / 포인트자재 : 파벽돌

-실내벽마감재 : 실크벽지/ 실내바닥마감재 : 강마루

-창호재 : 이건 알루미늄 3중 시스템창호

-건축면적 : 177.45㎡(1층 : 98.80㎡, 2층 : 78.65㎡)

-예상 총 건축비 : 480,000,000원(부가세 포함, 산재보험료 포함 / 설계비, 인허가비, 구조계산 설계비 별도)

-설계비 : 13,500,000원(부가세 포함) / 인허가비 : 5,400,000원(부가세 포함)

-구조계산 설계비 : 5,400,000원(부가세 포함) / 인테리어 설계비 : 8,100,000원(부가세 포함)

*건축비 외 부대비용 : 대지구입비, 가구(싱크대, 신발장, 붙박이장), 기반시설 인입(수도, 전기, 가스 등), 토목공사, 조경비 등


HC036-7119r.jpg
HC036-7179r.jpg
HC036-7165r.jpg
HC036-7151r.jpg
HC036-7135r.jpg
HC036-7142r.jpg
1층_평면도.jpg 1층 평면도
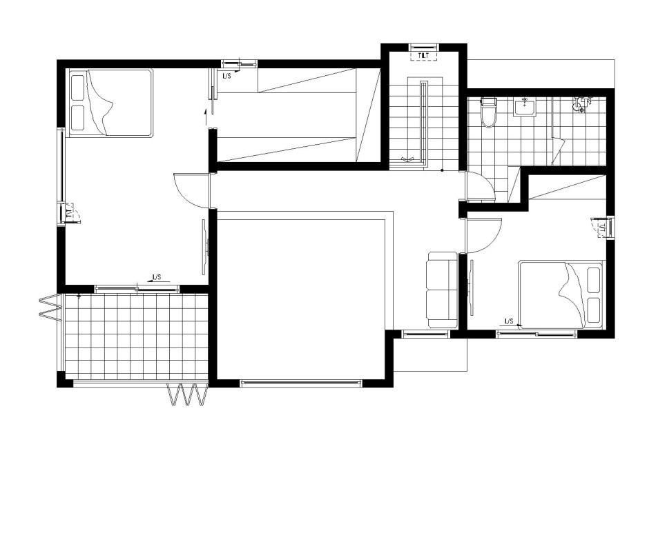
2층_평면도.jpg 2층 평면도

※위 글과 사진은 이동혁·임성재·정다운 홈트리오 공동대표가 쓴 <젊은 전원주택 트렌드 3>의 일부입니다. 세명의 공동대표들은 2020년 1월부터 최신 트렌드에 맞춘 전원주택 모델을 매달 발표해왔습니다. 건축비, 상세 평면도, 면적 개요, 실제 사진까지 담아 '나만의 전원주택'을 원하는 예비 건축주들에게 가이드라인을 제시해줍니다.


전원주택 트렌드 책 구매 링크 : https://product.kyobobook.co.kr/detail/S000001836099



글·사진=이동혁·임성재·정다운 홈트리오 공동대표

정리=더농부


%ED%94%84%EB%A1%9C%ED%95%84(%EA%B8%80_%EC%B2%A8%EB%B6%80).JPG?type=w966

홈트리오 조직 계열도.jpg
6.jpg (좌측부터) 홈트리오(주) 정다운 건축가, 임성재 건축가, 이동혁 건축가

[집이라는 본질적인 가치에 집중하다.]

Architecture Team : 홈트리오(주)

대표번호 : 1522-4279

홈페이지 : http://hometrio.kr/

네이버 프리미엄 구독 : https://contents.premium.naver.com/hometrio/home

KakaoTalk_20191210_164551850.jpg
KakaoTalk_20200521_090546896.jpg
img.jpg