#74'세라믹사이딩+징크' 수안마을 일본st 전원주택.

#74 김포 대곶면 대능리 목조 모던 스타일 39.6평 전원주택 설계

by 이동혁 건축가

제목 : #74 '세라믹사이딩+징크' 김포 수안마을 일본st 전원주택

소제목 : #74 김포 대곶면 대능리 목조 모던 스타일 39.6평 전원주택 설계 제안


출발


안녕하세요. 이동혁 건축가 입니다.^^

봄비가 한 번 내리고 나니 그동안 녹지 않고 있던 눈이 깨끗하게 녹았네요. 길이 훨씬 깨끗해진 것 같습니다. *^0^* 길을 걷다가 문득 옆의 들판을 보니 봄이 오긴 오는지 새싹들이 조금씩 자라나고 있네요.

좀 있으면 봄 꽃도 하나 둘 피어날 것 같습니다.

요즘 한창 바쁘게 돌아다니고 있는데요. 정말 전원주택에 대한 관심이 올해만큼 뜨거웠던 적이 없었던 것 같습니다.^^;

어제 진주에 집을 지으실 건축주님께서 최종 계약을 해 주시면서 700만 명 돌파 기념 설계비 무료 이벤트가 단 1자리 남게 되었습니다.

집 지으실 예정이신 분들은 서둘러서 저희들을 찾아와 주시기 바랍니다.^^

오늘은 경기도 김포시 수안마을에 지어질 전원주택입니다. 전체 세라믹사이딩 적용에 리얼징크 지붕 마감으로 퀄리티 높은 주택을 완성시킬 수 있었는데요. 그동안 너무 비싼 단가 때문에 사용을 못했었던 세라믹사이딩을 평당 가격 550만 원 이하까지 내리는 방법을 찾아 이번 김포 수안마을 주택에 처음 적용하게 되었습니다.^^

어떻게 집이 지어질지 궁금하시죠?

자 그럼 오늘도 출발해 보겠습니다.^^

*읽고 난 다음에는 위의 하트 모양 라이킷과 공유 꾹 눌러주세용~^^


HOUSE PLAN

연면적 : 131.00㎡

1층 : 74.58㎡

2층 : 44.63㎡

2층 베란다 : 11.50㎡

규모 : 지상 2층

총괄 건축가 : 이동혁, 임성재, 정다운

설계·시공 : 홈트리오 1522-4279

Homepage : http://hometrio.kr

이동혁건축가TV : http://tv.naver.com/sunsutu1

예상 총 건축비 : 215,000,000원(부가세 포함)

설계비 및 인허가비 : 9,500,000(부가세 포함)

*건축비 외 부대비용 : 대지구입비, 가구(싱크대, 신발장, 붙박이장), 기반시설 인입(수도, 전기, 가스 등), 토목공사, 조경비 등


SPEC

공법 : 기초-철근콘크리트 / 1층, 2층 구조-목조

지붕마감재 : 리얼징크

외벽마감재 : 세라믹사이딩

외벽포인트자재 : 리얼징크

실내벽마감재 : 실크벽지

실내바닥마감재 : 강마루

창호재 : 융기 3중 시스템창호

단열재 : 외부벽체(Glasswool Insulation R21HD-15" 나등급)

▷크나우프社 ECOBATT (ECOSE® 특허)

▷HD:저에너지 하우스용 / 15인치(381mm) *동등 제품

: 내부벽체(Glasswool Insulation R19-15" 다등급)

: 천장(Glasswool Insulation R30-15" 다등급)

: 지붕(Glasswool Insulation R37-23" 가등급) ▷ISOVER社에너지세이버

*단열기준은 2016년 7월1일자로 변경되는 단열기준법을 적용하여 강화시켜 놓았습니다.

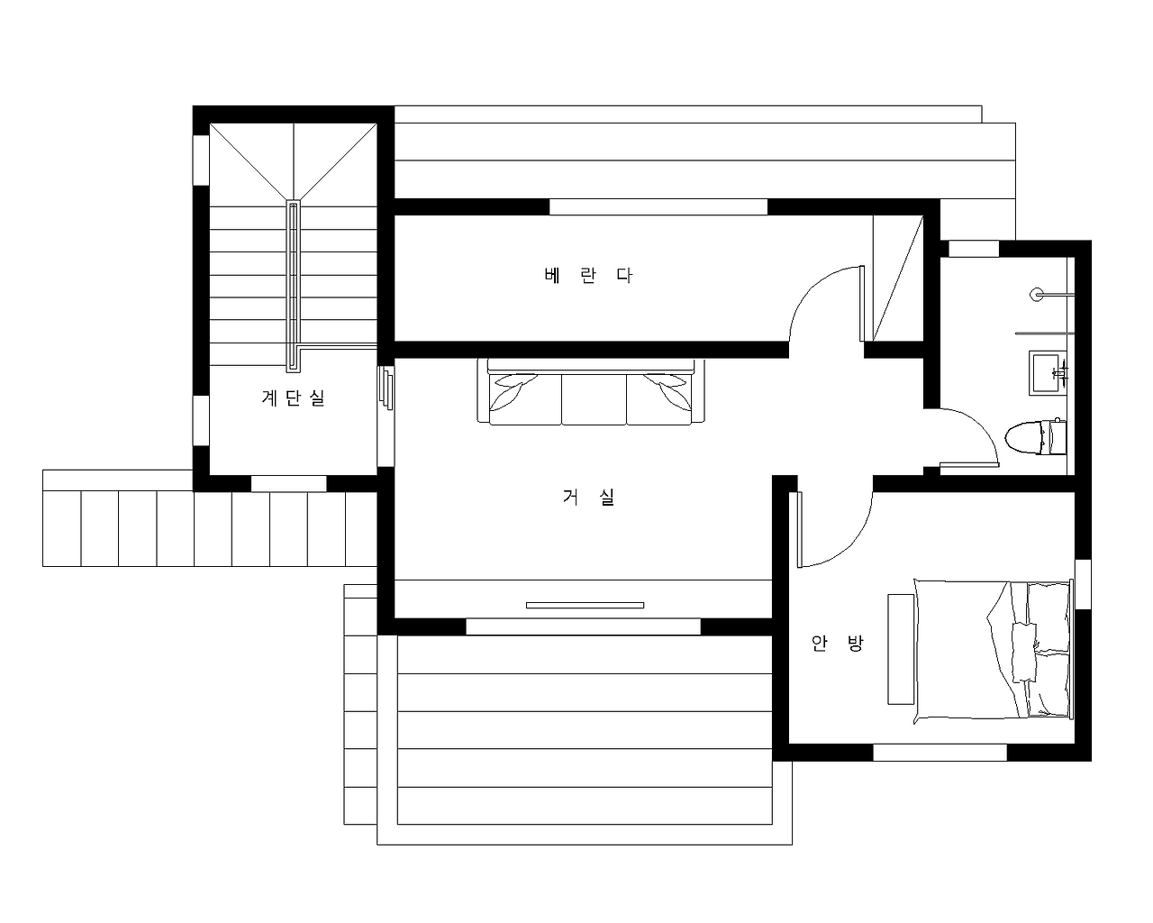
1층 평면도
2층 평면도

Q.설계 방향에 대해 설명해주세요.

이번 설계 방향의 테마는 '세라믹사이딩+징크'입니다.

그동안 고가의 마감재인 세라믹사이딩을 사용하고 싶어도 사용하지 못하는 한계점이 있었는데요. 이번 주택에는 건축주님과 협의를 한 후 과감하게 전면 세라믹사이딩을 적용하였습니다.

세라믹사이딩 자재가 가지는 순수성과 무게감. 그리고 깨끗함은 아마 다른 자재에서는 느껴보지 못한 외관적 분위기를 자아낼 것으로 기대하고 있습니다.

모던함을 더욱 부각하기 위해 리얼징크를 부분적으로 사용하였으며, 지붕을 가벽으로 감춰 박스형의 외관을 더욱 볼륨감 있게 만들어 주었습니다.^^


Q.면적은 얼마나 되는가요?

총 39.6평(131.00㎡)으로 설계되었으며, 1층 74.58㎡(22.6평), 2층 44.63㎡(13.5평), 2층 베란다(11.50㎡)로 계획되었습니다.


Q.비용은 얼마가 들었나요?

건축비의 경우 215,000,000원이 소요될 것으로 예상됩니다. 부가세가 포함된 가격이며, 순수한 건축비입니다. 평면에 나와있는 석재 데크 및 가벽 등의 금액이 포함된 가격입니다. 설계비는 9,500,000원이 소요되어졌습니다. 이는 부가세 포함 가격이며, 인허가 및 사용승인 비용도 포함된 금액입니다.


Q.외벽 스타코프렉스의 색깔을 변경할 때 비용이 추가되나요?

그렇지는 않습니다. 외벽 스타코플렉스의 색깔은 다양하게 변경 가능하며, 색을 변경한다고 해서 추가가 되는 것이 아닙니다.


Q.지붕형 발코니의 경우 건축비가 어떻게 되나요?

목조주택에 발코니를 설치할 때에는 필수적으로 지붕을 씌워줘야 합니다. 직사광선을 피하셔야 하며, 발코니 위에 지붕을 시공하여 혹시 모를 누수에 대비하셔야 합니다. 간혹 지붕이 없는 것이 이쁘다고 무조건 해 달라고 하시는 분들이 계신데 이는 위험한 행동입니다. ^^;

건축가가 지붕을 없애도 된다고 하여도 우리 구독자 여러분들은 꼭 지붕을 씌워 달라고 요청하셔야 합니다.^^

지붕형 발코니의 경우 평당 단가로 따졌을 때 260만 원(부가세 포함)으로 진행되며, 내부 마감까지 포함된 금액입니다.


Q.주차장 계획은 꼭 해야 하나요?

주차장의 경우 인허가 단계에서 필수로 들어가야 하는 건축 사항입니다.

많은 분들이 준공단계에서 주차장을 만들어 놓았다가 추후 마당으로 그냥 쓰시는 데 사용 자체에는 문제가 없지만 추후 민원이 들어갔을 때에 벌금 및 원상복구 명령이 떨어질 수 있으므로 남의 집에서 주차장을 안 했다고 하여 내 집에도 안 하는 일은 없으셔야 합니다.^^


Q.설계기간 및 시공기간은 얼마나 걸릴까요?

설계기간은 인허가 포함 3달 정도를 잡는 것이 여유로우며, 목조주택 시공기간은 착공일로부터 3.5개월을 잡는 것이 좋습니다. 사용승인(준공)까지 포함된 기간입니다.


Q.마지막 총평을 한다면?

이번 주택은 평당 가격 550만 원이라는 저렴한 금액대로 지어질 주택입니다. 그동안 세라믹사이딩과 3중 시스템창호, 그리고 리얼징크의 조합은 기본 평당 600만 원이 넘어가는 고가의 조합이었는데 이번에 관리비 및 여러 가지 비용을 줄이는 시스템적인 방법을 찾아 가성비 높은 주택으로 만들 수 있었습니다.^^

스타코플렉스도 좋은 자재이지만 조금 가벼워 보인다는 의견과 시간이 지남에 따라 때가 탄다라는 이유로 서서히 국내에서도 세라믹사이딩으로 외장재 트렌드가 변화하는 것 같습니다.

고가의 자재여서 그동안 사용을 잘 못했는데 가격을 더 다운시킬 수 있는 방법을 찾아 우리 예비 건축주님 집에도 적용할 수 있는 방법을 찾아보도록 하겠습니다.

감사합니다.^^

정면도
좌측면도
우측면도
지붕평면도


도착


38평 경기 김포 수안마을에 지어질 전원주택 설계안. 어떠셨나요?

3월 15일 착공을 시작으로 본격적인 공사에 들어갈텐데요. 아마 수안마을에서도 가장 높은 퀄리티와 디자인으로 주목을 받을 것 같습니다.^^

이번 주택은 총 3명의 가족 구성원이 살아갈 집입니다. 너무 많은 방을 구성하기보다는 각 구성원의 라이프스타일에 맞게 공간을 배치해 주었으며, 거실 등의 공용공간 위주로 많은 공간을 배치해주어 다목적으로 활용이 가능하도록 계획하였습니다.

모던한 박스형 디자인에 매스 분절만을 이용하여 내부에서 일어날 수 있는 데드 스페이스 공간을 최소화하였으며, 작지만 커 보이게 하기 위해 가벽 등을 별로도 시공하여 타 주택보다 웅장한 느낌의 주택을 완성할 수 있었습니다.^^

오늘의 이야기는 여기까지 입니다. 3월 중순에 착공이 들어가면 6월 중순 정도 완공이 될 것 같습니다. 다음 사례를 올려드릴 때는 인테리어까지 완료된 멋진 집으로 여러분들께 소개를 시켜드리도록 하겠습니다.^^

감사합니다.

*읽고 난 다음에는 위의 하트 모양 라이킷과 공유 꾹 눌러주세용~^^


(좌측부터) 정다운 건축가, 임성재 건축가, 이동혁 건축가


설계·시공 : 홈트리오(주) 1522-4279

Homepage : http://hometrio.kr

이동혁건축가TV : http://tv.naver.com/sunsutu1

[집이라는 본질적인 가치에 집중하다.]


글쓴이 : 이동혁 건축가

이메일 : sunsutu@hanmail.net

이동혁건축가TV : http://tv.naver.com/sunsutu1


상담 및 자문(홈트리오 대표)

이동혁 건축가 : 010-4567-8413

정다운 건축가 : 010-8560-0477

임성재 건축가 : 010-9941-8899



keyword