#75 '해질녘 정취를 담다.' 창원 60평 전원주택

#75 경남 창원 의창구 북면 목조 모던 스타일 60평 전원주택 설계제안

by 이동혁 건축가

제목 : #75 '해질녘 정취를 담다.' 창원 60평 전원주택

소제목 : #75 경남 창원 의창구 북면 목조 모던 스타일 60평 전원주택 설계 제안


출발


안녕하세요. 이동혁 건축가 입니다.^^

요즘 봄이 다가와서 그런지 건축 문의에 대한 상담이 폭발적으로 증가했네요. ㅠㅠ 이번 주만 해도 벌써 20개의 상담을 진행했는데 전원주택에 대해 얼마나 많은 관심이 있는지 느낄 수 있었습니다.^^

마당 있는 집의 꿈. 그리고 로망. 아마 내 집을 직접 짓는다는 것은 어떠한 것과도 비교할 수 없는 큰 보람이자 기쁨일 것입니다.

이러한 보람과 기쁨을 걱정이 아닌 기대와 웃음으로 여러분들께 선물하기 위해 오늘도 열심히 더 좋은 집을 짓기 위해 노력하고 있답니다.^^

오늘은 경남 창원 의창구에 지어질 전원주택 설계안을 이야기드리고자 합니다. 똑같은 형태의 쌍둥이 주택이며, 가족들이 모여 옹기종기 행복하게 살 집이랍니다.

오늘은 두 집 중 한 집에 대한 금액과 내용을 이야기 드릴 텐데요. 특히 4인 가족인 예비건축주님들께서는 눈여겨보시면 좋은 설계요소들이 있으니 저와 함께 시작해 보시죠.^^

자 그럼 오늘도 출발해 보겠습니다.

*읽고 난 다음에는 위의 하트 모양 라이킷과 공유 꾹 눌러주세용~^^


HOUSE PLAN

연면적 : 197.33㎡

1층 : 121.95㎡

2층 : 75.38㎡

규모 : 지상 2층

총괄 건축가 : 이동혁, 임성재, 정다운

설계·시공 : 홈트리오 1522-4279

Homepage : http://hometrio.kr

이동혁건축가TV : http://tv.naver.com/sunsutu1

Architecture Team : 'HOMETRIO'

예상 총 건축비 : 322,000,000원(부가세 포함)

설계비 및 인허가비 : 15,000,000(부가세 포함)

*건축비 외 부대비용 : 대지구입비, 가구(싱크대, 신발장, 붙박이장), 기반시설 인입(수도, 전기, 가스 등), 토목공사, 조경비 등


SPEC

공법 : 기초-철근콘크리트 / 1층, 2층 구조-목조

지붕마감재 : 리얼징크

외벽마감재 : 파벽돌

외벽포인트자재 : 리얼징크, 세라믹사이딩

실내벽마감재 : 실크벽지

실내바닥마감재 : 강마루

창호재 : 융기 3중 시스템창호

단열재 : 외부벽체(Glasswool Insulation R21HD-15" 나등급)

▷크나우프社 ECOBATT (ECOSE® 특허)

▷HD:저에너지 하우스용 / 15인치(381mm) *동등 제품

: 내부벽체(Glasswool Insulation R19-15" 다등급)

: 천장(Glasswool Insulation R30-15" 다등급)

: 지붕(Glasswool Insulation R37-23" 가등급) ▷ISOVER社에너지세이버

*단열기준은 2016년 7월1일자로 변경되는 단열기준법을 적용하여 강화시켜 놓았습니다.

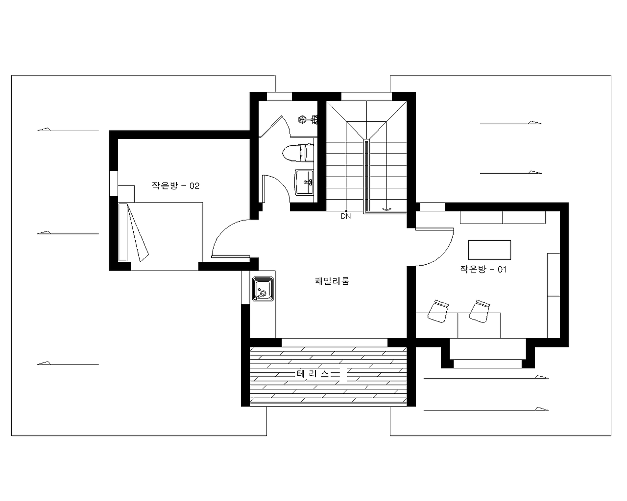
1층 평면도
2층 평면도

Q.설계 방향에 대해 설명해주세요.

이번 설계 방향의 테마는 '해질녘 정취를 담다.'입니다. 너무 추상적인 테마인가요?^^;

창원에 처음 내려갔을 때 해질녘 노을빛을 보게 되었는데요. 너무나도 아름답게 지고 있는 노을을 보고 있자니 아! 이 느낌을 집에 담아야겠구나.라는 생각이 들었답니다.

단순한 느낌의 집이 아닌 누가 보아도 아름다움을 느낄 수 있는 집. 또한 건축주님의 성향을 담아 묵직한 남자의 향수를 느낄 수 있는 그러한 집. 오늘의 집은 이러한 내용을 담은 집으로 설계된 전원주택이랍니다.^^


Q.면적은 얼마나 되는가요?

총 60평(197.33㎡)으로 설계되었으며, 2층으로 구성된 설계 안 입니다. 1층은 37평(121.95㎡), 2층은 23평(75.38㎡)으로 구성되었으며, 4인 가족이 생활하기에 부족함 없이 설계되었습니다.^^


Q.비용은 얼마가 들었나요?

건축비의 경우 322,000,000원이 소요될 것으로 예상됩니다. 부가세가 포함된 가격이며, 순수한 건축비입니다.

설계비는 15,000,000원이 소요되어졌습니다. 이는 부가세 포함 가격이며, 인허가 및 사용승인 비용도 포함된 금액입니다.


Q.외벽 스타코플렉스에서 파벽돌로 변경 시 어느정도의 금액이 추가되나요?

외벽 스타코플렉스에서 위와 같은 주택의 파벽돌처럼 외장재를 변경할 경우 ㎡당 약 7만 원 정도의 추가 비용이 발생됩니다. 평당으로 환산하면 평당 23만 원 정도의 추가 비용이 들어간다고 보시면 될 것 같습니다.^^ 시공비 및 부가세가 모두 포함된 금액입니다.


Q.지붕형 발코니의 경우 건축비가 어떻게 되나요?

목조주택에 발코니를 설치할 때에는 필수적으로 지붕을 씌워줘야 합니다. 직사광선을 피하셔야 하며, 발코니 위에 지붕을 시공하여 혹시 모를 누수에 대비하셔야 합니다. 간혹 지붕이 없는 것이 이쁘다고 무조건 해 달라고 하시는 분들이 계신데 이는 위험한 행동입니다. ^^;

건축가가 지붕을 없애도 된다고 하여도 우리 구독자 여러분들은 꼭 지붕을 씌워 달라고 요청하셔야 합니다.^^

지붕형 발코니의 경우 평당 단가로 따졌을 때 260만 원(부가세 포함)으로 진행되며, 내부 마감까지 포함된 금액입니다.


Q.주차장 계획은 꼭 해야 하나요?

주차장의 경우 인허가 단계에서 필수로 들어가야 하는 건축 사항입니다.

많은 분들이 준공단계에서 주차장을 만들어 놓았다가 추후 마당으로 그냥 쓰시는 데 사용 자체에는 문제가 없지만 추후 민원이 들어갔을 때에 벌금 및 원상복구 명령이 떨어질 수 있으므로 남의 집에서 주차장을 안 했다고 하여 내 집에도 안 하는 일은 없으셔야 합니다.^^


Q.설계기간 및 시공기간은 얼마나 걸릴까요?

설계기간은 인허가 포함 3달 정도를 잡는 것이 여유로우며, 목조주택 시공기간은 착공일로부터 3.5개월을 잡는 것이 좋습니다. 사용승인(준공)까지 포함된 기간입니다.


Q.마지막 총평을 한다면?

같은 평면과 입면을 가진 두 채가 같이 지어지게 되다 보니 더욱 웅장하면서 무게감 있는 멋진 집이 탄생된 것 같습니다. 해질녘의 노을을 담은 디자인인 만큼 더욱 빛나고 저녁에 일을 끝내고 들어오면 힘들고 지친 몸을 힐링할 수 있게 만드는 그러한 집을 만들고자 하였습니다.^^

4인 가족이 생활하기에 최적화된 평면으로 계획된 집. 개인적으로 저도 하나 짓고 싶은 집이라 생각되네요.^^

정면도
좌측면도
우측면도
배면도


도착


60평 경남 창원시 의창구 북면 상천리에 지어질 전원주택 설계안. 어떠셨나요?

맨 위에 올려드린 해질녘 노을빛을 받고 있는 집을 보고 있노라면 얼른 퇴근해서 집을 뛰어가고 싶은 마음이 들지 않으시나요?^^;

집이란 그런 존재인 것 같습니다. 언제나 나를 위로해 주는 존재이며, 지친 몸과 마음을 위로받을 수 있는 오로지 나만을 위한 공간.

건축가로서 그러한 공간을 만들 수 있게 기회를 준 건축주님께 감사인사를 전하며, 설계안보다 더욱 멋진 집으로 시공 완료하여 자녀들에게도 물려줄 수 있는 그런 집을 지어드리도록 하겠습니다.^^

감사합니다.

*읽고 난 다음에는 위의 하트모양 라이킷과 공유 꾹 눌러주세용~^^


(좌측부터) 정다운 건축가, 임성재 건축가, 이동혁 건축가

설계·시공 : 홈트리오(주) 1522-4279

Homepage : http://hometrio.kr

이동혁건축가TV : http://tv.naver.com/sunsutu1

[집이라는 본질적인 가치에 집중하다.]


글쓴이 : 이동혁 건축가

이메일 : sunsutu@hanmail.net

이동혁건축가TV : http://tv.naver.com/sunsutu1


상담 및 자문(홈트리오 대표)

이동혁 건축가 : 010-4567-8413

정다운 건축가 : 010-8560-0477

임성재 건축가 : 010-9941-8899



keyword