#16. 일본 '화이트 심플 베스트' 전원주택 트렌드

일본 전원주택 트렌드 #16 - Fleuve / APOLO

by 이동혁 건축가

http://spacemillion.kr <-일본 전원주택 사례 많은 곳은 '스페이스 밀리언 ai'

아직도 헤매고 있어.jpg



제목 : #16. 일본 '화이트 심플 베스트' 전원주택 트렌드

소제목 : 일본 전원주택 트렌드 #16 - Fleuve / APOLLO Architects & Associates + Satoshi Kurosaki


*구독 버튼은 필수인 것 다들 아시죠^^

Third_Floor.jpg

SPEC


면적 : 92㎡

구분 : 단독주택

스타일 : 모던 | 미니멀&심플 | 한국&아시아 | 빈티지&레트로

사용자 : 싱글라이프 | 신혼부부 | 노후주택 | 아기가있는집

예상건축비 : 297,000,000원

공법 : 철근콘크리트

층수 : 3층

방/화장실 개수 : 3개/3개

외장 마감재 : 페인트, 노출

지붕 마감재 : 평지붕마감

상세정보 : https://spacemillion.kr/design/65b1d0681bc3051fb6cfa16a


STORY


Fleuve

건축가 : APOLLO Architects & Associates

출처 : 아키데일리(https://www.archdaily.com/458117/fleuve-apollo-architects-and-associates?ad_source=search&ad_medium=projects_tab)



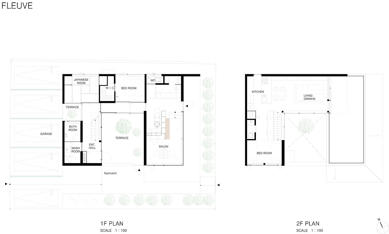
Floor Plan

FLEUVE_plan.jpg

<사진>

FLEUVE_02.jpg
FLEUVE_03.jpg
FLEUVE_08.jpg
FLEUVE_09.jpg
FLEUVE_11.jpg
FLEUVE_13.jpg
FLEUVE_19.jpg
FLEUVE_20.jpg
FLEUVE_23.jpg
FLEUVE_26.jpg
FLEUVE_33.jpg
FLEUVE_34.jpg
FLEUVE_35.jpg
FLEUVE_37.jpg
FLEUVE_41.jpg
Third_Floor.jpg

건축도면 다운로드 아카이브(스페이스밀리언 ai) : https://spacemillion.kr/

스페이스밀리언 ai.jpg