brunch

[집쇼핑 2번째] 38평 전원주택 '2층집의 로망'

듀밀리언 02 - 노후 힐링 프로젝트 '2층 집의 로망'

by 이동혁 건축가

http://spacemillion.kr

아직도 헤매고 있어.jpg

집쇼핑 2번째.jpg

제목 : [집쇼핑 2번째] 38평 전원주택 '2층 집의 로망'

소제목 : 듀밀리언 02 - 노후 힐링 프로젝트 '2층 집의 로망'


*구독 버튼은 필수인 것 다들 아시죠^^

Screenshot 2024-04-02 at 13.47.37.JPG

안녕하세요. 이동혁 건축가입니다.^^


전원주택 전문 건축가로 활동한 지 벌써 11년 차가 되었습니다. 29살에 시작했던 건설일은 11년이 지나 벌써 제 나이 40살이 되는 말도 안 되는 일이 벌어졌네요. ㅠㅠ 이제는 젊다는 말도 못 할 것 같습니다.


청년에서 중년이 되었지만 그동안 많은 노하우와 포트폴리오를 쌓으면서 지금의 자리까지 오게 된 것 같습니다.


연매출 5억에서 현재 연매출 120억까지 달성하였으며, 연 30채만 짓는 약속하에 높은 퀄리티의 집을 계속해서 선보여 왔습니다.


매달 무료로 발표했던 '월간홈트리오'시리즈는 총 5권의 책으로 출판이 되었으며, 총 500채가 넘는 집을 완공해 전국 각 지역마다 저희 주택들이 지어지는 결과를 얻게 되었습니다.




2024년도부터는 연 10채씩 소형 주택 위주의 집쇼핑 프로젝트를 시작하고자 합니다.


많은 예산을 들여 짓는 집도 좋지만 특히 저희들에게 많은 문의가 있었던 '부모님 집 지어드리기', '고향집 짓기', '노후에 두 명만 살 집짓기' 등 소형 주택 위주의 가성비 주택을 이번 프로젝트에서 선보이고자 합니다.


기획하고 설계한 후 시공까지 한 주택을 대상으로 할인률을 높여 공사 금액을 제안드릴 예정이며, 어렵지 않고 쉬운 집 짓기로서 프로젝트를 시작해 보고자 합니다.


한 달에 1개씩 프로젝트를 오픈할 예정이며, 각 프로젝트 당 10분씩에게만 계약의 기회를 드리고자 합니다.


너무 많이 계약받아버리면 시공 품질의 영향이 있을 수 있어 저희가 감당할 수 있는 부분까지만 감당하기로 했습니다.^^ 양해 부탁드립니다.


자 그러면 듀밀리언의 두 번째 집쇼핑 프로젝트를 공개합니다.^^


<완판된 첫번째 프로젝트 링크>


https://brunch.co.kr/@sunsutu/3052

https://brunch.co.kr/@sunsutu/3056


[집쇼핑 프로젝트 no.2] : 38평 노후 힐링 프로젝트 '2층 집의 로망'

Screenshot 2024-04-02 at 13.47.37.JPG

SPEC


공법 : 경량목구조

시공 : 듀밀리언(주) / 상담문의 : 1522-1035(문자상담 : 010-6889-9770. 미팅 중일 시 전화가 안 될 수 있으니 문자로 내용 남겨주세요. 순차적으로 상담드리도록 하겠습니다.^^)

ARTIST : 건축가 임성재(010-9941-8899), 이동혁

홈페이지 : https://spacemillion.kr/

지붕마감재 : 아스팔트슁글 / 외벽 마감재 : 스타코플렉스 / 포인트자재 : 파벽돌, 루나우드

실내벽마감재 : 실크벽지 / 실내바닥마감재 : 이건 강마루

창호재 : 살라만더 PVC 3중 시스템창호

건축면적 : 125.43㎡(1층 : 76.53㎡, 2층 : 48.90㎡)

*건축비 외 부대비용 : 대지구입비, 가구(싱크대, 신발장, 붙박이장), 기반시설 인입(수도, 전기, 가스 등), 토목공사, 조경비 등


건축비

순수 총 건축비 : 273,600,000원(부가세 포함, 산재보험료 포함 / 설계비, 인허가비, 구조계산 설계비 별도)

설계비 : 9,500,000원(부가세 포함)

인허가비 : 3,800,000원(부가세 포함)

구조계산 설계비 : 3,800,000원(부가세 포함)

인테리어 설계비 : 5,700,000원(부가세 포함)


총 : 296,400,000 원20,748,000원(7% 할인)


최종 계약금액 275,652,000 원(부가세, 설계비, 인허가비, 구조계산비, 인테리어설계비 포함)


*대지구입비, 가구(싱크대, 신발장, 붙박이장), 기반시설 인입(수도, 전기, 가스 등), 토목공사, 조경비 등은 포함되어 있지 않습니다.


<집쇼핑의 장점>


이동혁, 임성재 건축가가 추천하는 집쇼핑의 매력 포인트


1. 30평형의 소형주택을 짓고자 하시는 분들에게는 최고


2. 인허가부터 설계도면 그리는 것이 모두 귀찮고 어렵다고 하시는 분들에게 적합


3. 노후 주택을 지으려고 하는데 매일 가볼 수 없는 분들에게 최적


4. 가성비 높은 저렴한 금액으로 빠르게 집을 짓고자 하시는 분들에게 안성맞춤


5. 큰집 필요 없고 세컨드하우스 짓고자 하시는 분들에게 적합


6. 방 3개, 화장실 2개 주택이 필요한 분들에게 최고


7. 듀밀리언 종합건설의 안정성과 퀄리티를 필요로 하시는 분들에게 적합


8. 목조주택 2층 집을 원하시는 분들에게 적합


*10채의 한정 계약 프로젝트이므로 계약이 완판 되었을 시 자동 이벤트는 종료됨을 알려드립니다.^^


*건축비 기준은 24년 04월 02일 기준 금액이며, 경기 상황에 따라 변동폭이 존재함을 알려드립니다.


STORY


비와 눈을 좋아한다. 특히 부슬부슬 내리는 여름비는 내가 가장 좋아하는 것 중 하나다. 그뿐인가. 겨울에 태어나서 그런지 내 생일날에는 꼭 눈이 내렸으면 좋겠다고 동심 어린 마음으로 소원 아닌 소원을 빌기도 한다.


여름과 겨울. 휴가가 있다는 이유만으로 여름은 아마 모든 이들이 손꼽아 기다리는 계절일 것이다. 겨울은 또 어떠한가. 나는 창밖으로 고요히 눈 쌓이는 모습을 커피 한 잔과 함께 하염없이 바라보는 일이 좋다. 그만큼 여름과 겨울은 개성이 뚜렷한 계절이다.


하지만 설계를 하는 건축가 입장에서 두 계절은 솔직히 좀 피하고 싶다.


상담을 하다 보면 많은 문의를 받게 되는데 그중 하나가 다음과 같다.


“전세가 여름에 끝나서 그때부터 공사를 해야 할 것 같은데 괜찮을까요?”

“아이들 방학이 12월 중순에 시작돼요. 겨울에 진행해서 봄에 끝내려고 하는데 어때요?”


입장은 충분히 이해된다. 나 또한 쌍둥이 아빠로서 자녀들의 방학에 스케줄을 맞추고 싶어 하는 마음이 무척 공감되는 바이다.


“건축가님이 집을 짓는다면 여름이나 겨울에 지을 건가요?”


질문을 바꿔 누군가 위와 같이 내게 묻는다면 ‘2-3개월은 주변 월세를 얻고 생활하다가 여름이나 겨울이 지난 다음에 집을 지을 것 같습니다’고 답할 것 같다.


전문가들은 안다. 비나 눈이 오는 조건 아래에서는 공사가 정상적으로 이루어지지 않는다는 것을 말이다. 어쩔 수 없이 진행하는 것이지 좋아서 하는 것은 아니다. 건설회사 입장에서야 당연히 돈을 벌어 수익을 창출해야 되고 직원들 월급을 줘야 하니 겨울에도 안전하게 시공이 가능하다고 홍보한다. 그러나 그중 본인의 집을 여름 장마철이나 겨울 영하권 날씨에 짓는 사람은 없다. 이보다 솔직한 답이 있을까.


자, 전세가 끝나는 시점 혹은 아이들 방학에 맞춰 공사에 들어가고 싶은 마음은 충분히 이해한다. 하지만 지금부터 짓게 될 ‘집’이란 하루 이틀 살고 말 것이 아니라 적게는 10년 길게는 30년 이상 살아가야 하는 우리 가족의 보금자리이다. 이렇게나 소중한데 굳이 위험성을 갖고 갈 이유가 없다. 10년에서 30년을 함께할 집인데 고작 몇 개월 더 빨리 공사를 시작하는 게 뭐 그리 중요할까. 완벽해도 모자랄 판에 부족함을 안고 진행하는 것은 반대하는 입장이다.


어떠한 집이든 비를 맞으면 안 좋고, 양생 기간에 영하권의 날씨를 접한다면 알게 모르게 집이 상한다. 기간의 차이는 겨우 2-3개월이다. 차라리 조금 더 일찍 준비하여 완벽히 착공 날짜를 정해 놓고, 아이들 방학이나 전세가 빠져야 할 경우에는 2-3개월 주변 월세를 얻어 살 것을 조언한다.

그래도 여름 장마철이나 겨울 영하권에 집을 짓겠는가?


강행하겠다면 말릴 생각 없다. 하지만 그 책임에 대한 무게는 시공업체를 탓할 것이 아닌 결정을 내린 여러분이 직접 짊어지고 나가야 할 것이다.


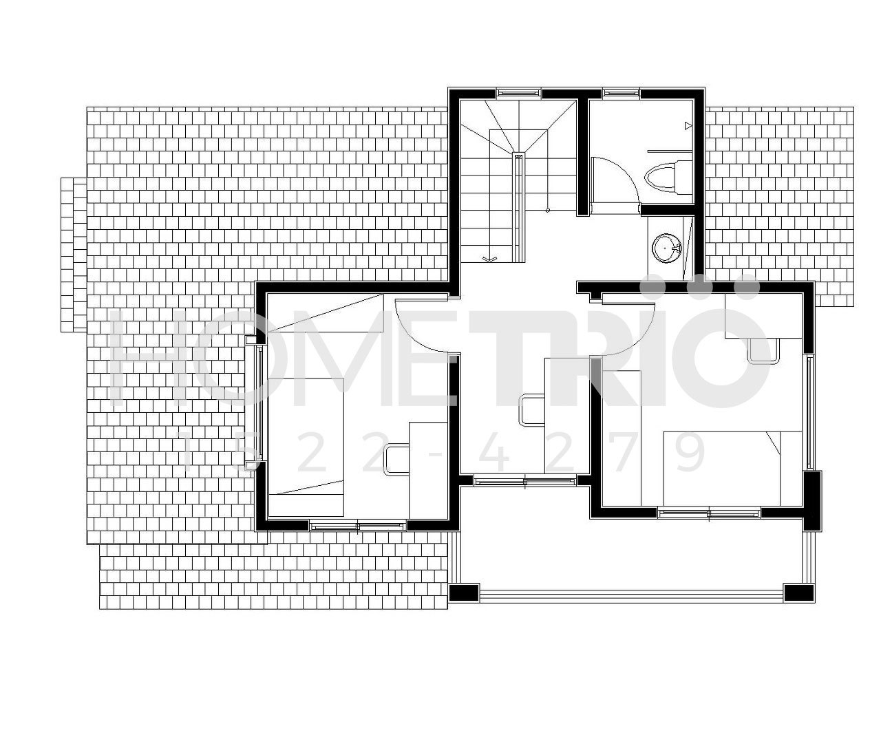
<평면도>

123.jpg 1층 평면도
321.jpg 2층 평면도

이동혁 건축가 : 모던한 느낌에 자연 친화적인 분위기를 전체적인 집에 넣어주고자 했습니다. 30평형대에서의 주택에서는 과하게 디자인을 적용해 주기보다는 절제하면서 전면부 파사드에서 한 번에 힘을 넣어주는 디자인상 유리합니다. 클래식한 느낌의 집에는 지붕의 디자인이 80% 이상은 영향을 끼칩니다. 모던한 느낌을 원하신다면 이번 주택처럼 박공지붕 말고 외쪽지붕을 적용해 전면부에서는 박스형의 입면을 가져가되, 뒤쪽으로는 물매를 확실하게 구성해 주어 누수에 대한 부분을 원천 차단해 주는 설계방법으로 진행하시는 것이 좋습니다.

임성재 건축가 : 발코니에도 지붕을 무조건 씌워주셔야 합니다. 최근에 짓는 집에는 발코니에도 창을 설치해 빗물이 안쪽으로 유입되는 것 자체를 막고 있습니다. 목조주택이던 철근콘크리트주택이던 동일합니다. 방수층만을 믿고 노출된 발코니나 옥상을 만드시는 분들이 계신데요. 장담하는데 2년 안에 물 샙니다. 방수층은 영구적인 것이 아닙니다. 아무리 좋은 방수를 해도 외부에 노출되는 순간 수명은 계속 줄어들게 됩니다. 방수층의 최대 수명은 5년입니다. 유지관리적인 부분에 따라 조금은 연장될 수는 있지만 정해진 수명에서 얼마나 관리를 해 주느냐에 따라 길어질 수도 짧아질 수도 있다고 생각해 주시면 될 것 같습니다.


IMG_5052.jpg
DJI_0030.jpg
DJI_0034.jpg
IMG_4979.jpg
IMG_4966.jpg
IMG_4973.jpg
IMG_4981.jpg
IMG_4850.jpg
IMG_4861.jpg
IMG_4864.jpg
IMG_4868.jpg
IMG_4872.jpg
IMG_4878.jpg
IMG_4880.jpg
IMG_4885.jpg
IMG_4886.jpg
IMG_4889.jpg
IMG_4901.jpg
IMG_4895.jpg
IMG_4900.jpg
IMG_4981.jpg
IMG_4902.jpg
IMG_4903.jpg
IMG_4905.jpg
IMG_4906.jpg
IMG_4907.jpg
IMG_4910.jpg
IMG_4911.jpg
IMG_4914.jpg
IMG_4916.jpg
IMG_4919.jpg
IMG_4920.jpg
IMG_4934.jpg
IMG_4938.jpg
IMG_4942.jpg
IMG_4945.jpg
IMG_4947.jpg
IMG_4948.jpg
IMG_4960.jpg
IMG_4961.jpg
IMG_4963.jpg


IMG_5016.jpg
IMG_5046.jpg
IMG_5052.jpg
IMG_5207.jpg
IMG_5244.jpg
IMG_5273.jpg

[집이라는 본질적인 가치에 집중하다.]

설계, 시공 : 홈트리오(주)

상담문의 : sunsutu@hanmail.net(대표번호 : 010-6889-9770 / 문의가 너무 많아 전화가 안 될 수 있습니다. 문자로 내용 남겨주시면 늦더라도 상담드릴게요.^^)

ARTIST : 건축가 이동혁, 임성재

포트폴리오 : https://brunch.co.kr/@sunsutu

건축도면 다운로드 아카이브(스페이스밀리언) : https://spacemillion.kr/

스페이스밀리언 ai.jpg



keyword