오늘의집/59평 전원주택 '아파트 가격에 내집 짓기'

2024 월간 홈트리오 100 - 009번째

by 이동혁 건축가

http://spacemillion.kr

스페이스밀리언 배너.jpg

2024 월간 홈트리오 100 - 009번째 / 오늘의 집 / 59평 전원주택 '아파트 가격에 내 집 짓기'(2024 전원주택)


※모든 저작권은 홈트리오(주), 듀밀리언에게 있습니다. 최근 무단으로 디자인과 설계 평면도를 복제해 마치 본인들이 한 것인 듯 홍보하는 업체들이 있는데 법적 책임을 물을 수 있다는 점 고지드립니다.

완주-투시도.JPG

STORY


: 자연환경과 ‘최적화된 미’를 그려낸 집.

아름다움과 현대적인 건축미를 조화롭게 담아낸 집입니다.

여유로운 노후를 보내기 위해 설계된 집으로 각 공간별로 건축주님의 라이프 스케일을 모두 접목시켜 치수를 계획했습니다.

아름다운 외관 디자인에 효율성 있는 내부 공간 설계.

이 집은 건축주님 내외분만을 위한 집으로 탄생하였답니다.


디자인부터 설명을 드릴게요. 한국형 모던 스타일 전원주택이라고 평을 해드리겠습니다. 많은 분들이 미국식이냐 북유럽식이냐 등을 많이 여쭤보시는데요. 20년 전 전원주택이 처음 자리 잡을 때에는 해외 사례를 많이 베껴서 가져오는 시스템이었기 때문에 그러한 풍과 스타일이 뚜렷하게 구분되었습니다.


현재는 한국형 전원주택들도 많이 발전하면서 한국스타일에 맞게 많이 변형되고 발전되어 왔습니다. 객관적으로 40평형대의 2층 전원주택은 전 세계적으로도 한국이 제일 잘 디자인합니다. 타국에 비해 건축주님들의 지식수준도 높고, 특히 눈이 진짜 높거든요. 중간쯤 수준으로 자재 맞춰서 지어달라고 요청해도 실제로 고르는 자재들 보면 항상 최상급들만 고릅니다.


SNS 등에서 이미 많이 보아왔기 때문에 눈높이가 결코 낮지 않습니다. 그리고 우리들이 짓는 전원주택은 임대용으로 짓는 것이 아닌 실제로 본인의 로망을 담아 거주용으로 짓는 것이 80% 이상입니다. 미국처럼 임대용으로 조립식처럼 짓는 것이 아니다 보니 더 정성과 관심이 들어갈 수밖에 없는 것이죠.


청고 벽돌의 오묘한 푸르름과 평기와의 유니크한 감성이 적절히 어우러진 이번 주택. 한국 환경에 최적화된 디자인으로 완성을 시켰습니다.


청고 벽돌은 파벽돌 형식으로 계획해 공사비 단가를 줄였으며, 테릴 평 기와를 지붕 마감재로 적용하여 일본식 젠 스타일에서만 적용하던 느낌을 한국식에 맞게 풀어냈습니다.


창을 디자인할 때 많은 공을 들입니다. 사람으로 치면 눈과 같은 역할이기 때문에 잘못 디자인해 배치하면 매스 잘 잡아놓고 망치는 결과를 초래할 수도 있거든요.


기성 사이즈 창호와 주문제작 창호를 디자인적 조화롭게 배치하고, 건축예산적인 부분까지 고려하면서 전체 입면의 밸런스를 잡아주고자 노력했습니다.


어두운 공간보다는 집 내부에 들어갔을 때 밝고 긍정적인 기운이 샘솟는 분위기로 전체 인테리어 방향을 잡았으며, 그에 따라 자연광이 최대한 집 내부에 들어갈 수 있도록 설계를 진행했습니다.


평면계획 시 많은 수정을 거듭했습니다. 많은 분들이 남의 집들을 평가할 때 '너무 일반적인 것 아니냐?'라는 말들을 하시는데요. 평면을 위에서 내려다보니 그렇게 보이는 것입니다. 실재 그 안에 들어가서 느끼는 치수와 공간 동선들은 미세하게나마 모든 집이 다릅니다. 심지어 복도의 폭도 다 다르게 설계하는데요.


이 차이를 못 느낀다면 아직 초보이신 겁니다. 집을 볼 때에는 현관부터 들어간 후 걸어 다니는 느낌으로 동선과 공간들을 느껴보세요. 그러면 '아, 이 집은 어떠한 특징을 가지고 설계했구나, '라는 것을 아실 수 있을 것입니다.


중정과 데크 공간을 넓게 구성해 주었습니다. 저희들이 집을 설계할 때 단순 집 내부에서 공간이 끝나는 것이 아니라 외부로의 확장성을 많이 도모할 수 있도록 계획을 합니다.


아파트처럼 내부만 내 공간이 아니라 앞마당까지 모두 내 집이니 밖으로의 확장성을 당연히 고려해야 하는 것이죠.


2층은 심플합니다. 작은 방과 가족실, 그리고 넓은 발코니 공간. 옥상은 유지관리적인 부분 때문에 과감히 포기했습니다. 다만 넓은 2층 발코니를 구성해 주었습니다. 이 공간은 폴딩도어를 적용했기 때문에 겨울에도 충분히 사용할 수 있는 공간입니다.


이번 주택은 건축주님의 라이프스타일을 많이 반영하여 설계한 집입니다. 다른 사람도 아닌 건축주님 내외분만을 위해서 설계한 집.


행복한 추억만 남기면서 지내실 수 있는 집으로 기억되길 바랍니다.


#청고벽돌 #전원주택라이프 #아름다운집 #여자취향저격 #최고의단열

완주-투시도.jpg



공법 : 철근콘트리트

설계, 시공 : 듀밀리언(주), 홈트리오(주) / 상담문의 : sunsutu@hanmail.net(대표번호 : 1522-1035 / 문자상담 : 010-6889-9770 / 문의가 너무 많아 전화가 안 될 수 있습니다. 문자로 내용 남겨주시면 늦더라도 상담드릴께요.^^)

ARTIST : 건축가 이동혁, 임성재

포트폴리오 : https://brunch.co.kr/@sunsutu

건축도면 다운로드 아카이브(스페이스밀리언) : https://spacemillion.kr/

지붕마감재 : 평기와 / 외벽 마감재 : 청고벽돌 / 포인트자재 : 화산석

실내벽마감재 : 실크벽지, 도장마감 / 실내바닥마감재 : 이건 강마루, 포세린타일

창호재 : 이건 알루미늄 3중 시스템창호

건축면적 : 194.46㎡(1층 : 129.15㎡, 2층 : 65.31㎡)

예상 총 건축비 : 501,500,000원(산재보험료 포함 / 부가세, 설계비, 인허가비, 구조계산 설계비 별도)

설계비 : 14,750,000원(부가세 포함) / 인허가비 : 5,900,000원(부가세 포함)

구조계산 설계비 : 5,900,000원(부가세 포함) / 인테리어 설계비 : 8,850,000원(부가세 포함)

*건축비 외 부대비용 : 대지구입비, 가구(싱크대, 신발장, 붙박이장), 기반시설 인입(수도, 전기, 가스 등), 토목공사, 조경비 등


*건축비 기준은 24년 05월 21일 기준 금액입니다.


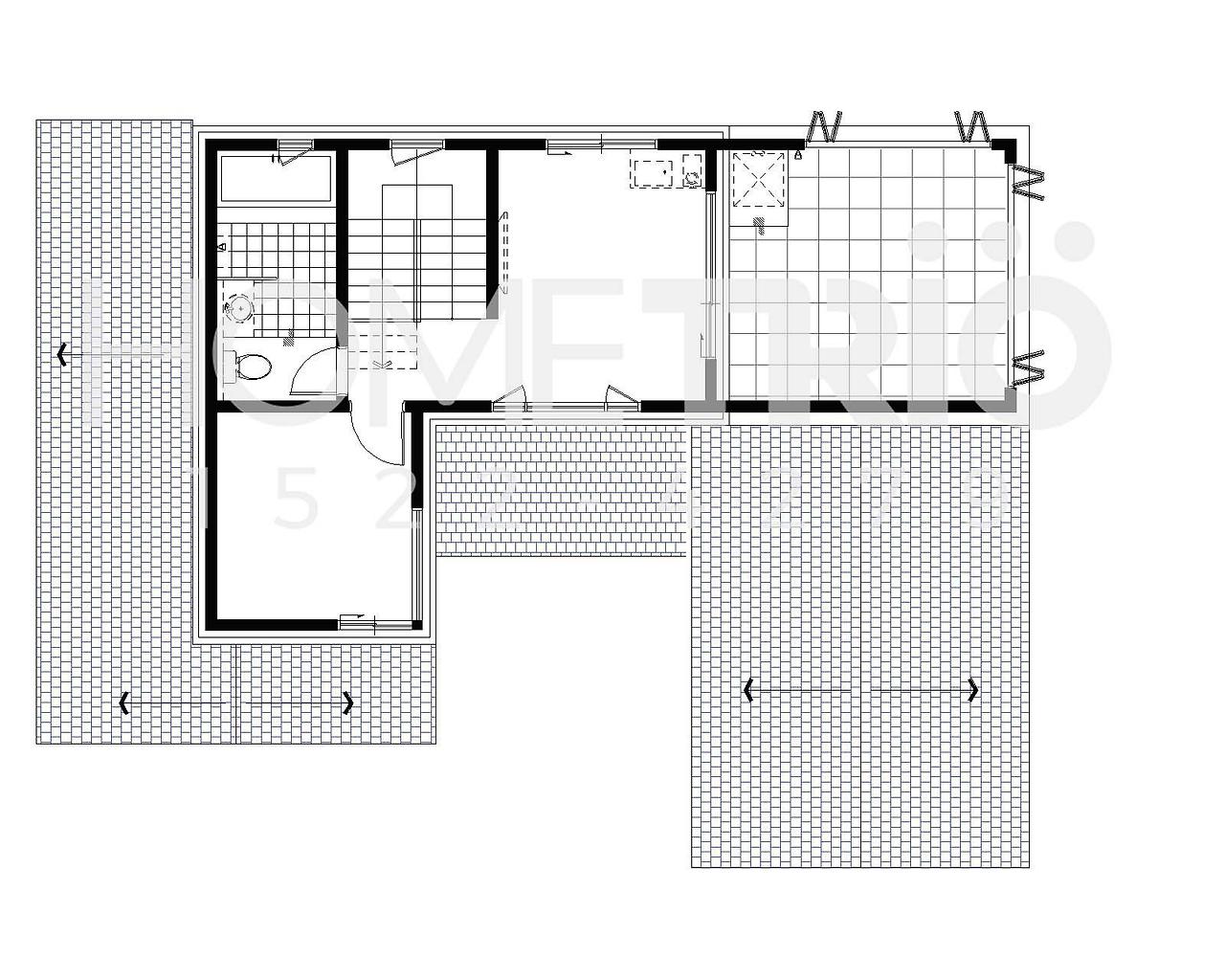
1f.jpg 1층 평면도
2f.jpg 2층 평면도


이동혁 건축가 : 철근콘크리트 공법으로 단단함을 잡고 매스 분절 디자인을 통해 입면의 볼륨감을 부각하고자 하였습니다. 각 공간별로 건축주님의 라이프스타일 치수가 녹아들어 갈 수 있도록 계획했으며, 포치, 데크, 중정에 이르기까지 내부뿐만 아니라 외부로의 동선계획 및 공간들을 만들어 주었습니다. 청고 벽돌과 평기와의 디자인적 조화를 추구했습니다. 청고 벽돌의 시크한 느낌을 기와의 묵직한 무게감으로 눌러 안정감을 도모한 디자인입니다. 창은 알루미늄 3중 시스템창호를 적용해 단열성과 내구성을 동시에 만족시켜 주었습니다.


임성재 건축가 : 실 내부 구성에는 정해진 답이 없습니다. 다만 집중해야 하는 부분이 존재합니다. 이 집은 모두가 만족할만한 집이 아닌 오직 건축주님 내외분만을 위한 맞춤형 주택입니다. 아파트가 아니기 때문에 기존 아파트 평면을 고집할 필요가 없습니다. 내 인체 치수에 맞게, 내 라이프스타일에 맞게 자유롭게 설계하세요. 자유로운 공간 속에서 저희들이 최적화된 치수를 찾아내고 공간 동선을 만들어 냅니다. 디테일은 저희가 더할 겁니다. 건축주님은 자유롭게 상상의 날개를 펼치세요. 그래야 설계과정이 스트레스가 아닌 행복한 과정으로 기억될 수 있답니다.



메스1.jpg
메스2.jpg
메스3.jpg
메스4.jpg
완주-투시도.jpg

https://spacemillion.kr/

스페이스밀리언 배너.jpg

[집이라는 본질적인 가치에 집중하다.]

설계, 시공 : 홈트리오(주), 듀밀리언(주)

상담문의 : sunsutu@hanmail.net(대표번호 : 1522-1035 / 문자상담 : 010-6889-9770 / 문의가 너무 많아 전화가 안 될 수 있습니다. 문자로 내용 남겨주시면 늦더라도 상담드릴게요.^^)

ARTIST : 건축가 이동혁, 임성재

포트폴리오 : https://brunch.co.kr/@sunsutu

건축도면 다운로드 아카이브(스페이스밀리언) : https://spacemillion.kr/

스페이스밀리언 ai.jpg