brunch

'44평 아이에게 다락방을 선물하다' 용인 전원주택

살고 싶은 전원주택 시리즈 #74 - 이동혁건축가

by 이동혁 건축가

http://spacemillion.kr <-ai 스페이스 밀리언

https://dewmillion.kr/ <-듀밀리언 종합건설

스페이스밀리언 배너.jpg

제목 : '44평 아이에에 다락방을 선물하다' 용인 전원주택 프로젝트 (전원주택 짓기)

소제목 : 살고 싶은 전원주택 시리즈 #74 - 이동혁건축가


*구독 버튼은 필수인 것 다들 아시죠^^

다운로드.jfif

SPEC


공법 : 경량목구조

설계, 시공 : 듀밀리언(주), 홈트리오(주) / 상담문의 : sunsutu@hanmail.net(대표번호 : 1522-1035 / 문자상담 : 010-6889-9770 / 문의가 너무 많아 전화가 안 될 수 있습니다. 문자로 내용 남겨주시면 늦더라도 상담드릴께요.^^)

ARTIST : 건축가 이동혁, 임성재

홈페이지

: http://spacemillion.kr <-ai 스페이스 밀리언

: https://dewmillion.kr/ <-듀밀리언 종합건설

지붕마감재 : 리얼징크 / 외벽 마감재 : 스타코플렉스 / 포인트자재 : 세라믹사이딩, 루나우드, 리얼징크

실내벽마감재 : 실크벽지 / 실내바닥마감재 : 이건 강마루, 포세린타일

창호재 : PVC 3중 시스템창호

건축면적 : 144.85㎡(1층 : 57.20㎡, 2층 : 53.52㎡, 다락 : 34.13㎡)

예상 총 건축비 : 330,000,000원(부가세 포함, 산재보험료 포함 / 설계비, 인허가비, 구조계산 설계비 별도)

설계비 : 11,000,000원(부가세 포함) / 인허가비 : 4,400,000원(부가세 포함)

구조계산 설계비 : 4,400,000원(부가세 포함) / 인테리어 설계비 : 6,600,000원(부가세 포함)


*건축비 외 부대비용 : 대지구입비, 가구(싱크대, 신발장, 붙박이장), 기반시설 인입(수도, 전기, 가스 등), 토목공사, 조경비 등

*건축비 기준은 24년 7월 4일 기준 금액입니다.


STORY


아파트에 없는 공간을 아이에게 선물한다는 것. 전원주택을 꿈꾸는 모든 분들이 가장 원하는 집의 이미지는 아파트를 벗어나 넓고 쾌적하며, 우리 가족에게 딱 맞춘 그러한 집일 것입니다.

간혹 전원생활을 위해 집을 짓는데 아파트가 편했다면서 향과 배치에 상관없이 아파트 평면을 그대로 가져와서 집을 지으시려고 하시는 분들이 계세요. 마음은 이해하지만 절대로 그렇게 하시면 안 되십니다.


아파트의 설계 시작점과 전원주택의 설계 시작점은 완전히 다릅니다. '어디에 중점을 둘 것인가?'에서부터 이견이 다르며, 전원주택은 오롯이 내 가족만을 위한 공간을 설계한다고 생각하시는 것이 좋습니다.

도심형 전원주택의 경우 땅을 개발한 후 분할해서 분양하는 경우들이 많습니다. 기반시설이 들어와 있고, 반듯하게 잘려서 정말로 집만 원하는 대로 앉히면 내가 살 집이 완성되는 그러한 시스템을 가지고 있습니다.

다만 편리성을 미리 만들어 놓았으니 땅값이 저렴할 리 만무하죠. 그렇다고 너무 외진 곳에 집을 짓게 되면 땅값은 쌀지 몰라도 나머지 부대비용이 훨씬 많이 들어가니 지금 말씀드린 이러한 부분들을 잘 비교해서 최종 땅을 결정하시길 바랍니다.

건축은 설계단계에서 원하는 만큼 수정이 가능하지만 한번 구매한 땅은 수정하거나 되돌리는 것이 불가능에 가까우니 꼭 땅 선정을 주의 깊게 하셔야 합니다.


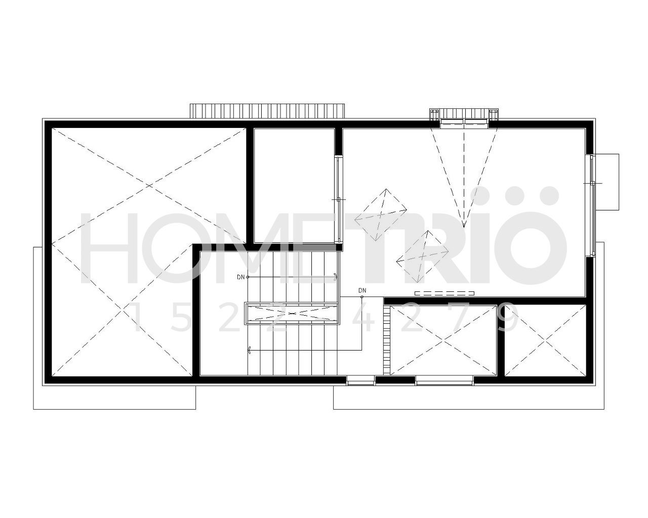
이번 주택을 설계하면서 독특한 설계기법을 적용하였습니다. 작은 땅에 최대한의 마당을 확보하면서 기존의 주택들과는 조금 특색 있는 공간을 만들어 내기 위해 '스킵플로어'라는 설계기법을 적용하였습니다. 이 기법은 협소 주택에서 주로 사용하던 기법인데 벽으로서 공간을 구분하는 것이 아닌 층별로 공간을 구분하는 것에 그 특징이 있습니다.


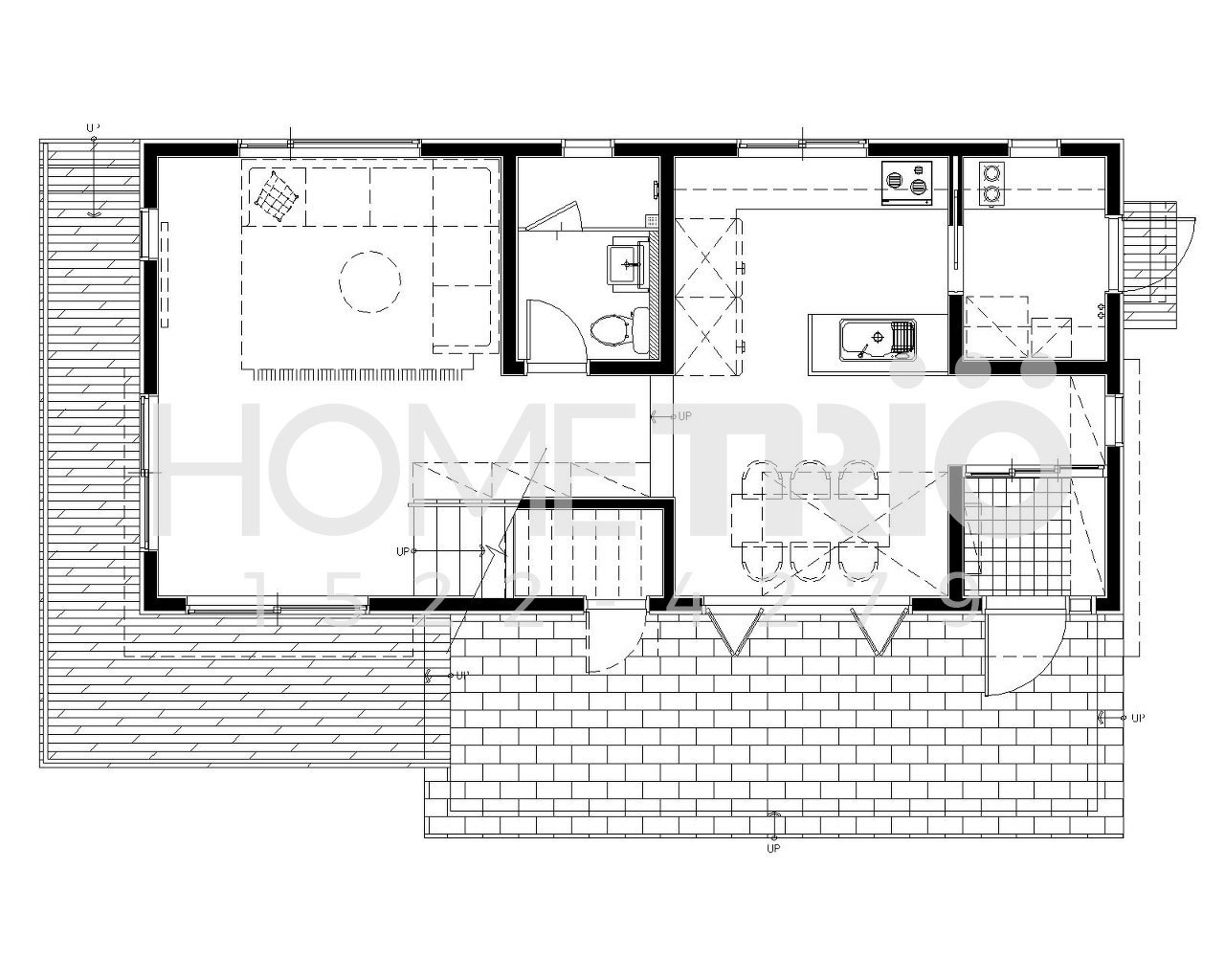
현관으로 진입하면 주방 공간이 처음 우리들을 맞이하며, 두 계단 정도 올라가서 거실이 형성되는 구성을 진행하였습니다. 두 개의 계단이지만 확실할 시각적 공간 분리가 되며, 벽이나 문이 없더라도 각 공간의 영역성이 자연스럽게 형성됩니다.

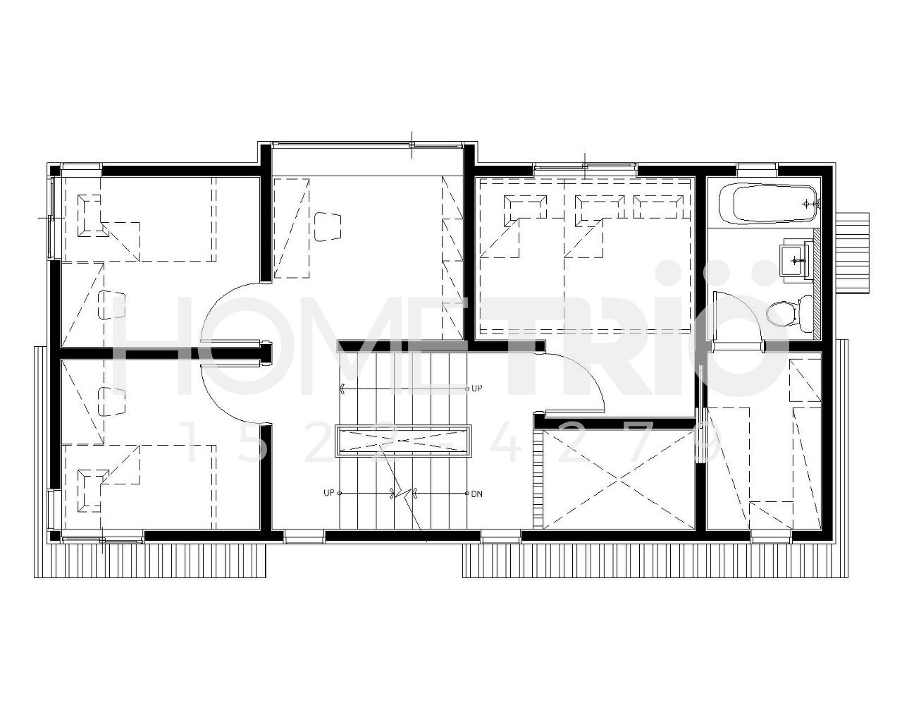
거실에서 만 층을 더 올라가면 안방 공간과 메인 화장실 공간이 존재하며, 다시 만 층을 올라가면 자녀방이 구성되는 형태로 공간설계를 진행하였습니다.


이 집의 매력포인트는 다락방일 것입니다. 자녀방에서 만 층을 더 올라가면 다락방이 존재하며, 어른들은 높이 때문에 사용하기 어렵겠지만 자녀들은 충분히 취미 및 놀이방으로 활용 가능합니다.

집 외부 디자인을 진행하면서 간결한 느낌을 넣어주고자 많이 노력하였습니다. 너무 과장되게 구성하는 것이 아닌 창문과 기본적인 포인트만으로 최대한 비워내고 말 그대로 포인트 정도 넣는 선에서 디자인 안을 정리했습니다.

지붕 디자인이 조금 독특한데 박공지붕 디자인을 기본으로 사선 방향으로 틀었습니다. 다락방을 구성하기 위해 층고를 맞추다 보니 자연스럽게 구성된 형태이며, 이 자체가 외부에서 보았을 때에는 좀 더 유니크한 느낌을 느끼게 해 주었습니다.

주택에서 실내공간보다 더 중요한 공간이 앞마당 공간입니다. 'ㄱ'자형이나 'ㄷ'자형도 좋지만 최대한의 마당을 확보할 수 있는 공간배치는 땅 끝에 붙여 직사각형 형태로 평면을 구성하는 것입니다. 낭비되는 공간 없이 이격 거리만을 띄운 후 1층 배치를 진행하였으며, 데드 스페이스라고 불리는 죽은 공간 없이 실 구성과 배치가 이루어졌습니다.


마지막으로 데크에 대해서 이야기하고 마무리하겠습니다. 데크는 두 종류가 있습니다. 석재판을 까는 석재 데크와 나무로 시공하는 나무데크. 이미 잘 아시겠지만 석재 데크는 영구적입니다. 관리가 편한 대신 초기 시공비가 비쌉니다. 나무데크는 감성적인 분위기를 자아내는데 특화되어 있는 자재입니다. 석재가 차가운 느낌이라면 나무는 따뜻한 느낌을 집 분위기에 불어넣어 줍니다.

다만 나무의 특성상 틀어지거나 곰팡이가 생기는 단점이 존재합니다. 나무데크로 시공하시는 분들은 첫해는 3개월마다 오일스텐을 칠해주시고 그다음 해부터는 1년에 최소는 1번, 많게는 2번 칠해 주셔야 계속적으로 사용이 가능하실 거예요.


Floor Plan


다운로드-(2).jpg 1층 평면도
다운로드-(3).jpg 2층 평면도
다운로드-(4).jpg 다락 평면도


이동혁 건축가 : 스킵플로어 설계기법이 적용된 주택입니다. 벽으로서 공간을 구분하는 것이 아닌 층으로서 구분하는 방식의 설계기법이며, 이 방법으로 반층씩 올라가면서 공간을 구성하게 되면 자연스럽게 시각적 차단을 이룰 수 있으면서 좀 더 이색적인 실내 공간을 탄생시킬 수 있습니다. 좁은 대지에 각 층별 프라이빗 공간을 만드시고 싶으신 분들은 스킵플로어 방식의 설계기법도 한번 고려해 보시면 좋습니다.


임성재 건축가 : 건폐율 20%의 대지에서는 어설프게 공간을 분절시키는 것보다 확실하게 박스형으로 올려 쌓는 것이 좋습니다. 외관 디자인과 실내공간을 두고 어느 한쪽의 손을 들어주어야 하는 상황이 발생하면 디자인을 좀 포기하더라도 실내 공간을 확보하는 것이 좋습니다. 결국 우리가 생활해야 하는 부분은 실내공간이니까요. 박스형이라고 걱정하지 마세요. 충분히 포인트와 창문의 디자인으로 부족한 부분을 커버할 수 있으니까요.


창땅에 경사가 존재한다면 지하주차장을 고려하시는 것이 좋습니다. 물론 습하고 곰팡이가 피는 것은 막을 수 없습니다. 차라리 환기를 열심히 시키세요. 어쩔 수 없는 부분에서 스트레스받지 마세요. 습한 부분과 곰팡이는 확실한 환기를 통해 관리하시고 나머지 에너지를 조경과 전원생활을 하는 데 사용하세요. 단점만을 보고 생활하시는 것이 아닌 장점만을 보시고 전원생활을 하세요. 그것이 행복한 전원생활의 정답이랍니다.



<외관>

HC006-0101.jpg
HC006-0108.jpg
HC006-0116.jpg
HC006-0122.jpg
HC006-6243.jpg
HC006-6248.jpg
HC006-6251.jpg
HC006-6254.jpg
HC006-6268.jpg
HC006-6269.jpg
HC006-6270.jpg
HC006-6277.jpg
HC006-6278.jpg
HC006-6281.jpg
HC006-6294.jpg
HC006-6299.jpg
HC006-6330.jpg
HC006-6331.jpg
HC006-6332.jpg
HC006-6335.jpg
HC006-6336.jpg
HC006-6340.jpg
HC006-6341.jpg
HC006-6342.jpg
HC006-6343.jpg
HC006-6344.jpg
HC006-6345.jpg
HC006-6347.jpg
HC006-6350.jpg
HC006-6351.jpg
HC006-6352.jpg
HC006-6354.jpg
HC006-6355.jpg
HC006-6356.jpg
HC006-6359.jpg
HC006-6360.jpg
HC006-6361.jpg
HC006-6364.jpg
HC006-6365.jpg
HC006-6366.jpg
HC006-6369.jpg
HC006-6370.jpg
HC006-6371.jpg
HC006-6373.jpg
HC006-6374.jpg
HC006-6377.jpg
HC006-6379.jpg
HC006-6383.jpg
HC006-6385.jpg
HC006-6387.jpg
HC006-6388.jpg
HC006-6392.jpg
HC006-6395.jpg
HC006-6396.jpg
HC006-6397.jpg
HC006-6398.jpg
HC006-6399.jpg
HC006-6400.jpg
HC006-6402.jpg
HC006-6403.jpg
HC006-6405.jpg
HC006-6406.jpg
HC006-6408.jpg
HC006-6409.jpg
HC006-6410.jpg
HC006-6412.jpg
HC006-6414.jpg
HC006-6416.jpg
HC006-6417.jpg
HC006-6418.jpg
HC006-6420.jpg
HC006-6421.jpg
HC006-6423.jpg
HC006-6425.jpg
HC006-6426.jpg
HC006-6428.jpg
HC006-6429.jpg
HC006-6430.jpg
HC006-6431.jpg
HC006-6434.jpg
HC006-6435.jpg
HC006-6437.jpg
HC006-6438.jpg
HC006-6442.jpg
HC006-6446.jpg
HC006-6447.jpg
HC006-6448.jpg
HC006-6452.jpg
HC006-6455.jpg
HC006-6460.jpg
HC006-0095.jpg

https://spacemillion.kr/

스페이스밀리언 배너.jpg

[집이라는 본질적인 가치에 집중하다.]

설계, 시공 : 홈트리오(주), 듀밀리언(주)

상담문의 : sunsutu@hanmail.net(대표번호 : 1522-1035 / 문자상담 : 010-6889-9770 / 문의가 너무 많아 전화가 안 될 수 있습니다. 문자로 내용 남겨주시면 늦더라도 상담드릴게요.^^)

ARTIST : 건축가 이동혁, 임성재

홈페이지

: http://spacemillion.kr <-ai 스페이스 밀리언

: https://dewmillion.kr/ <-듀밀리언 종합건설

포트폴리오 : https://brunch.co.kr/@sunsutu

스페이스밀리언 ai.jpg


keyword