brunch

'37평 건강을 위해 지은 집' 양평 전원주택 완공

살고 싶은 전원주택 시리즈 #78 - 이동혁건축가

by 이동혁 건축가

제목 : '37평 건강을 위해 지은 집' 양평 전원주택 완공 프로젝트 (세컨하우스 짓기)

소제목 : 살고 싶은 전원주택 시리즈 #78 - 이동혁건축가


*구독 버튼은 필수인 것 다들 아시죠^^

[크기변환]HC011-9059.jpg

SPEC


공법 : 경량목구조

설계, 시공 : 듀밀리언(주), 홈트리오(주) / 상담문의 : sunsutu@hanmail.net(대표번호 : 1522-1035 / 문자상담 : 010-6889-9770 / 문의가 너무 많아 전화가 안 될 수 있습니다. 문자로 내용 남겨주시면 늦더라도 상담드릴께요.^^)

ARTIST : 건축가 이동혁, 임성재

듀밀리언 프로필.jpg

홈페이지

: https://dewmillion.kr/ <-듀밀리언 종합건설

지붕마감재 : 아스팔트슁글 / 외벽 마감재 : 스타코플렉스 / 포인트자재 : 파벽돌, 리얼징크

실내벽마감재 : 실크벽지 / 실내바닥마감재 : 이건 강마루(헤링본)

창호재 : PVC 3중 시스템창호

건축면적 : 123.47㎡(1층 : 80.17㎡, 2층 : 43.30㎡)

예상 총 건축비 : 262,700,000원(부가세 포함, 산재보험료 포함 / 설계비, 인허가비, 구조계산 설계비 별도)

설계비 : 9,250,000원(부가세 포함) / 인허가비 : 3,700,000원(부가세 포함)

구조계산 설계비 : 3,700,000원(부가세 포함) / 인테리어 설계비 : 5,550,000원(부가세 포함)

*건축비 외 부대비용 : 대지구입비, 가구(싱크대, 신발장, 붙박이장), 기반시설 인입(수도, 전기, 가스 등), 토목공사, 조경비 등

*건축비 기준은 24년 7월 22일 기준 금액입니다.


STORY


건강. 그리고 행복.


많은 사람들이 돈이 전부인 것처럼 생각하고 그것을 얻기 위해 많은 시간을 투자하지만 실상 건강이라는 가장 중요한 부분을 놓치면 그 돈은 휴지조각처럼 변해버릴 뿐입니다.


건강을 위해 아파트가 아닌 한적한 시골마을의 전원주택을 선택하신 건축주님. 그 건축주님의 마음을 너무나도 잘 알기에 처음 시작부터 끝까지 한치의 소홀함이 없이 일을 진행했습니다.


설계기간 3개월, 그리고 시공기간 총 4개월. 장마라는 기간을 포함하여 근 1년이라는 시간 동안 저희와 함께 걸어온 건축주님. 그 마지막을 지금부터 이야기하려 합니다.


집을 짓기 위해서는 정말 많은 시간과 노력이 필요합니다. 단순히 돈이 있으면 내가 원하는 집을 마음껏 지을 수 있을 거라 생각하지만 정작 집을 지으려면 누구한테 맡겨야 하는지조차 모르고 시작을 하게 됩니다.


"업체는 많은데 정말 내 집처럼 잘 지어줄 수 있는 업체는 어떻게 알아봐야 하는 거예요?"

"솔직히 돈만 있으면 아무 데나 맡겨도 다 똑같이 짓는 줄 알았어요."


참 공감이 되는 부분이에요. 업체는 많은데 잘하는 곳을 찾기가 어려운 세상. 길을 지나가다 보면 시작은 했는데 몇 개월이 지나도록 완공이 안 되는 집들. 자꾸 돈을 요구하는 건축업체들. 삐져서 망치 던져버리고 연락 안 받는 사람들. 같은 업계에 있지만 참 한심스러울 때가 많습니다.


건축주님들이 저에게 찾아오실 때 어떠한 부분을 걱정하시고 오시는지 알고 있습니다. 단순히 신뢰만으로 '억'이 넘는 돈을 믿고 맡길 수 있는 세상이 아닌지라 신뢰를 떠나 그 이상의 무언가를 보여드려야 하고, 젊은 건축가인만큼 실용적이고 안전한 집을 지어드려야 한다는 목표 아래에 일을 합니다.


이번 완공된 양평 주택도 긴 시간 동안 많은 우여곡절을 겪으면서 왔는데 끝까지 포기하지 않고 믿어주신 건축주님께 감사인사를 전하며, 비 안 새고 따뜻한 집. 그리고 건강을 챙길 수 있는 그러한 집으로 영원히 남길 바랍니다.



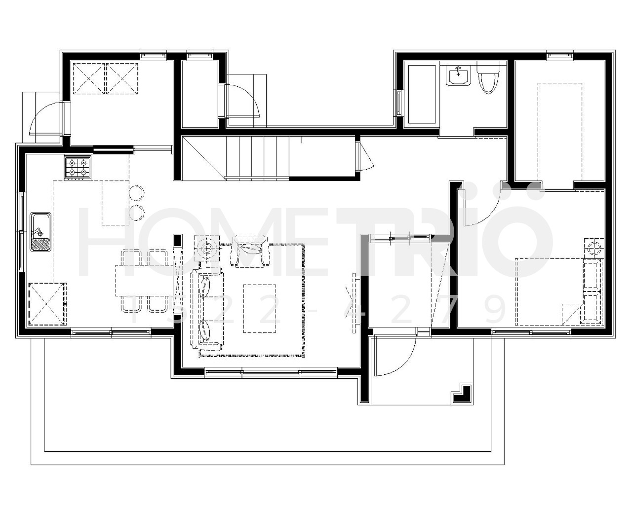
Floor Plan


다운로드 (1).jpg 1층 평면도
2층 평면도


이동혁 건축가 : 노후에 건강을 위한 집으로 설계된 주택입니다. 2억 중반 대라는 금액을 정해 놓고 설계를 한 모델이며, 방은 2개만 구성하여 공용공간의 활용성을 높여준 주택입니다. 가장 매력적인 평면 부분은 2층의 다목적 가족실로서 폴딩도어를 설치해 평소에는 개방하여 넓게 사용하고, 자녀들이 놀러 왔을 때는 창을 닫아 방처럼 사용할 수 있게 공간 구성하였습니다.


임성재 건축가 : 발코니와 포치 공간은 하나의 위치에 같이 존재하는 것이 좋습니다. 방수기술이 많이 발달했지만 그래도 누수에 대한 위험성이 완전히 사라진 것은 아니거든요. 실내로 물이 새기보다는 똑같은 외기에 접해 있는 것이 오히려 안전성에는 낳다고 판단합니다. 요즘에는 지붕을 디자인하여 집의 분위기를 많이 잡아가려 합니다. 외장재도 물론 중요하지만 사람처럼 머리스타일에 따라 전체적인 분위기가 크게 좌지우지됩니다. 박공지붕과 외쪽지붕의 혼합 디자인만으로도 유니크한 주택을 탄생시킬 수 있었고, 오히려 모던 스타일에 가까운 집이 완성되었습니다.



HC011-8904r.jpg
HC011-8911r.jpg
HC011-8916r.jpg
HC011-8917r.jpg
HC011-8939r.jpg
HC011-8954r.jpg
HC011-8959r.jpg
HC011-8962r.jpg
HC011-8963r.jpg
HC011-8965r.jpg
HC011-8966r.jpg
HC011-8968r.jpg
HC011-8969r.jpg
HC011-8971r.jpg
HC011-8972r.jpg
HC011-8973r.jpg
HC011-8974r.jpg
HC011-8975r.jpg
HC011-8976r.jpg
HC011-8977r.jpg
HC011-8979r.jpg
HC011-8980r.jpg
HC011-8981r.jpg
HC011-8982r.jpg
HC011-8983r.jpg
HC011-8984r.jpg
HC011-8986r.jpg
HC011-8989r.jpg
HC011-8990r.jpg
HC011-8991r.jpg
HC011-8993r.jpg
HC011-8994r.jpg
HC011-8997r.jpg
HC011-8998r.jpg
HC011-9001r.jpg
HC011-9002r.jpg
HC011-9004r.jpg
HC011-9005r.jpg
HC011-9008r.jpg
HC011-9009r.jpg
HC011-9012r.jpg
HC011-9013r.jpg
HC011-9015r.jpg
HC011-9017r.jpg
HC011-9018r.jpg
HC011-9020r.jpg
HC011-9021r.jpg
HC011-9022r.jpg
HC011-9023r.jpg
HC011-9026r.jpg
HC011-9029r.jpg
HC011-9031r.jpg
HC011-9032r.jpg
HC011-9033r.jpg
HC011-9034r.jpg
HC011-9036r.jpg
HC011-9039r.jpg
HC011-9042r.jpg
HC011-9045r.jpg
HC011-9046r.jpg
HC011-9047r.jpg
HC011-9048r.jpg
HC011-9049r.jpg
HC011-9051r.jpg
HC011-9053r.jpg
HC011-9056r.jpg
HC011-9059r.jpg

[집이라는 본질적인 가치에 집중하다.]

설계, 시공 : 홈트리오(주), 듀밀리언(주)

상담문의 : sunsutu@hanmail.net(대표번호 : 1522-1035 / 문자상담 : 010-6889-9770 / 문의가 너무 많아 전화가 안 될 수 있습니다. 문자로 내용 남겨주시면 늦더라도 상담드릴게요.^^)

ARTIST : 건축가 이동혁, 임성재

듀밀리언 프로필.jpg

홈페이지

: http://spacemillion.kr <-ai 스페이스 밀리언

: https://dewmillion.kr/ <-듀밀리언 종합건설

스페이스밀리언 ai.jpg


keyword