#83 2억4천. 44평 북유럽 목조주택 정취를 품다.

#83 경기 양평 양평읍 백안리 44평 북유럽식 목조주택 설계사례

by 이동혁 건축가

제목 : #83 2억4천. 44평 북유럽 목조주택 정취를 품다.

소제목 : #83 경기 양평 양평읍 백안리 44평 북유럽식 목조주택 설계사례


출발


안녕하세요. 이동혁 건축가 입니다.^^

날씨가 정말 많이 뜨거워졌습니다. ㅠㅠ 덥다라기 보다는 뜨겁다는 말이 어울릴 것 같네요.^^;

벌써 6월입니다. 완공 시즌이다 보니 많이 돌아다니고 있는데 장마가 늦게 오다 보니 공사들이 수월하게 진행되고 있는 것 같습니다.

건축가의 입장에서는 참 좋은 날씨인데 너무 비가 안 내리다 보니 걱정 아닌 걱정이 드네요. ㅠㅠ

장마시즌에는 어차피 공사가 없으니 가뭄이 해소될 수 있는 비가 조금이나마 내렸으면 합니다.

오늘은 경기 양평 백안리 쪽에 지어질 44평 전원주택을 이야기드리려고 합니다.

전통 북유럽 스타일의 전원주택. 아름다움을 말할 수 있는 이번 주택.

자 그럼 오늘도 출발해 보겠습니다.

*읽고 난 다음에는 위의 하트 모양 라이킷과 공유 꾹 눌러주세용~^^


HOUSE PLAN

연면적 : 146.13㎡

1층 : 93.36㎡

2층 : 52.77㎡

규모 : 지상 2층

총괄 건축가 : 이동혁, 임성재, 정다운

설계·시공 : 홈트리오 1522-4279

Homepage : http://hometrio.kr

이동혁건축가TV : http://tv.naver.com/sunsutu1

예상 총 건축비 : 245,000,000원(부가세 포함)

설계비 및 인허가비 : 11,000,000(부가세 포함)

*건축비 외 부대비용 : 대지구입비, 가구(싱크대, 신발장, 붙박이장), 기반시설 인입(수도, 전기, 가스 등), 토목공사, 조경비 등


SPEC

공법 : 기초-철근콘크리트 / 1층, 2층 구조-목조

지붕마감재 : 스페니쉬기와

외벽마감재 : 스타코플렉스

외벽포인트자재 : 파벽돌

실내벽마감재 : 실크벽지

실내바닥마감재 : 강마루

창호재 : 융기 3중 시스템창호

단열재 : 외부벽체(Glasswool Insulation R21HD-15" 나등급)

▷크나우프社 ECOBATT (ECOSE® 특허)

▷HD:저에너지 하우스용 / 15인치(381mm) *동등 제품

: 내부벽체(Glasswool Insulation R19-15" 다등급)

: 천장(Glasswool Insulation R30-15" 다등급)

: 지붕(Glasswool Insulation R37-23" 가등급) ▷ISOVER社에너지세이버

*단열기준은 2016년 7월1일자로 변경되는 단열기준법을 적용하여 강화시켜 놓았습니다.

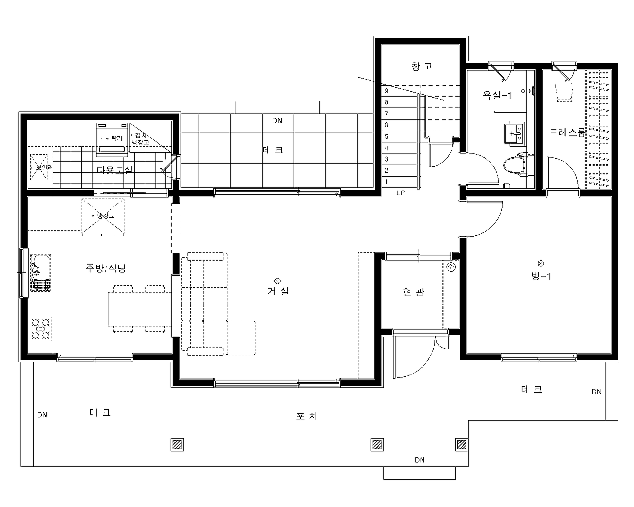
1층 평면도
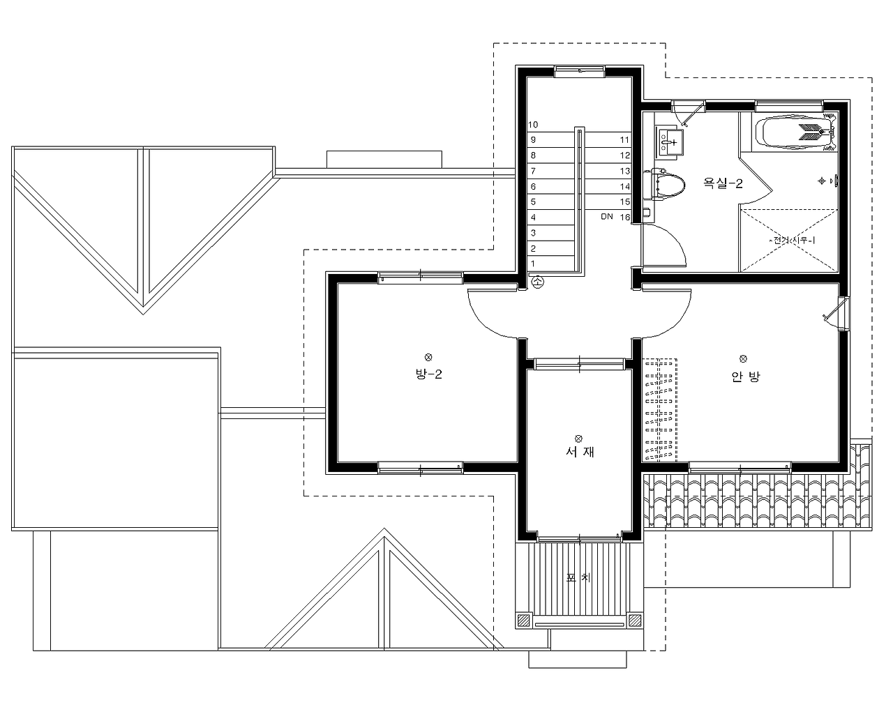
2층 평면도


Q.설계 방향에 대해 설명해주세요.

이번 설계 방향의 테마는 '북유럽 목조주택의 정취를 담다.'입니다.

북유럽 주택의 매력이라고 하면 무엇이 있을까요? 아마 제가 생각하기로는 기와의 부드러움과 강인함이 집 전체 이미지에 녹아들어 가 있는 분위기라 생각합니다.

또한 이국적인 느낌의 이미지는 전원주택 생활을 준비하시는 분들께는 가장 지루하지 않은 스타일이라 설명드리고 싶네요.^^

최근에는 모던한 느낌의 주택들이 트렌디하게 자리를 잡아가고 있는데 그래도 북유럽 스타일의 기와 올라간 전원주택을 원하시는 층은 꾸준하게 유지되고 있는 실정입니다.

아파트처럼 좁지 않고 넓은 공간으로 구성한 경기 양평의 전원주택. 여러분들의 마음속에 자리 잡길 바라겠습니다.^^



Q.면적은 얼마나 되는가요?

총 44평(146.13㎡)으로 설계되었으며, 2층으로 구성된 설계 안 입니다.

1층에 방 1개와 공용공간을 크게 구성하였으며, 2층에 방 2개와 넓은 욕실 그리고 서재까지 구성하여 전원생활을 즐기시기에 충분한 공간으로 설계하였습니다.


Q.비용은 얼마가 들었나요?

건축비의 경우 245,000,000원이 소요될 것으로 예상됩니다. 부가세가 포함된 가격이며, 순수한 건축비입니다.

설계비는 11,000,000원이 소요되어졌습니다. 이는 부가세 포함 가격이며, 인허가 및 사용승인 비용도 포함된 금액입니다.


Q.주차장 계획은 꼭 해야 하나요?

주차장의 경우 인허가 단계에서 필수로 들어가야 하는 건축 사항입니다.

많은 분들이 준공단계에서 주차장을 만들어 놓았다가 추후 마당으로 그냥 쓰시는 데 사용 자체에는 문제가 없지만 추후 민원이 들어갔을 때에 벌금 및 원상복구 명령이 떨어질 수 있으므로 남의 집에서 주차장을 안 했다고 하여 내 집에도 안 하는 일은 없으셔야 합니다.^^


Q.설계기간 및 시공기간은 얼마나 걸릴까요?

설계기간은 인허가 포함 3달 정도를 잡는 것이 여유로우며, 목조주택 시공기간은 착공일로부터 3.5개월을 잡는 것이 좋습니다. 사용승인(준공)까지 포함된 기간입니다.


Q.마지막 총평을 한다면?

집을 설계하고 총괄할 때마다 건축주님들께서 가장 많이 어려워하시는 부분이 바로 평수입니다. 면적을 얼마나 잡아야 내가 원하는 집의 모양이 나올까? 답답하지는 않을까? 건축가인 저도 이러한 의문들이 충분히 이해가 된답니다.^^

인터넷을 뒤지고 책을 읽고. 솔직히 기본적인 정보는 얻을 수는 있겠지만 구체적인 그림을 그리기에는 분명히 한계가 있다고 생각합니다.

이번 주택도 정말 많은 고민과 공부를 하신 상태에서 저희들을 만나셨는데요. 처음 가지고 오신 안과 최종 만들어진 설계안은 정말 다른 집으로 나타났답니다.^^;

아직도 고민 중이신가요? 그냥 한번 용기 내서 저희들을 찾아오세요. 그러면 그동안 몽글몽글 내 머리 위에만 떠 있던 생각들이 정리되실 것입니다.

정면도
좌측면도
우측면도
배면도
지붕평면도



도착


44평 경기 양평군 양평읍 백안리 전원주택 설계 사례. 어떠셨나요?

'따뜻한 전원주택을 꿈꾸다' 책을 출간 이후 정말 많은 사랑과 관심을 받았습니다. 특히 많은 방송사에서 인터뷰 요청이 있었는데요. 일이 워낙 바쁘다 보니 일일이 거절하느라 진땀 뺐습니다. ㅠㅠ 작가님을 다음에는 꼭 인터뷰 응하도록 하겠습니다. 감사합니다.

집을 짓는 건축가가 이렇게 많은 사랑을 받아도 되나? 하는 정도로 축하인사를 많이 받았는데요. 그동안 정말 저희가 헛되이 살지는 않았나 보구나 하는 생각을 갖게 되었답니다.

가을 공사 시즌이 또 다가오고 있습니다. 남은 설계 열심히 하여 우리 건축주님들 집 안전하게 지을 수 있도록 노력 또 노력하겠습니다.^^

감사합니다.

*읽고 난 다음에는 위의 하트모양 라이킷과 공유 꾹 눌러주세용~^^


(좌측부터) 정다운 건축가, 이동혁 건축가, 임성재 건축가

설계·시공 : 홈트리오 1522-4279

Homepage : http://hometrio.kr

이동혁건축가TV : http://tv.naver.com/sunsutu1

[집이라는 본질적인 가치에 집중하다.]


글쓴이 : 이동혁 건축가

이메일 : sunsutu@hanmail.net

책 : '따뜻한 전원주택을 꿈꾸다' 저자(http://www.yes24.com/24/goods/40516450?scode=029)

이동혁건축가TV : http://tv.naver.com/sunsutu1


상담 및 자문[홈트리오(주) 대표]

이동혁 건축가 : 010-4567-8413

정다운 건축가 : 010-8560-0477

임성재 건축가 : 010-9941-8899



keyword