#87 '저녁 노을을 앉히며' 단층 30평 전원주택

#87 경기 가평 대보리 30평 북유럽 스타일 목조주택 설계 사례

by 이동혁 건축가

제목 : #87 '저녁 노을을 앉히며...' 단층 30평 전원주택.

소제목 : #87 경기 가평 대보리 30평 북유럽 스타일 목조주택 설계 사례


출발


안녕하세요. 이동혁 건축가 입니다.^^

오늘 잠을 자다가 문득 추워서 잠을 잠깐 깼는데요. 어제 하루 사이에 습도가 많이 낮아진 것 같습니다. 더위가 조금 물러난 느낌^^;인데요. 지난주 까지만 해도 정말 잠깐만 걸어도 어지러울 정도로 더웠는데 더위도 한풀 꺾였다 봅니다.^^

오늘 소개하여드릴 저희들의 설계안은 경기 가평 대보리에 지어질 30평 북유럽 스타일의 단층 목조주택이랍니다. 30평 규모라면 솔직히 2층보다는 단층으로 구성하여 소비되는 이동 공간 없이 모든 공간을 찾아먹는 설계안이 좋은데요. 이번 주택이 마당의 정취를 최대한 즐기면서 남향의 따뜻한 햇볕과 저녁노을이 잠시 앉았다 갈 수 있는 설계로 디자인되었습니다.

저녁노을이 잠시 머물다 갈 수 있는 아름다운 주택. 지금부터 이야기드려 보겠습니다.^^

자 그럼 오늘도 출발해 보겠습니다.

*읽고 난 다음에는 위의 하트 모양 라이킷과 공유 꾹 눌러주세용~^^


HOUSE PLAN

연면적 : 99.00㎡

1층 : 99.00㎡

규모 : 지상 1층

총괄 건축가 : 이동혁, 임성재, 정다운

설계·시공 : 홈트리오(주)

Homepage : http://hometrio.kr/

대표번호 : 1522-4279


예상 총 건축비 : 165,800,000원(부가세 포함)

설계비 및 인허가비 : 7,500,000(부가세 포함)

*건축비 외 부대비용 : 대지구입비, 가구(싱크대, 신발장, 붙박이장), 기반시설 인입(수도, 전기, 가스 등), 토목공사, 조경비 등


SPEC

공법 : 기초-철근콘크리트 / 1층-목조

지붕마감재 : 스페니쉬기와(테릴변색기와)

외벽마감재 : 스타코플렉스

외벽포인트자재 : 파벽돌, EPS몰딩

실내벽마감재 : 실크벽지

실내바닥마감재 : 강마루

창호재 : 융기 3중 시스템창호

단열재 : 외부벽체(Glasswool Insulation R21HD-15" 나등급)

▷크나우프社 ECOBATT (ECOSE® 특허)

▷HD:저에너지 하우스용 / 15인치(381mm) *동등 제품

: 내부벽체(Glasswool Insulation R19-15" 다등급)

: 천장(Glasswool Insulation R30-15" 다등급)

: 지붕(Glasswool Insulation R37-23" 가등급) ▷ISOVER社에너지세이버

*단열기준은 2016년 7월1일자로 변경되는 단열기준법을 적용하여 강화시켜 놓았습니다.

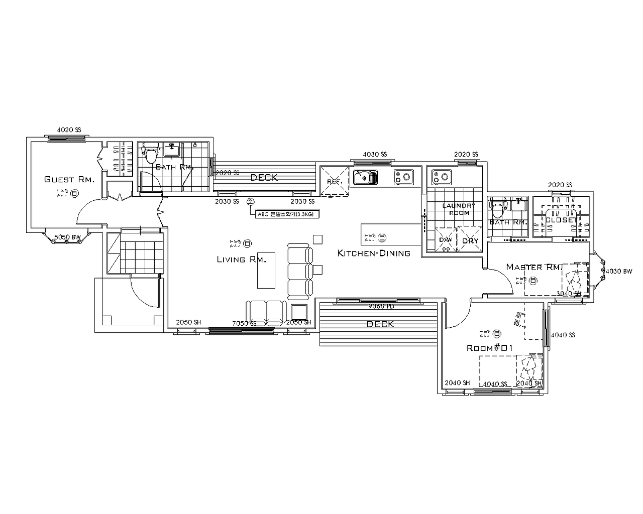
1층 평면도

Q.설계 방향에 대해 설명해주세요.

이번 설계 방향의 테마는 '저녁 노을이 머물다 간 집'입니다. 요즘 나이가 조금 먹어서 그런지 저녁노을을 보고 있노라면 자연스럽게 감성 모드로 변하게 되는데요. 무언가 차분하면서 부드럽게 마음을 안정시켜주는 듯한 느낌. 바로 이러한 느낌을 집에 담고자 하였습니다.

건축주님의 땅이 좌우로 긴 편이었기에 과감히 모든 실을 남향으로 배치할 수 있는 직사각형 형태로 설계를 배치하였으며, 현관을 들어왔을 때 거실과 주방 그리고 방까지 넓은 오픈 스페이스가 펼쳐질 수 있도록 하였습니다.

30평이라는 제한적 공간이 좁다고 느껴지실 수 있다는 점을 고려하여 최대한 오픈 스페이스를 구성하고자 노력하였으며, 외부 마당과의 연계도 고려하여 내, 외부 모두 효율성 있는 공간으로서 창출했습니다.^^


Q.면적은 얼마나 되는가요?

총 30평(99㎡)으로 설계되었으며, 단층으로 구성된 설계 안 입니다. 현관을 중앙이 아닌 좌측으로 배치하여 현관에서 들어왔을 때 자연스럽게 넓은 공간감이 다가올 수 있게 하였으며, 화장실 2개에 다용도실, 방 3개라는 알찬 구성으로 군더더기 없이 가성비 높은 주택을 설계해 내었습니다.


Q.비용은 얼마가 들었나요?

건축비의 경우 165,800,000원이 소요될 것으로 예상됩니다. 부가세가 포함된 가격이며, 순수한 건축비입니다.

설계비는 7,500,000원이 소요되어졌습니다. 이는 부가세 포함 가격이며, 인허가 및 사용승인 비용도 포함된 금액입니다.


Q.단층 주택의 장점이 무엇인가요?

단층 전원주택의 가장 큰 장점은 낭비되는 공간 없이 모든 공간을 실 면적으로 사용할 수 있다는 것에 있습니다. 다시 말해 2층으로 집을 구성한다면 현관을 통해 들어과 복도를 지나 계단실로 올라가야 합니다. 또한 2층으로 올라가 다시 복도를 통해 방으로 진입이 됩니다.

결국에는 이동만을 위한 공간이 많아지며, 이는 데드 스페이스로 자리 잡게 됩니다. 하지만 단층 주택의 경우 이러한 낭비 공간 없이 모든 공간을 다 사용할 수 있기 때문에 같은 평수라도 더 크게 느껴질 수 있는 장점이 있습니다.


Q.마지막 총평을 한다면?

저희들이 건축업을 종사한 지 10년이 넘어가고 있는데요. 처음에 전원주택을 지을 때는 대부분 40~50평 이상이었습니다. 한번 지을 때 넓게 살고자 하는 라이프스타일과 우리나라만 존재하는 과시적인 부분이 지배적이었기 때문입니다. 하지만 최근 들어 젊은 부부들이 집을 짓기 시작하였으며, 대가족이 아닌 핵가족화되어가면서 큰 평수가 아닌 실용성이 높은 30평형이 주로 지어지고 있습니다.

개인적으로도 두 분이 거주하실 주택의 경우 층을 분리하여 넓게 짓는 것보다는 30평의 단층을 추천드리며, 도심지처럼 작은 땅의 경우 2층으로 분리하되 35평 정도의 콤팩트 한 평수로 많이 추천드립니다.

집은 정답이 없는 분야입니다. 많이 보고 많이 공부하고... 그리고 많은 집들을 보다 보면 아 이러한 공간이 있었으면 좋겠다 하는 생각이 드실 것입니다.

그런 부분들만 조금씩 모아 정말 내가 필요한 공간만을 설계해 집을 짓길 바라겠습니다.

감사합니다.^^

정면도
좌측면도
우측면도
배면도

도착


30평 단층 전원주택 어떠셨나요?

이번 주택의 경우 농가주택 기준을 맞추기 위해 30평이라는 면적을 딱 맞추어 계획되어졌는데요. 30평이라고 작을 거라 생각하셨던 분들은 이번 설계안을 보면서 아 이 정도도 훌륭한 공간이 나오는구나 라는 것을 깨달으셨을 것입니다.^^

"가장 질리지 않는 주택 스타일이 뭐예요?"라는 질문을 많이 받는데요.

주택 외관의 경우 개인의 취향 차이가 크다 보니 무엇이 맞다고 정의하기는 어렵지만 이번에 소개하여드린 북유럽 스타일의 주택이 가장 호불호가 적은 주택인 건 맞는 것 같습니다.

무게감 있는 스페니쉬 기와와 안정적인 느낌의 파벽돌. 언제 보아도 질리지 않는 스타일 임에는 틀림없는 것 같습니다.

다들 가을 공사 잘 준비하고 계신가요? 여러분들의 집 짓기를 항상 응원하며, 궁금하신 점 있으시면 언제든지 질문해주시고 최선을 다해 답변드리도록 하겠습니다.^^

오늘은 여기까지 입니다.

감사합니다.

*읽고 난 다음에는 위의 하트모양 라이킷과 공유 꾹 눌러주세용~^^



설계·시공 : 홈트리오(주)

Homepage : http://hometrio.kr/

대표번호 : 1522-4279



글쓴이 : 이동혁 건축가

이메일 : sunsutu@hanmail.net

책 : '따뜻한 전원주택을 꿈꾸다' 저자(http://www.yes24.com/24/goods/40516450?scode=029)



상담 및 자문[꿈애디자인랩(주) 연구소장]

이동혁 건축가 : 010-4567-8413

정다운 건축가 : 010-8560-0477

임성재 건축가 : 010-9941-8899



keyword