#38 '넓은 마당의 매력'경기 광주 39평 목조주택

#38 경기 광주 오포읍 능평리 목조 모던스타일 39평 전원주택 완공사례

by 이동혁 건축가

제목 : #38 '넓은 마당의 매력' 경기 광주 39평 목조주택

소제목 : #38 경기 광주 오포읍 능평리 목조 모던스타일 39평 전원주택 완공사례


사본 -다운로드.jpg


출발


안녕하세요. 이동혁 건축가 입니다.^^

오늘은 양평 출장을 다녀왔는데 해가 질 때쯤이 되니 앞이 안 보이게 비가 내리더라고요. 최근 출장이 잦다 보니 밤이나 비가 올 때 운전을 많이 하는데 요즘처럼 갑작스럽게 폭우가 내리면 정말 앞이 잘 안 보여서 사고 날 뻔한 경우가 많았답니다.

우리 건축주님 여러분들도 가급적 비 올 때는 운전을 줄이시고 하시게 되더라도 항상 안전, 또 안전 운전하시기 바라겠습니다.^^

오늘 소개하여드릴 집은 경기 광주 오포읍 능평리에 지어진 39평 목조주택입니다.

큰 추가비 없이 기본적인 스펙으로 지어진 주택이지만 일반적이지 않고 독특한 외관에 클래식함이 공존하는 주택으로 탄생이 되었습니다.*^^*

꼭 외장재에 돈을 많이 들인다고 해서 예쁜 집이 되는 것은 아니랍니다.

깔끔하면서도 정돈된 느낌의 나만의 집.

경기 광주 오포읍 능평리에 지어진 39평 전원주택에서 같이 확인해 보셨으면 합니다.^^

자 그럼 오늘도 출발해 보겠습니다.

*읽고 난 다음에는 위의 하트 모양 라이킷과 공유 꾹 눌러주세용~^^



HOUSE PLAN

연면적 : 130.14㎡

1층 : 83.16㎡

2층 : 46.98㎡

규모 : 지상 2층

총괄 건축가 : 이동혁, 임성재, 정다운

설계·시공 : 홈트리오(주) 1522-4279

Homepage : http://hometrio.kr

이동혁건축가TV : http://tv.naver.com/sunsutu1

KakaoTalk_20170712_135132086.png

예상 총 건축비 : 183,000,000원(부가세 포함, 2016년 8월 1일자 기준 계약금액)

설계비 및 인허가비 : 9,750,000(부가세 포함)

*건축비 외 부대비용 : 대지구입비, 가구(싱크대, 신발장, 붙박이장), 기반시설 인입(수도, 전기, 가스 등), 토목공사, 조경비 등


SPEC

공법 : 기초-철근콘크리트 / 1층, 2층 구조-목조

지붕마감재 : 아스팔트슁글

외벽마감재 : 스타코플렉스

외벽포인트자재 : 적삼목사이딩, 파벽돌, EPS몰딩

실내벽마감재 : 실크벽지

실내바닥마감재 : 강마루

창호재 : 융기 3중 시스템창호

단열재 : 외부벽체(Glasswool Insulation R21HD-15" 나등급)

▷크나우프社 ECOBATT (ECOSE® 특허)

▷HD:저에너지 하우스용 / 15인치(381mm) *동등 제품

: 내부벽체(Glasswool Insulation R19-15" 다등급)

: 천장(Glasswool Insulation R30-15" 다등급)

: 지붕(Glasswool Insulation R37-23" 가등급) ▷ISOVER社에너지세이버

*단열기준은 2016년 7월1일자로 변경되는 단열기준법을 적용하여 강화시켜 놓았습니다.


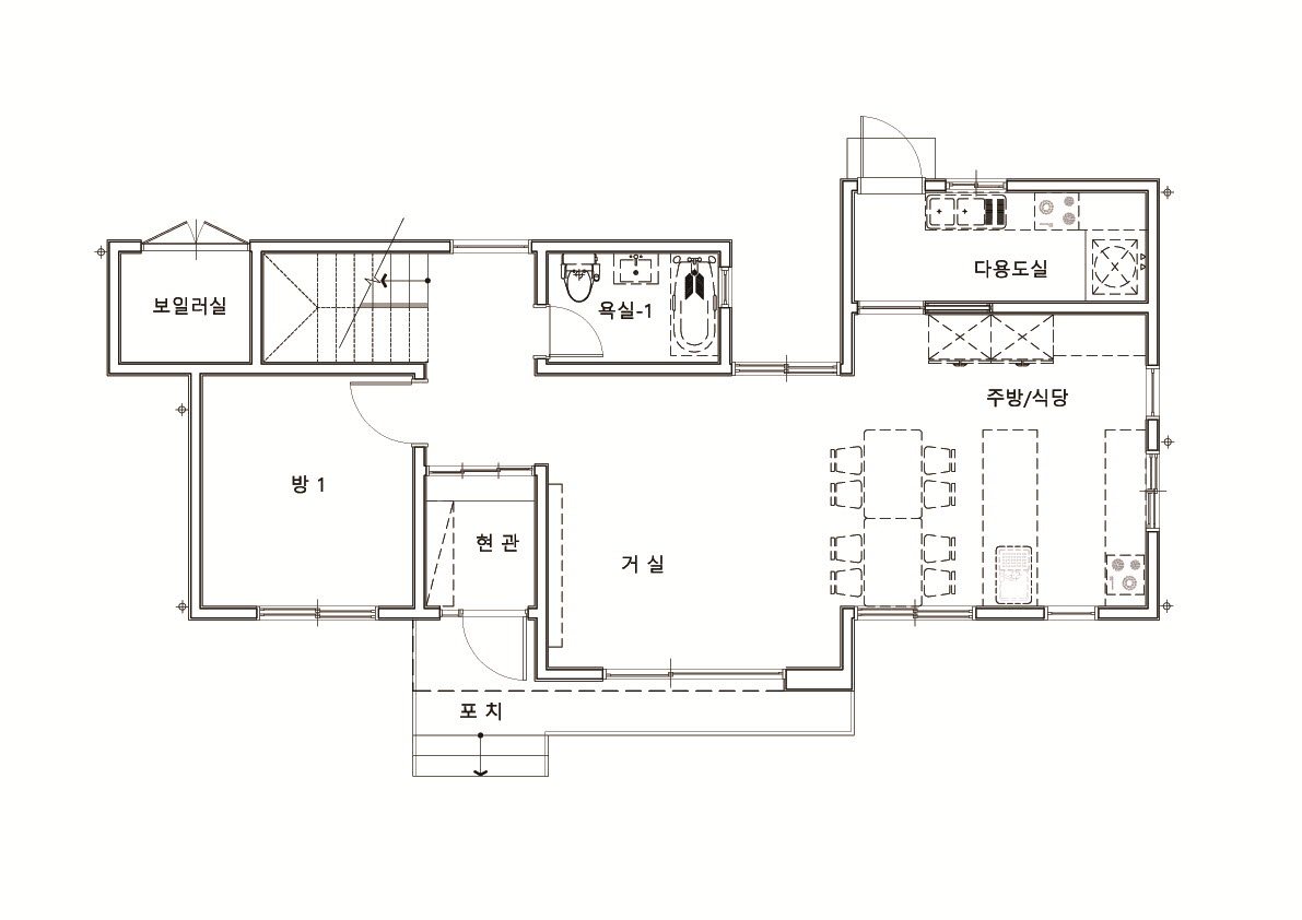
1층평면도.jpg 1층 평면도
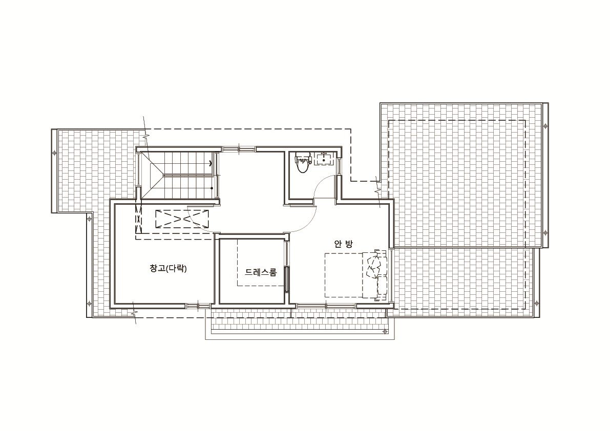
2층평면도.jpg 2층 평면도



경기 광주_윤정배.jpg

도착


49평 경기 광주 오포읍 능평리에 지어진 목조 전원주택 어떠셨나요?

저희 회사가 젊은 사람들로 구성되다 보니 외관 디자인이나 인테리어 부분도 실용적이면서 깔끔함 스타일로 많이 마감을 한답니다.

최대한 추가비가 들어가지 않으면서 정해진 금액에서 맥시멈의 효과를 끌어내는 것!!

이것이 저희들이 추구하는 집이랍니다. ^^;

욕심 같아서는 더 덜어내고 미니멀라이즘을 추구하고 싶은 마음이지만 건축주님의 취향도 있으니 절충해야겠죠.^^;;

제가 설계 때 항상 하는 말이 있습니다.

"최대한 덜 붙일 생각 하세요."

대부분 제가 이런 말을 하면 "?"를 띄웁니다.

한국사람들의 특징이기도 한데 생각보다 은근 과시욕을 다들 가지고 계시답니다.

집을 남에게 보여주고 자랑해야 되니 옆집보다는 무언가 하나 더 붙여야 하고 인테리어도 무언가 비싼 자재가 더 시공돼야 마음이 놓이시는 분들이 많답니다.^^;

결론적으로 말씀드리면 절대로 비싼 자재 붙였다고 비싼 집 되는 것 아닙니다.

집에 많은 돈 들이지 마시고 그 비용 아끼셔서 내 몸에 닿는 침대나 싱크대 같은 가구에 더 돈을 투자하세요.^^

저희 가난하지 않습니다. 저희 생각해서 건축비 높이지 않으셔도 되니 집에 돈 많이 투자하지 마세요. ㅠㅠ

정해진 예산안에서 설계를 마무리하시고 기능적인 차이가 없다면 그 부분은 과감하게 기본 마감으로 가시는 것을 추천드린답니다.

오늘은 출장 다녀오는 바람에 저녁 12시에 글을 올리네요. 내일도 출장이라 지금이 아니면 올릴 시간이 없으니 글 올라왔다는 알람 울려도 너 그리 이해해 주시기 바랍니다. 꾸벅.ㅠㅠ

다음에는 일과시간에 꼭 글을 작성하도록 하겠습니다.ㅎ.ㅎ

감사합니다.

*읽고 난 다음에는 위의 하트 모양 라이 킷과 공유 꾹 눌러주세용~^^


다운로드 (4).jpg


총괄 건축가 : 이동혁, 임성재, 정다운

설계·시공 : 홈트리오(주) 1522-4279

Homepage : http://hometrio.kr

이동혁건축가TV : http://tv.naver.com/sunsutu1

[집이라는 본질적인 가치에 집중하다.]


글쓴이 : 이동혁 건축가

이메일 : sunsutu@hanmail.net

책 : '따뜻한 전원주택을 꿈꾸다' 저자(http://www.yes24.com/24/goods/40516450?scode=029)

이동혁건축가TV : http://tv.naver.com/sunsutu1


상담 및 자문[홈트리오 대표]

이동혁 건축가 : 010-4567-8413

정다운 건축가 : 010-8560-0477

임성재 건축가 : 010-9941-8899



keyword