#40 '모던 감성 랜드마크' 경주 54평 목조주택

#40 경북 경주 현곡면 금장리 목조 모던스타일 54평 전원주택 완공사례

by 이동혁 건축가

제목 : #40 '모던 감성 랜드마크' 경주 54평 전원주택

소제목 : #40 경북 경주 현곡면 금장리 목조 모던스타일 54평 전원주택 완공사례


출발


안녕하세요. 이동혁 건축가 입니다.^^

지난주까지만 해도 차에서 에어컨 틀고 다녔던 것 같은데 이제는 쌀쌀해서 오히려 긴팔을 입고 출장을 다니고 있네요. 그만큼 가을 속으로 완전히 들어왔다 느껴집니다.^^

지난번 이야기드린 것처럼 올해 가을에는 건축공사비의 변동폭이 클 것으로 예상됩니다. 이미 올라간 회사들도 있는데 내년 봄 공사를 준비 중이신 분들께서는 어떤 업체던 올해 안에 계약을 진행해 놓으시고 인허가도 올해 안에 접수해 놓으시기 바랍니다.

내년에 건축법규가 많은 부분 변경될 것으로 예상됩니다. 물론 품질적으로는 좋아지는 것이지만 그만큼 건축 공사비가 더 상승하는 요인이 되기 때문에 꼭 계획을 잘 세우셔서 진행하시길 바라겠습니다.

오늘 이야기 드릴 주택은 경북 경주 현곡면 금장리에 지어진 모던 스타일의 54평 전원주택입니다.^^

경주라고 해서 무조건 기와를 올려야만 된다고 생각하셨나요?^^; 오늘 사례를 보시면서 많은 아이디어 얻어가시길 바라겠습니다.

자 그럼 오늘도 출발해 보겠습니다.

*읽고 난 다음에는 위의 하트 모양 라이킷과 공유 꾹 눌러주세용~^^


사본 -사본 -다운로드.jpg


HOUSE PLAN

연면적 : 177.51㎡

1층 : 98.43㎡

2층 : 79.08㎡

규모 : 지상 2층

총괄 건축가 : 이동혁, 임성재, 정다운

설계·시공 : 홈트리오(주) 1522-4279

Homepage : http://hometrio.kr

이동혁건축가TV : http://tv.naver.com/sunsutu1

KakaoTalk_20170712_135132086.png

예상 총 건축비 : 280,900,000원(부가세 포함, 2017년 3월 01일자 기준 계약금액)

설계비 및 인허가비 : 13,500,000(부가세 포함)

*건축비 외 부대비용 : 대지구입비, 가구(싱크대, 신발장, 붙박이장), 기반시설 인입(수도, 전기, 가스 등), 토목공사, 조경비 등


SPEC

공법 : 기초-철근콘크리트 / 1층, 2층 구조-목조

지붕마감재 : 리얼징크

외벽마감재 : 스타코플렉스

외벽포인트자재 : 리얼징크, 노출콘크리트보드

실내벽마감재 : 실크벽지

실내바닥마감재 : 강마루

창호재 : 융기 3중 시스템창호

단열재 : 외부벽체(Glasswool Insulation R21HD-15" 나등급)

▷크나우프社 ECOBATT (ECOSE® 특허)

▷HD:저에너지 하우스용 / 15인치(381mm) *동등 제품

: 내부벽체(Glasswool Insulation R19-15" 다등급)

: 천장(Glasswool Insulation R30-15" 다등급)

: 지붕(Glasswool Insulation R37-23" 가등급) ▷ISOVER社에너지세이버

*단열기준은 2016년 7월1일자로 변경되는 단열기준법을 적용하여 강화시켜 놓았습니다.


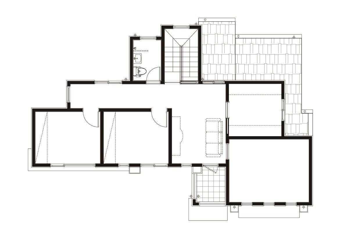
1층.jpg 1층 평면도


2층.jpg 2층 평면도


경북 경주_ 김완택_old.jpg

도착


54평 경북 경주 현곡면 금장리에 지어진 목조 전원주택 어떠셨나요?

어떤 분이 이메일로 이런 질문을 하시더라고요.

"이 많은 글들을 직접 다 쓰시나요? 직원들에게 시켜서 글을 적으시는 건가요?"

다들 의문들이 많으시겠지만 저는 모든 글들을 제가 직접 작성한답니다.^^;

항상 태블릿 PC를 가지고 다니면서 그때그때 내용들을 메모해 놓고 대부분 새벽시간이 글을 작성해서 여러분들에게 연재해 드리는 것이랍니다.

많은 회사들이 단순히 업로드의 목적으로 글들을 올리는데 저는 그것이 싫어서 솔직한 제 마음과 심정을 담아 글을 적기 시작했답니다.

어떨 때는 너무 직관적으로 적을 때도 있지만 제 나름대로의 건축 철학이 있다 보니 초심을 잃지 않고 항상 올곧은 길을 걷고자 노력한답니다.^^

2017년이 엊그제 왔던 것 같은데 벌써 3 달이라는 시간밖에 남질 않았습니다. 남은 2017년 다들 마무리 잘 준비하시고 내년 봄 공사 준비하시는 분들은 조금 서둘러 미리미리 챙겨놓으시길 바라겠습니다.

건축일을 10년 동안 하면서 느낀 것은 "시간이 돈이다."라는 것입니다.^^;

오늘은 여기까지 입니다.^^

감사합니다.

*읽고 난 다음에는 위의 하트 모양 라이 킷과 공유 꾹 눌러주세용~^^


다운로드 (4).jpg


총괄 건축가 : 이동혁, 임성재, 정다운

설계·시공 : 홈트리오(주) 1522-4279

Homepage : http://hometrio.kr

이동혁건축가TV : http://tv.naver.com/sunsutu1

[집이라는 본질적인 가치에 집중하다.]


글쓴이 : 이동혁 건축가

이메일 : sunsutu@hanmail.net

책 : '따뜻한 전원주택을 꿈꾸다' 저자(http://www.yes24.com/24/goods/40516450?scode=029)

이동혁건축가TV : http://tv.naver.com/sunsutu1


상담 및 자문[홈트리오(주) 대표]

이동혁 건축가 : 010-4567-8413

정다운 건축가 : 010-8560-0477

임성재 건축가 : 010-9941-8899




[네이버TV - 이동혁건축가TV]

*글 읽기가 어렵나요? 그럼 이제부터는 영상으로 확인하세요.^^


1. 내 집 짓기의 시작-인트로 : http://tv.naver.com/v/1429784

2. 전원주택 짓기 1차 강연 영상 : http://tv.naver.com/v/1431765

3. 성공의 정석 '꾼' 이동혁 대표 : http://tv.naver.com/v/1434375

4. 전원주택 공법. 무엇으로 지으면 좋을까요? : http://tv.naver.com/v/1436122

5. 전원주택 짓기. 예산잡는 법! : http://tv.naver.com/v/1446575

6. 전원주택. 왜 품질에 대해 말이 많을까? : http://tv.naver.com/v/1451485

7. 내집짓기. 언제부터 준비해야 할까요? : http://tv.naver.com/v/1473650

8. 내 땅에 몇평까지 집을 지을 수 있나요? : http://tv.naver.com/v/1473658

9. 전원주택 지방은 공사비가 더 비싸나요? : http://tv.naver.com/v/1479534

10. 전원주택 AS는 어떻게 진행되고 몇년까지 보증되나요? : http://tv.naver.com/v/1479537

11. 전원주택 단층과 2층으로 지을 때 비용차이가 많이 있나요? : http://tv.naver.com/v/1479547

12. 전원주택 성토한 땅에 바로 시공할 수 있나요? : http://tv.naver.com/v/1479558

13. 강화도 이강리 전원주택. 꿈애하우징 오픈하우스 현장 : http://tv.naver.com/v/1497662

14. 전원주택에 스타코플렉스를 왜 사용하나요? : http://tv.naver.com/v/1599468

15. 전원주택 데크에 대해 알려주세요. : http://tv.naver.com/v/1599480

16. 집짓기 착공전 준비사항은 어떻게 되나요? : http://tv.naver.com/v/1599505

17. 목조주택에서 가장 많이 나는 하자와 그 빈도는? : http://tv.naver.com/v/1672388

18. 조영구 트랜드 핫 이슈. 전원주택 쇼핑몰 꿈애디자인랩 : http://tv.naver.com/v/1682435

19. 전원주택 계약시 속지 않기 위한 방법은? : http://tv.naver.com/v/1684870

20. 전원주택 추가공사 왜 공사 전에 미리 말하지 않나요? : http://tv.naver.com/v/1688493

21. 강화마루, 강마루, 장판 무엇이 좋나요? : http://tv.naver.com/v/1692136

22. 목조공법으로도 3층 이상으로 높게 지을 수 있나요? : http://tv.naver.com/v/1698287

23. 목조주택 2층에 시멘트 방통시공. 목조에 부담을 주지 않나요? : http://tv.naver.com/v/1701955

24. 전원주택 바닥 방통없이 난방을 할 수 있는 방법이 있나요? : http://tv.naver.com/v/1728947

25. 2억4천만원. 경기 광주 전원주택을 소개합니다. : http://tv.naver.com/v/1732431

26. 전원주택. 철근콘크리트가 목조보다 더 튼튼할텐데도 목조로 집을 짓는 이유가 있나요? : http://tv.naver.com/v/1735979

27. 내 땅에 흙을 마음대로 받아도 되나요? : http://tv.naver.com/v/1739333

28. 지진이 늘어나는데 중목이 아닌 경량 목구조는 약하지 않나요? : http://tv.naver.com/v/1743684

29. 땅이 낮아 성토하고 싶어요. 절차가 어떻게 되나요? : http://tv.naver.com/v/1746299

30. 전원주택. 여름공사와 겨울공사 단점은 어떤게 있을까요? : http://tv.naver.com/v/1759345

31. 전원주택 회사. 정말 안전한 업체인지 확인하고 싶어요. : http://tv.naver.com/v/1766577

32. 목조주택이 몸에 좋다는데 어차피 본드나 벽지도 바르지 않나요? : http://tv.naver.com/v/1817543

33. 전원주택 브랜드업체들의 이윤이 너무 높지 않나요? : http://tv.naver.com/v/1834510

34. 전원주택 땅을 살려는데 종류가 너무 많아요. 혹시 집을 지을 수 없는 땅도 있나요? : http://tv.naver.com/v/1862326

35. 사람들이 목조주택을 짓게 되는 계기가 있을까요? : http://tv.naver.com/v/1866671

36. 건설업체가 안전한 업체인지 알아보는 법! : http://tv.naver.com/v/1918266

37. 미국식 창호와 독일식 창호의 차이 : http://tv.naver.com/v/1934487

38. 하자이행보증증권에 대해 알아보자 : http://tv.naver.com/v/2011225

39. 제주도에 집 지을 때 주의해야 할 점 : http://tv.naver.com/v/2011251


사본 -사본 -다운로드.jpg


keyword