30평 목조주택 시공현장 :: 골조작업

한글주택 현장라이브 :: 서울시 종로구

by 한글주택

안녕하세요. 한글주택입니다! 오늘은 서울시 종로구에 시공중인 현장을 소개하려 합니다. 한글주택 직영 설계팀과 여러번 미팅 후 설계된 해당 주택은 30평형 목조주택으로 현재는 현장 공사팀 분들께서 골조작업 진행중에 있습니다. 소중한 가족들이 머무를 공간을 저희 한글주택에 맡겨주셔서 감사합니다 건축주님!


서울시 종로구 30평 목조주택 시공현장


■ 기획설계

34평 단독주택으로 서울 중심에서도 전원생활을 누릴 수 있도록 계획했다. 아직 기초공사 단계로 주택 외관의 모습이 드러나지는 않았지만 데크와 테라스, 조경을 꾸밀 수 있는 마당을 시공할 예정이다.
KakaoTalk_20190319_165912335.png
KakaoTalk_20190319_165837745.png
서울시 평창동 30평 목조주택 - 스케치업
1cmd.png
2cmd.png
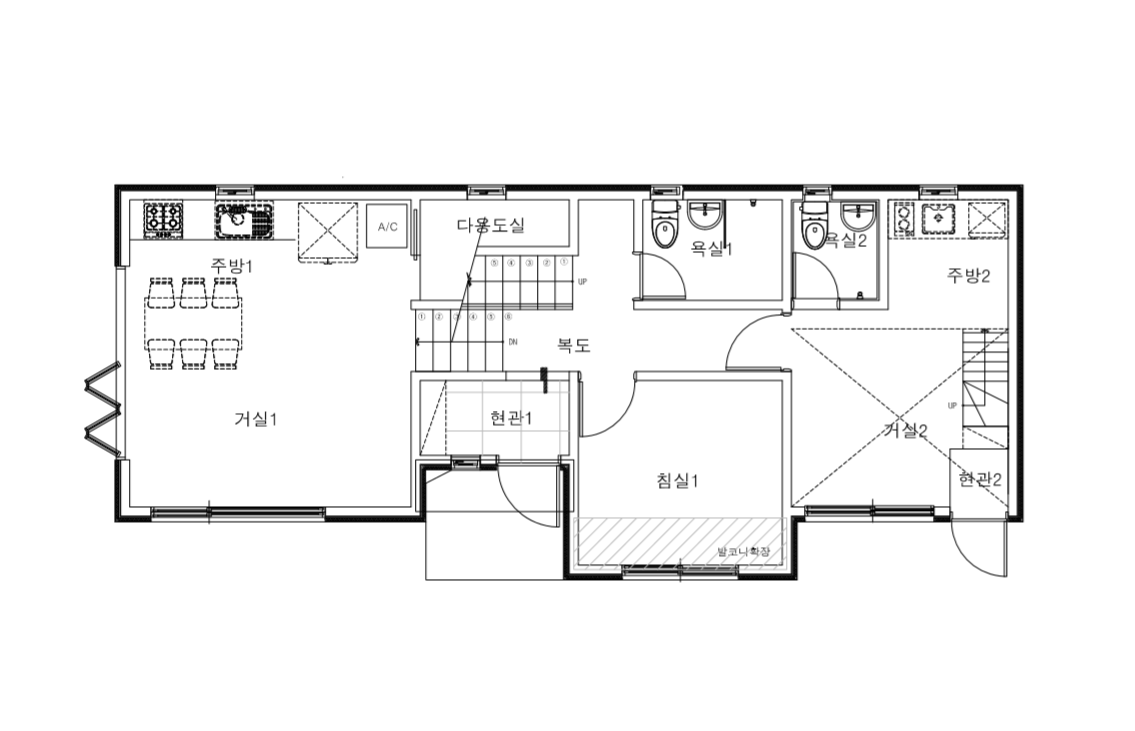
서울시 평창동 30평 목조주택 - 1층/2층 도면

■ 기초공사

8b1be6c2868d6de5f5860657814bf16f_1553586345_1485.jpg
8b1be6c2868d6de5f5860657814bf16f_1553586345_8908.jpg
콘크리트 타설 및 엘앙카 설치
KakaoTalk_20190319_144309731_08.jpg
KakaoTalk_20190319_144309731_02.jpg
철근배근 및 거푸집 설치, 설비 및 전기배관 작업


■ 골조공사

8b1be6c2868d6de5f5860657814bf16f_1553586345_8908.jpg
8b1be6c2868d6de5f5860657814bf16f_1553586345_1485.jpg
KakaoTalk_20190404_175633719_03.jpg
KakaoTalk_20190404_175633719_01.jpg
1층 벽체설치
KakaoTalk_20190411_172047115_06.jpg
KakaoTalk_20190411_172047115_02.jpg
지붕층 설치작업

아직 골조작업이 한창인 평장동의 2층 목조주택 현장을 소개했습니다. 앞으로 건축주님의 소중한 보금자리를 꼼꼼하게 시공하여 튼튼한 주택이 완공될 수 있도록 노력하겠습니다!


건축상담 신청하기 ▶ http://naver.me/FWeou5lW

한글주택 홈페이지 ▶ http://bitly.kr/DwqOO

한글주택 유튜브 ▶ https://goo.gl/65mdXh