협소주택으로 고민 해결! 도심에서도 즐기는 생활

by 한글주택
협소주택-시공_썸네일.jpg

안녕하세요 한글주택입니다 : ) 오늘 소개할 단독주택들은 바로 도심에 시공된 협소주택들입니다. 협소주택은 비좁은 공간에 시공되기 때문에 땅의 모양을 고려한 설계와 공사계획을 확실하게 준비하는 것이 중요합니다. 그렇기 때문에 넓고 한적한 대지 위에 시공하는 주택보다 고려해야할 사항들이 많으며, 협소한 공간에 건축주님이 원하는 공간을 어떻게 구성할 것인지가 핵심 포인트라고 할 수 있습니다. 자, 그럼 한글주택의 협소주택들을 보러 가보실까요?

기존 주택 철거 후 새로운 협소주택으로 탄생!
협소주택_도심주택_03.jpg
협소주택_도심주택_04.jpg
기존 주택
협소주택_도심주택_023.jpg
협소주택_도심주택_026.jpg
기존주택 철거 후 신축 주택의 모습

[건축정보]

건축위치 서울시 강동구

건축공법 경량목구조

건축규모 2층

총 평수 94.41㎡

1층 평수 49.04㎡

2층 평수 45.37㎡


노후된 기존 벽돌 주택을 철거 후 시공하게된 협소주택 완공 모습입니다. 사다리꼴 모양의 협소한 대지 위에 시공된 이 주택은 약 30평으로 시공되었으며 기존 주택을 철거 후 시공한 사례입니다. 특히나 이 주택은 목조주택으로 시공되었는데요, 협소주택의 경우에는 보통 층 수를 높여서 시공하기 때문에 철근콘크리트를 많이 선택하지만 해당 주택은 2층 규모로 시공하여 목조주택으로 시공이 진행되었습니다.


협소주택은 앞에서 말씀드린 것처럼 설계가 굉장히 중요하지요. 그렇다면 오늘은 도면 먼저 살펴보도록 할까요?

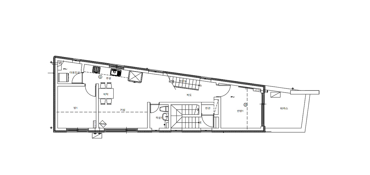
1층 도면 - 내부
1층 도면.png 1층 도면

1층은 사다리꼴의 넓은 면적이 들어설 수 있는 곳에 침실을 두고, 넓은 곳에서 점점 좁아지는 꼭지점 쪽으로는 거실과 주방이 자리하고 있습니다. 이러한 공간은 자칫하면 좁아보일 수 있기 때문에 식탁 부분적으로 오픈천정으로 시공하였습니다.

협소주택_도심주택_09.jpg
협소주택_도심주택_08.jpg
1층 침실, 파우더룸, 욕실
협소주택_도심주택_05.jpg
협소주택_도심주택_06.jpg
협소주택_도심주택_07.jpg
1층 거실, 주방
협소주택_도심주택_020.jpg
협소주택_도심주택_021.jpg
상부 오픈 천장
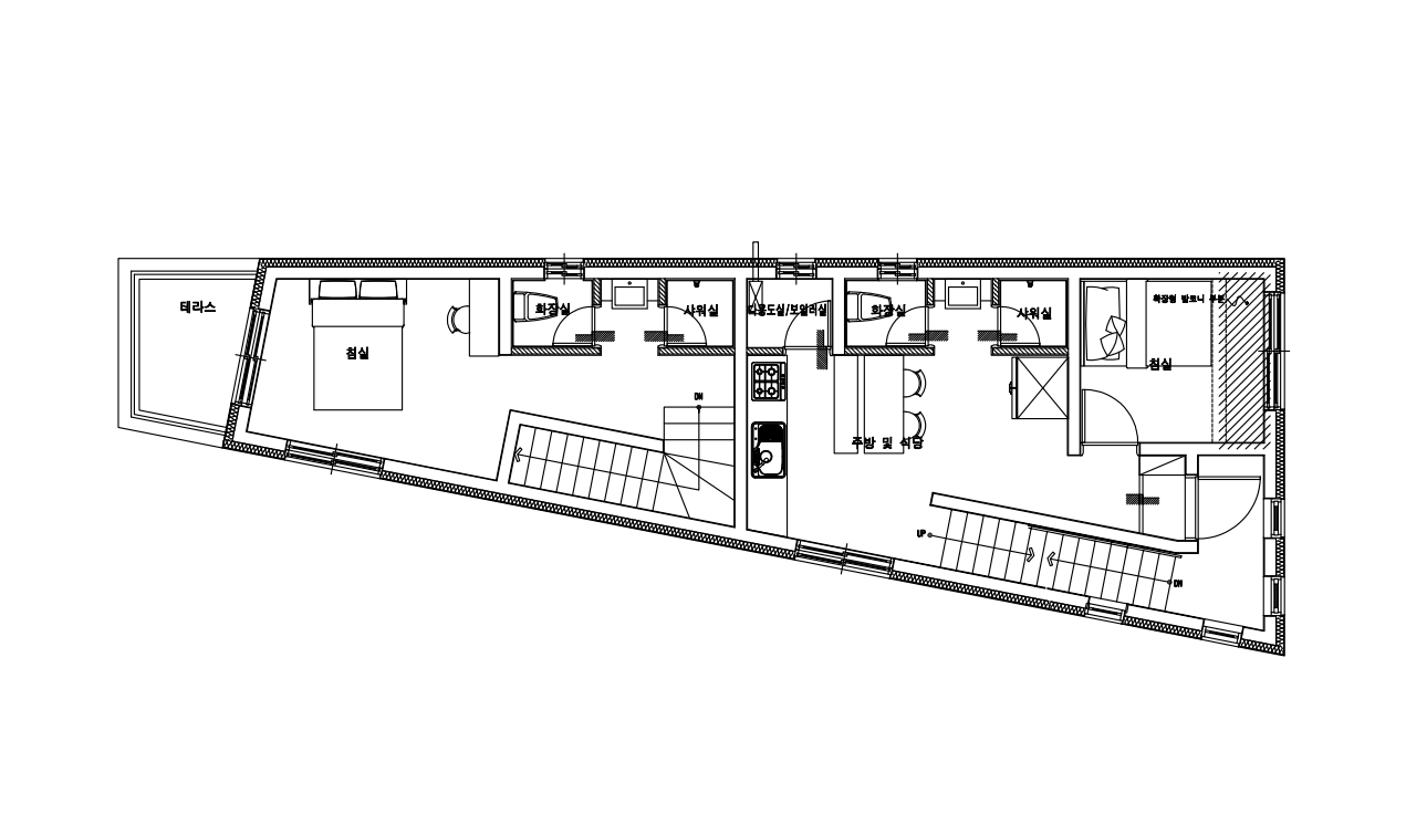
2층 도면 - 내부
2층 도면.png 2층 도면

2층은 작은 복도와 침실 2개 그리고 테라스 2개가 자리하고 있습니다. 협소한 공간이지만 필요한 공간은 모두 갖춘 모습이지요!

협소주택_도심주택_014.jpg 복도
협소주택_도심주택_017.jpg
협소주택_도심주택_018.jpg
침실 2
협소주택_도심주택_011.jpg
협소주택_도심주택_012.jpg
침실 1

해당 주택을 더 자세히 알고 싶다면 아래 포스팅을 참고하세요! ▼


케이크 조각처럼 지어진 협소주택
협소주택_01.jpg
협소주택_03.jpg

[건축정보]

건축위치 경기도 안양시

건축공법 철근콘크리트

건축규모 3층

총 평수 133.75㎡ (40.46PY)

1층평수 7.7㎡ (2.33PY)

2층평수 60.58㎡ (18.33PY)

3층평수 65.47㎡ (19.80PY)

옥탑층 6.34㎡ (1.92PY) - 건축면적의 1/8이하이므로 연면적에서 미포함


이 주택은 콘크리트 공법으로 시공된 약 52평형 협소주택입니다. 한 눈에 보아도 협소한 공간에 지어진 것을 알 수 있는데요, 이 주택 또한 사다리 꼴의 형태로 설계, 시공되었는데요 다만 앞서 보여드렸던 목조 협소주택보다 더 큰 규모인 4층 형태로 시공되었습니다. 또한 주택에 가벽을 두어 옆집과의 프라이버시를 지킬 수 있도록 하였습니다. 해당 협소주택은 협소하지만 2 가구가 머무를 수 있도록 2층 3층에 주방.식당이 자리하고 있다고 합니다. 공간 구성이 어떻게 되었는지 지금 살펴보러 가보실까요?


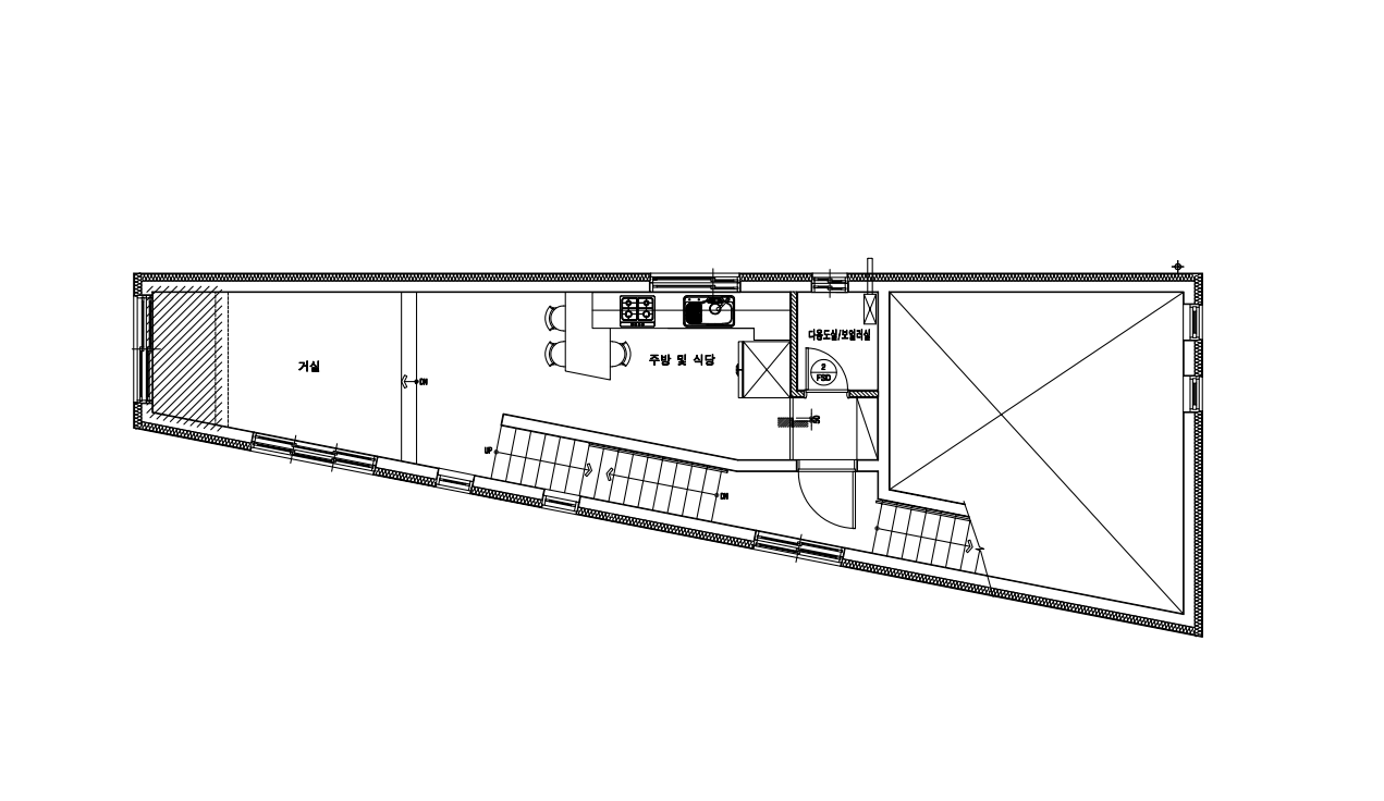
1층 도면 - 주차장, 현관
1층.png
협소주택_04.jpg
협소주택_05.jpg

1층은 필로티 형태로 주차 공간을 확보하였으며, 협소주택의 현관이 자리하고 있습니다. 필로티 공간은 주차공간 뿐만 아니라 여러모로 활용이 가능하다는 큰 장점이 있지요.


2층 도면 - 내부
2층.png
협소주택_08.jpg
협소주택_06.jpg
협소주택_09.jpg
협소주택_010.jpg

2층에 오르면 현관을 기준으로 좌측은 침실과 주방, 식당, 우측으로는 침실과 테라스가 자리하고 있습니다.

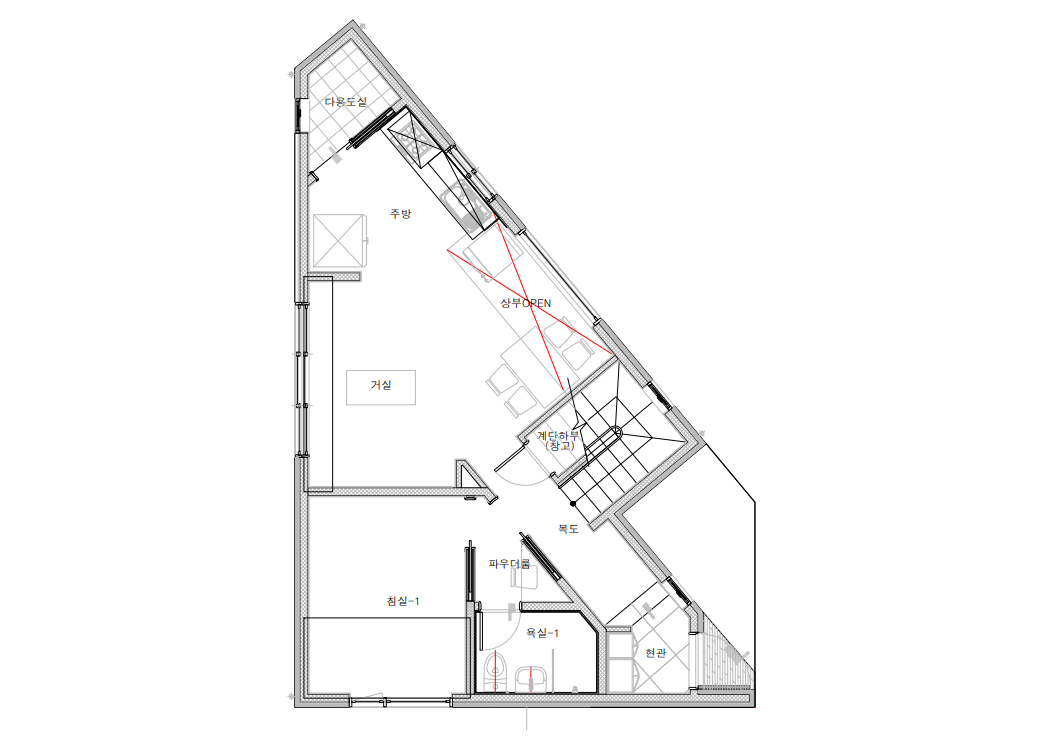
3층 도면 - 내부
3층.png
협소주택_014.jpg
협소주택_012.jpg
협소주택_016.jpg
협소주택_017.jpg
협소주택_015.jpg
침실 모습

3층은 공간을 더욱 나누어 침실 3개, 주방과 거실이 자리하고 있는데요, 상부가 오픈되어 있어 조금 더 탁 트인 느낌을 주고 있습니다.

4층 도면 - 내부
4충.png
협소주택_018.jpg
협소주택_019.jpg
옥상 전경

4층은 넓은 옥상이 자리하고 있습니다. 옥상은 협소한 주택에서 요긴하게 사용되는 공간입니다. 바베큐 파티를 해도 좋고, 루프탑처럼 꾸며 단독주택 생활을 즐기기에도 제격이지요.


해당주택을 더 자세히 알고 싶다면 아래 포스팅을 참고해주세요!▼


협소한 땅의 기적
외관.jpg

[건축정보]

대지위치 서울특별시 관악구 신림동

구조 철근콘크리트

대지면적 132㎡ (39.93py)

건축면적 67.76㎡ (20.5py)

연면적 147.34㎡ (44.57py)

건폐율 51.33%

용적률 111.62%

건축규모 3층+다락


협소주택이지만 수익을 내는 다가구주택을 소개합니다. 협소주택임에도 불구하고 어떻게 세를 주는 다가구주택이 완성되었을까요? 이것에 대한 비밀은 바로 설계에 있는데요, 설계를 어떻게 하느냐에 따라서 협소한 공간이 다가구주택으로 시공이 가능하다는 사실! 이 주택 또한 필로티 구조로 주차 공간을 확보하였으며, 층별로 야외와 소통할 수 있는 테라스가 자리하고 있습니다.

1층 도면 - 내부
도면_1층.png
1층.JPG
1층 (2).JPG
1층 내부

1층은 원룸 형태이지만 5m나 되는 개방된 높은 층고와 복층이 있어 평수보다 더 넓은 공간을 사용하실 수 있습니다.

2층 도면 - 내부
도면_2층.png
2층 전경.JPG 2층 전경
2층 거실.JPG
2층 주방 (2).JPG
2층의 2층 (2).JPG

2층은 주방과 거실이 있는 층과 또 하나의 층이 있어 3층까지 사용하는 형태인데요, 좁은 듯 보여지는 거실 공간은 3층에서 추가적인 공간으로 사용할 수 있다는 큰 장점이 있지요. 더불어 윗 층에는 테라스가 자리하고 있어 야외와의 소통도 빠뜨리지 않았습니다.

3층 도면 - 내부
도면_3층.png 3층 도면 (좌측 공간은 2층의 3층)
도면_다락.png 다락 도면
096A1770.JPG 3층 주방
096A1786.JPG 3층 다락
3층.JPG 3층 세대가 사용하는 옥상

3층 세대는 주방, 거실이 있는 3층과 다락방. 그리고 옥상까지 사용할 수 있다는 장점이 있습니다. 우리가 단독주택 생활에 있어서 꼭 한번 갖고 싶었던 다락, 옥탑이 큰 장점으로 다가올 수 있지만 구조가 독특하다는 점은 어떤 이에게는 단점으로 다가갈 수 있겠지요. 하지만, 도심에서 협소주택으로 모든 공간에서 야외와 소통하는 공간이 있으면서도 필요로 하는 모든 공간까지 갖추어 있기 때문에 충분이 매력이 느껴지는 주택입니다.


해당 주택은 건축상까지 수상한 내역이 있으며, 한글주택의 협소주택 중 최다 문의를 불러모은 주택인데요,

이 주택 더 자세히 알고 싶다면 아래 링크를 참고해주세요!▼

이 주택 더 자세히 알고 싶다면 아래 링크를 참고해주세요!▼


오늘은 한글주택에서 시공한 도심 속 협소주택들을 소개해 드렸습니다. 모든 주택들의 대지는 협소했지만, 모든 공간을 다 갖추고 있는 주택으로 탄생했지요. 이러한 사례들은 설계가 굉장히 중요하기 때문에 협소주택 시공의 경험이 바탕이 되어야지만 성공적인 시공이 가능합니다.


혹시, 협소주택 알아보고 계신가요? 그렇다면 지금 바로 한글주택에서 무료상담 받으세요!

무료상담 신청하기

keyword
매거진의 이전글모든 공간이 남향으로! 30평 전원주택