30평 전원주택, 단층 주택의 예쁜 벽돌집

by 한글주택
30평-전원주택,-단층주택_썸네일.jpg

안녕하세요~ 종합건설 한글주택입니다. 오늘은 30평 단층 전원주택으로 아주 예쁘게 시공된 집을 만나보러 갈텐데요, 단층으로 관리도 수월하지만 다락이 있어 2층 전원주택의 로망도 어느정도 충족시키는 사례입니다.

30평 전원주택, 예쁜 벽돌집
30평 전원주택, 단층주택_2.jpg

[건축정보]

대지위치 강원도 춘천시

건축공법 철근콘크리트

건축규모 1층

총 평수 30py

1층 평수 30py


조용하고 푸르른 마을에 시공된 한글주택의 30평 단층 전원주택의 전경입니다. 건축주님은 미니멀리즘을 추구하셔서 심플한 단층주택을 시공하고자 하셨는데요, 시공이 완성된 전체적인 모습은 주변 마을 분위기와 잘 어우러집니다.


이 주택의 외장재는 고벽돌로 전체를 시공하였습니다. 기존에는 포인트로 고벽돌을 하고자 하였지만, 벽돌의 내구성, 유지보수가 수월하다는 점으로 인하여 전체를 벽돌로 시공하였다고 하셨습니다. 벽돌집은 클래식하면서도 우리에게 익숙한 외장재이지요. 특유의 분위기가 있어 많은 분들이 시공하는 자재입니다. 외벽부터 데크까지 모두 고벽돌로 시공되었지만, 처마와 지붕, 난간 등은 징크로 마감하여 세련된 느낌이 더해졌습니다.

30평 전원주택, 단층주택_1.jpg

앞 마당의 잔디가 자라면 전체적인 모습이 더욱 멋있어 질 것 같은데요! 건축주님의 취미생활인 식물들을 가꾸는 것은 물론이며, 테이블을 마련하여 가족분들과의 오붓한 시간도 보낼 수 있겠습니다.

내부
30평 전원주택, 단층주택_9.jpg
30평 전원주택, 단층주택_10.jpg

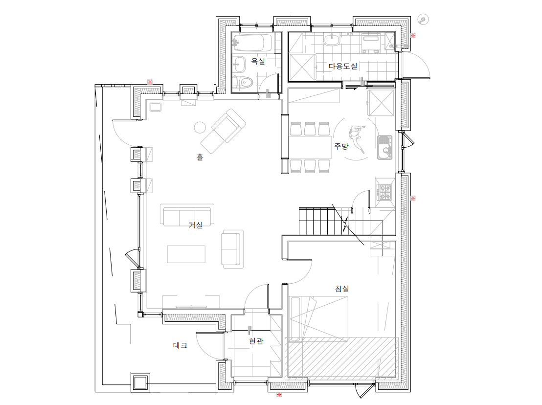
건축주님 부부만 거주하는 30평대 전원주택이기 때문에 침실의 수는 줄이고, 거실을 크게 내었습니다. 현관에 들어서면 바로 보이는 공간은 바로 거실은 마당이 한 눈에 들어올 수 있도록 큰 창호가 자리하고 있으며, 측면에도 작고 긴 창문이 있어 분위기 있으면서도 햇살이 비출 수 있도록 하였습니다.


마당과 거실이 연결되는 문은 총 2개로 첫번째사진의 현관, 두번째 사진의 문을 봐주시면 되겠습니다. 마당과의 연결성이 굉장히 좋아 전원생활을 만끽할 수 있는 최고의 조건이지요!

30평 전원주택, 단층주택_11.jpg

그리고 다락으로 오르는 계단 하부에는 필요에 따라서 사용하는 물건들을 수납할 수 있는 공간으로 두었으며, 계단에도 조명을 설치하였는데요! 계단을 오를 때 혹시나 하는 사고를 방지할 수 있으면서 어두운 밤에는 더욱 분위기 있는 계단실이 될 것 같습니다.

30평 전원주택, 단층주택_12.jpg

주방은 아일랜드 식탁, 일자형 주방으로 시공되었습니다. 벽면의 붉은계열 포인트 타일은 건축주님의 취향을 반영한 것으로 매력적인 모습입니다. 조명은 공간 분위기를 좌우하는 큰 요소 중 하나입니다. 주방에는 화려한 조명을 두어 더욱 특별한 공간이 완성되었습니다.

30평 전원주택, 단층주택_5.jpg
30평 전원주택, 단층주택_6.jpg

침실은 이 30평 전원주택에서 단 하나입니다. 이 공간은 오직 건축주님 부부만을 위한 공간입니다. 적당한 크기의 이 침실 한 편으로는 넓은 붙박이장이 있어 깔끔한 침실을 유지할 수 있겠습니다 : )

30평 전원주택, 단층주택_19.jpg
30평 전원주택, 단층주택_16.jpg

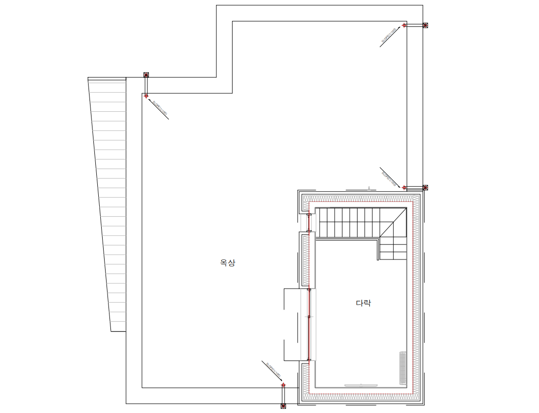
다락 공간은 건축주님의 취미생활은 물론이며, 사용하지 않는 계절용품들을 보관할 수 있는데요, 나중에는 영화를 시청할 수 있는 별도의 공간으로 구성하여도 굉장히 좋을 것 같습니다.

30평 전원주택, 단층주택_17.jpg
30평 전원주택, 단층주택_18.jpg

옥탑은 제 2의 마당이라고 해도 과언이 아니지요 : ) 이 공간에서도 가족분들과의 오붓한 시간을 즐길 수 있으며, 작은 텃밭을 가꾸거나 운동을 하기에 손색없는 공간입니다. 주변의 아름다운 자연을 바라보며 시간을 보낸다니 전원생활을 만끽하는데 부족함이 전혀 없겠습니다.

도면
1층 도면.png 1층 도면
다락 도면.png 다락 도면

오늘은 미니멀리스트 부부가 거주하는 30평 단층 전원주택 시공사례를 소개해 드렸는데요, 큰 평수의 주택은 아니지만 탁 트인 거실로 더욱 넓어보이는 사례였습니다 : ) 혹시 단층 전원주택 시공을 알아보시나요? 종합건설 한글주택에 궁금한 점을 물어보세요!


무료상담 신청하기

keyword
매거진의 이전글40~50평 단독주택, 프라이버시 지키는 완공사례