모던함을 담은 전원주택 집들이

충청도/목조주택

by 한글주택

모던한 스타일의 전원주택은 많은 분들이 시공하고자 하시는 스타일 중 하나입니다. 오래 보아도 질리지 않으며, 주변 자연과 다른 인테리어 가구와 조화롭기 때문이지요. 오늘 보여드리는 주택은 충청남도에 시공된 전원주택으로 모던한 외관, 심플하지만 밝고 탁 트인 내부로 완공된 주택입니다.


모던함을 담은 전원주택

대지위치 충청남도

건축공법 경량목구조

총 평수 137.51㎡ [41.59PY]

1층 93.77㎡ [28.36PY]

2층 43.74㎡ [13.23PY]


K71A6179.JPG

블랙&화이트의 대비로 모던함을 보여주는 주택의 외관은 창문을 많이 낸 모습이 돋보입니다. 창문을 많이 낸다면 풍부한 채광과 앞마당과의 동선이 좋아져 전원주택에서만 누릴 수 있는 특별함을 누릴 수 있습니다.


K71A6189-.jpg
K71A6192.JPG
모던전원주택 우측/배면
K71A6204.JPG

집 앞쪽으로는 데크가 있어 가족들과 야외 저녁식사부터 티타임까지 즐길 수 있습니다.


K71A6113.JPG
K71A6117.JPG


K71A6101.JPG
K71A6108.JPG

집 내부는 전체적으로 밝아 보이도록 시공했는데요, 벽지는 화이트 톤으로 시공하고 바닥은 무늬가 있는 타일로 시공한 모습입니다. 그리고 해당 주택은 탁 트인 느낌을 받으실 수 있는데요, 높은 천정과 외관에서도 보였던 많은 창문들 중 큰 창호가 거실 한쪽 벽면을 차지하고 있어 탁 트인 느낌을 줍니다. 가족들과 시간을 보내면서도 주변 자연을 마음껏 감상할 수 있겠네요.


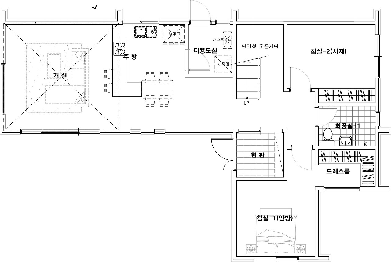
170918_충남-신안리_도면-1층.jpg 1층 도면
170918_충남-신안리_도면-2층.jpg 2층 도면

오늘은 모던한 느낌의 전원주택을 소개해드렸는데요, 창문이 많아 전원주택에서만 느낄 수 있는 조망을 얼마든지 누릴 수 있는 사례였습니다. 혹시 모던전원주택을 시공하고 싶으시다면, 아래 건축상담을 통해서 무료 컨설팅 받으세요!


건축상담 신청하기 ▶ http://naver.me/FWeou5lW

한글주택 홈페이지 ▶ http://bitly.kr/X4NtM4

한글주택 유튜브 ▶ https://goo.gl/65mdXh

keyword
매거진의 이전글우리 집의 특별한 전원주택 시공