시선이 집중되는, 다가구/상가주택

경기도 여주/콘크리트

by 한글주택

전문 건축 컨설팅, 무료 신청하기▶

수익형구조로 주택을 시공하시는 분들 중에서 가장 많이 선택하시는 형태는 바로 '상가', '단독주택'이 결합된 다가구주택, 상가주택이라고 할 수 있습니다. 이러한 형태는 나의 주거공간을 해결함과 동시에 근린생활공간과 주거공간에 임대를 주어 수익까지 발생하기 때문이지요.

오늘 소개할 사례는 주변에 있는 낮고 노후된 건물들과 비교했을 때 세련된 느낌으로 시선이 집중되는 다가구, 상가주택인데요, 바로 소개해 드리도록 하겠습니다.


시선이 모이는 곳,
다가구/상가주택
상가주택1.jpg

[건축정보]

대지위치 경기도 여주

용도 단독주택 (다가구주택), 근린생활시설

구조 철근콘크리트

규모 4층

지상 1층 (근린생활시설) 48.26㎡(14.6PY)

지상 2층 (다가구 A가구) 84.18㎡(25.46PY)

지상 3층 (다가구 B가구) 84.18㎡(25.46PY)

지상 4층 (다가구 B가구) 39.21㎡(11.86PY)

총 평수 255.83㎡(77.39PY)

주차 3대


상가주택8.jpg

해당 주택은 경기도 여주에 위치한 주택으로 총 지상 4층규모로 시공된 주택입니다. 해당 주택은 1층은 상가주택, 2층부터 4층은 다가구주택으로 구성된 시공사례입니다. 주변 노후된 건물들과 비교하면 깔끔하면서도 세련된 느낌으로 시선이 집중되는 주택 외관이 돋보입니다.

건축주님의 주거공간을 해결하면서 상가 공간과, 임대 단독주택 공간을 통해서 수익을 낼 수 있는 형태의 주택이랍니다. 사진으로만 보아도 한글주택에서 시공한 다가구주택만 보이지 않나요?


상가주택9.jpg

근린생활 공간으로 구성된 1층은 큰 창호가 있습니다. 외부에서 내부가, 내부에서 외부가 잘 보이는 형태이기 때문에 카페, 작은 음식점이 들어온다면 굉장히 적합한 형태로 필로티 공간에는 야외 테이블을 두어도 좋은 공간까지 갖춘 굉장히 매력적인 공간입니다. 인테리어 또한 깔끔하게 시공되었으며, 어떤 가구를 두더라도 무리없이 잘 어울리겠지요.

** 여기서 잠깐!

다가구주택은 법적으로 3층 이하로 시공해야 하는데요, 그 중에서 해당 공간 1층(근린생활시설)은 제외라는 점! 참고하세요!


상가주택10.jpg

2층과 3층은 25평으로 탁 트인 느낌이 있는 다가구주택으로 시공되었습니다. 주방은 'ㄱ'형태 가구로 시공되었으며, 컬러도 밝은 베이지색 톤으로 시공되어 깔끔함이 돋보이는 주택이지요, 거실과 주방은 25평이라는 평수를 고려함과 동시에 동선까지 고려하여 이어지는 형태로 구성되었네요. 또한, 천정에 달린 조명으로 주방의 분위기가 더 돋보입니다.


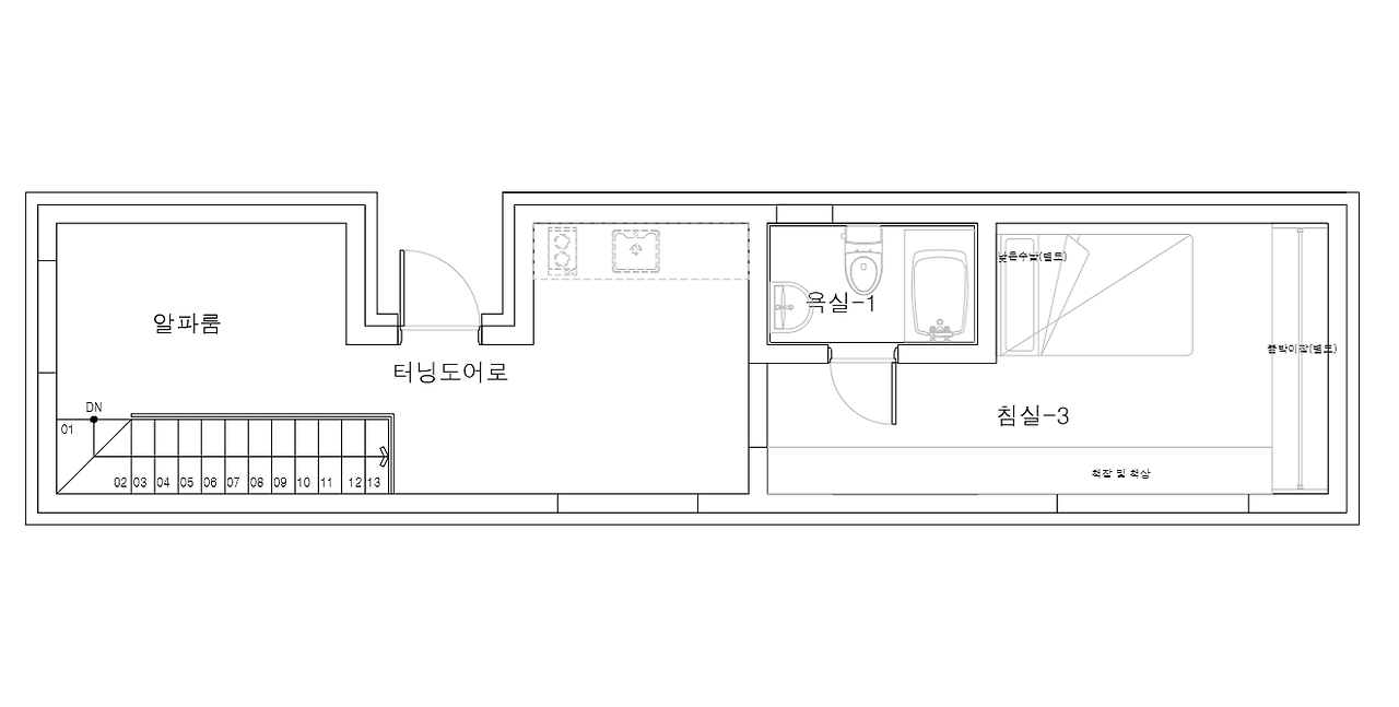
그리고 마지막 4층은 3층과 연결되어 있는 다락방 형태로 시공되었는데요, 해당 주택에 숨겨진 아늑한 개인공간이라고 할 수 있습니다 : )

01.png 1층 근린생활시설 도면
02.png 2층 다가구주택 도면
03.png 3층 다가구주택 도면
04.png 3층과 연결된 다락방 형태의 개인공간 도면

1층 상가주택으로 수익을 내고, 2층과 3-4층의 단독주택의 임대로 수익을 또 부르는 완공사례를 소개해 드렸습니다. 이러한 수익구조형태 건축물은 건축주의 성향만을 접목시키는 것이 아닌, 세입자들의 시선도 고려하여 시공하는 것이 좋기 때문에 전문가의 의견을 꼭 고려하여 시공하는 것이 중요합니다!


한글주택의 상가주택, 잘 보셨나요?

궁금한 점이 있으시다면 무료상담 신청하고 가세요♥

5초면 끝, 무료상담 신청하기

keyword
매거진의 이전글수익형주택, 다가구/다세대주택